- 182㎡新中式,优雅宁静且舒适!
- 来源:室内设计秀
在这套182+65平米的顶楼复式中,整体以简约大方的硬装基础,布置上新中式的简雅家具,并且以雅韵的墙面空间软装设计,打造出一种诗意而又韵味的居住空间感,室内部位简约舒适,楼顶的休闲区与泳池,也为主人打造出了一个从容舒适的居住体验。
玄关
▲玄关装着一个木色的鞋柜,柜子底部留空方便临时鞋子的收纳摆放,侧边加入一列开放格的设计,整体显得简约实用而舒适。
客餐厅
▲客厅与餐厅空间以简约的营造,布置新中式的家具,营造出一种儒雅端庄的舒适与禅意高级氛围。
▲沙发墙以硬包背景墙,背景墙上有着朦胧诗意的画面,布置米白色的布艺沙发,实木茶几与边几,台面布置果盘、茶壶与装饰品,在明亮舒心的采光窗户下,给人以自然轻松的惬意氛围。
▲餐厅墙面以干净素雅的墙面基础,挂一幅横幅木色边框,把圆形的空洞框在里面,看起来像是一幅画一样。实木餐桌椅,餐椅是带有皮艺坐垫的设计,餐桌上一盆禅意雅致的花瓶,与背景墙画框壁洞相呼应,带来一个禅意端庄的画面感。
卫生间
▲餐厅背景墙的壁洞后方是卫生间洗手盆,在壁洞后摆上盆景,在两侧都显得更加有意境感。卫生间的洗手盆采取台上盆的设计,整体简洁实用的设计,也显得更加优雅精致。
书房
▲书房定制上木色的书架与收纳柜,摆上一张成品木色书桌与椅子,书架上摆着精致的小饰品与书籍,带来文墨优雅的精致与简约舒适。
▲书房外的阳台打通纳入到空间里,侧边装上洗手台,布置休闲椅,坐在这里放空自我,也是一种别样舒适的生活体验。
楼梯
▲楼梯以木质的踏步与扶手,楼梯下加入收纳抽屉,楼梯间也布置成地台休闲区,为主人提供了一个情趣优雅的休闲角落位置。
▲考虑到主人是教师、藏书较多,特意在楼梯转角位置装上一面到顶的书架,顶部摆放收藏的书籍,下方放置常看的书籍,坐在木质楼梯上就能享受到阅读的乐趣。
▲楼梯过道的斜顶区比较矮,因此就布置小柜子,成为一个灵活利用的休息空间。
儿童房
▲隐形拉手设计,简洁高级。
▲床头墙在简约自然的硬包基础,加入一幅粉、白、蓝的横幅装饰画,定制床头柜与床头墙融为一体,整体空间显得简洁舒适而温馨。
卧室
▲床头墙以灰色硬包基础,加入木质线条装饰,还有布艺靠背的床头,素雅的床单,整体简雅端庄的空间,也显得更加温雅自然而惬意。
▲侧边的床头柜,深色底架、木色台面、白色抽屉,在简雅的床头墙呼应下,显得格外的简约舒适而大气。
▲角落位置布置斗柜,柜台上布置摆饰品,上方一幅方形诗意的装饰画,侧边还有开放式的收纳柜,整体实用而不失韵味感。
次卧
▲次卧在简约的空间基础,床头墙是灰色的硬包背景墙,床尾处加入了一道木质屏风造型,让卧室空间显得更加简约舒适而有艺术感。
▲木色床头柜上方吊一盏雅韵的吊灯,床头柜上布置香薰与杂志书籍,整个空间也显得更加简雅舒适。
楼顶
▲楼梯做成休闲区,室内部分布置休闲懒人椅,可以在这里放松阅读。
▲室外装上窗台,垫上坐垫,成为冬日晒太阳聊天的惬意舒适空间。
▲极简的天台设计,地面青砖+乱世,角落还有小盆植,空间内充斥着极简舒适的大气氛围。
▲摆上户外专用的休闲桌椅,江景、山景尽收眼下,生活从容舒适。
▲在楼顶还有一个私家泳池在此泡浴享受,也是一种别样舒适的享受。
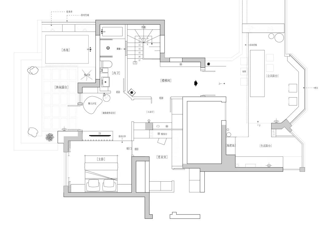
平面布置图
-END-
173㎡现代轻奢风,端庄优雅,时尚大方!
215㎡简约大平层,自然又有气质!
原木+白色,擦出不一样的小清新火花
生活
-
-
- Homtique:存在于过去与未来之间
- 五原路上的老房子清一色地刷了一层浅黄色的油漆,隐隐地露在街道两边的杨树的枝叶间;在统一色调的老街上,路过铁栅栏的大门,视线不自觉地往里看去,明快的、鲜艳的色彩透过黑色的镂空铁门拥挤着进入眼球。Homt...
- IDEAT理想家
-
-
-
- 75㎡两居室,黑白+原木的配色,高级有质感
- 面积:75平米户型:两室两厅一厨一卫风格:现代风整体采用黑白+原木的配色搭配简约大气客厅客厅空间整体以白色为主,地面通铺原木肌理的木地板,硬装上简洁朴素。沙发背景墙贴挂两幅设计感装饰画,进一步凸显亮...
- 小尼宅配
-
-
-
- 两人两猫的78㎡温暖治愈系小家,色彩明快,自然、有趣且活力满满!
- 家装室内设计 ,每日搜集分享国内外最前沿的家装设计、施工、建材等内容,成为您家装的好帮手!本案是一套面和爱为78平米的两居室,业主是一对年轻的夫妻,两人都很喜欢小猫,这个家就给他们两人跟两只猫和谐共...
- 家装室内设计
-
-
-
- 182㎡新中式,优雅宁静且舒适!
- 在这套182+65平米的顶楼复式中,整体以简约大方的硬装基础,布置上新中式的简雅家具,并且以雅韵的墙面空间软装设计,打造出一种诗意而又韵味的居住空间感,室内部位简约舒适,楼顶的休闲区与泳池,也为主人打造...
- 室内设计秀
-
-
-
- 编辑之选|ONTO 自在生成:吃饭喝酒看展,在老仓库里发现武汉的更多可能
- 最能代表武汉历史的,无疑是曾经的汉口租界,租界区的万国建筑群,正是老汉口的魅力所在。沙逊洋行仓库作为武汉市优秀历史建筑,融西方建筑的古典浪漫主义和本土民族建筑的含蓄典雅于一体,抛开各种官方头衔不说...
- mars探索新鲜城事
-
-
-
- 这5种喜欢水的植物,随便浇水都不怕,适合新手养!
- 有很多新手花友对浇水都很恐惧,不浇水怕干死,浇水怕淹死。今天小编整理了5种不怕水的植物,随便浇水也不怕,关键还好养活,非常适合新手养护。龟背竹春季养护要点:想让家里的龟背竹长出更多的新叶片,那么就...
- 养花之家
-
-
-
- 设计师141㎡自住宅,“去设计化”装修长啥样?
- 对一位室内设计师来说,设计过很多住宅,对于自宅必然是有更多想法、要求以及期待。但回归到本质,还是围绕“以生活为中心”的定义。回到家,并不只是推开家门这么简单:空间、家人、和自己,都有一扇门需要被打...
- 时尚家居
-
-
-
- 装修,这5个地方做了也是浪费钱
- 新买的房子,什么都想要,很容易用力过猛,装些杂七杂八的陈设,等过后又后悔。比如下面的5个设计,装修时根本不用做!不适合不说,还白白浪费了钱。为避免大家踩坑,今天我们就给您说道说道。1电视墙不是必须要...
- 汇设计汇装修
-
-
-
- 装脚踢线已经过时了?听听大家怎么说
- 一般来说,装修时都是需要安装踢脚线的。但是随着极简主义的盛行,踢脚线比较容易被忽略,有人觉得装了之后会显得空间矮小,也有人认为国外高大上的家居图片里都没有踢脚线,简单利落多美呀!踢脚线已经过时了吗...
- 房子装修
-
-
-
- 90后INS风婚房时尚元素拉满
- ▲ 使用面积100平,造价37万,项目坐标:四川成都,男女主是一对90后的小夫妻,作为他们的婚房,植入了他们喜欢的墨绿色元素来打造既复古又富有生活气息的空间氛围,希望在这里能勾勒出属于他们对于生活的感受,...
- 装修33天
-
-
-
- 简约风一室户,卧室巧用镜面看着大一倍!
- 这是一套位于圣彼得堡的公寓布局为一室一厅,共 65㎡设计师为年轻的屋主打造了一个简约而现代的家并通过推拉门将空间的使用率最大化玄关处是白色与木色的搭配明亮感和清新感扑面而来天花的灯带引导人的视线延伸...
- 内小宅
-
-
-
- [香港方黄集团新作]静谧无忧桃花源vs烈艳蓝金Dior
- 常德,古称武陵,一个浪漫主义情结贯穿了二千多年的历史名城。这里,是陶渊明笔下《桃花源记》的原型;这里,是向美向善、追求幸福生活的浪漫爱情神话故事~刘海砍樵的发源地;这里,还有充满人间烟火气的超美味...
- 火车头设计
-
-
-
- 110㎡现代简约,用太空漫步灰打造舒适通透的二人世界
- APP Store 排名第一的家居杂志阳光照进我们的房间 明媚而舒适 每个角落都是亦真亦幻的诗篇 本期屋主是一对年轻的夫妻,父母过来居住的情况比较少,因此将次卧打造成书房,也能为亲友留宿提供便利。整体用色比较...
- PChouse家居APP
-
