- [免费领取]餐厅设计必备平面布置方案合集来了!
- 来源:软装学堂
SO
又到了收集平面方案的时刻了~
今天
小编给大家带来一份
《餐厅空间平面布置方案合集-1100张》
希望对大家的工作有所帮助!
文末查看如何获取
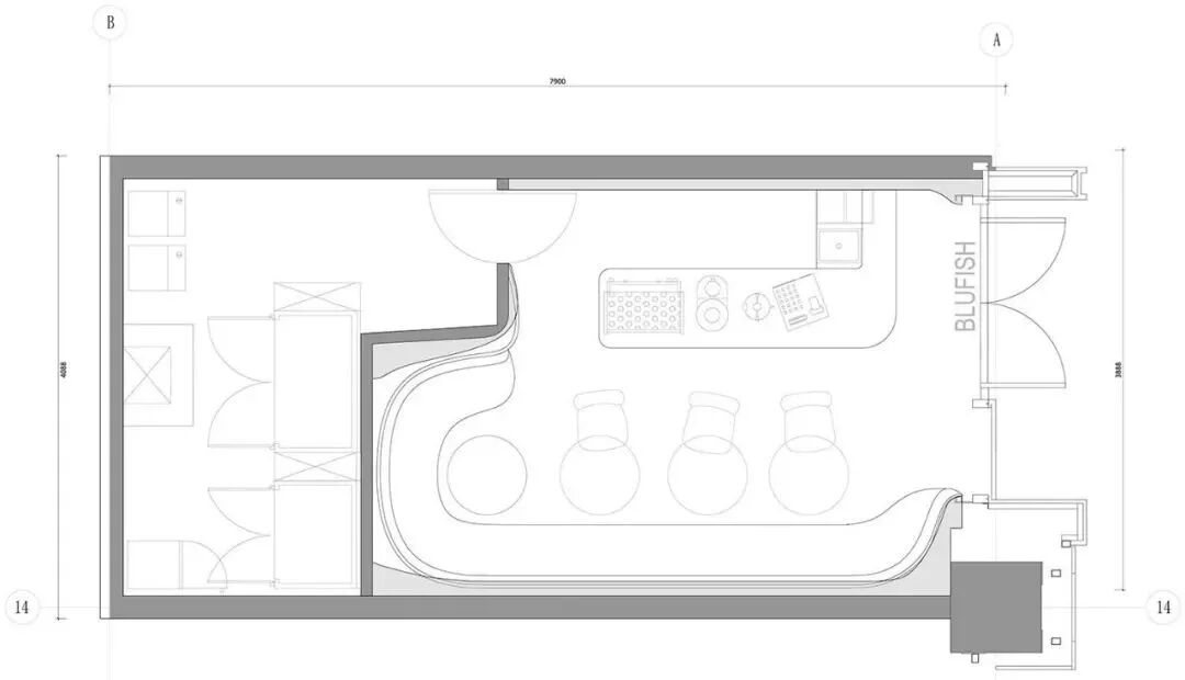
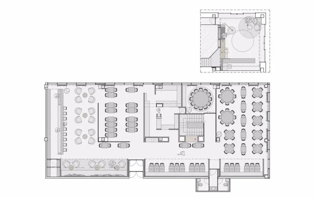
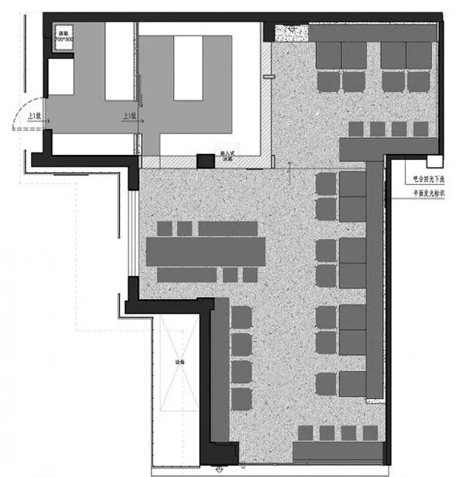
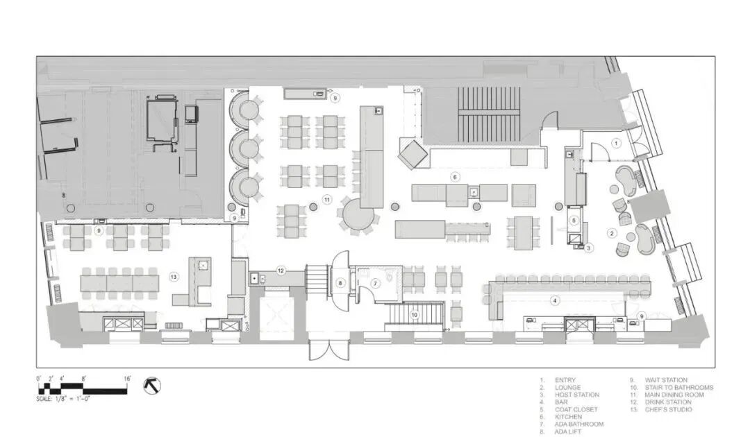
文件部分预览
餐厅平面图部分预览
今天就展示这么多吧
喜欢的小伙伴可以获取下载
获取方式:
添加客服微信
Sunhui0201
长按扫码添加
生活
- 
								- 
																		
- 展馆设计方案中的透视效果图具有空间表现力强、表现直观、易理解
- 发 现 生 活 中 最 美 好 的 设 计打开音乐聆听设计伽的声音用设计图纸来解释设计师自己的意图,是设计师与客户之间最直接有效的沟通方式。设计师不仅可以通过图纸向客户表达设计创意、施工方法和最终...
- 设计伽
 
- 
																		
- 
								- 
																		
- 看完这套98㎡小户型精装婚房,不禁感叹还是年轻人会装!
- 98㎡ | 3居室 | 轻奢这是一套面积为98平米的精装房装修案例,是用来做婚房的,屋主说如果要给家的需求排序,颜值必须第一!实用第二!在这个看颜值的年代,家也不例外!风格上,选择了业主喜欢的轻奢风,精致中...
- 潮流室内装修设计
 
- 
																		
- 
								- 
																		
- 客厅不看电视,装个书架设计,满屋书香气
- 在传统客厅的设计中,电视+沙发的组合是绝妙的搭配,电视墙更是居家设计的中心。而随着科技的发展与生活方式的改进,电视已经不再是居家必备的电器,尤其是在一些生活方式比较家庭前卫的家庭里,更是如此!当客厅不再...
- 汇设计汇装修
 
- 
																		
- 
								- 
																		
- 142㎡风雅新中式3室2厅,当代东方美学的完美演绎
- 福利提示:文章末尾可免费领取4套设计+报价每天仅限5个名额设计理念 Idea 这是一套新中式风格的装修案例,质朴的檀色木作,搭配黛蓝的亚麻面料,配以中式意型的精巧饰件,每一处细节都是好品味。希望这套装修...
- 装修效果图
 
- 
																		
- 
								- 
																		
- “森林奇境” 潮玩诗意的设计!
- 融侨·星誉,落址于福州南二环价值板块。其住区产品形态与年轻一代的生活观、居住观深度呼应,致力于打开品质生活的入口,呈现不同以往的潮流、艺术、新兴生活,其销售中心的软装由融侨装修联合众睦设计共同打造...
- 火车头设计
 
- 
																		
- 
								- 
																		
- 2年前还没这么火,现新房几乎都会装
- 图片来自:恒田设计自疫情后,有2大健康类家电购买持续上升。京东数据显示,2020年大年初一仅至初四,空气净化器成交额同比增长超过300%,净水器成交额同比达到100%以上。家用净水器和空气净化器,它们1个关系家...
- 装修33天
 
- 
																		
- 
								- 
																		
- 这八种花就适合养在夏天的阳光下,越晒越开…
- 导语 众所周知,夏天最不缺的就是烈日和暴晒。这时候在家养花,最好养些喜光耐晒又容易爆盆的,成活率高、颜值还美,例如凌霄花、死不了、铜钱草、仙人掌、蜀葵等等。今天,宠派养花大全小编就为大家分享几种...
- 宠派养花大全
 
- 
																		
- 
								- 
																		
- 袁隆平“豪宅”曝光:一生奉献,却过得简朴纯粹
- 来源:EEUD(ID:bolokeadesign)中国杂交水稻之父袁隆平院士永远的离开了我们91岁高龄的袁老毕生都献给了水稻事业耄耋之年也奋斗在水稻事业的一线不舍得歇一歇好好享受晚年谨以此文纪念袁老朴实无华却又誉满天...
- 烩设计
 
- 
																		
- 
								- 
																		
- 衣柜要不要做到顶?看完恍然大悟,做出了选择!
- ☞关注后回复:“卧室、餐厅、客厅、卫生间、厨房、衣柜、阳台、玄关、背景墙、儿童房、装修风格...”等都会收到相关内容,已覆盖99%家居装修的内容。关于衣柜,好像总有说不完的话题,讲不尽的知识。今天就来说...
- 创意家居生活通
 
- 
																		
- 
								- 
																		
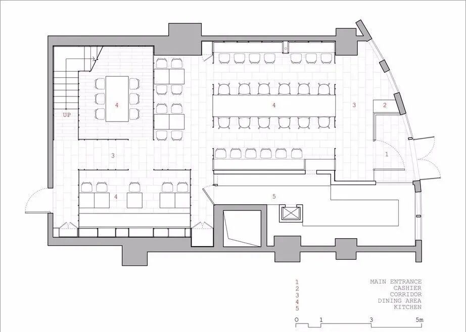
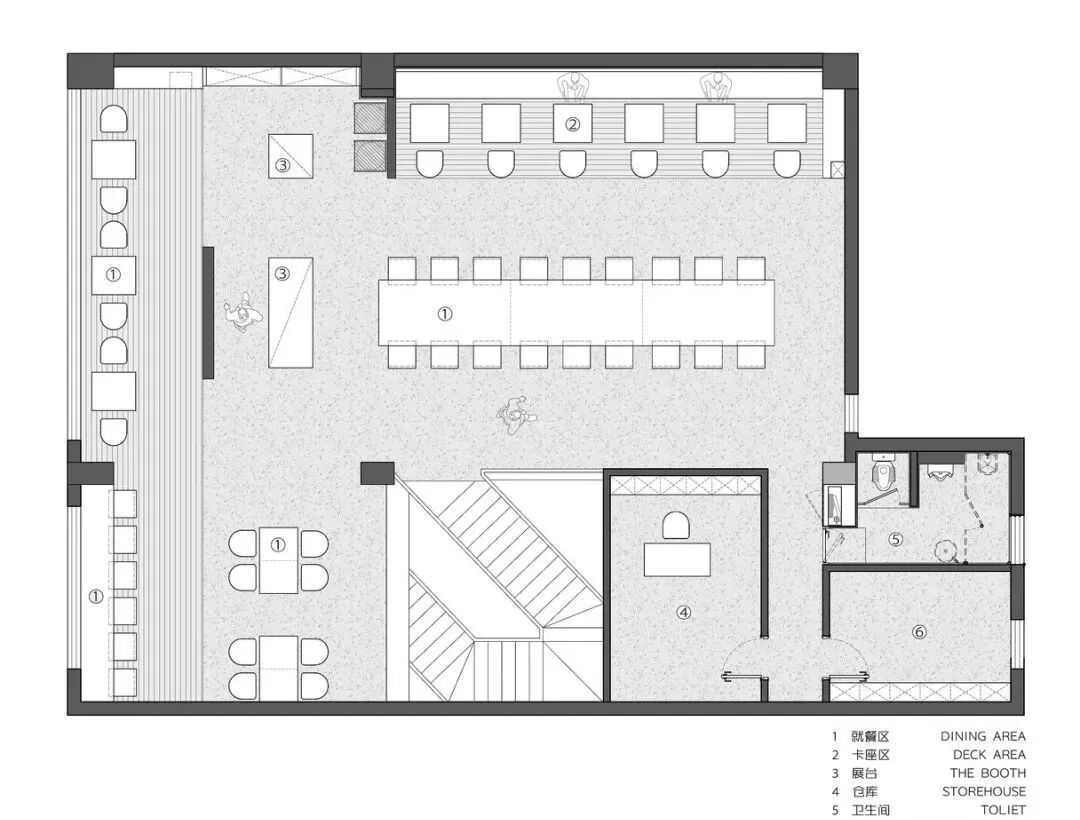
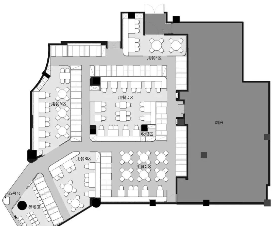
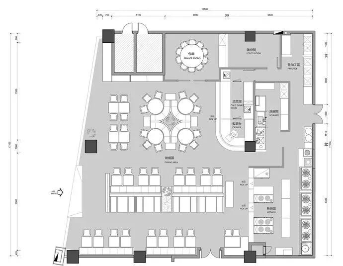
- [免费领取]餐厅设计必备平面布置方案合集来了!
- 在整套方案图纸中平面图的重要性不用我多说相信每位设计师小伙伴都知道想要做好平面布置图唯有多练,多看,多思考才能突破瓶颈打开一片新的思维天地进入更高的境界SO又到了收集平面方案的时刻了~今天小编给大家...
- 软装学堂
 
- 
																		
- 
								- 
																		
- 极简白的大别墅,全对称布局,出行还要配专属飞机?
- Polestar h概念设计科技在不断发展,一些新技术的出现,让未来人类的居住方式有了无限种可能,这是由 David Vultaggio 为 Polestar 极星做的一套概念方案,其中包括一座名为「Polestar h」的房子和新能源飞机
- 内小宅
 
- 
																		
- 
								- 
																		
- 温暖的墨西哥自然主义/Daniela Bucio Sistos
- 温暖的自然主义模糊内外边界的住宅LE NTURALISMEDANIELA BUCIO SISTOS隈研吾说,“地方是自然和时间的产物;这是最重要的方面。我认为我的建筑是一种自然的框架。有了它,我们可以更深入、更亲密地体验自然。”...
- 设计之旅
 
- 
																		
- 
								- 
																		
- 看了这套120平房的设计,我心理不平衡了,太羡慕了。
- 关注微信公众号:jiasjmt,家装案例每天更新! 今天齐家云云要给大家介绍一位业主,她家虽然有120平,却把客厅和卧室设计的很小,留出30平的空间做成了一个室外露台!看到效果后,不得不说也太好看了吧!真...
- 齐家一站式装修
 
- 
																		
- 
								- 
																		
- 同事男朋友自己装修84m的两居室做婚房,羡慕哭了!!
- 面积:84平米户型:两室两厅一厨一卫风格:北欧风客餐厅一体,目光直达阳台视野之内毫无遮挡光线好心情佳莫兰迪色的沙发背景墙,布艺环绕式的沙发,撞色轻便圆茶几 ,让空间不再空洞。阳台的玻璃推拉门,墨蓝色...
- 小尼宅配
 
- 
																		
- 
								- 
																		
- 老城区88m户型改造,混搭风设计,拆出了2室2卫2阳台1书房
- 看惯了单一的设计风格,想要给家来点不一样的味道,不如看看这套房子吧。本期屋主买了爸妈家隔壁的老城区房子,橘色+白色的混搭,把88m²的房子改造成了摩登家庭。客餐厅设计LIVING ROOM客厅主要以暖色调为基调...
- 九福家居装修
 
- 
																		
