零零客微文大全00ke.net

  • 220㎡复式三层住宅,半生烟紫半生奢,这一家四口的生活充满了浪漫主义色彩
  • 来源:家装室内设计

图片

家装室内设计 ,每日搜集分享国内外最前沿的家装设计、施工、建材等内容,成为您家装的好帮手!

图片


今天要分享的是一套面积为220平米的复式住宅,业主是一对来自上海的高尔夫教练,以及他们的两个小男孩宝宝组成的家庭。根据屋主的审美与对生活品质的追求,风格设定为都市轻奢,充满品质的浪漫主义生活~


图赏


图片

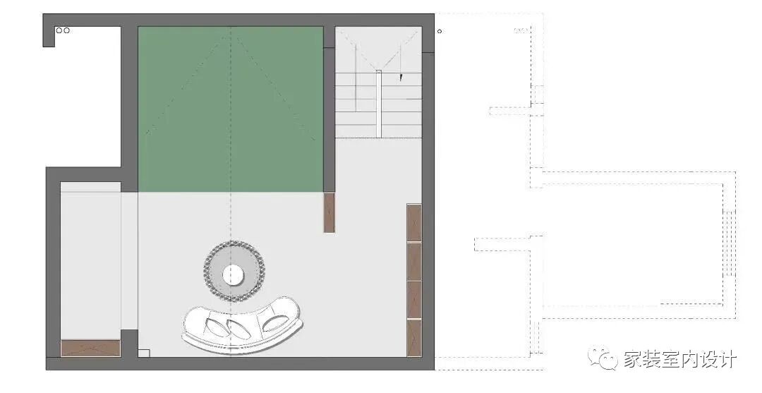
地下一层

图片

一楼

图片

▲二楼

这套住宅为复式三层结构,首先一层为起居室,设计客厅餐厅中庭,延伸花园的户外活动区域,朝北为书房客卧空间,希望打造一个完美的敞开式起居space,二层为就寝空间,独立三房双卫设计,茶水吧台设计解决夜间饮水的问题;客卫增加洗衣房功能,满足雨天等室内洗烘一体化需求;地下室设计为娱乐区,集合健身/室内高尔夫/储物/影音。三层功能明确且动静分明。

|  入户  |

图片
空间的第一幕玄关,入室便是原本的走廊,墙面原木色护墙+实木格珊营造层次感。
图片格珊后的的储物柜也体现对空间利用的小细节,链接三个空间的墙体采用弧形墙面过度,增加通过率和整体美观度,一举两得。

|  客厅  |图片

客餐厅是横厅布局,进门后收获的是明亮而开阔的视野,非常的大气。

图片
客餐厅除了必要家具,没有多余的布置,留出了足够宽敞的活动给小朋友玩耍,客餐厅外面还是一片场地,也是小孩子游戏的场所。

图片

客厅做了简单的吊顶,线条的加入,丰富了空间层次,金色装饰条的加入,显得更有质感,且吊灯的金色形成呼应。
图片
电视背景墙采用白色大理石与木质隔栅拼接,透着自然韵味,又充满高级感。


|  餐厅  |

图片
沙发后面是餐厅,背景的紫色与香槟色的融合与碰撞,布的柔性和金属的镜面完美演绎,让原本张扬的金属质感拥有了优雅的一面。
图片
图片

就像我们的生活,需要出彩也敢于浪漫和平淡。

图片
图片
餐厅与厨房之间设计岛台,做为准备餐区,可以与家人时刻保持互动。
图片
从楼梯看客餐厅,雅痞的橙色点缀着空间,带来视觉的惊喜。


|  厨房  |

图片

现代时尚的厨房空间,U型布局,地柜+吊柜+高柜的设计,实用性强,且让更个空间显得整洁有序。


|  主卧  |

图片
主卧温润的色系搭配,让空间返璞归真,用硬朗的金属线条匡示空间。
图片
图片
顶天立地的超高柜门诠释干练的生活品质,让空间画面更纯粹和干净。


|  儿童房1  |

图片
这间儿童房,整体的设计非常的简洁,没有太多花哨的东西做装饰,显得比较清爽雅致。

图片

通过卡通图案的床上用品,增添了一些童趣。


|  儿童房2  |

图片

求知,如同星辰大海般的人生;求索,如浩瀚宇宙似的胸怀;把这的一切深深刻画进小孩子的世界;童趣无谓少年游。
图片
图片


|  卫生间  |

图片
图片
卫生间整体的设计比较时尚质感,地面墙面都铺贴了大理石纹瓷砖,易于日常的清洁打理。

|  地下室  |

图片

业主两口子都是高尔夫教练,负一层设计了室内的高尔夫场地,墙面顶面都做了保护措施。
图片
很喜欢这款落日灯,开灯的效果很美,营造出浪漫唯美的空间氛围,让人沉醉。


更多凡尘壹品计作品,请回复“凡尘”查看!

图片

设计:凡尘壹品设计(杭州)

微信:13857193935

图片

欢迎业主、设计师、装修公司投稿

投稿邮箱:2977804771@qq.com

商务合作,请联系微信bmhardware01

图片

凡尘壹品设计

生活

  • 80㎡的小三居,实现三代人的“院坝式”家庭交互空间
    80㎡的小三居,实现三代人的“院坝式”家庭交互空间
    APP Store 排名第一的家居杂志小院、老树、红砖青瓦的老平房 黄昏下围坐一团话家常 本期案例是设计师一鸣为生活在家乡的父母和外公外婆打造的“院坝式”交互生活空间。这个概念源自于孩童时期的美好记忆,小院、...
    PChouse家居APP
  • 中式设计|时尚与底蕴之美
    中式设计|时尚与底蕴之美
    当传统中式遇到现代时尚,将传统韵味与现代大气相结合,极具现代的审美与风格,这也是对于艺术美学的不断追求。客厅|客厅偏现代质地的色彩,电视柜、茶几、沙发等线条明显简约,软装上搭配古典木质的背景墙,修...
    缪斯设计
  • 成都最新8大精品楼盘:融创+龙湖+旭辉+首创+中铁建+德商+金茂+绿城…..
    成都最新8大精品楼盘:融创+龙湖+旭辉+首创+中铁建+德商+金茂+绿城…..
    温馨提示:本次考察活动时间为4月17日、4月18两日,仅剩余少数名额,满员即止,感兴趣的朋友请及时联系张老师报名。精品楼盘考察活动 | 成都本次楼盘考察活动的时间为4月17日、4月18日两天(周六、周日) 共参...
    居住空间
  • 198㎡装成豪宅,估计我身边再也找不到第二个奇人,在餐桌旁挖了个花园
    198㎡装成豪宅,估计我身边再也找不到第二个奇人,在餐桌旁挖了个花园
    关注微信公众号:jiawyk,一起聊聊装修中的苦闷与快乐~ 说实话,我真的很羡慕朋友,人生大赢家,有房有车儿女双全。之前听他说,第二套房子也装修好了,还在室内挖了一个花园,可以种些花果蔬菜,好奇的我昨天去...
    小菜聊装修
  • 人养花、花也养人,客厅养花就选这5种,越养家里越干净,清雅又大气!
    人养花、花也养人,客厅养花就选这5种,越养家里越干净,清雅又大气!
    都说“人养花三年、花养人一生”,养花不仅能装点家居、美化环境,还能修身养性、陶冶情操、丰富我们的业余生活;客厅是一个家里的门面,不仅反映了主人的品位和爱好等,还是接待朋友的重要场所,因而在客厅养花...
    养花之家
  • 220㎡复式三层住宅,半生烟紫半生奢,这一家四口的生活充满了浪漫主义色彩
    220㎡复式三层住宅,半生烟紫半生奢,这一家四口的生活充满了浪漫主义色彩
    家装室内设计 ,每日搜集分享国内外最前沿的家装设计、施工、建材等内容,成为您家装的好帮手!今天要分享的是一套面积为220平米的复式住宅,业主是一对来自上海的高尔夫教练,以及他们的两个小男孩宝宝组成的家...
    家装室内设计
  • 适合养石板路旁边的6种低矮植物,耐旱又耐寒
    适合养石板路旁边的6种低矮植物,耐旱又耐寒
    适合养在路边的植物有很多,如果家里的院子铺上了石板路,那在石板路的旁边很适合布置下面这些匍匐生长的景观植物,它们可以在石缝中生长,会变成非常美丽的景观,互相搭配起来也非常棒。这些能生长在岩石旁边的...
    养花交流
  • 首发|SSD上上国际:三亚 2.2万㎡ 度假酒店,艺术高级灰、超有格调!
    首发|SSD上上国际:三亚 2.2万㎡ 度假酒店,艺术高级灰、超有格调!
    01 大堂 美丽的三亚湾椰梦长廊上,最美的一段自然风光尽收眼底,它是酒店更是生活,生活中的诗意和远方都集中在这个海湾,仿佛在这大美之中心胸也随之开阔。大堂空间手法延续了质朴纯粹的设计语言,将材质与设计...
    拓者设计吧
  • 装修墙面不要选这几种颜色
    装修墙面不要选这几种颜色
    图片来自:境屿空间研究室颜色搭配是装修是否和谐的一大重要因素,但这个问题实在太大了,书和理论你都能找到一大堆,普通业主又不是学美术的,有没有什么捷径呢?我认为掌握一些大方向是可以的。只要知道一些通...
    装修33天
  • “设计小技巧”——合集
    “设计小技巧”——合集
    “设计中我们经常会用到许多造型元素也会将这些元素整合运用因此也得到一些常用的设计小技巧今天总结分享过去文章中关于小技巧的合计希望能给你带来一点设计的灵感··文底投票讨论:《你会不会去总结一些设计小...
    工业设计俱乐部
  • TUESDAY/从容
    TUESDAY/从容
    设计师投稿通道开启啦!无论你是自由设计师,还是设计工作室或机构,只要作品足够精彩,有看点,通通砸过来!投稿通道:Kiki_xl_(添加请注明来意)// 更多好物推荐 //那些不过时的复古经典,几十块就能带回家新...
    时尚家居
  • 一层一户全平层,有细节的简约设计才叫精致
    一层一户全平层,有细节的简约设计才叫精致
    平层公寓这个名为「Dune Main Beach」的住宅楼,位于澳大利亚昆士兰州,由当地开发商 Andrews Projects 开发,Rothelowman 设计。大楼高 15 层,共有 11 套住宅单元,售价 480 万澳元起(约 23
    内小宅
  • 浅灰+原木,盐系简约
    浅灰+原木,盐系简约
    Zeworkroom Studio俄罗斯 · 莫斯科本案是Zeworkroom Studio的最新作品,位于莫斯科。浅灰色基调、温暖的原木,朴实的清水混凝土铺陈交汇出宁静、简约的氛围空间。淡浅的色彩为生活空间传递出一份如沐清风般的诗...
    设计之旅
  • 2021衣柜流行这样设计,收藏起来!
    2021衣柜流行这样设计,收藏起来!
    ☞关注后回复:“卧室、餐厅、客厅、卫生间、厨房、衣柜、阳台、玄关、背景墙、儿童房、装修风格...”等都会收到相关内容,已覆盖99%家居装修的内容。放置于卧室里面的衣柜,是我们每天都会打交道的家具之一。它...
    创意家居生活通
  • 别傻傻做榻榻米+书房了,这3种设计方案,效果惊人!
    别傻傻做榻榻米+书房了,这3种设计方案,效果惊人!
    ▲ 点击蓝字“装修百宝书”,你想知道的装修问题,答案全在这里啦!查看半包装修要花多少钱?查看全包装修要花多少钱?查看10万以下的装修方案因为生活方式的改变,房间小客厅大,成为了当下很多房子的主流,而...
    装修百宝书
<< 51 52 53 54 55 >> 

公众号 • 家装室内设计

Flag Counter