- 170㎡简约自由之家,感受触手可及的幸福!
- 来源:居住空间
空间有界,而生活无界。本案采用开放式的空间,一条动线贯穿所有功能区,空间既互相独立又保持联动,打造符合当代人自由意识的个性化新家。
移门的存在,搭建出了一个变换自如的开放空间,边界可有可无,收放有度,兼备流动性与私密性。打破常规的设计布局重塑了生活的形态,赋予建筑自由独特的生命力。
和谐的色调,统一的气质,不同材质的交织创造出多层次的温度与触感,赋予空间自然的呼吸与舒缓的心跳。
“建筑留存下来是因为它是艺术,因为它超越实用。”在功能之上,艺术的细节点缀让空间打上明显的个人印记。竖琴低吟,植物安静生长,充满人文气息与异域特色。
纯粹的空间布置化繁为简,带来简单的感知和心无旁骛的平静。开放的设计连通不同功能区,保证空间与动线的流畅、连贯。
餐厨区极致的用色和材质奠定空间干净的基调,或清新或拙朴的细节化解沉闷表达空间;同质不同色的设计区分功能让区,有对比有呼应。
不同程度的灰用明暗重塑空间的光影结构,让空间呈现深邃而又层次的感官效果。
深灰与白的色彩对比让空间有了视觉重心,也增添沉稳之感。干净有序的空间可独立,可与整体融合,自由随心。
原始结构图
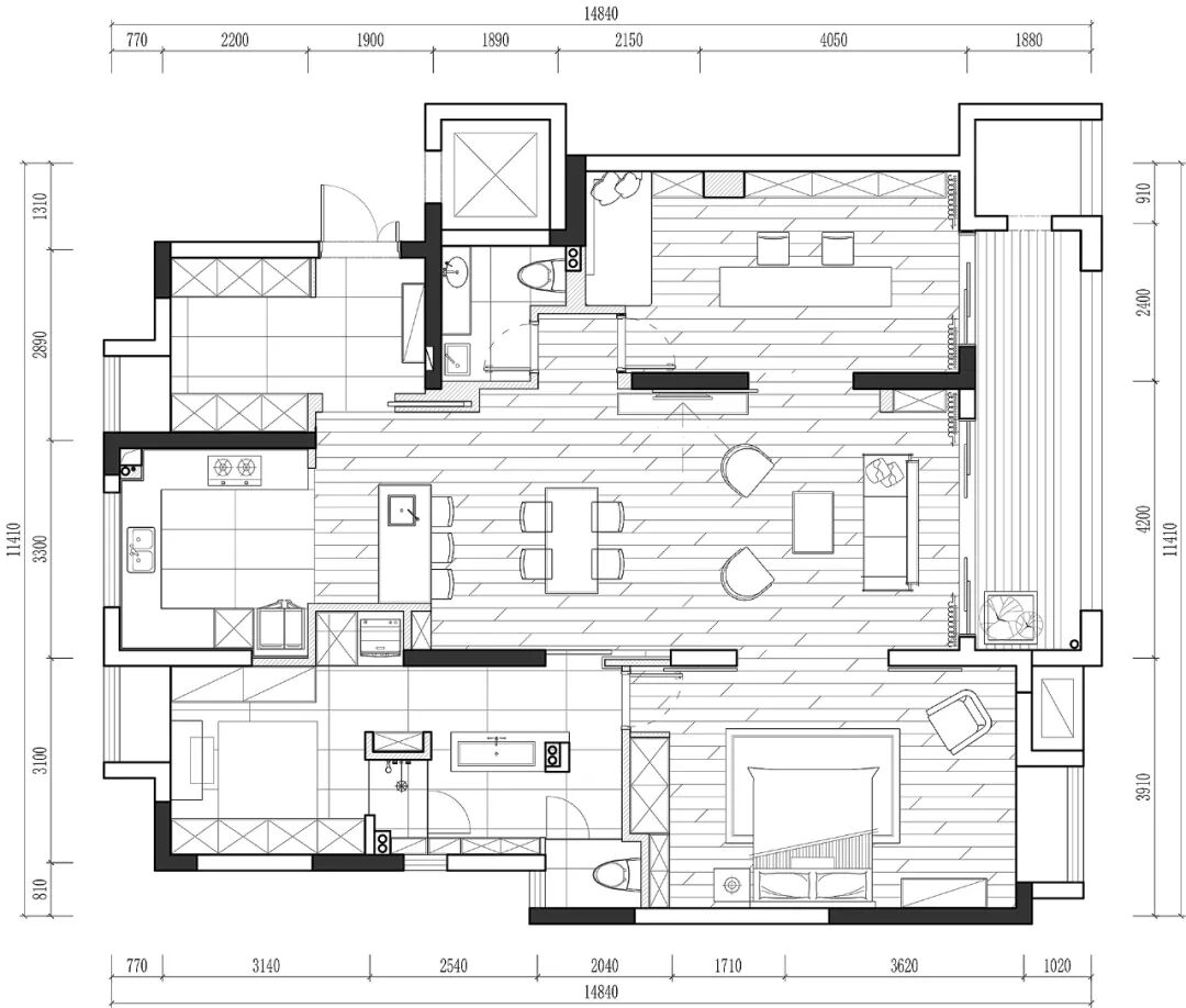
平面布置图
[楼盘考察推荐]
杭州8大精品楼盘考察活动
6月5日-6月6日
名额有限,满员即止
点击下方图片查看活动详情
温馨提示:本次考察活动时间为6月5日、6月6日两日,名额有限,满员即止,感兴趣的朋友请及时联系楚老师报名。
[好书推荐]
新微设计10大“最美系列”设计丛书
室内+建筑+景观+民宿+酒店+庭院
[全能设计师必备丛书]
[公司图书采购必选]
点击下方图片查看详情
▼
每一本图书各具特色,围绕着“创造更美好的人居环境”逐层展开,从建筑、景观、室内等不同的设计角度,阐述着我们一直所探寻的居住理想,是一套不错的全领域设计丛书。欢迎大家参与支持,您的支持是我们不断前行的动力。
[好书推荐] 新微设计10本“大美系列”丛书之 乡村文旅规划设计|政策+案例 《大美小镇》+《中国乡村振兴研究报告》 特色小镇与田园综合体 · 优秀乡村建设实践 点击下方图片订购该图书 ▼
大家推荐一个超棒的室内设计号
居住空间 | 新锐室内设计平台
长按下方二维码并识别,即可添加关注
注:本文来源建E室内设计网, 一野设计,感谢作者的悉心编写,仅用于学习交流。
生活
-
-
- 在阳台上种花的亲,快把花盆搬进屋吧210526
- 如果连阳台也没有,是不是就不能种花了?不!!想在家里种点花花草草,除了阳台,还能这样种呀!既不占空间还显得特别有创意~ 把植物吊起来▼当家里空间不足的时候,可以考虑将植物垂直悬挂或是挂在墙壁上。毕竟...
- 旧物利用家
-
-
-
- 花店买的盆栽栀子花,搬回家后花苞就不断掉落,想养活太难了
- 栀子花最让人惊叹的就是那芬芳靓丽的花朵,不过大部分人都认为在室内是养不好栀子花的,事实上也是这样,绝大部分人都无法在室内养好栀子花,不是掉叶子,就是植株枯萎。在室内也想要种栀子花盆栽,那肯定要提供...
- 养花交流
-
-
-
- 170㎡简约自由之家,感受触手可及的幸福!
- 关 于 空 间 的 设 计 O N T H E D E S I G N O F S P A C E“边界所在即所求。——克尔斯滕·吉尔斯” 空间有界,而生活无界。本案采用开放式的空间,一条动线贯穿所有功能区,空间
- 居住空间
-
-
-
- 住在中国人的小院子,过着中国人幸福的小日子
- 每个人都憧憬着一个属于自己的心灵花园,它是人们内心最隐密,最放松和最惬意的理想场所,很多人从小就生活在老宅子里,夏天的夜晚在院子里扇扇乘凉,听老人讲三国、说水浒,中式庭院才是每个人都梦想的居所。院...
- 山东大江园林
-
-
-
- 2021年最新全案设计
- 「系统的学习,才是有效的学习」软装设计师从业多年,但仍缺乏完整系统知识框架。基于以上设计师需求,烩设计联合“上海交通大学” “中国软装设计研究中心” 研发出《情境化软装全案实战高级研修课程》。课程汇...
- 家装室内设计
-
-
-
- 首发|夏承龙:240㎡极简私宅,克制而热烈!
- 平淡是生活的常态,是冷冷清清的样子。我们得学会在冷清中,保持清醒与丰盈,活出我们的风风火火。—— 木心屋主俩人都是从事金融工作,女主人温和优雅,男主人沉稳低调,平时工作都比较繁忙,所以希望家在满足...
- 拓者设计吧
-
-
-
- 55㎡小公寓,一种有调性的美!
- 舒适设计 本案来自Dzerassa Design新作,位于莫斯科55㎡小公寓,居住者崇尚简约舒适的生活方式,安宁静谧,纯粹干净。整体风格以白色为基底,营造一种有调性的美,追求舒适和谐的审美。设计师选用现代极简风格,...
- 美美住
-
-
-
- 105㎡死磕收纳和颜值,4室1厅精髓全都藏在这套「日式」设计里
- 要论收纳,日式风格,无疑是全网公认的最硬核设计。不仅可以协调屋里的收纳功能,还能平衡空间的舒适感。本期屋主105㎡三室一厅的房屋里,用了百搭的木色+白色+灰色的日式,打造出日式风格独有的韵味。不仅减轻...
- 九福家居装修
-
-
-
- 90后小夫妻105㎡住宅,敞亮通透,颜值在线,最大化自然光!
- 中国设计微刊,专注「家居、时尚、创意」设计分享 设计空间 | 书画艺术 | 生活美学喜欢设计点击上方 “空间设计 ” → 点击右上角“...” → 点选“设为星标 ★ ”空间设计出品┃转载请注明来源来源:空间设计...
- 空间设计
-
-
-
- 售楼处|童话治愈系美学空间
- 我们进行有温度的设计,IP形象姆明的引入,为空间搭建了更多场景与故事性,与主人公一起开展一段奇妙的童话小镇之旅,在售楼部的营销属性基础上,丰富多元化的体验感,感受童话治愈系的美学空间,传达幸福与温馨...
- 火车头设计
-
-
-
- 78平小户型二居室原木风,手枪户型也能设计得好看!
- 面积:78平米户型:两室两厅一厨一卫风格:原木风巧妙的设计之下避免了采光不好,空间压抑的问题打造一个实用又舒适的小窝平面布置图入户玄关设计嵌入式鞋柜,一侧做开放式书架,顶面安置几盏筒灯,增加空间的明...
- 小尼宅配
-
-
-
- 74㎡两人居丨打破封闭厨房的束缚,将空间化零为整
- APP Store 排名第一的家居杂志生活简单就迷人人心简单就幸福 笑容学会简单,简单生活 本期案例屋主是一对儿年轻人,除了日常规律的上下班外,他们是很喜欢在休息日里把好朋友喊到家里一起玩儿的,可以一起做饭、...
- PChouse家居APP
-
-
-
- 现代设计|多材质组合打造惊喜别墅生活。
- ◆-现代设计-以多种材质表现生活空间◆项目坐标:尼德兰项目面积:200㎡设计公司:缪斯设计设计师:赵敏明◆01多材质组合打开空间联动之间的情感本案屋主是一家三口喜欢现代时尚的艺术表现形式客厅布局是开放式...
- 缪斯设计
-
-
-
- 杭州110㎡程序员的家,蓝白空间点缀亮色,简约不沉闷!
- 家的要素, 让城市里忙碌的年轻人住得更好。说在前面屋主是互联网公司程序员,工作之余,他并不“技术宅”,平时热爱运动和旅行、沉迷历史与博物馆、爱看书,是个注重生活细节、严谨细心的大男生。对于空间的风...
- 家的要素
-
-
-
- 样板间|原木色+经典白,天作之合的CP既视感,惊艳空间!
- 全文约:1200字,阅读时长约:4分钟现代简约风格里,原木材质频频出现,原木色与白色搭配简约清爽,又带有原始的气息,给人放松惬意的居住体验!今天小乖就为大家介绍两套实景样板间——原木风定制系列柜体。实...
- 一统国际家居
-
