- 杭州夫妻买下108㎡二人居,榻榻米开放空间、衣帽间、西厨水吧..氛围感十足!
 - 来源:家的要素
 
家的要素,
让城市里忙碌的年轻人住得更好。
屋主徐女士和鲁先生是一对90后夫妻,女屋主在外是女强人,在家十分贤惠,做饭一流,男主人性格随和。目前只有夫妻俩住,未来计划要一个宝宝,对于理想中的家,他们希望满足功能需求的同时,营造想要的氛围感。
设计师首先解决采光和空气流通的问题,让光线、气流成为居住者与空间最好的连结,细腻的光影变化也让屋主拥有更丰富的居家体验。
坐 标:浙江 杭州
户 型:三室
面 积:108㎡
设 计:無正设计
费 用:21w
▲ 原始户型图
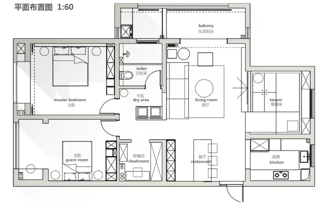
▲ 平面布局图
5. 原始公卫改造成衣帽间
客厅
公共空间模糊不同功能区的界线感,阳台一分为二,一部分纳入客厅,扩大两个区域各自体量,空间尺度感舒适而自在。
在设计中,自然、安静、朴质的氛围是构思的主要方向,材质色彩上,以黑白灰和原木为整个空间的基调。
沙发背景墙进行了分色设计,黑白色块的碰撞点缀木色进行中和,自然简约。
沙发靠近卫生间干区,用木格栅做隔断,提升空间的通透性。
多功能房
▲ 电视机的矮墙背后是多功能房
将靠近客厅的次卧改成榻榻米开放性空间,兼作休闲茶室,未来有了宝宝也能增加玩耍活动区域,同时方便在客厅的家人照看互动。
餐厅
▲ 洞洞板,收纳厨房用品
餐厅设置2米长餐边柜,满足储物需求,同时作为西厨水吧台使用。
餐桌椅+长凳,匹配入户区的功能尺度。餐厅作为家里的重要社交场所,餐桌不仅满足来客时一起聚餐,也是一个临时办公场所。
▲ 厨房望向餐厅
暖色系灯光+长虹玻璃透视,营造朦胧舒适的空间氛围。
厨房
厨房采用U型布局,动线合理,冰箱、微波炉等嵌入柜体,其高度也贴合人体工学,使用很方便。
餐厨区之间用细框长虹玻璃移门作为隔断,隔离油烟的同时不阻碍光线穿透。
卧室
主卧设计以满足基本功能需求为主,没有过多装饰层面的考虑,让生活回归真实、简单的状态。
取消传统的床头设计,改为一体式靠背,灰、白+卡其色,营造冷静而克制的睡眠环境。
用木色藤编矮凳替代传统床头柜,暖色氛围壁灯中和了黑白灰的冷酷。木质、藤编、绿植等元素,为空间带来自然之意。
▲ 专属办公区
打通主卧原有的窗户并往外扩宽,引入充足采光,临窗增加办公区和储物功能。
书桌两侧增设开放格,作为书架使用。
▲ 空间细节
卧室不仅是私密休息区,也是一个探索内心诉求的场所。
次卧
▲ 过道望向次卧
动区和静区通过地面不同的材质分隔,灰白色调的小花砖简单低调,与整体空间的调性相符。
▲ 床头一角
衣帽间
▲ 原客卫改造为衣帽间
开放式的艾格特置物架解决衣物收纳的问题,一目了然,方便穿搭。
相比传统衣柜,不仅节省预算,还可以根据储物需求灵活调节。
主卫
改变主卧的进门方向,将一部分空间划给主卫,实现干湿分离,解决主卫的采光问题,同时又保证了室内南北空气流通。
▲ 木格栅后是客厅
干区双台盆设计,提高早晚高峰期的使用效率。
台盆上方悬吊两面梳妆镜,轻盈精致,又能起到一定的隔档作用。
淋浴区的入墙式花洒简洁清爽,颜值在线,一侧设计壁龛用于放置沐浴用品。
设计师微信号:18356699747
生活
- 
								
- 
																		
 - 136㎡现代北欧3室2厅,气质出众的温暖美家
 - 福利提示:文章末尾可免费领取4套设计+报价每天仅限5个名额设计理念 Idea 这是一套现代北欧风格的装修案例,每一个细节的铺排,都呈现出令人感觉舒适的气氛。希望这套装修案例能给大家带来一些灵感。美家信息 ...
 - 装修效果图
 
 - 
																		
 - 
								
- 
																		
 - 杭州夫妻买下108㎡二人居,榻榻米开放空间、衣帽间、西厨水吧..氛围感十足!
 - 家的要素, 让城市里忙碌的年轻人住得更好。说在前面屋主徐女士和鲁先生是一对90后夫妻,女屋主在外是女强人,在家十分贤惠,做饭一流,男主人性格随和。目前只有夫妻俩住,未来计划要一个宝宝,对于理想中的家...
 - 家的要素
 
 - 
																		
 - 
								
- 
																		
 - 如何打造精致无味卫生间?把握3个原则,颜值高上档次又实用
 - 在我们现在的楼房中,卫生间还是有很多都不会做窗户的。这就有很多的缺点,比如说没有阳光照射。光线会比较昏暗,卫生间里面的潮气也比较难挥发,没有窗户,几乎没有什么通风效果,居住久了容易出现难闻的气味和...
 - 汇设计汇装修
 
 - 
																		
 - 
								
- 
																		
 - 封闭阳台就养这几种花,一年四季都有花看!
 - 很多花友会在后台给小编留言,问小编:我家是封闭阳台能养月季吗?长寿花能在封闭阳台里养吗?我家阳台是封闭的,能养什么花啊?等等,今天小编就整理了一下封闭阳台适合养的花卉品种,养好了一年四季都有花看。...
 - 养花之家
 
 - 
																		
 - 
								
- 
																		
 - 房子拆改要谨慎,承重墙与非承重墙,一定要分清!
 - 承重墙是墙体上无预制圈梁的墙面,户型图上承重墙的墙体厚度明显画得比非承重墙要厚,厚度一般是24厘米,非承重墙则为10~15厘米。外墙通常都是承重墙,和邻居共用的墙也是承重墙。一般非承重墙在卫生间、储藏间...
 - 潮流室内装修设计
 
 - 
																		
 - 
								
- 
																		
 - 扔掉客厅后,家又大又实用~
 - 当沙发不再是客厅标配,电视不再是C位,茶几似有若无...客厅不再是客厅,它还可以怎么玩呢?按照当前的正常市价来说,不少人家里的客厅都是最大的局部空间,这个花最多钱,预留面积最大的空间,经常被用来干什么...
 - 时尚家居
 
 - 
																		
 - 
								
- 
																		
 - 玄关别再乱装修,这几个地方容易被忽视,但却影响着全家的财运!
 - 玄关别再乱装修,这几个地方容易被忽视,但却影响着全家的财运!人的一生中有几件大事,其中买房装修就是其中一件,房子是要住几十年的,所以装修是万万不能忽视的,尤其是一些细节的地方,如果出错就会为以后的...
 - 装修家居风水
 
 - 
																		
 - 
								
- 
																		
 - 99㎡可开可合,自带漂浮流动感的一人居
 - APP Store 排名第一的家居杂志静观其中 春夏秋冬是习以为常的更迭 起承开合是边缘模糊的交织 光影蹀躞斑驳陆离 本期案例屋主是一人居住,偶尔父母会来小住几日。结合屋主当下及日后可能产生的需求,整体场域围绕...
 - PChouse家居APP
 
 - 
																		
 - 
								
- 
																		
 - 优秀室内入围项目公布|GHDA环球人居设计大奖
 - GHDA环球人居设计大奖Global Habitat Design Awards【2020-2021年度】室内入围项目展示(第一轮&第二轮、第三轮)请在文末为您喜欢的项目投票感谢您的参与支持恭喜以下室内项目成功入围GHDA环球人居设计大奖!
 - 居住空间
 
 - 
																		
 - 
								
- 
																		
 - 现代设计|美学风格知我意。
 - 有温度的打造空间让空间简约有序,克制又有张力,简单的色彩中间用设计结构去丰富居家的层次感与舒适度。本案例结构多层次,线条构成空间的艺术感,以黑,白两色形成了整体低调,简约,明朗的氛围。家具的选择上...
 - 缪斯设计
 
 - 
																		
 - 
								
- 
																		
 - 96㎡现代纯净白色+温润木色,静谧优雅、简约大气!
 - 中国设计微刊,专注「家居、时尚、创意」设计分享 设计空间 | 书画艺术 | 生活美学喜欢设计点击上方 “空间设计 ” → 点击右上角“...” → 点选“设为星标 ★ ”空间设计出品┃转载请注明来源来源:空间设计...
 - 空间设计
 
 - 
																		
 - 
								
- 
																		
 - 125m简约现代风,花9万元装修的三居室,太赞了!
 - 面积:125平米户型:三室两厅一厨一卫风格:现代简约风各个空间用不同的材质来演绎打造一个宽敞又舒适的家图赏入户玄关走廊,一侧安装顶天立地鞋柜,搭配大理石墙面,结合金属元素的挂衣杆,凸显屋主高档次的品...
 - 小尼宅配
 
 - 
																		
 - 
								
- 
																		
 - 烟火人居之美好|HID赫尔贝纳设计
 - “我们没有故事,因为我们自己本身就是一个活着的故事。” 爱马仕品牌文化以及所传达的价值观精髓,使得HID赫尔贝纳对于烟火人居的设计有了更加深入地思考。艺术提取:运用潘通色彩发布的2020年度色彩—经典蓝,...
 - 室内设计秀
 
 - 
																		
 
