- 烟火人居之美好|HID赫尔贝纳设计
 - 来源:室内设计秀
 
“我们没有故事,因为我们自己本身就是一个活着的故事。” 爱马仕品牌文化以及所传达的价值观精髓,使得HID赫尔贝纳对于烟火人居的设计有了更加深入地思考。
艺术提取:
运用潘通色彩发布的2020年度色彩—经典蓝,搭配爱马仕橙,加入深红色、金色点缀,延伸意大利艺术家(Gianpaolo Pagni詹保罗·班尼)和(Philippe Mouquet菲利普·莫凯)全新陶瓷系列设计概念,通过跃动斑斓色彩与灵动几何线条向品牌马术历史致敬。设计师巧妙地将Avalon vibration 羊毛羊绒混纺毛毯 、提花编织毯结合骑师真丝服饰和马毯彩色条纹组成H字样,演绎空间与生活微妙的化学反应。
“万丈红尘诗书画,烟火人居烟酒茶。”在居住空间里,餐厨区是最具烟火气的地方。动线开端入目便是挨着落地窗的餐厅,阳光洒落一地,所有的忙碌都慢了下来,享受一场美食的修行,感受夏天冰激凌在口腔里融化的柔软,听微风拂过树叶的爱恋细语。
在陈设饰品中引用晶体材质使整个空间呈现精致时尚的品味,精选布艺融合水晶及大理石材质,焕发大气奢华的气韵来。鼠尾草乘着初夏的清风摇曳金橘色的花浪,热情浪漫。
热烈张扬的爱马仕橙,艳丽高调,于黑白灰的空间基调里找到平衡,结合超大落地窗的自然采光,撞上富含自然肌理的大理石,擦出耀眼、雅致的花火,绽放在这方圆空间里,绚烂又带着收敛。金属与皮革的跨界碰撞,秀出高贵女王气场。
在灰白的肌底中,邂逅阳光张扬的爱马仕橙,散发出活跃的意蕴。细微之处,不同色彩与材质的融合碰撞,展现空间的轻奢姿态。来自(CLASSICOM)的家具品牌、艺术摆件、以独特造型的艺术装置展现精致美感, 体现生活艺术与现代生活美学的情趣调性。
热烈得像盛夏加州的阳光,毫不吝啬的灿烂,无拘无束的肆意。引入窗外大自然的盎然绿意,又如海风拂面,带着丝丝清凉,舒适惬意。
每一处细节都是设计师对烟火人居艺术美化的细腻思考。
背景纹理以优雅的姿态在温暖的午后舞动,渲染活跃、热烈的氛围。斑驳交错的光影温柔了岁月,朦胧的美感如梦似幻。
男孩酷爱速度的激情,那是一个赛车手的雏形。根据家庭需求实现空间利用最大化将空中花园改为儿童房,设计师以颜色的力量搭配不同的材质营造了一个赛车主题的艺术空间,在自成一方的天地里,男孩自由地翱翔在自己的梦想中,享受日益增长的热情。
生活千篇一律日复一日,因酸甜苦辣的百味调和而精彩,淡雅简约的空间因搭配炫丽色彩融入轻奢元素的装点更添层次与质感,华丽的品味格调入木三分,演绎唯美温馨、热情浪漫的烟火人居生活。
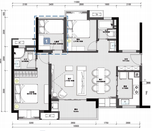
▼项目平面图
❒
项目名称:上坤佛山·云峯壹号
项目地址:广东省佛山市南海区云峰路与建沙路交叉口
项目类型:样板间89户型
项目面积:89㎡
硬装设计 : 广州赫尔贝纳室内设计有限公司
软装设计兼执行:广州赫尔贝纳室内设计有限公司
开 发 商:佛山江坤置业有限公司
项目摄影:一千度视觉
-END-
171㎡新房设计,温馨舒适,太喜欢了!
新家这样设计 简约,有范儿!
北京2.2亿豪宅!17米高的吊灯,卧室可买二环一套房!
生活
- 
								
- 
																		
 - 136㎡现代北欧3室2厅,气质出众的温暖美家
 - 福利提示:文章末尾可免费领取4套设计+报价每天仅限5个名额设计理念 Idea 这是一套现代北欧风格的装修案例,每一个细节的铺排,都呈现出令人感觉舒适的气氛。希望这套装修案例能给大家带来一些灵感。美家信息 ...
 - 装修效果图
 
 - 
																		
 - 
								
- 
																		
 - 杭州夫妻买下108㎡二人居,榻榻米开放空间、衣帽间、西厨水吧..氛围感十足!
 - 家的要素, 让城市里忙碌的年轻人住得更好。说在前面屋主徐女士和鲁先生是一对90后夫妻,女屋主在外是女强人,在家十分贤惠,做饭一流,男主人性格随和。目前只有夫妻俩住,未来计划要一个宝宝,对于理想中的家...
 - 家的要素
 
 - 
																		
 - 
								
- 
																		
 - 如何打造精致无味卫生间?把握3个原则,颜值高上档次又实用
 - 在我们现在的楼房中,卫生间还是有很多都不会做窗户的。这就有很多的缺点,比如说没有阳光照射。光线会比较昏暗,卫生间里面的潮气也比较难挥发,没有窗户,几乎没有什么通风效果,居住久了容易出现难闻的气味和...
 - 汇设计汇装修
 
 - 
																		
 - 
								
- 
																		
 - 封闭阳台就养这几种花,一年四季都有花看!
 - 很多花友会在后台给小编留言,问小编:我家是封闭阳台能养月季吗?长寿花能在封闭阳台里养吗?我家阳台是封闭的,能养什么花啊?等等,今天小编就整理了一下封闭阳台适合养的花卉品种,养好了一年四季都有花看。...
 - 养花之家
 
 - 
																		
 - 
								
- 
																		
 - 房子拆改要谨慎,承重墙与非承重墙,一定要分清!
 - 承重墙是墙体上无预制圈梁的墙面,户型图上承重墙的墙体厚度明显画得比非承重墙要厚,厚度一般是24厘米,非承重墙则为10~15厘米。外墙通常都是承重墙,和邻居共用的墙也是承重墙。一般非承重墙在卫生间、储藏间...
 - 潮流室内装修设计
 
 - 
																		
 - 
								
- 
																		
 - 扔掉客厅后,家又大又实用~
 - 当沙发不再是客厅标配,电视不再是C位,茶几似有若无...客厅不再是客厅,它还可以怎么玩呢?按照当前的正常市价来说,不少人家里的客厅都是最大的局部空间,这个花最多钱,预留面积最大的空间,经常被用来干什么...
 - 时尚家居
 
 - 
																		
 - 
								
- 
																		
 - 玄关别再乱装修,这几个地方容易被忽视,但却影响着全家的财运!
 - 玄关别再乱装修,这几个地方容易被忽视,但却影响着全家的财运!人的一生中有几件大事,其中买房装修就是其中一件,房子是要住几十年的,所以装修是万万不能忽视的,尤其是一些细节的地方,如果出错就会为以后的...
 - 装修家居风水
 
 - 
																		
 - 
								
- 
																		
 - 99㎡可开可合,自带漂浮流动感的一人居
 - APP Store 排名第一的家居杂志静观其中 春夏秋冬是习以为常的更迭 起承开合是边缘模糊的交织 光影蹀躞斑驳陆离 本期案例屋主是一人居住,偶尔父母会来小住几日。结合屋主当下及日后可能产生的需求,整体场域围绕...
 - PChouse家居APP
 
 - 
																		
 - 
								
- 
																		
 - 优秀室内入围项目公布|GHDA环球人居设计大奖
 - GHDA环球人居设计大奖Global Habitat Design Awards【2020-2021年度】室内入围项目展示(第一轮&第二轮、第三轮)请在文末为您喜欢的项目投票感谢您的参与支持恭喜以下室内项目成功入围GHDA环球人居设计大奖!
 - 居住空间
 
 - 
																		
 - 
								
- 
																		
 - 现代设计|美学风格知我意。
 - 有温度的打造空间让空间简约有序,克制又有张力,简单的色彩中间用设计结构去丰富居家的层次感与舒适度。本案例结构多层次,线条构成空间的艺术感,以黑,白两色形成了整体低调,简约,明朗的氛围。家具的选择上...
 - 缪斯设计
 
 - 
																		
 - 
								
- 
																		
 - 96㎡现代纯净白色+温润木色,静谧优雅、简约大气!
 - 中国设计微刊,专注「家居、时尚、创意」设计分享 设计空间 | 书画艺术 | 生活美学喜欢设计点击上方 “空间设计 ” → 点击右上角“...” → 点选“设为星标 ★ ”空间设计出品┃转载请注明来源来源:空间设计...
 - 空间设计
 
 - 
																		
 - 
								
- 
																		
 - 125m简约现代风,花9万元装修的三居室,太赞了!
 - 面积:125平米户型:三室两厅一厨一卫风格:现代简约风各个空间用不同的材质来演绎打造一个宽敞又舒适的家图赏入户玄关走廊,一侧安装顶天立地鞋柜,搭配大理石墙面,结合金属元素的挂衣杆,凸显屋主高档次的品...
 - 小尼宅配
 
 - 
																		
 - 
								
- 
																		
 - 烟火人居之美好|HID赫尔贝纳设计
 - “我们没有故事,因为我们自己本身就是一个活着的故事。” 爱马仕品牌文化以及所传达的价值观精髓,使得HID赫尔贝纳对于烟火人居的设计有了更加深入地思考。艺术提取:运用潘通色彩发布的2020年度色彩—经典蓝,...
 - 室内设计秀
 
 - 
																		
 
