- 145㎡三居室,简约而有格调!
 - 来源:室内设计秀
 
现代简约
Taras Belik为一个有两个孩子的家庭设计了这间公寓,面积145㎡,时尚的现代简约风格,重视舒适性和人体工程学,美观与功能性的平衡。
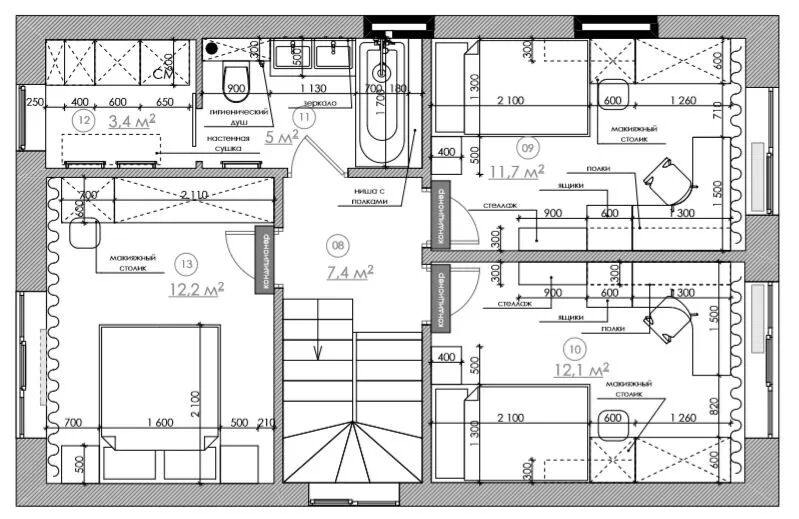
平面图
▽
为了使屋主在这里感到舒适,设计师将厨房,餐厅和客厅合并为一个明亮的空间。绿色苔藓背景墙在照明的作用下显得格外醒目,绿色与原木纹理完美地融为一体。
室内充满了光线,家具墙壁的灰色调看起来并不阴沉。Telezona配有宽大的转角沙发和几张现代茶几显得特别舒适。
厨房有两个烹饪区,大理石质感的岛台内置炉架,这里可以做饭或享用早餐的地方,同时厨房的存储系统功能非常强大,厨房-餐厅-起居室的照明也很简约。
极简主义风格的玄关,优雅的桌子安装在落地镜附近,地板上铺有与厨房区域相同的大尺寸无缝瓷质瓷器,其色调为浅米色。
宾客浴室以木材和冷混凝土搭配,在这些材料的作用下,显得非常高档。浴室的照明是根据不同的场景决定的,天花板上通常使用的嵌入式灯,以及带有LED灯带的隐藏照明。
温暖的木材和柔和的灰色二重奏,尤其是在卧室中。所有家具和照明构成都沿着中轴线排列,绝对对称。睡眠学家说,对称性使人放松,感到自信和保持平衡。
一个独立的衣帽间不仅是女主人的梦想,也是男主人的梦想。衣服,鞋子,箱包和帽子,一切都将保持井井有条。
主人的浴室全是大理石,其设计巧妙地模仿了天然石材的质感。具有更罕见的浅灰色纹路和棕色纹路,给室内增添了现代感。
设计师在该区域增加了一个小的“空间”,在那里设置了一个洗衣房。洗衣房通过一个小隔断和一个玻璃推拉门与浴室隔开。
男孩房珊瑚红与奶油色基调相结合,显得时尚新潮。浅色阴影在视觉上扩大了房间的空间。
精致而优雅的女孩房,以粉色为主,整个空间没有多余的装饰,似乎带有点不切实际,但对于女孩来说,粉色却是对她们最真实的颜色。
设计师
Taras Belik
Taras Belik,室内设计师,BELIK工作室的创始人,对使用天然材料,不寻常的纹理以及表面触感舒适的现代室内装饰感兴趣,对设计领域的创新技术感兴趣,有助于创造舒适的家居空间。
其他新作
Irpin
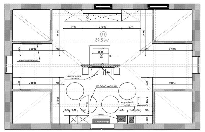
Taras Belik为一个四口之家设计的联排别墅,面积161㎡,颜色和材料的主要基于黑色和灰色,再加上美洲胡桃木的丰富质感。设计取决于现代人的生活节奏,符合人体工程学,美观且舒适。
平面图
▽
-END-
173㎡现代轻奢风,端庄优雅,时尚大方!
215㎡简约大平层,自然又有气质!
原木+白色,擦出不一样的小清新火花
生活
- 
								
- 
																		
 - 100平现代公寓,清爽自然,简单又实用~
 - 导Lead语100㎡ | 3居室 | 现代在平面布局规划上拆除了入户堵挡的墙体,做了一个吧台,同时打通了餐厅与书房之间的墙体,做了一个卡座与透明隔断的门,增加空间的通透性。让原本不大的空间扩展了视野,不仅串联了...
 - 潮流室内装修设计
 
 - 
																		
 - 
								
- 
																		
 - 想有个院子,与你余生共度!
 - 往后余生风雪是你平淡是你清贫也是你.......人生不过短短数十年,有多少时间可以真正享受生活,感受自我?庭中四季,一方天地,免我流浪,掩我风雨,有自然消融生活的焦虑,再多的烦恼也有天高风清的静谧,余生...
 - 山东大江园林
 
 - 
																		
 - 
								
- 
																		
 - 做美缝是交智商税?90%的问题这一篇给你答案!
 - ☞关注后回复:“卧室、餐厅、客厅、卫生间、厨房、衣柜、阳台、玄关、背景墙、儿童房、装修风格...”等都会收到相关内容,已覆盖99%家居装修的内容。新房子装修,关于瓷砖填缝,还是比较关键的一步,填缝材料没...
 - 创意家居生活通
 
 - 
																		
 - 
								
- 
																		
 - 新品首发|Nin·O 米兰系列,幽幽其芳的意境之美
 - 今天展示的意式轻奢——米兰系列高级的气质灰度的格调幽幽的意境之美柔和的宁静之光让忙碌的脚步在这里驻足浪漫唯美 · 客厅各种浪漫典雅的装修元素来装饰空间让家居环境呈现出简约、低调时尚的氛围同时又不缺乏...
 - 小尼宅配
 
 - 
																		
 - 
								
- 
																		
 - 浪漫生活,温柔如画。
 - 温柔如画北欧风格一向以温润平和著称,风格富而不俗,在极具现代感的柔和色调中,使别墅内的每一处空间都弥漫着浪漫典雅的气息。△客餐厅轻快的空间基调,北欧风情元素的挂画,毛绒地毯搭配精致布艺的沙发技艺,...
 - 缪斯设计
 
 - 
																		
 - 
								
- 
																		
 - 新作|中国式别墅设计,“聚”才是核心
 - 在中国人的认知里,亲情总是永恒的主题,“人丁兴旺”是对一个家族最大的褒奖,而“团团圆圆”则是一个家庭最朴实的追求。现如今,社会的发展和居住方式的改变让“独居”变得容易,却不免失了些“圆满”的美意。...
 - 火车头设计
 
 - 
																		
 - 
								
- 
																		
 - 全屋墙面木格栅,不要大白墙,130㎡任性装,高级感进门扑面而来
 - 关注微信公众号:jiawyk,一起聊聊装修中的苦闷与快乐~全屋大白墙、极简风的家虽然清爽,但并不是所有人都喜欢,这家的业主就是一个特例。130㎡的房子,从进门处的墙面就满铺格栅板,整个家几乎是看不到大白墙的...
 - 小菜聊装修
 
 - 
																		
 - 
								
- 
																		
 - 两房改三房,其实面积只有60㎡!就是在“螺蛳壳里做道场”
 - 关注微信公众号:jiasjmt,家装案例每天更新! “螺蛳壳里做道场”,用于形容接下来齐家云云要分享的这套装修案例,再合适不过了。屋主家有两个小孩,而房子面积只有60㎡,原本两房格局显然无法满足正常需求...
 - 齐家一站式装修
 
 - 
																		
 - 
								
- 
																		
 - 元禾大千:经典色彩搭配,红与黑的灵魂对白!
 - 《摇滚红与黑》剧照图片来源于网络《摇滚红与黑》的舞台以视觉与故事情节取胜,在经典与现代的碰撞中与大众产生共鸣,这是舞台剧的魅力所在。对于元禾大千来说,空间故事与艺术的融合也是设计的魅力所在。空间的...
 - 拓者设计吧
 
 - 
																		
 - 
								
- 
																		
 - 100m的房子装修直降67000元,还要送¥100000家具!
 - △岚庭北欧风案例图听太多其他装修公司的套路触长已经免疫了直到遇见了岚庭家居TA家限时推出的一口价全包套餐真的太“香”了 100m²套三单卫全包装修原价245800元,现在直省67000元只要178800就能全搞定整屋装修...
 - 成都全接触
 
 - 
																		
 - 
								
- 
																		
 - 光影纪录下的美学空间|唐忠汉新作
 - GHDA环球人居设计大奖第四轮(最后一轮)申报中,点击图片查看详情↑光影纪录Light and shadow record-在建筑的大面积开口上引领了室外的直接光源进入室内,利用窗帘的软性来柔和了心灵感受,介而营造格栅拉门与...
 - 居住空间
 
 - 
																		
 - 
								
- 
																		
 - 丰富的色彩,无可挑剔的美!
 - 色彩家居 AR-1|architecure&design新作,该项目的灵感来自Zhostovo的画作,整个空间色彩丰富,其中90%的产品和建筑装饰元素都是根据设计师Alexey Golub和Yulia Shteivand的草图制作的,营造一
 - 米兰设计之旅
 
 - 
																		
 - 
								
- 
																		
 - 头一次见厨房吊柜这样装,科学、实用、再也不碰头!
 - 传统的厨房吊柜和整体橱柜一般都是直角的立式柜子,这样的柜子虽然存储空间足够大,但往往会遇到一个问题,就是当你正低头认真做饭时,一不留神猛地一抬头就会“碰”一下撞到头,尤其是家里层高不够或者有个子比...
 - 房子装修
 
 - 
																		
 - 
								
- 
																		
 - 145㎡三居室,简约而有格调!
 - 现代简约 Taras Belik为一个有两个孩子的家庭设计了这间公寓,面积145㎡,时尚的现代简约风格,重视舒适性和人体工程学,美观与功能性的平衡。平面图▽为了使屋主在这里感到舒适,设计师将厨房,餐厅和客厅合并...
 - 室内设计秀
 
 - 
																		
 - 
								
- 
																		
 - 不是设计师,也能玩转“裁缝式”的定制家具
 - 作为文艺复兴的发轫地,意大利总是笼罩着一层雾霭般的神秘感,我们似乎也习惯了将意式优雅作为家居设计的审美锚点,期待在这片热土上出现一个又一个奇迹来对抗时间的变化。意大利家具品牌Meridiani 深谙此理,从...
 - IDEAT理想家
 
 - 
																		
 
