- 新作|中国式别墅设计,“聚”才是核心
 - 来源:火车头设计
 
在中国人的认知里,亲情总是永恒的主题,“人丁兴旺”是对一个家族最大的褒奖,而“团团圆圆”则是一个家庭最朴实的追求。现如今,社会的发展和居住方式的改变让“独居”变得容易,却不免失了些“圆满”的美意。
-
是空间设计
更是生活规划
对于大多数别墅业主来说,一家人的各有所居尤为重要。
业主希望设计师能够将一家四代人的生活进行妥帖合理的规划。由于居住人口多、整体风格难以凭一人喜好来判断,设计师邹平安便开始了细致的前期沟通和方案制定。大到每个人的生活场景,小到几双鞋、几件衣。在充分了解居住需求的前提下,将住宅风格分为两个部分:以大气包容的新中式为主、不落俗套的现代简约为辅。
“玄之又玄,众妙之门”。
玄关作为一个不可或缺的过渡空间,在别墅设计中更具整体性和仪式感。邹平安用简约的线条彰显空间的纵深,藏气纳财。深色条案与圆形远山图画交相呼应,突出归家的仪式感。
▲玄关
业主虽钟情于中式风格,但传统中式装修在手法上却落于繁缛复杂,用于家居生活难免会觉压抑冰冷。邹平安将现代的生活方式和传统中式家居结合起来,打破沉闷和生硬,气韵上却延续了那份典雅温润。对称的家具布局,呼应大家庭的四平八稳,“圆”与“方”的搭配使用更凸显出7米挑高的大气开阔。
清朗的大理石纹、醇厚的乌木钩花、简约的木栅分隔、纯白浮雕山水背景......邹平安将这些经典元素汇聚一起,用婉约耐看的搭配手法打造出一个自然闲适、余韵清幽的生活空间。
想要打造家庭成员间和谐的生活方式,便要学会拿捏这“疏”与“合”间的界限。多一分“疏”则缺乏沟通,多一分“合”则缺乏界限感。除了客厅,动区中的茶室也可以作为情感交流的重要场所。
茶室坐落于一楼客厅后方,中国人讲究“以茶会友”“喝茶明志”。沉静雅致的木质底色,整面落地窗透出足够光线,在纱帘的作用下阳光都显得婉约起来。再搭配简约耐看的明式座椅,让“背靠木栅墙,倾身品茶香”成为唾手可得的浪漫。不论是会友还是家族小聚,都是不可多得的清幽畅爽。
▲茶室
餐厅部分也同样颇具大宅气魄,整齐统一的高背椅,围合圆桌。这欢聚团圆的美意在新中式的映衬下尤显温馨。
▲餐厅
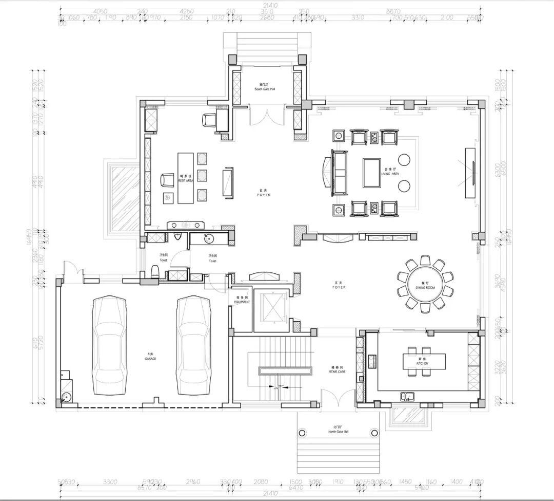
▲一层平面图
-
立意要高远
落地要实际
拾级而上,宽而阔的过道串联起一家人的起居空间。尽头的挂画将走廊也冠以诗意的美感。墙面的线条包边给人以视觉上的延伸,简单却不单调。
在邹平安看来,别墅设计不仅仅是形而上的视觉感受,更要实际服务于业主的真实生活,他看重空间的实用性和功能的合理性。二层的静区规划着不同家庭成员的独立生活空间,套间的设计让彼此既保有私密性又能随时相通。
基于真实的生活场景,邹平安尽量做到风格上和谐统一,功能上有效舒适。木质材料的多重应用烘托温馨宜居的整体氛围。古与今的巧妙融合,避免生硬的风格限制,以“雅”显“质”,让空间真正为生活所服务。
每个套间都是一个有机整体,这样的规划方式使得家庭成员间皆有所属,互不打扰。设计将这份人与人之间的边界感变得恰到好处。在这里很少看到繁琐而华丽的装饰。即便是别墅这样的大尺度空间,也不做无谓的堆砌,反而是用冼炼的手法为生活缀一抹清雅。
儿童房的布置也是功能至上,足够的收纳满足孩子成长所需。随着孩子的成长,空间也便于做个性化的调整。
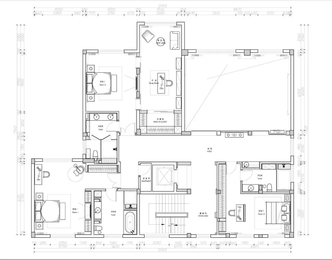
▲二层平面图
-
风格融合?
没什么不可
一改一二层的古色古香,三层的设计仅用木质+线条的元素勾勒便凸显了十足的现代感。延续木质元素的运用。同整体风格做到巧妙的融合,极简的软装搭配,适合当下年轻人的心理需求。
高级灰的到顶衣柜,把收纳需求一网打尽,线性灯带呼应着极简背景墙,强调着年轻人的生活态度。
布艺、大理石、木质的融合,便构造出一个高效、温馨、实用的现代空间。
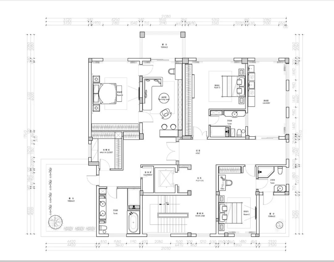
▲三层平面图
在设计师邹平安看来,好的住宅设计就是充分考虑到每个人的生活习惯、尊重每个人的生活场景。不拘泥所谓风格和感觉,从“人”的需求出发,居住满足人的居住需求,审美需求、和情感需求。
写在后面:“专于墅、精于墅”是邹平安对设计的坚持,他所组建的“全托设计施工管理一体化团队”旨在打破传统家装的隐性成本,将设计和施工串联起来,让设计回归设计。
精 选 推 荐
精彩生活 | 源于设计
回复数字“1” 或 "福利" 有惊喜
投稿:lizicheng66@qq.com
点个关注.证明我曾来过
长按二维码关注
生活
- 
								
- 
																		
 - 100平现代公寓,清爽自然,简单又实用~
 - 导Lead语100㎡ | 3居室 | 现代在平面布局规划上拆除了入户堵挡的墙体,做了一个吧台,同时打通了餐厅与书房之间的墙体,做了一个卡座与透明隔断的门,增加空间的通透性。让原本不大的空间扩展了视野,不仅串联了...
 - 潮流室内装修设计
 
 - 
																		
 - 
								
- 
																		
 - 想有个院子,与你余生共度!
 - 往后余生风雪是你平淡是你清贫也是你.......人生不过短短数十年,有多少时间可以真正享受生活,感受自我?庭中四季,一方天地,免我流浪,掩我风雨,有自然消融生活的焦虑,再多的烦恼也有天高风清的静谧,余生...
 - 山东大江园林
 
 - 
																		
 - 
								
- 
																		
 - 做美缝是交智商税?90%的问题这一篇给你答案!
 - ☞关注后回复:“卧室、餐厅、客厅、卫生间、厨房、衣柜、阳台、玄关、背景墙、儿童房、装修风格...”等都会收到相关内容,已覆盖99%家居装修的内容。新房子装修,关于瓷砖填缝,还是比较关键的一步,填缝材料没...
 - 创意家居生活通
 
 - 
																		
 - 
								
- 
																		
 - 新品首发|Nin·O 米兰系列,幽幽其芳的意境之美
 - 今天展示的意式轻奢——米兰系列高级的气质灰度的格调幽幽的意境之美柔和的宁静之光让忙碌的脚步在这里驻足浪漫唯美 · 客厅各种浪漫典雅的装修元素来装饰空间让家居环境呈现出简约、低调时尚的氛围同时又不缺乏...
 - 小尼宅配
 
 - 
																		
 - 
								
- 
																		
 - 浪漫生活,温柔如画。
 - 温柔如画北欧风格一向以温润平和著称,风格富而不俗,在极具现代感的柔和色调中,使别墅内的每一处空间都弥漫着浪漫典雅的气息。△客餐厅轻快的空间基调,北欧风情元素的挂画,毛绒地毯搭配精致布艺的沙发技艺,...
 - 缪斯设计
 
 - 
																		
 - 
								
- 
																		
 - 新作|中国式别墅设计,“聚”才是核心
 - 在中国人的认知里,亲情总是永恒的主题,“人丁兴旺”是对一个家族最大的褒奖,而“团团圆圆”则是一个家庭最朴实的追求。现如今,社会的发展和居住方式的改变让“独居”变得容易,却不免失了些“圆满”的美意。...
 - 火车头设计
 
 - 
																		
 - 
								
- 
																		
 - 全屋墙面木格栅,不要大白墙,130㎡任性装,高级感进门扑面而来
 - 关注微信公众号:jiawyk,一起聊聊装修中的苦闷与快乐~全屋大白墙、极简风的家虽然清爽,但并不是所有人都喜欢,这家的业主就是一个特例。130㎡的房子,从进门处的墙面就满铺格栅板,整个家几乎是看不到大白墙的...
 - 小菜聊装修
 
 - 
																		
 - 
								
- 
																		
 - 两房改三房,其实面积只有60㎡!就是在“螺蛳壳里做道场”
 - 关注微信公众号:jiasjmt,家装案例每天更新! “螺蛳壳里做道场”,用于形容接下来齐家云云要分享的这套装修案例,再合适不过了。屋主家有两个小孩,而房子面积只有60㎡,原本两房格局显然无法满足正常需求...
 - 齐家一站式装修
 
 - 
																		
 - 
								
- 
																		
 - 元禾大千:经典色彩搭配,红与黑的灵魂对白!
 - 《摇滚红与黑》剧照图片来源于网络《摇滚红与黑》的舞台以视觉与故事情节取胜,在经典与现代的碰撞中与大众产生共鸣,这是舞台剧的魅力所在。对于元禾大千来说,空间故事与艺术的融合也是设计的魅力所在。空间的...
 - 拓者设计吧
 
 - 
																		
 - 
								
- 
																		
 - 100m的房子装修直降67000元,还要送¥100000家具!
 - △岚庭北欧风案例图听太多其他装修公司的套路触长已经免疫了直到遇见了岚庭家居TA家限时推出的一口价全包套餐真的太“香”了 100m²套三单卫全包装修原价245800元,现在直省67000元只要178800就能全搞定整屋装修...
 - 成都全接触
 
 - 
																		
 - 
								
- 
																		
 - 光影纪录下的美学空间|唐忠汉新作
 - GHDA环球人居设计大奖第四轮(最后一轮)申报中,点击图片查看详情↑光影纪录Light and shadow record-在建筑的大面积开口上引领了室外的直接光源进入室内,利用窗帘的软性来柔和了心灵感受,介而营造格栅拉门与...
 - 居住空间
 
 - 
																		
 - 
								
- 
																		
 - 丰富的色彩,无可挑剔的美!
 - 色彩家居 AR-1|architecure&design新作,该项目的灵感来自Zhostovo的画作,整个空间色彩丰富,其中90%的产品和建筑装饰元素都是根据设计师Alexey Golub和Yulia Shteivand的草图制作的,营造一
 - 米兰设计之旅
 
 - 
																		
 - 
								
- 
																		
 - 头一次见厨房吊柜这样装,科学、实用、再也不碰头!
 - 传统的厨房吊柜和整体橱柜一般都是直角的立式柜子,这样的柜子虽然存储空间足够大,但往往会遇到一个问题,就是当你正低头认真做饭时,一不留神猛地一抬头就会“碰”一下撞到头,尤其是家里层高不够或者有个子比...
 - 房子装修
 
 - 
																		
 - 
								
- 
																		
 - 145㎡三居室,简约而有格调!
 - 现代简约 Taras Belik为一个有两个孩子的家庭设计了这间公寓,面积145㎡,时尚的现代简约风格,重视舒适性和人体工程学,美观与功能性的平衡。平面图▽为了使屋主在这里感到舒适,设计师将厨房,餐厅和客厅合并...
 - 室内设计秀
 
 - 
																		
 - 
								
- 
																		
 - 不是设计师,也能玩转“裁缝式”的定制家具
 - 作为文艺复兴的发轫地,意大利总是笼罩着一层雾霭般的神秘感,我们似乎也习惯了将意式优雅作为家居设计的审美锚点,期待在这片热土上出现一个又一个奇迹来对抗时间的变化。意大利家具品牌Meridiani 深谙此理,从...
 - IDEAT理想家
 
 - 
																		
 
