- 123㎡轻工业风,开放布局+管线外漏,精心设计的粗犷气息!
- 来源:齐家一站式装修
关注微信公众号:jiasjmt,家装案例每天更新!
齐家云云今天要分享的这套123㎡的三居室位于北京,女屋主是土生土长的北京女孩,男屋主在伦敦生活十年回国,这是俩人结束爱情长跑,准备的婚房。他们都喜欢开放、拒绝修饰的工业风。
由于疫情的原因,由見设计为屋主在提供了异地纯设计+施工指导,根据屋主提供的房屋原始图进行空间布局设计、网上沟通、对接方案等,最终落地了这套房子。
▲ 原始户型图
存在缺陷:
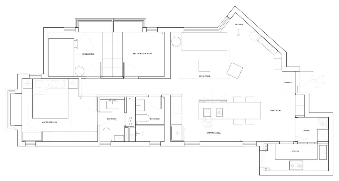
▲ 平面布局图
设计策略:
1. 将厨房、储物间、阳台拆除打通,通过三步,满足功能性,提高生活质量。(第一步设立入户的鞋帽收纳储物柜;第二步将厨房移置有窗区域,优化厨房使用动线;第三步设立独立家政洗衣房空间)
玄关
入户转角墙面选用黑色洞洞板,放置钥匙、零钱包及旅行记录的照片,作为家庭生活的回忆录。水泥色自流平地面,内嵌黄铜字体,定制屋主的专属空间。
Dulton三列五层金属斗柜与黑色洞洞板颜色相近。斗柜上方留了壁灯,从入户处感受整体的家居氛围。
▲ 洞洞板收纳展示墙
作为爱犬人士,家里还有一条可爱的狗狗,饰品当然也会跟狗狗相关。
客厅
客厅地面整体是水泥自流平,顶面则通过巧妙的安排将管线外露,让它们成为室内的设计元素之一,散发粗旷的气息,符合整体轻工业风的氛围。
▲ 一体式客餐厅
布局上将客餐厅整体化,餐厅岛台结合电视背景,不仅能很好地利用空间,空间的动线划分也更为灵活。
(ps:现在添加微信:qijiavm, 即可根据您家户型,免费提供多套相似VR-3D效果图供作参考!)
客厅茶几同样选择做旧金属类造型,符合整体空间调性。利落的线条,金属的质感,轻工业风的的冰冷、超脱,以及空间的开放性、展示性,在这里体现的淋漓尽致。开放式的客餐厅能够给家人及宠物提供更多相处活动的空间,让空间视觉效果更加通透。
大面积的窗户给空间带来充足的自然采光,百叶帘可以自由调整光线的角度,为空间增添光线的律动。
客厅墙面留白,仅用一盏复古简约的落地灯点缀,丰富空间。
餐厅
餐厅特意选择了4把不同造型、不同颜色的餐椅,打破常规,突出风格。厨房空间选用玻璃材质的谷仓门,延伸视野。
黑色系餐桌椅呼应整体氛围。大尺度岛台衔接深色木质长桌,留空的位置可收纳吧台椅,集烹饪、聚餐、工作接待等多功能于一体。
厨房
墨绿色的墙砖、厨房用具,深蓝色的锅,用这些明亮的色彩塑造空间的活泼氛围。
▲ 玻璃砖隔墙
厨房和洗衣房之间的墙体用玻璃砖代替,通过玻璃材质的反射,凸显明亮空间感,既有透光效果,也和粗犷的工业风格调呼应。
走廊
过道是简洁的黑白两色,干练清晰。
过道尽头复古红砖契合整体工业氛围感,粗犷又不失稳重。
卧室
床尾部分设置整排白色衣柜,满足日常所需。
主卧墙面选用水泥色肌理壁纸,营造隐密而安定的氛围。床、床头柜乃至开关插座灯具,均选用比较具有工业复古气息的材质。
▲ 主卧看向主卫
卫生间采用圆弧形的金属玻璃拱门,和走廊端景呼应,长虹玻璃透出暖色灯光,中和空间的色调。
卫生间
主卫延续了厨房墙面的色调,半高墙面贴砖能够解决卫生间潮湿的问题,上半部则采用墨绿色涂料,复古精致。
宠物间
狗狗作为家庭组成不可或缺的一部分,给它专门预留了一间活动室。
▲ 生活场景
墙面设计了两个方形的窗户,仿若两个取景框,为大面积留白的空间增添自然美景。
洗衣房
▲ 餐厅看向入户、洗衣房
入户的鞋帽柜和洗衣房的柜门都选择了白色哑光烤漆的柜门,高度和外观保持一致,通过这些细节凸显空间的整体性。
布局限制,将家庭生活操作间独立,能够有序的将生活工具进行隐藏收纳。
洗衣房与厨房之间的玻璃砖墙,能够让两个房间光线相通,解决家里阴暗角落的采光问题。
(我们致力于保护作者版权,部分作品来自互联网.无法核实真实出处,如涉及侵权,请直接联系小编删除.谢谢!)加微信:qijiavm, 或扫描下方二维码,即可根据您家户型,免费提供多套相似VR-3D效果图供作参考!!
像这样装修需要花多少钱?点击“阅读原文”马上就能算出!!
生活
-
-
- 复古风顶层复式,每处设计都是韵味!
- 这套名叫 Berlin 1910 的顶层复式由 Atelier Creative Varsovie 工作室设计整体设计风格简约现代设计师在干净纯白的空间中用木色与黑色打造出精致高级的氛围房屋的玄关是入口和上楼的过道区域水泥的台阶和木质地...
- 内小宅
-
-
-
- 美式设计的婉约清新。
- 美式设计也一样可以小清新和婉约美。▼客餐厅 |▼客餐厅作为一个整体的部分,居室带来了时尚鲜活的空间灵动性。电视墙的线条简约清晰,家具色调统一,带点美式田园小清新,色彩雅致,组合起来有了奇妙的氛围。厨...
- 缪斯设计
-
-
-
- 90㎡简约北欧风三居室,清新漂亮收纳好
- 领取500套装修案例和预算表这个项目基本属于全托管工程,业主给予我们充分的信任和发挥空间。我们运用简洁明朗的颜色,淡雅清爽的自然材质,线条流畅,不事雕琢,注重功能、追求理性为业主打造一个现代北欧的家...
- 新房子装修效果图
-
-
-
- 123㎡轻工业风,开放布局+管线外漏,精心设计的粗犷气息!
- 由于疫情的原因,由見设计为屋主在提供了异地纯设计+施工指导,根据屋主提供的房屋原始图进行空间布局设计、网上沟通、对接方案等,最终落地了这套房子。▲ 原始户型图存在缺陷:1. 入户收纳储物空间局促。2. 储...
- 齐家一站式装修
-
-
-
- 在庭院里种棵古典花树,吉祥万福,诗意满满!~
- 导语 “芳树重重归院迷,飘花点点临池见。”自古以来,在庭院里养花种树都是一种诗意生活的雅趣,也是院居文化的标配。而且很多花树都有非常吉祥的寓意,例如桂花象征富贵、海棠象征和睦、玉兰寓意奋发、梅花...
- 宠派养花大全
-
-
-
- 舍弃茶几,不做电视墙!139㎡全屋简约风,耐看还不过时
- 关注微信公众号:jiawyk,一起聊聊装修中的苦闷与快乐~装修需要理性对待,不是所有东西都是必须的,应当围绕生活习惯进行取舍。否则入住就会发现,一些东西其实用处不大,不仅占用地方还浪费钱。这期分享的案例...
- 小菜聊装修
-
-
-
- 买房切记别买双卫生间户型,有钱人一看就懂,入住才知道是个坑
- 买房切记别买双卫生间户型,有钱人一看就懂,入住才知道是个坑买房对于很多人来说,都是一个大目标,毕竟房子是刚需,不过有些人却会因为买什么样的房子而苦恼,因为自己并不懂房子,如果买错了,那么入住后就会...
- 装修家居风水
-
-
-
- 100平三居室,超喜欢厨房窗户、吧台设计,太个性实用!
- 中国设计微刊,专注「家居、时尚、创意」设计分享 设计空间 | 书画艺术 | 生活美学喜欢设计点击上方 “空间设计 ” → 点击右上角“...” → 点选“设为星标 ★ ”这是一套100平的三居室,装了美式风格,不过这...
- 空间设计
-
-
-
- 80㎡美式田园风两居室,满屋的薄荷清香,让人陶醉!
- 面积:80平米户型:三室两厅一厨一卫风格:美式田园风一抹淡淡的薄荷清香来打造热情洋溢的夏天图赏▲原始结构图▲平面布置图| 客厅 |客厅地面通铺木色地板,大面积落地窗搭配格子布艺窗帘,让室内光线充足,整...
- 小尼宅配
-
-
-
- 春季这个扦插繁殖的大好时机,千万别浪费!这几种植物赶快扦插!
- 春季到,万物生,正是扦插好时节,花友们可千万不要错过,今天小编为花友们整理了常见的几种花卉的扦插要点,赶快动手扦插起来,让我们一起收获一个大花园吧。长寿花长寿花的扦插要点:1、扦插长寿花的介质最好...
- 养花之家
-
-
-
- 复古家具+藤编靠椅,温柔抹茶色包裹让她和TA从此可以安心宅家
- APP Store 排名第一的家居杂志三年前屋主把受伤的漾漾(猫咪)带回家,自此之后的日子便与它一起度过。房屋为二手房,珍珍对于改造后的新家充满了期许感,一定要是复古温馨的;区别于现在一些年轻人身上的浮躁,珍...
- PChouse家居APP
-
-
-
- 女建筑师易妹儿与三只猫的温馨生活,打造83㎡和風の家
- APP Store 排名第一的家居杂志本期案例是一个紧凑的精装修小三房,测量完房子之后,业主易妹儿就邀约我去她公司看她自己设计的她家的SU效果图,其实她公司就在她家隔壁,我跟她在SU上初步沟通的她对自己房子的设...
- PChouse家居APP
-
-
-
- 76平精装爆改,超强收纳你服不服?
- ▲ 使用面积76平,精装改造总价20万,在不动整体格局控成本的情况下,增加两处隔断,划分客餐厅区域的矮墙,为避开入户直对卫生间的玻璃隔断▲ 立面改造示意图▲ 平面布置图▲ 洞洞板垂直收纳,美观实用,适应性...
- 装修33天
-
-
-
- 两创纵横谈|常沙娜:装饰图案 装点美好生活
- 中国传统装饰图案,体现着各个时代的审美观,映照出人们的生活和习俗,饱含真善美的寓意。特别是在敦煌莫高窟中,历代壁画和彩塑上的装饰图案,通过装饰的手法,把石窟的主题内容和功能装点得更加精彩,形象地记...
- 人民日报文艺
-
-
-
- 小众又具质感的器皿选购指南
- 不同的器物,在我们的日常生活中承担着不同的角色。经常关注美食博主的朋友,会发现,美食博主的餐具器皿不仅好看,而且款式风格种类繁多,每每在种草了博主烹饪菜式的同时还一同被安利了一些高颜值的食器。 日...
- 时尚家居
-
