- 北京夫妻买下87㎡二人居,LDK布局、封闭收纳、老家具..平衡现代风格与古典情怀
- 来源:家的要素
家的要素,
让城市里忙碌的年轻人住得更好。
这套87㎡的小两居位于北京,屋主是夫妻二人,家里还养了一只英短蓝白猫。男主从事HR行政工作,性格随和,受家庭环境影响,酷爱中国传统文化,藏有许多古典文玩和青瓷。女主是保险经纪人,工作时间不固定,平日居家,喜欢书法、古琴、咖啡和茶。
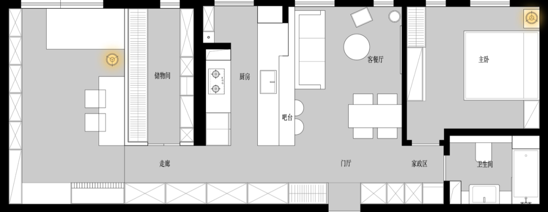
设计师在原始平面的基础上,根据使用功能的划分,巧妙地串联起整个空间,满足基本生活需求的同时,又保证了日常居住时的自由和舒适。
房屋信息
坐 标:北京
户 型:两室
面 积:87㎡
设 计:恒田设计
费 用:53w
▲ 原始户型图
存在缺陷&屋主需求:
1. 原户型为L型建筑,采光自左至右依次降落。
2. 酷爱中国传统文化,藏有许多古典文玩和青瓷。
3. 屋主要求他的老家具和装修风格相融合。
3. 家中另囤有一批香炉、茶具和马克杯,担心猫咪调皮,打碎物品。
▲ 平面布局图
设计策略:
1. 根据原户型的采光特性,将左侧区域打造成书房、客餐区,便于居家阅读和会客。
2. 主卧安置在最右侧,既满足女主对光线敏感的要求,又使二人空间更具私密性。
3. 拆掉客餐厅和厨房之间的非承重墙,打造充满社交属性的开放式厨房。
玄关
▲ 室内的储物功能,通过隐藏柜体设置
客厅
餐厨区的窗户选用百叶帘,使采光更加开阔、写意。
▲ 无主灯设计
厨房
厨房与客厅之间设计了半隔断+吧台的组合,以白色作为室内主色调,将空间纵向延展,让有限的厨房不显得拥挤,采光和通透性也更好。
▲ 沙发背后是岛台
主卧
床头两侧的台灯,是屋主的偏爱,不但便于阅读和起夜,打破室内照明局限,而且年轻时尚,儒雅依旧。
书房
▲ 书房兼作展示空间
素白的墙面,以结构的质朴,形成出独具的美感,如无形之舞,拉出跳动的心绪,尽享复古与时尚的邂逅。
墨与宣纸本色的交融,挥笔朝夕,虚实相生,张弛有序。
卫生间
由于家中只有夫妻二人居住,因此将卫生间安置在卧室旁,便于起夜和日常洗漱。屋顶、地面、墙体均做了哑光处理。
生活
-
-
- 阳台到底要不要封?看完你就知道了
- 设计 / 品质 / 生活Temperature of Love很多家庭都把阳台当成了晾晒衣物、堆放杂物的场所,大大浪费了阳台的功能性。其实只要稍微花点心思,把阳台设计一下,不但可以增加居室空间,还能起到美化作用。阳台装修...
- 设计本家居
-
-
-
- 图案|云鹤千年寿,苍松万古青
- PATTERN:YC0549 原创设计借山水以解忧,藉花木以怡情以明月清风之生息安寄惊鸿一瞥之浮生远离城市的繁华喧嚣独有一方丰盈的精神境地潇然物外,乐在其中细节展示细节展示将传统山水、亭阁、廊舫等元素进行创意...
- 艺栢图案设计
-
-
-
- 为什么设计师都喜欢简约风
- 简,是最美的设计语言。简约,让整个空间充满温润清新之感。简约风,体现出精致与个性,更符合现代人的生活品位。以少胜多的设计理念,留白、减法的设计理念,玩转出一个温馨、优雅的环境。简单的空间总是耐看,...
- 室内设计秀
-
-
-
- 过去与当下、物质与虚拟、废墟与鲜活,坍缩于APSMUSEUM的这堵长墙之上
- 在人类共同经历了一场物理空间上的隔离后,我们开始正视和接受“保持社交距离”的现实,然而这段经历又反向推高我们对抓住时间流逝、存续美好空间的渴望。在万物之始的春天,APSMUSEUM 在本馆和边园两地举办春季...
- IDEAT理想家
-
-
-
- 设计师自宅,流金岁月,拾光溢彩
- Georgia Ezra空间的感官体验“当你走进这个空间,当你赤脚行走的时候,地板会把你和地球连接起来......”——Georgia Ezra△ 本案平面图本案是墨尔本Studio Ezra工作室,新近完成的一个翻新项目——更准确地说,...
- 设计之旅
-
-
-
- 阳光住宅,简约优雅!
- 尊贵热线:400-639-9973最好的生活,只为遇到最懂的你!简约优雅白简约优雅白,诗意栖居。自然风光融于室内,鲜活灵动!设计:Mim DesignDKO Architecture、Eckersley Garden Archite
- 得心设计
-
-
-
- 虽不惊艳但很有用的六种花,你值得拥有!~
- 导语 生活中,我们见过很多虽然不太惊艳但非常有用的花花草草,例如地肤可做扫帚、薄荷能做茶饮、虎皮兰有助于睡眠、龟背竹除甲醛、巴西铁吸收雾霾等等。今天,宠派养花大全小编就为大家分享几种这些非常有用...
- 宠派养花大全
-
-
-
- 120m现代简约风,给你一个低调奢华的家
- 关注微信公众号:jiasjmt,家装案例每天更新! 由于业主一家人均面积比较小,所以实用功能肯定是放在首位,在前期设计沟通的时候,一起讨论最多的是,怎么样才能让一家人能在拥有各自隐私空间的同时,还能...
- 齐家一站式装修
-
-
-
- 客厅、书房一体化设计,大空间串联双阳台,一处酝酿诗意一处盛放生活
- 家装室内设计 ,每日搜集分享国内外最前沿的家装设计、施工、建材等内容,成为您家装的好帮手!本案是一套面积为127平米的三口之家的居住空间,风格上选择了纯粹而干净的现代简约风,没有太多造作的修饰和约束,...
- 家装室内设计
-
-
-
- 我有一个梦想,把客厅变成书房!这138㎡正是我向往的家
- 关注微信公众号:jiawyk,一起聊聊装修中的苦闷与快乐~装修不是材料的堆砌,而是生活模式的构建,需要以家庭需求出发,一步步去完善,装修出满意的效果。这期分享的案例位于上海市,套内面积138㎡三居室,屋主需...
- 小菜聊装修
-
-
-
- 精心设计,没有阳台的客厅,也能更悠然自在~
- 对于一些客厅不带阳台的房子而言,整个客厅空间会临近窗户,因为整体会显得更加明亮。如果这个客厅足够大的话,那么在靠窗位置还可以摆一套书桌椅,或是休闲桌椅,整体空间会显得更加的悠然自在。下面,小编为大...
- 潮流室内装修设计
-
-
-
- 样板间|现代简约三居,巧用榻榻米布局,一“室”二“用”!
- 全文约:1100字,阅读时长约:3分钟最近有几个同事在偷偷议论小乖的黑眼圈小乖真的没有逛淘宝剁手而是一心一意找好的实景样板间给熬出来的下面就跟着我一起来看看用黑眼圈“换来”的实景样板间吧!空间上用暗灰...
- 一统国际家居
-
-
-
- 北京夫妻买下87㎡二人居,LDK布局、封闭收纳、老家具..平衡现代风格与古典情怀
- 家的要素, 让城市里忙碌的年轻人住得更好。说在前面这套87㎡的小两居位于北京,屋主是夫妻二人,家里还养了一只英短蓝白猫。男主从事HR行政工作,性格随和,受家庭环境影响,酷爱中国传统文化,藏有许多古典文...
- 家的要素
-
-
-
- 细节控小哥哥的家,90㎡三室改两室,空间大一倍!极简纯净,腔调十足!
- 申报倒计时 | GHDA环球人居设计大奖,点击图片查看详情↑| 简约高级,理想的男性单身公寓! |每一个案例从前期方案的无数次推翻思考,到后期的软装线上线下的选配,每一次遇到的问题及时沟通解决,对于不同家庭...
- 居住空间
-
