- 139㎡现代风格,打造高品质生活空间!
- 来源:室内设计秀
高级住宅
ARTIMITRO INTERIORS设计,139㎡融合了经典元素的现代风格项目,为了保持内部的完整性,背景为白色,主要材料为浅色木材和梦幻般的蔓藤花纹天花。
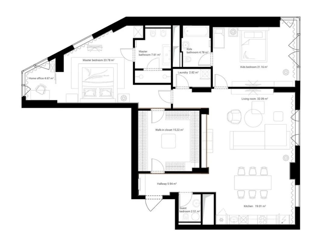
平面图
▽
ۥۛۛ۟ۙۙۚۥۚۙۙۙۚۥۛۛۚۚۛ۟ۡۥۛ۟ۡۗۡۥۛۛ۟ۙۙۚۥۚۙۙۙۚۥۛۛۚۚۛ۟ۡۥۛ۟ۡۗۡۥۛۛ۟ۙۙۚۥۚۙۙۙۚۥۛۛۚۚۛ۟ۡۥۛ۟ۡۗۡۥۛۛ۟ۙۙۚۥۚۙۙۙۚۥۛۛۚۚۛ۟ۡۥۛ۟ۡۗۡۥۛۛ۟ۙۙۚۥۚۙۙۙۚۥۛۛۚۚۛ۟ۡۥۛ۟ۡۗۡۥۛۛ۟ۙۙۚۥۚۙۙۙۚۥۛۛۚۚۛ۟ۡۥۛ۟ۡۗۡۥۛۛ۟ۙۙۚۥۚۙۙۙۚۥۛۛۚۚۛ۟ۡۥۛ۟ۡۗۡۥۛۛ۟ۙۙۚۥۚۙۙۙۚۥۛۛۚۚۛ۟ۡۥۛ۟ۡۗۡۦ۫ۡۜۛ۟ۚۛ۫ۦۜۜۚۡۜۛۜۥۛۛ۟ۙۙۚۥۚۙۙۙۚۥۛۛۚۚۛ۟ۡۥۛ۟ۡۗۡۥۛۛ۟ۙۙۚۥۚۙۙۙۚۥۛۛۚۚۛ۟ۡۥۛ۟ۡۗۡۥۛۛ۟ۙۙۚۥۚۙۙۙۚۥۛۛۚۚۛ۟ۡۥۛ۟ۡۗۡۥۛۛ۟ۙۙۚۥۚۙۙۙۚۥۛۛۚۚۛ۟ۡۥۛ۟ۡۗۡۥۛۛ۟ۙۙۚۥۚۙۙۙۚۥۛۛۚۚۛ۟ۡۥۛ۟ۡۗۡۥۛۛ۟ۙۙۚۥۚۙۙۙۚۥۛۛۚۚۛ۟ۡۥۛ۟ۡۗۡۥۛۛ۟ۙۙۚۥۚۙۙۙۚۥۛۛۚۚۛ۟ۡۥۛ۟ۡۗۡۥۛۛ۟ۙۙۚۥۚۙۙۙۚۥۛۛۚۚۛ۟ۡۥۛ۟ۡۗۡۥۛۛ۟ۙۙۚۥۚۙۙۙۚۥۛۛۚۚۛ۟ۡۥۛ۟ۡۗۡۥۛۛ۟ۙۙۚۥۛۛ۟ۙۙۚ
走廊上的客用浴室隐藏在白色的空间中,带有窄光束的定向照明为这间客用浴室营造出特殊的氛围,天花板上的隐藏装置使光线散发不出来,不会使眼睛眼花撩乱,完美地勾勒了房间的色调。
ۥۛۛ۟ۙۙۚۥۚۙۙۙۚۥۛۛۚۚۛ۟ۡۥۛ۟ۡۗۡۥۛۛ۟ۙۙۚۥۚۙۙۙۚۥۛۛۚۚۛ۟ۡۥۛ۟ۡۗۡۥۛۛ۟ۙۙۚۥۚۙۙۙۚۥۛۛۚۚۛ۟ۡۥۛ۟ۡۗۡۥۛۛ۟ۙۙۚۥۚۙۙۙۚۥۛۛۚۚۛ۟ۡۥۛ۟ۡۗۡۥۛۛ۟ۙۙۚۥۚۙۙۙۚۥۛۛۚۚۛ۟ۡۥۛ۟ۡۗۡۥۛۛ۟ۙۙۚۥۚۙۙۙۚۥۛۛۚۚۛ۟ۡۥۛ۟ۡۗۡۥۛۛ۟ۙۙۚۥۚۙۙۙۚۥۛۛۚۚۛ۟ۡۥۛ۟ۡۗۡۥۛۛ۟ۙۙۚۥۚۙۙۙۚۥۛۛۚۚۛ۟ۡۥۛ۟ۡۗۡۦ۫ۡۜۛ۟ۚۛ۫ۦۜۜۚۡۜۛۜۥۛۛ۟ۙۙۚۥۚۙۙۙۚۥۛۛۚۚۛ۟ۡۥۛ۟ۡۗۡۥۛۛ۟ۙۙۚۥۚۙۙۙۚۥۛۛۚۚۛ۟ۡۥۛ۟ۡۗۡۥۛۛ۟ۙۙۚۥۚۙۙۙۚۥۛۛۚۚۛ۟ۡۥۛ۟ۡۗۡۥۛۛ۟ۙۙۚۥۚۙۙۙۚۥۛۛۚۚۛ۟ۡۥۛ۟ۡۗۡۥۛۛ۟ۙۙۚۥۚۙۙۙۚۥۛۛۚۚۛ۟ۡۥۛ۟ۡۗۡۥۛۛ۟ۙۙۚۥۚۙۙۙۚۥۛۛۚۚۛ۟ۡۥۛ۟ۡۗۡۥۛۛ۟ۙۙۚۥۚۙۙۙۚۥۛۛۚۚۛ۟ۡۥۛ۟ۡۗۡۥۛۛ۟ۙۙۚۥۚۙۙۙۚۥۛۛۚۚۛ۟ۡۥۛ۟ۡۗۡۥۛۛ۟ۙۙۚۥۚۙۙۙۚۥۛۛۚۚۛ۟ۡۥۛ۟ۡۗۡۥۛۛ۟ۙۙۚۥۛۛ۟ۙۙۚ
该项目的居住区域融合了现代风格,简单的形状和经典的元素,遵循自己的节奏,客厅厨房餐厅在同一轴线上,为了使家具组看起来有趣,组合中使用了不同几何形状的元素。
开放式衣帽间具有空间开阔、设计感强、布局舒适、实用性高、时尚美观。
ۥۛۛ۟ۙۙۚۥۚۙۙۙۚۥۛۛۚۚۛ۟ۡۥۛ۟ۡۗۡۥۛۛ۟ۙۙۚۥۚۙۙۙۚۥۛۛۚۚۛ۟ۡۥۛ۟ۡۗۡۥۛۛ۟ۙۙۚۥۚۙۙۙۚۥۛۛۚۚۛ۟ۡۥۛ۟ۡۗۡۥۛۛ۟ۙۙۚۥۚۙۙۙۚۥۛۛۚۚۛ۟ۡۥۛ۟ۡۗۡۥۛۛ۟ۙۙۚۥۚۙۙۙۚۥۛۛۚۚۛ۟ۡۥۛ۟ۡۗۡۥۛۛ۟ۙۙۚۥۚۙۙۙۚۥۛۛۚۚۛ۟ۡۥۛ۟ۡۗۡۥۛۛ۟ۙۙۚۥۚۙۙۙۚۥۛۛۚۚۛ۟ۡۥۛ۟ۡۗۡۥۛۛ۟ۙۙۚۥۚۙۙۙۚۥۛۛۚۚۛ۟ۡۥۛ۟ۡۗۡۦ۫ۡۜۛ۟ۚۛ۫ۦۜۜۚۡۜۛۜۥۛۛ۟ۙۙۚۥۚۙۙۙۚۥۛۛۚۚۛ۟ۡۥۛ۟ۡۗۡۥۛۛ۟ۙۙۚۥۚۙۙۙۚۥۛۛۚۚۛ۟ۡۥۛ۟ۡۗۡۥۛۛ۟ۙۙۚۥۚۙۙۙۚۥۛۛۚۚۛ۟ۡۥۛ۟ۡۗۡۥۛۛ۟ۙۙۚۥۚۙۙۙۚۥۛۛۚۚۛ۟ۡۥۛ۟ۡۗۡۥۛۛ۟ۙۙۚۥۚۙۙۙۚۥۛۛۚۚۛ۟ۡۥۛ۟ۡۗۡۥۛۛ۟ۙۙۚۥۚۙۙۙۚۥۛۛۚۚۛ۟ۡۥۛ۟ۡۗۡۥۛۛ۟ۙۙۚۥۚۙۙۙۚۥۛۛۚۚۛ۟ۡۥۛ۟ۡۗۡۥۛۛ۟ۙۙۚۥۚۙۙۙۚۥۛۛۚۚۛ۟ۡۥۛ۟ۡۗۡۥۛۛ۟ۙۙۚۥۚۙۙۙۚۥۛۛۚۚۛ۟ۡۥۛ۟ۡۗۡۥۛۛ۟ۙۙۚۥۛۛ۟ۙۙۚ
主卧延续客厅的风格,柔和的灯光,温馨舒适,一种优雅、宁静的高级美。
-END-
173㎡现代轻奢风,端庄优雅,时尚大方!
215㎡简约大平层,自然又有气质!
原木+白色,擦出不一样的小清新火花
生活
-
-
- 新品首发|Nin·O 无界系列,灵动自由的工业轻奢
- 今天展示的工业轻奢——无界系列没有边界 自在生活自由态度 一种现代的传说每一次的睁开眼睛都能让我找到属于自己的空间心灵也因此而变得更为丰富 充盈 无界客厅半悬空设计电视柜面板与背景墙的无缝衔接为空间注...
- 小尼宅配
-
-
-
- 邱德光:以达「天际」
- 01保利·天际ABOUT POLY SKYLINE受东莞保利邀约,设计「天际」时,距离广州保利·天悦(保利「天」字产品系之肇始)样板间的落成大约过了十年。在携手打造多城、多座「天悦」样板间之后,我们首度探索「天际」,...
- 拓者设计吧
-
-
-
- 门厅这样设计,才够实用!
- ▲ 点击蓝字“装修百宝书”,你想知道的装修问题,答案全在这里啦!查看半包装修要花多少钱?查看全包装修要花多少钱?查看10万以下的装修方案门厅是家装中重要的一个位置从内到外的一个过渡门厅装修的好看又...
- 装修百宝书
-
-
-
- 魔都宝藏家居店曝光!预算有限,照样一站式get高品质日式家装!
- 徐家汇店是NITORI中国首家旗舰店,潮流家居设计日本直送!东京到上海,时尚家居零时差!高品质家具和样板间、精美的日式餐具、进口生活用品……一站式买齐日常生活所需,一不小心逛到上瘾!买家具就怕喜欢的款式...
- 发现上海
-
-
-
- @设计师:你不一定要做灯光,但你一定要懂灯光
- 近几年,消费的升级,装饰风格的升级,人们越来越知道灯光的重要性,设计师更需要掌握灯光对空间的表现;合理科学的设计灯光,以人为本,让业主住得舒服,更能体现设计的价值。设计师用造型,色彩,材质的组合来...
- 设计之旅
-
-
-
- 这样的设计,看着就舒适!
- 质感空间 Alexey Seldin,室内设计师、CG艺术家,十分擅长对室内材质的把控,却不失于整体。以简洁的线条,交汇出极致舒适的生活哲学;以艺术玩味空间,透过现代架构,善用材质与比例创造舒适意境。01Schne...
- 米兰设计之旅
-
-
-
- 阳台小型草花选这5种,只要光照充足,就能变成“开花机器”
- 如果你家的阳台上有充足的光照,每天有6~8小时以上的直射光,那最好养一些可以经常开花的观赏花卉,最好选一些能在不同季节开花的植物,就可以保证四季都有花卉观赏,而下面这些观赏花卉就比较容易打理,新手也...
- 养花交流
-
-
-
- 买一次吃半年!这几种菜阳台就能种,轻松打造小菜园
- 微博有个热门话题“阳台种菜”,网友们纷纷晒出自家的阳台菜园,洋溢着种菜的热情。有一个小菜园,过上都市陶渊明的生活,是我的心愿,吃到自己种的新鲜蔬菜,那种丰收的喜悦是买不来的快乐。所以我买房的时候挑...
- 有品生活
-
-
-
- 水平线琚宾新作丨重庆江北嘴国际金融中心A-ONE营销中心
- △重庆江北嘴国际金融中心A-ONE重庆是中国著名的山城,山环水绕,重庆融创华城房地产开发有限公司打造的超高层建筑群江北嘴国际金融中心A-ONE,由4栋超高层建筑组成,分别是A1栋103层高470米、A3栋73层高300米、...
- 火车头设计
-
-
-
- 139㎡现代风格,打造高品质生活空间!
- 高级住宅 ARTIMITRO INTERIORS设计,139㎡融合了经典元素的现代风格项目,为了保持内部的完整性,背景为白色,主要材料为浅色木材和梦幻般的蔓藤花纹天花。平面图▽设计师合理划分区域,运用木材、大理石交互拼...
- 室内设计秀
-
-
-
- 大平层+垂直森林,一层三户的独立式户型太赞了
- Park Nova独立式平层公寓「垂直森林」可谓是可持续住宅建筑的典范设计,建筑师在保持城市现有规模和体量不变的情况下,在都市内再造森林,重现自然的生态环境。今天分享的这个名为柏皓「Park Nova」的豪华住宅就...
- 居住空间
-
-
-
- 首发|200㎡ 开放式大平层,极简黑白灰·讲述留白的艺术!
- 客厅 昂首望晴川,举步踏星河在设计师的设计中,家人之间的交流是非常重要的。因此,他对动线的设计十分考究,因为动线的加入,不论在家里的哪个角落,家人都可以看到彼此。全屋采用无主灯设计,光线更加柔和,...
- 拓者设计吧
-
-
-
- 农业文化展馆设计色彩强调的统一性、营造性以及目标观众定位性
- 发 现 生 活 中 最 美 好 的 设 计打开音乐聆听设计伽的声音色彩在整个农业文化展馆内部随处可见,包括空间内部的界面色彩与材质色彩。色彩在农业文化展馆展示中起到渲染空间氛围、营造空间意境、衬托...
- 设计伽
-
-
-
- 100㎡舒适北欧3室2厅,静享清新浪漫的小时光
- 福利提示:文章末尾可免费领取4套设计+报价每天仅限5个名额设计理念 Idea 这是一套北欧风格的装修案例,设计师在方便生活起居的基础上,改造了空间的布局,增大储物空间并在细节上以迷离的色彩装点朦胧的幻想...
- 装修效果图
-
