- 如何从设计源头 挖掘上十亿价值
- 来源:搜建筑
一、行业背景
房地产企业如同一个小社会,难免存在各种问题:
内部管理混乱,内部关系复杂,专业不作为、难作为、乱作为,各种问题事项频发,内耗惊人,……
——这些问题会严重影响公司经营内功,进而严重影响企业利润。
好的体制,可以让企业公开化、阳光化,容易或自动暴露出各种问题,问题只要暴露出了,都好解决,监督和倒逼解决各种问题,可以很大程度提升经营内功,让各专业条线充分发挥作用,从投拓、设计、融资、成本、工程、营销等各方面,分别挖掘巨大价值。
常见项目设计状态——存在巨大的价值挖掘空间
多则数天,少则数小时或几条建议便可轻松挖掘吓人效益。建筑方案的优化设计可以改变项目的整体盈利能力。15年之前我们做过数十个项目,创造上十亿价值,主要项目数据如下:
16年某公司3个月建筑方案优化设计总结
价值统计:评估2.33亿,落地1.26亿。
17年某企业地库优化降本统计 9000万
某公司最近两年设计专业问题事项 30.9亿 14.5亿
行业背景总结
设计费只占建设成本的1%左右,而影响的是一百倍设计费的建造成本,影响的是数百倍设计费的销售额,影响的是成千上万家庭一辈子积蓄换来的几十年的生活空间!建筑方案设计关系项目的大成本、大品质——进而左右项目大的赢利能力。建筑方案设计应该从开发商项目赢利的角度进行精细化最优设计,不同的设计有上千万上亿的效益差别。
暴利时代已经结束,利润的高低关系生死存亡、行业下行期势必要充分挖掘项目价值。
二、具体案例
项目利润的主要关系方面:
投资拿地——货值精准最大化
融资成本——高周转、设计标准化
市场定位——产品如何打败对手或避免竞争
规划设计——价值挖掘、产品溢价、提敏感点、降无效本
招标采购——降设计周期、设计标准化
成本把控——对标、第三方检验
工程质量——设计标准化、高质量
开发周期——设计快速精准、标准化
物业客服——规避缺陷、提高服务
设计可以从哪些技术方面提高利润
一、降无效成本
1、车库停车效率
2、结构指标
3、时间效率
二、产品溢价
1、资源利用最大化(景观、教育、地铁等)
2、总图利润最大化(高货值产品、商业、整体品质等)
3、销售或使用面积最大化(合理赠送、计容面积与销售面积差、奖励面积)
4、户型最优化(平面合理化、得房率、无效面积、空间利用效率)
三、提敏感点
小区大门、景观、立面、门头大堂、公区装修、地库公区大堂
地库优化降本实例
白沟某项目地库跟踪优化6次
邯郸某项目地库
地库优化降本基本原则
1、指标最小化——需求统计最小化、人防面积最小化、地上停车最大化。
2、结合规划设计——楼间距尽量满足地库柱网模数,与规划综合设计。
3、尺度精准化——对照普通车库和机械车库尺寸标准示意图,车位的基本尺寸留有50-100余地即可。
4、车道两边垂直停车——严格做到车道两边垂直停车,尽最大可能避免设备、口部的影响。
5、非标准车位尽量用足——子母车位、微型车位等非标准车位尽量用足比例。
6、用足各空间——原则上不允许出现10平方米以上的无用面积。
7、设备房精准设计——设备需要结合平面布置,避免空间浪费;各设备房面积勉强够用即可。
车库配置问题
三四线城市出库基本都是亏本的滞销货值,原则上仅满足最少配置数量即可。
总图优化增加利润案例
下图洋房增加1.25万平米,货值增加1250万元。
总图优化增加利润案例二
某项目增加容积率
某项目增加容积率
天津某项目增加洋房
当时的溢价办法与评估
天津某项目阳台和设备平台溢价办法示意图
Loft溢价问题
17年初对某公司书面意见:
1、白沟项目一有13.2万平米面积没有用足4.5米层高,如全部做4.5-6米层高的LOFT产品,可增加12万平米使用面积,如每平米扣除成本溢价2000元,将有2.4亿元的毛利润。个人觉得4.5米层高是否用足和容积率是否做满一样是重大设计条件,原则上应用足,如不能用足,是否汇报到集团董事层面。
2、三项目公寓产品测算价格存在不合理(关系产品设计是否把层高用足,做够买一送一的LOFT产品,价格合理可以避免做LOFT也卖不出价格),如下表:
当时给领导的沟通记录
最终销售情况
Loft15000左右,平层9000左右,排号数平层大概只有Loft的四分之一。
18年底白沟项目二,个人建议被采纳,设置了4万平米Loft,后面销售反映卖得贵又快,5.2米Loft均价12238,平层公寓均价8128,Loft扣除折容售价贵2462,单方成本贵800,Loft比平层毛溢价1662,毛利润多6648万。最近区域反映之前取消Loft错了,现在要尽量多做Loft了。
结论:在房价8000以上城市,Loft销售既贵又快,应尽量设足。
深圳某项目——因地制宜量身定制户型
优化把景观、朝向、面宽、间距、商业界面等资源用足,同时也把道路、噪音、空气和视觉污染等不利因素避免到最小化。
本项目优化变公寓形式为住宅形式,提高大品质。
对小区内部通风更加有利,也避免南面一堵墙,设为小户型住宅,有更多的端部高品质户型,同时也更加有利于结构,便于销售。
如价格差为3000元每平方米,则价值增加:21728*0.3=6518.4 (万元)
公摊面积——可能增加成千上万平面套内面积
很多高层住宅户型公摊面积太大,特别是北方户型,核心筒经常是70-80多平方米,好的设计可以控制在60平方米左右(防火规范修改之前,允许前室穿套地区)。如果每户增加3平方米套内面积,则可以把两间卧室的边长拉大0.4米,原来放不了电视台或衣柜的卧室就都可以放了,每节约一平米就可以舒适一间房。
公共建筑售价往往比住宅更高,也同样需要严格控制公摊面积,当然特别追求舒适度的除外。
14年华南城三地住宅项目优化设计,增加套内面积3万多平方米,折算价值是1.8亿多,换算建造成本也有约0.5亿。
泰禾系列别墅户型优化
原户型问题点评:
1、厨房L形,效率低,手盆未直对窗户、背光,且因开门位置与餐厅联系不够紧密。
2、楼梯过于封闭,没有结合客餐厅设计,且导致客餐厅为刀把形和不利于结构。
3、洗手间没窗户,且空间较小,三面采光的别墅一般原则上全明。
4、卧室窗户过大,且门后部分属于无效窗户。
5、主洗手间空间异形,淋浴间可能对餐厅顶部有影响。
6、此处应开窗,让楼梯间通风采光。
7、一楼洗手间拔气道穿过二楼卧室。
8、二楼洗手间下水和降板对一楼卧室有影响,且可以增加淋浴间。
优化说明:
1、入口对景处避开窗户,可自由设对景照壁。
2、客餐厅形成完整长方形,空间完整大气。
3、U形厨房,手盆正对窗户,餐厨关系更好。
4、洗手间有窗户,尺寸正常,且多设一道门,晚上可做套房。
5、卧室多一衣帽间。
6、卧室可正常布置1.8米床。
7、洗手间面积缩小,效率更高,形态规则,多一手盆。
9、此卧室增加衣帽间,带明卫,可正常布置1.8米床。
绿城系列极小别墅户型优化
原户型问题点评:
1、玄关可布置L形柜子,对于81平米的面积来说,玄关尺寸偏大。
2、客厅内三个门洞,很不稳定;沙发后为走道,相当于减少了有效面宽;且没有可放电视的背景墙;客餐厅进深偏小。
3、作为仅一层两房的别墅,又没有公摊,卧室尺寸有些偏小,家居应可正常布置。
4、卫生间面积有些浪费。
5、主卫生间空间异形,导致主卧也空间异形,且面积有些浪费。
6、主卧室由于院子开门导致衣柜不连续。
7、存在两处交通空间浪费。
优化一说明:
1、玄关布置为L形柜子,深度压缩300。
2、客厅空间完整稳定;有可放电视的背景墙;客厅面宽增加500;客餐厅进深增加300。
3、卧室进深增加500,家居应可正常布置。
4、卫生间变为够用型。
5、主卫生间避免空间异形、面积浪费、走道浪费等。
6、主卧室进深增加300。
另外,外墙长度减少了1700。
优化二说明:
主要是在面积一样和保证各功能一样的前提下,增加了一间房,且三卧室均正常尺寸。
1、取消玄关,增加一南北通透的卧室;此卧室与原次卧室相比进深增加700。
2、客厅空间完整稳定;有可放电视的背景墙;客厅尺寸与原来相同。
3、此卧室亦可正常布置家居。
4、卫生间变为够用型。
5、主卫生间避免空间异形、面积浪费、走道浪费等;主卧室尺寸与原来相同。
另外,外墙长度减少了3500。
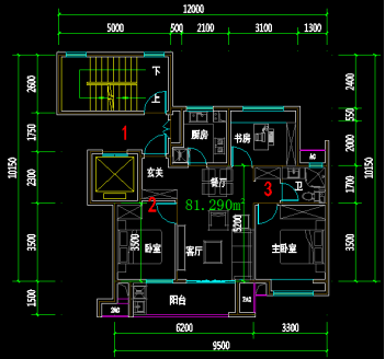
系列标杆企业网红户型优化——上海保利78平小三房
原户型问题点评:
1、交通核存在较大浪费,极小户型不能有一丁点浪费。
2、卧室墙不规整,实际为无效空间。
3、卫生间尺寸过小,本来可外移手盆设为分离式。
另外,本户型面积比78平大,不含保温的面积为81.29。
优化一说明:
1、改变楼梯,套内轮廓不变,每户面积减少约2.4平。
2、卧室墙规整化,改变开门位置,提高卧室家具效率,鞋柜进深由400变为600。
3、卫生间外移手盆,设为各洁具尺度正常的分离式。
优化二说明:
1、改变交通核,每户面积减少约2.8平。
2、玄关储藏空间有所增加。
3、卫生间外移手盆,设为各洁具尺度正常的分离式。
4、厨房变为规则的U形布置。
5、南向卧室、客厅、主卧进深全部增加300,两卧室均可布置1.8米床,品质大大提升。
6、卧室墙规整化,改变开门位置,提高卧室家具效率(当然对通风有些不利),且卧室避免电梯干扰。
系列标杆企业网红户型优化——上海保利89平三房
原户型问题点评:
1、交通核存在较大浪费,极小户型不能有一丁点浪费。
2、客餐厅宽度不够,实际使用只能没有餐厅。
另外,本户型不含保温的面积为92.5。
优化一说明:
1、仅改变交通核,每户面积减少约2.2平。
2、形成比较独立的餐厅、客厅,品质大大提升。
3、形成高效的U形厨房。
优化二说明:
1、仅改变交通核,每户面积减少约2.8平。
2、形成比较独立的餐厅、客厅,客餐厅更加方正,品质大大提升。
3、形成高效的U形厨房。
4、北侧主卫、公卫、书房进深增加50。
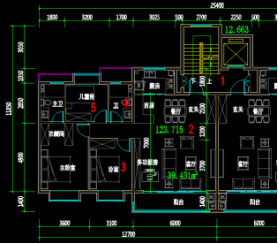
系列标杆企业网红户型优化——上海万科130平户型
原户型问题点评:
1、电梯入户不宜设于小面积户型,其赠送具有欺骗性,如把电梯门开在楼梯平台处,则电梯厅本来就是纯套内空间,虽然业主可以使用,但毕竟是公共区域,开发商还得多花钱装修该区域。
2、玄关鞋柜距离入户门较远。
3、客厅、餐厅、多功能房等空间成阶梯形状,空间不够完整,客厅有效进深仅2.9米,尺度过于紧张。
4、公卫窗户对电梯厅有影响,非真正的明卫。
5、次卧室进深仅3.25米,对于此面积来说过小。
6、儿童房尺寸偏小,不能算正常卧室,加上多功能房也非常小,该户型只能算2+2房,一般情况应优先保证3个房间尺度正常,形成3+1。
优化一说明:
1、取消电梯入户,节约公摊5.8平,既提高得房率,又节约公区装修费用。
2、客餐厅形成完整的方厅,客厅进深增加0.8米,整个厅的面积增加5平米,空间更加大气和具有别墅的感觉。
4、公卫成真正的明卫,考虑到此户型已经两卫,不设成分离式亦可,有利于空间整体和节约建造与装修费用。
5、次卧室进深增加0.45米,能够布置1.8米的床。
6、儿童房进深增加0.35米,面宽增加0.2米,与主卧室亦是可分可合,总体衣柜长度基本一样,主卧室空间更加整体。
优化二说明:
1、取消电梯入户,节约公摊5.1平。
2、设有独立玄关。
3、客餐厅形成完整的宽厅,虽然没有了大阳台,但是赠送了大瓢窗,整体更加豪华。
4、次卧室进深增加0.35米,能够布置1.8米的床。
5、在保证其它卧室尺度比较正常的情况下,变多功能房为卧室;形成3+1宽厅设计。
6、公卫成真正的明卫。
15年-19你累计分享的设计挖掘价值的文章
01地产项目容易忽视掉上亿效益!——看建筑方案及其优化设计如何规避。
02万科典型标准户型的优化设计。
03一个卖不动的三线项目,建筑方案这样优化可多赚8千万!
04这样进行规划与户型的结合优化——轻轻松松多赚1个亿!
05万科的爆款户型被优化爆了!
06地产乱世正需设计英雄——创新设计提高文旅地产项目盈利能力。
07这个项目平均赠送了三分之一的面积——60平三房、90平四房两卫。
08泰禾系列别墅的极致细抠优化
09绿城83-180㎡的极小别墅——“抠了又抠”的优化设计
10万科等标杆地产的“网红户型”,这样优化更完美?
三、优化理论
设计可以从哪些管理方面支撑提高利润?
一、问题暴露机制:
想方设法暴露一切问题,维持阳光化的企业环境。问题暴露出来了等于解决了一半
言论自由、平等对话:允许和鼓励会上会下发表不同意见,专业讨论不分职位高低,避免官僚作风和官大一级压死人,下属的不同声音往往是个人比较有把握才提出,群策群力对领导决策是有好处的。越是好领导,越是开放包容,愿意接受不同声音,越是问题人物,越是在意权威、面子。
允许和保护越级汇报:下级越级汇报一般是比较有把握或者比较重大的事情,不然不会这么冒险,越级会严重得罪领导,但对公司往往非常有利,领导往往坚决不允许越级,其实部分越级也可能避免领导继续犯错。
建立内外投诉论坛:对外是客户,对内是员工,均可以在上面匿名发帖反映各种问题,公司必须正面作出答复。这个论坛可逐步扩大访问范围,最终任何人都可以访问,主动把公司和客户之间,以及公司内部的各种问题暴露出来,倒逼解决内外各种问题,拿出对客户负责和整顿公司的决心。(万科有过类似做法)。王石说“这个论坛的存在,对于公司发展,比多少管理制度都更加有效。” 把各种问题公开化、阳光化,形成全员舆论监督,是解决很多问题的最好办法。
问题上报制度化:划分问题级别,员工或业务部门必须主动上报,如被发现问题则翻倍惩罚。
二、团队标准
1、集团多技术类总工,评判标准是能否快速挖掘设计价值、避免各类设计问题。
2、区域多综合类人员,评判标准是项目能否既快速又高质量推进。
三、授权体系
在综合各方诉求和考虑各方面因素的基础上,应有各专业最高话语权,避免全部一把手说了算,如有重大争议则需要决策。
四、监督团队
在地产各业务部门之外设立一比较独立的专业团队,可以直接规总裁办或集团管。
包含营销、设计、成本、工程各专业人员,主要为各事项比较独立的裁判和监督部门。比较公平公正和不受干扰地参与各类事项。
五、督倒逼机制——避免各系统既是运动员又是裁判员,特别在非受其考核部门设定监督功能,亦可引入第三方共同监督,监督倒逼各业务不断进步。如:
1、设计、物业、客服三大缺陷库倒逼设计必须加强审图。
2、客服通过第三方实测实量过程监督工程质量;
3、工程监督成本材料是否合格和施工企业是否够格;
4、成本或审计主导设计优化工作,监督设计的经济性;
5、成本和运营监督工程工期,抽查施工组织设计方案是否可优化;
6、审计主导第三方计量监督成本结算;审计监督各系统问题及其整改;
7、营销主导竞品对标,监督设计做出最有竞争力的产品;
8、设计参与销售定价;
9、财务监督各种费用;
10、一二级设计和区域设计相互监督竞争;
11、集团设计审核监督地产设计是否有问题。
12、利润为本考核倒逼各系统充分挖掘价值空间。(如倒逼成本对标降低、集采降本、设计去无效成本和货值最大化等)
——该体制可以让企业公开化、阳光化,自动暴露出各种问题,监督和倒逼解决各种问题,可以很大程度提升经营内功,让各专业条线充分发挥作用。
设计监督倒逼机制
一、创新背景:
设计现状:有的公司最近数年,设计源头存在很多问题,却一直未能根本改变和很难改变,大的方面,每年规避风险和挖掘价值上十亿价值都有可能,小的方面,各类乱七八糟的缺陷在重复发生。
二、监督倒逼竞争机制:
1、投资中心:可并入设计人员,加大强排方案研究,精心研究各地重点投资项目,做出能够货值最大化的方案(地库效率、结构指标、总图货值、户型溢价等方面)。
2、营销系统:提供同类竞品,要求研发拿出至少不能输于对手的产品,产品好坏营销监督倒逼。
3、研发中心:拿地后由投资提供参考总图和户型,如研发中心主要是项目组认可,就直接推进,如不认可,就提出可行优化建议或设计出不能低于一级的强排指标和产品竞争力。
4、区域研发:对于集团投资或研发提供的总图和户型,如区域不认可,也可以提供不能低于一级的强排指标和产品竞争力。
5、设计院:可以进一步深入研究,如能够提高产品竞争力或利润,可以给与一定的奖励。
6、第三方审图或优化:在集团或审计监察设立不受地产考核的设计监督审图部,也可借助结构和建筑优化公司。在同样条件下,哪方的方案胜出,哪方就多给与投资激励。
7、成本中心:对标监督成本是否合理,如结构指标是否高,成本有权利寻求优化核实,最终是否有优化空间由成本、设计、工程三分确认。
8、物业客服:监督设计是否有各种维修和客诉风险。
9、产品研发:设计自己的缺陷库倒逼自己加强审图,自己的缺陷库数量多,且多数是自己承认的。各类大问题,不能再胡来了。
10、设计组:自己能做户型倒逼设计院做出最优户型,形成强烈竞争。
设计系统工作思路
一、核心是图纸把控审核
不仅要消灭各种细节问题,也要从投资、客户、销售、成本、工程、利润等各方面全面设计合理。
——设计能够经受客户、营销、成本和客服等各种检验?
投拓——排查各种风险,精准利润最大化指标。
客户——精细化人性设计,规避各类设计缺陷。
销售——竞品对标,同样条件下最优户型。
成本——客户敏感点倾斜的合理适配,避免无效成本,各类成本对标合理化最低。
工程——从设计的角度降低施工难度、减少质量隐患。
利润——提高可售比,产品溢价设计,利润最大化设计。
二、高周转
1、需设计、前期、营销、成本各系统以及集团和区域、合作方紧密配合、穿插推进。
2、设计组可在定位阶段抢跑设计。
三、标准化
1、全员标准化意识,统一户型评判标准,不能各有个人喜好;标准才有效率,时间就是利润。
2、各区域、各中心、各专业精细打磨、反复应用检验、不断复制应用和精细化提升的各户型单元全套施工图纸。(景观各部品、小品、植物如图户型一样为全套图纸或品种规格)
四、要利润
1、成本适配,无效成本最低化(结构指标、单车位面积或单车位造价);
2、货值或利润最大化方案(可销比,高货值产品,销售面积和使用面积溢价)。
五、作品情怀
1、创新探索,打造部分明星作品;
2、追求最优户型;营销、设计系统和设计院等倒逼设计组做出最优户型。
怎样规避各类设计缺陷?
一、必须收集整理缺陷库
设计、工程、成本、物业、客服全面收集。
二、多方全过程规避
1、学习宣贯:系统会集中学习探讨,区域组织学习讨论建议,可扩展到其他系统学习讨论。
2、技术标准:讨论结果反馈到产品研发中心,最终制定完善各专业技术要点、审核要点等批量管控。本册缺陷解决方案仅供参考。
3、图纸会审:包括物业、客服各系统和设计各专业审核会签。(总图+户型,各层方案,扩初,施工图)
4、总工严控:增加设计与施工经验丰富的总工,专门审图和巡检。
5、过程验收:包括物业、客服各系统和设计各专业在各户型样板间、一层主体完成时、设备安装时、交房之前都进行样板验收,样板确认后方可继续施工。
6、全员防范:包括物业、客服各系统和设计各专业,甚至包括设计院、施工单位,全员学习各类缺陷库。甚至有针对设计院、施工单位的专项缺陷库。
7、档案责任:建立项目全过程档案,明细各阶段各专业责任人。
8、结果监督:以结果为导向,客服、物业、审计监督各方面客诉、缺陷情况。
9、奖罚制度:入库问题原则上不允许在新项目出现,考虑到管控能力提升需要一定的时间,在18年3月份以后出图的项目,每发现一个问题扣考核质量分2分。
——设计、审图、施工、巡查、验收等各阶段都应起作用。
关于标准化户型
标准户型研发和施工图库形成流程
各区域、各中心、各专业精细打磨、反复应用检验、不断精细化提升的各户型单元全套图纸及其详细成本数据。景观各部品、小品、植物如同户型一样为全套图纸或品种规格。
同一大区域,同样的面积、面宽和房型,总会有个最优的户型,组织最优秀的设计力量,通过极致细抠,实现同样的功能面积小,同样的面积功能多,再加反复应用修改完善,可以形成非常成熟和有竞争力的标准户型,可以大大减少设计周期和提高产品质量,把各细节要求体现在图里,避免过多难以应用的文字要求。
关于优化设计
一、 基本所有项目都有优化空间。
二、设计阶段越早,挖掘价值的空间越大——优化设计的介入时间越早越好。
三、合法、合规 、合情、合理——在符合法律、规范、区域项目情况的前提下做合理性优化设计。
四、 不影响开发周期——避免错过地产的大好形势、保证现金流。一般项目改动不大,个人绘制优化图纸,设计院稍微加班即可完成;对于新项目,因为直接提供优先的户型设计,能够更快在集团各系统确认,反而加快了设计进程。
五、优化的正确性——先后经过规划中心的内部讨论、集团营销确认、区域设计和营销确认、设计院确认反馈、审图等环节,避免违反规范或降低品质等错误的优化。(设计院和反对优化的人都不会让优化错误)
六、不影响后期交房——已销售的项目仅做套内细节合理优化、核心筒合理和减无线面积优化等,不会带来后期交房投诉等问题。
优化容易砸了各方的场子,容易遭遇强烈抵制和诋毁。各类工程质量问题,一般是施工原因,有的公司可能说是高强钢筋或户型的原因,是违背常理的。更有可能说是结构设计或结构优化的原因,结构设计满足规范是有30%左右的富裕量的,哪怕误差或偷工减料30%也还安全呢,并且设计有上百公斤的荷载,入住前荷载还没有上就开裂了。有的公司对于一系列工程质量问题,都是没有优化过的项目,也怪到结构优化,而且优化项目也没有优化楼板和取消梁。多年没介入优化了,也说是优化理念还在用,而优化人员在职的时期,基本没有这些工程质量问题。
建筑方案优化重要性
建立一个以挖掘项目价值为目标的专业监督机制,督促设计方做出最优设计——最大限度降低成本和提高品质、增加溢价、实现价值最大化。
建筑方案的优化设计——控制大成本、提高大品质、增加一系列溢价点——改变项目的整体盈利能力。
优化设计推行难的原因
一、 会暴露设计管理团队专业短板,可能伤害组织。
1、管理团队重心是管理和协调。
2、领导人都有专业限制,不是所有专业都擅长。
二、会暴露设计院的设计能力不足,可能伤害合作关系。
1、设计院追求的是顺利推进项目,不会追求极致设计。
2、专业厉害点的往往提拔为领导了,后期多是指挥少上阵,极致设计多需要高手反复亲自推敲。
3、设计院如完全配合优化,不仅增加自己的工作量,还可能失去专业价值,甚至失去后续项目设计。
4、缺少为地产商项目赢利而设计的意识。
三、优化公司水平参差不齐。
(过度包装、一套报告包打天下、虚报优化价值、新手优化老手等)
1、优化往往需要比设计院水平高,这样的人才稀缺。
2、项目量大了后,不是所有项目都有高手区深入研究。
四、优化的价值难以计算清楚。
1、过程优化设计图纸一直在变化。
2、结果优化好对比,但是往往错过了优化时机和落地阻力大。
3、建筑方案优化价值巨大,要么吓人,要么难以统计。
如何选择设计或优化单位?
一、看作品:
公司水平如何?看以前做过的三两个项目图纸或现场即可。
二、看团队:
大公司不是每个团队都厉害,部分小公司可能有单独干的顶尖高手,看公司实力和作品更要看团队实力和作品。
三、现场优化建议:
可以拿一套实际项目图纸,让设计或优化方现场点评问题和提出优化方案。
甲方、设计院、优化单位如何良性配合?
一、三方特点分析:
1、甲方涉及面广,但专业不精。
2、设计院多是流水线作业,在意的时间和收益。
3、优化单位各专业水平可能比较高,当地和项目具体情况了解不够详细。
二、三方如何分工合作:
1、甲方是队长、裁判、协调人。
2、设计院是配合实施具体落地团队。
3、优化单位是技术支持和服务方。
作者:陈国才,多年研究和推行建筑方案优化设计,但求尽可能地避免设计缺陷、精心打磨产品,挖掘价值、实现自我。更多交流与探讨,可在文章底部评论,或添加作者微信15817211729交流。
推荐一个
最专业的地产+建筑平台
每天都有新内容
扫描二维码关注
微信公众号“搜建筑”(ID:sjz9999)
合作、宣传、投稿
请加小编微信:soujianzhu2
其他
-
-
- “别废话”英语怎么说?可别告诉我是NO BB?!
- 👇 谢谢你关注我们! 不知不觉,2019年过去了一半! 年初定的目标,大家还在坚持吗? 我们准备了1000份完全免费的粉丝专享礼包,助力你的英语学习,没有领过福利的同学,一定不要错过。 一提到“别
- 华尔街英语
-
-
-
- 虎刺梅养护注意这3点,新手都能轻松养爆花
- 下午好啊~莎粒们 前两天有花友让我们推荐能四季都能爆花的植物,小编第一个想到的就是虎刺梅,然而很多花友担心虎刺梅有毒,也有些花友总是把虎刺梅养成绿巨人,虎刺梅真的有毒么?怎样才能让它四季都爆花呢?
- 塔莎园艺
-
-
-
- 疯了!茅台抢光,爱马仕抢光!这家美国超市在中国开业半天,被迫关门
- 欲翻倍9元股促大盘站上3000点 在诞生近四十年后,美国零售巨头Costco(开市客)在国内开出第一家实体店了,昨日正式开业。 01 美国零售巨头Costco上海店被挤爆 8月27日上午,大陆
- 中金在线
-
-
-
- 邮储银行2019年中期业绩出炉:净利润实现两位数增长 新零售转型加速
- 中报显示,邮储银行的拨备前利润与净利润继续双双保持两位数的增速。 作者:王海伦 ━━━━━━ 8月20日,中国邮政储蓄银行股份有限公司(下称“邮储银行”,股票代码:1658.HK)公布2019年中
- GPLP
-
-
-
- 上海两天降10℃!冷空气和暴雨齐至,网友:秋装可以准备起来了!
- 劳动报(ID:laodongbao 作者:罗菁) 这两天上海热浪来袭 昨天最高温度飚到37.1℃ 高温橙色预警高挂 成为今年第11个高温日 这也是8月的最后一个高温日 看看公园里的阿姨们 在公园里扇
- 青春上海
-
-
-
- 08.28收评|给力!大招来了!
- 目前100000+人已关注 加入我们成功跑赢大盘 今日头条财经领域最具影响力创作者 腾讯网年度十大财经大V 核心策略:仅仅创业板可以底仓观望,有效突破610天均线就可
- 跑赢大盘的王者
-
-
-
- 如何从设计源头 挖掘上十亿价值
- 一、行业背景 房企常见背景 房地产企业如同一个小社会,难免存在各种问题: 内部管理混乱,内部关系复杂,专业不作为、难作为、乱作为,各种问题事项频发,内耗惊人,…… ——这些问题会严重影响公司经营内功
- 搜建筑
-
-
-
- 当大连遇见晚霞,便成了一座太适合恋爱的城市
- 初秋时节 相信不少小伙伴儿 都被大连天空接连上映的 绝美晚霞大片刷屏过 当晚霞“正在发生” 仿佛每个人 都自动化身收集天空的爱好者 把一幅幅美若屏保的高颜时刻 珍藏在自己专属的“天空博物馆”里 ←
-
-
-
- 新中国70年奋斗历程和启示(值得一读)
- 点击蓝字 △ 关注我们 先看几组数据: GDP: 1913-1950年期间,GDP年均增长率的世界平均水平为1.82%,而中国为-0.02%,也就是说中国经济增长处于停滞状态; 1952-1978年期
-
-
-
- 当代青年吵架诅咒大赏,乔碧萝被迫参战
- 各位乡亲父老 兄弟姐妹 还在为吵架就忍不住流眼泪的自己懊恼吗? 还在为跟别人撕x完才想起如何反击头疼吗? 还在为辱骂前任们没有新词汇难受吗? 不要犹豫 不要徘徊 不要等待 今天 我们为大家带了 当代青
- 万星人
-
-
-
- 我们问了十瓦辛格·卢十个问题,每个回答都洞彻灵魂
- 8月29日Redmi新品发布会前,我们和卢总进行了一次深入灵魂的真诚的沟通。 在你收获的称号中,更喜欢“卢伟刚”还是“卢十瓦”? L:其实我更喜欢十瓦辛格·卢。 最近Redmi声势好凶,在做产品
- 小米公司
-
-
-
- 熬最贵的夜:90后朋克养生的嗨与丧
- 又嗨又丧、慢性自杀+疯狂养生混搭,朋克养生就是这样一种边透支身体边自救恶补的生活行为。一边用最贵的面膜和眼霜,一边熬最长的夜;一边吃火锅,喝雪碧、可乐等碳酸饮料,一边饮王老吉败火。面膜、熬夜霜、枸杞、
- 半月谈
-
-
-
- 内马尔重返巴萨!只差这一步!
- 还有几天,欧洲夏季转会窗口就会关闭。现在所有人的焦点,就是下面这几位,最后到底去哪里。 目前情况最明朗的是桑切斯,迪马济奥和BBC今天凌晨都爆料了,国米与曼联就桑切斯的租借已经达成一致,租借费500
- 愤怒小鸟玩足球
-
-
-
- 有爱!老师们撑起了一片天
- 近日,一段 老师们排队撑伞为学生挡雨 的视频 在网上引发网友们的关注 原来,视频中的师生来自延安新区第一小学 8月26日,全校正在体育馆召开晨会 突降大雨,直到晨会结束后雨还没停 为了不让孩子们在
- 中国之声
-



朋友会在“发现-看一看”看到你“在看”的内容