零零客微文大全00ke.net

  • 深圳屋主买下184㎡,摩登都市风+5米长衣帽间,装出大宅气度!
  • 来源:家的要素
图片

 家的要素,

 让城市里忙碌的年轻人住得更好。

图片
说在前面



屋主S小姐,谈吐优雅,气度温和,从事金融行业。从北京搬到深圳工作生活后,她买下了这套184㎡的大宅作为一家三代(夫妻二人、女儿、母亲)的长久居所。


屋主需求:

1. 对颜值审美有着极高要求,尤为偏爱高品质、有质感的家具,在这方面给足预算。

2. 追求经典品质的同时,也很关注空间实用性与细节的处理。

3. 对奢侈品颇有研究,收纳方面需要兼具储藏和展示的功能。

4. 希望家回归舒适本质,能优雅地生活,实现自己内心最期待的状态。


图片


房屋信息



坐      标:广东 深圳

户      型:四室

面      积:184

设      计:薄荷室内设计

费      用:150w(硬装100w+软装50w)


图片


图片

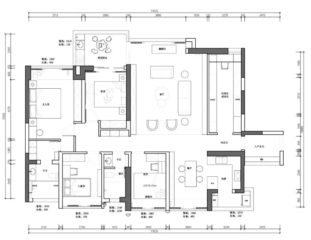
 原始户型图


图片

 平面布局图


设计策略:
1. 打通客厅与阳台,增加客厅采光。
2. 餐厨区设置吧台,改造成中西厨一体的开放式厨房。
3. 主卧与主卫之间增加一道隔墙,形成一个小的储物间。
4. 客卫做了完全的干湿分离,过道调整「H」型隔墙,让收纳翻倍。
5. 改造景观阳台和客厅相连。
6. 打掉储物间的隔墙并将空间加长,与入户玄关持平,形成独立衣帽间。


>>>> 灵感来源


图片


流畅的现代主义美学,赋予了空间高贵与个性,大面积的皮质元素,点缀金属与木质,从多维度的细节中,呈现出优雅高级的生活氛围。




玄关


图片


我们将玄关分为入户玄关和内玄关,强烈的纵深感,给空间蒙上了一丝神秘色彩,增加入户仪式感。


图片


极富张力的光影,渲染出错落的层次感,远观如同画卷一般美妙。


图片

 走廊尽头的端景


灰白色调中加入浪漫的线条,婉转低回的空间,在暖黄色的灯光烘托下,自然原木的温暖。




客厅


图片

 空间解构


开放式客餐厅,南北通透,由两条纵向主轴线+一条横线过道串联所有空间,达到移步换景的视觉效果。


图片

 从阳台看向餐厅


图片


客厅并没有设置电视,前后背景墙都设计成收纳柜的形式,中间搭配多组沙发围合,形成洄游动线,最大限度促进一家人的面对面交流互动,营造居家温馨感。


图片

 可伸缩投影幕布


现代风格融入丰富的收纳,糅合简约的设计细节,丰富的表面材质纹理,满足视觉与触觉的双重体验。


图片


为了满足日常观影需求,在三人沙发正对的一面墙顶部嵌入可伸缩幕布,投影仪置于沙发背后的柜体,巧妙平衡实用性和风格品味。


图片
图片


落地灯散发出柔和的光线,中和空间冷色调,带来一丝暖意,用设计留住时间的重量。


图片


屋主喜欢经典而有品质感的事物,在硬装和软装上都很舍得投入。精心的用材不畏惧时光的变化、潮流的更迭,散漫随意自成一派,却值得仔细品读,反复摩挲。




餐厅


图片

 餐厅全景


一餐一食,在最真实的生活场所里,将仪式感延续到底。


图片
图片


餐边柜的黑玻反射出烛台吊灯的光影,神秘而优雅。


图片

 餐桌细节




厨房


图片

 餐厅望向厨房


中西厨结合的半开放式设计,与餐厅连接处设置吧台,为屋主营造更多的使用场景,光下的一隅,亦动亦静。


图片


厨房以黑色为基调,掺杂木色与黄铜金属色点缀,铺排出极具现代感的摩登美学。


PS:
定制柜、地板等材料找的是深圳本地合作商家。软装的基本都是屋主海淘,还有各种小家电都来自德国英国等知名品牌。




主卧


图片

 卧室全景


主卧融合了摩登都市风格的核心,利落干净的经典布局,在细节处彰显设计的别处心裁,与屋主自身的气质相辅相成。


图片


时尚经典的黑色和墨绿色搭配,精致的五金配饰点缀其中,优雅自现。


图片


沉稳的原始感与摩登的精致感交错,精准切割的材质将空间完美分割。


图片


主卫做了干湿分离,淋浴区设置壁龛,作为收纳。




儿童房


图片

 充满童趣的儿童房


鹅黄色的墙面和白色床品堪称绝配,点缀的灯具赋予空间浪漫又灵动的氛围。


图片


儿童房并没有设置床头柜,用写字桌代替。云朵状护墙板不仅实用,更是为空间加了一份活泼童趣。




长辈房


图片


浅棕色背景温馨助眠,质地上乘的床品搭配金色的圆形灯具,奢华又优雅。


图片
图片


一切回归生活的本质,经得住时间的检验。



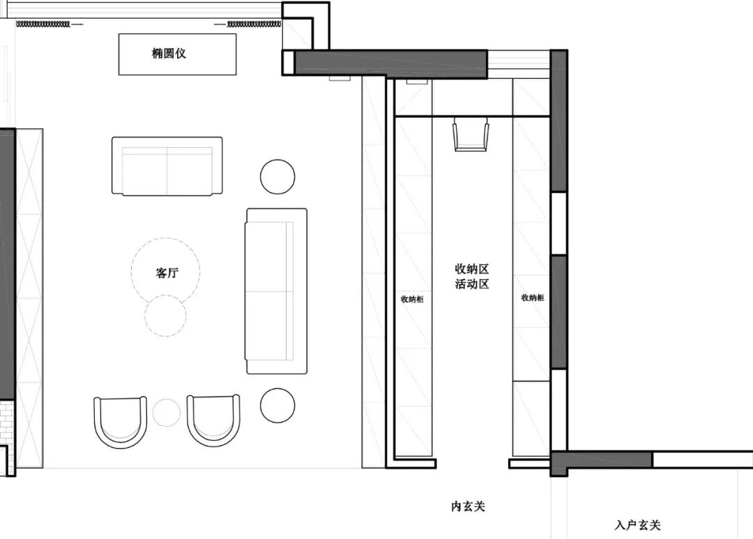
衣帽间


图片

 衣帽间布局图


最初的设计方案中,衣帽间和客厅之间可灵活开合,进一步引入自然采光。


不过屋主家人表达了非常强烈的意愿想要衣帽间和客厅互为独立,因此后面尊重他们的需求改为了分离式布局。


图片


衣帽间的功能非常强大,近5m的深度里,一面全玻璃的展示+收纳空间,一面全爱格板的平开门储物柜,占全屋一半的收纳容量,整体看起来非常震感。


图片


大面积的玻璃材质令人赏心悦目,整齐陈设的收藏品,只一瞥,就可以置身美好的记忆中。


图片

 精致的饰品


屋主专属的梳妆台,灯光、饰品化妆品等细分收纳,精致而实用,在这里开启新一天的序曲。



•        •
 - 设计师采访 - 


Q
全屋收纳规划如何安排?
A

首先是就近原则,在每个独立功能区都有与之相配的收纳区,在走廊也是移动了隔断墙让收纳翻倍,客厅和衣帽间更不用说,屋主收纳的各种奢侈品、香水、香薰蜡烛都如数家珍。




Q
整个过程中有什么值得分享的经验吗?
A

实现居住者的需求是我们服务的宗旨,我们也希望屋主可以通过设计师的表达,去获得生活的新方式,感受生活不同层次的美好。但是设计师做得再好也不能阻碍居住者本身的意愿和风采,只有屋主和家很好的结合,又很融洽地相处才是我们作为设计师最应该为大家做的。





•        •

以上来自:薄荷家居设计

设计师微信号:Charlie04025498

经授权由家的要素编辑整理

交易担保 家的要素+ 报名改造,给自己一个怦然心动的家~
(点击图片报名改造)

  喜欢这个家,点在看↓ 

生活

  • 深圳屋主买下184㎡,摩登都市风+5米长衣帽间,装出大宅气度!
    深圳屋主买下184㎡,摩登都市风+5米长衣帽间,装出大宅气度!
    家的要素, 让城市里忙碌的年轻人住得更好。说在前面屋主S小姐,谈吐优雅,气度温和,从事金融行业。从北京搬到深圳工作生活后,她买下了这套184㎡的大宅作为一家三代(夫妻二人、女儿、母亲)的长久居所。屋主...
    家的要素
  • YODEZEEN新作|127㎡现代轻奢,帅气!
    YODEZEEN新作|127㎡现代轻奢,帅气!
    现代轻奢 YODEZEEN Architects新作,127m²的私人住宅项目,由Artem Zverev(联合创始人兼首席建筑师)、Arthur Sharf(联合创始人兼首席建筑师)、Artem Voskoboynik(首席建筑师)、An
    米兰设计之旅
  • 在展馆设计中体现个性化:颠覆传统以及超现实
    在展馆设计中体现个性化:颠覆传统以及超现实
    发 现 生 活 中 最 美 好 的 设 计打开音乐聆听设计伽的声音展馆所能反映出来的单位形象,能够吸引参观者并且留下深刻的印象,其展品能够体验出来的优缺点以及特征,能方便参观者参观,这样的展馆设计...
    设计伽
  • 135㎡佛系小姐姐独居,不豪华,一尘不染却称第一,自律到极致
    135㎡佛系小姐姐独居,不豪华,一尘不染却称第一,自律到极致
    关注微信公众号:jiawyk,一起聊聊装修中的苦闷与快乐~而正如本案这位佛系小姐姐,独居135㎡,自律爱干净已经成了习惯,所以哪怕房子装得不豪华,但一尘不染的地步绝对第一,家居氛围超棒,窗明几净,乍一看还有...
    小菜聊装修
  • 新作|品格·自然美学·现代优雅
    新作|品格·自然美学·现代优雅
    “自然美学 地域艺术人文生活 科技未来-Natural Aesthetics Regional ArtHumanity Life Future Technology”未来城从如何“让未来的体验抛开传统展示中心”入手,以现代简约手法,结合
    火车头设计
  • 家里最有用的5个设计,你家中了几个?
    家里最有用的5个设计,你家中了几个?
    关于家里面如何设计,我们之前写过不少的文章,比如小户型怎么扩容、阳台客厅怎么装更好等等。疫情过去后很多朋友估计要把装修提上日程,我们盘点了一些以往推送过的内容中,大家反馈的最有用最好的设计。给即将...
    汇设计汇装修
  • 澳大利亚设计美学
    澳大利亚设计美学
    尊贵热线:400-639-9973最好的生活,只为遇到最懂的你!澳大利亚设计美学简约雅致,阳光明媚!海域风情,扣人心弦!今天得心君为大家分享澳大利亚的设计作品,感受澳式典雅柔美、静谧鲜活的设计格调。设计:Mim ...
    得心设计
  • 110㎡清新日式3室2厅,温柔而治愈的气质美居
    110㎡清新日式3室2厅,温柔而治愈的气质美居
    福利提示:文章末尾可免费领取4套设计+报价每天仅限5个名额设计理念 Idea 这是一套日式风格的装修案例,于原木中汲取大自然的生命力与温度,凭一抹治愈色彩,开启每日温暖。希望这套装修案例能给大家带来一些...
    装修效果图
  • WEDNESDAY/沉淀
    WEDNESDAY/沉淀
    设计师投稿通道开启啦!无论你是自由设计师,还是设计工作室或机构,只要作品足够精彩,有看点,通通砸过来!投稿通道:Kiki_xl_(添加请注明来意)// 更多好物推荐 //新手露营,怎么能不知道这11个干货!轻松换...
    时尚家居
  • 215㎡简约大平层,自然又有气质!
    215㎡简约大平层,自然又有气质!
    顶级设计 Erez Hyatt最新完成的这个顶楼大平层,Sliding Games位于以色列特拉维夫,室内面积170㎡,阳台面积45㎡。一贯极简风格,开放的空间,浅灰和深木的搭配,配合大面积的白色基调,通过安静色系营造一种自...
    室内设计秀
  • 116m极致简约三居室,轻松自在,让生活更随心~
    116m极致简约三居室,轻松自在,让生活更随心~
    家装室内设计 ,每日搜集分享国内外最前沿的家装设计、施工、建材等内容,成为您家装的好帮手!家是最温暖最舒适的存在,适合自己的生活方式就是最好的。就像本案的业主,自由自在,活在自己的生活坐标里,不违...
    家装室内设计
  • 努力成为一个有花园的人!
    努力成为一个有花园的人!
    ☞关注后回复:“卧室、餐厅、客厅、卫生间、厨房、衣柜、阳台、玄关、背景墙、儿童房、装修风格...”等都会收到相关内容,已覆盖99%家居装修的内容。“我想有个家,门前开满花”之前一直在想,为什么那么多人喜...
    创意家居生活通
  • 好的灯光,让你的方案增值10万|灯光研习班·成都站
    好的灯光,让你的方案增值10万|灯光研习班·成都站
    近几年,消费的升级,装饰风格的升级,人们越来越知道灯光的重要性,设计师更需要掌握灯光对空间的表现;合理科学的设计灯光,以人为本,让业主住得舒服,更能体现设计的价值。设计师用造型,色彩,材质的组合来...
    设计之旅
  • We are what we eat,这13家餐厅做到了
    We are what we eat,这13家餐厅做到了
    作为社会纽带的生态系统,餐厅从未像今日一样如此重要。当一些大城市的餐馆纷纷关门后,人们才意识到:无论美食、厅堂和餐桌椅有多么怡人,还有一些东西更珍贵又令人怀念,比如生活品质、娱乐、安慰、幽默,以及...
    IDEAT理想家
  • 74㎡ 一室户,用软装提升空间格调!
    74㎡ 一室户,用软装提升空间格调!
    由 Maya Baklan 打造的这所公寓是为出租准备使用的面积为 74㎡设计师运用现代极简手法打造出干净、优雅、艺术的温馨居住空间△平面图进门后的玄关是一个独立的门厅区域玄关柜用质朴的木饰面打造彰显了自然朴素的...
    内小宅
<< 46 47 48 49 50 >> 

公众号 • 家的要素

  • 家的要素微信号 : jiayaosu
  • 让城市里忙碌的年轻人住的更好!我们致力于为城市生活的年轻人提供真实装修设计案例,对接优秀的设计师服务和精选高品质的家居好物。
  • 手机微信扫描上方二维码进行订阅
Flag Counter