- 58㎡ 二室一厅,这样布局打造空间高利用率
- 来源:内小宅
点击 内小宅 ↗ 右上角菜单栏 → 设为星标★
每天给你分享一个设计灵感
这套 58㎡ 的公寓位于乌克兰基辅
是一个方正的二室一厅户型
由于面积的局限室内并没有设置玄关
进门便能看见开敞的起居空间
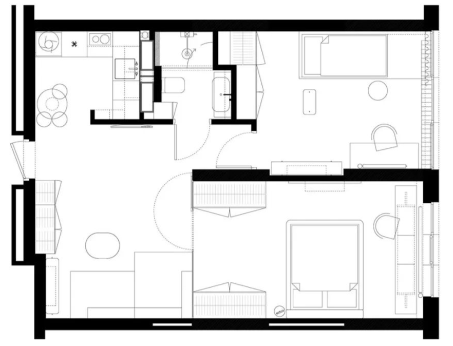
△平面图
客厅布局简单
暖灰色的沙发和地毯搭配
再加上铁艺木茶几和一副抽象的挂画
作为装饰和点缀,艺术范儿十足
沙发旁的置物架
可以放置一些陈列品和书籍
架子边是一面大的落地镜
镜面的反射让空间在视觉上得到延伸
电视安装过道的墙面上
墙面再没有其他任何装饰
保证了空间的简洁美
厨房与餐厅在同一空间内
餐厅位于角落位置
木质的小餐桌与黑色餐椅
搭配在一起很有艺术感
厨房从橱柜到台面都选用了白色
使空间看起来更加干净、纯粹
由于客厅区域离窗户较远
为了保证客厅的采光
卧室的门使用了透光不透明的玻璃材质
进入主卧,过道两侧是通高的衣柜
可以满足日常的收纳
床头背景墙并没有做过多的设计
在白墙的衬托下
墨绿色短绒的床看起来十分显眼
床头对着的背景墙上
是一幅具有泼墨感的白色石膏艺术画
画上凹凸的纹理充满质感
靠窗则放置了一张大的写字台
可以作为梳妆台或是办公桌使用
卧室隔壁的儿童房
在房间的入口处安设了一个置物架
用来收纳房间的杂物
置物架旁还带有一个猫抓板
可以给屋主的小猫磨爪子
置物架旁边的墙面
是带有磁吸的材质设计
可以在墙上挂上孩子的画作
或是一家人的照片
婴儿床靠墙摆放更有安全感
房间中央做了一个吊椅
可供小宝宝玩耍
名称:Gravitation
地址:基辅 乌克兰
面积:58㎡
年份:2021
//
家居案例征集丨勇敢晒出你的家!
最实在的小宅灵感
▼一起设计生活馆
点点赞
点在看
生活
-
-
- 大面积浓郁红装进110m的家,居然能清新
- 复古?摩登?清新?再带一点孩子气?你无法用精准的词汇去定义这个家,但这就是最独一无二的居所。身为时尚造型师的Evan平时一个人居住,房子除了是他的家,也更像是他的私人博物馆,摆放着他喜欢的一切。在他看...
- 时尚家居
-
-
-
- 2021新式厨房设计,你要的都在这..
- ☞关注后回复:“卧室、餐厅、客厅、卫生间、厨房、衣柜、阳台、玄关、背景墙、儿童房、装修风格...”等都会收到相关内容,已覆盖99%家居装修的内容。随着生活方式的变化,厨房早已摆脱了“只做饭”的身份限制,...
- 创意家居生活通
-
-
-
- 78m的现代风二居室,新婚夫妻首选的温馨小家!
- 面积:78平米户型:两室两厅一厨一卫风格:现代风用清新、活力的颜色搭配素雅、舒适的软装营造一种格调满满的氛围平面布置图入户既开放式餐厅,在厨房的一侧做了内嵌的鞋柜,磨砂黑的简易餐桌椅,结合顶部线条感...
- 小尼宅配
-
-
-
- 法国的凡尔赛宫里,开了全球唯一的宫殿酒店
- 尊贵热线:400-639-9973最好的生活,只为遇到最懂的你!Le Grand Contrôle酒店宫廷风格,繁而不乱。尊贵典雅,视觉震撼!巴黎凡尔赛宫内唯一酒店Le Grand Contrôle将在6月开业,成为全球唯一的宫殿酒店。今天
- 得心设计
-
-
-
- 首发|210㎡简洁高级灰,设计适度·生活有度!
- 适度, 是世界万物的艺术, 也是幸福生活的哲学。树木有其形态,阳光有其轨迹,就连风,也有它的音色...世界上的一切,都有意无意地遵循着适度原则,酝酿成自身最美好的模样。——太谷形上适度的美好本就是心之...
- 拓者设计吧
-
-
-
- 封面人物|赵益平:解构东方美学,雕琢当代品质生活
- APP Store 排名第一的家居杂志阿兰·德·波顿在《幸福的建筑》中说:“我们感觉到的居住之美,也即意味着我们邂逅了一种对美好生活所持观念的物化和体现。”随着时代的变化、经济的发展,如今大部分人从狭小拥挤...
- PChouse家居APP
-
-
-
- 119㎡简约木质亲子宅,老房改造四口之家,这样设计恰到好处
- 中国设计微刊,专注「家居、时尚、创意」设计分享 设计空间 | 书画艺术 | 生活美学喜欢设计点击上方 “空间设计 ” → 点击右上角“...” → 点选“设为星标 ★ ”空间设计出品┃转载请注明来源来源:空间设计...
- 空间设计
-
-
-
- 175+30㎡美式轻奢风大宅,一个散发热情似火又处处透露着高级感的家
- 家装室内设计 ,每日搜集分享国内外最前沿的家装设计、施工、建材等内容,成为您家装的好帮手!本案是一套面积为175平米的大平层,有一个30平米的入户花园,小编很喜欢入户花园的改造,顶面设计了电动天窗,入户...
- 家装室内设计
-
-
-
- 豪宅的 15 种奢华配置
- GHDA环球人居设计大奖第四轮(最后一轮)申报中,点击图片查看详情↑本文来源:一起设计ID:together-designLuxury house豪宅设计豪宅之所以叫豪宅不仅要占地大、配置豪,在房间数量、个性化设计、规模和售价等...
- 居住空间
-
-
-
- THURSDAY/积累
- 设计师投稿通道开启啦!无论你是自由设计师,还是设计工作室或机构,只要作品足够精彩,有看点,通通砸过来!投稿通道:Kiki_xl_(添加请注明来意)// 更多好物推荐 //新手露营,怎么能不知道这11个干货!轻松换...
- 时尚家居
-
-
-
- 玄关怎么设计最实用?换鞋凳+收纳台+挂钩,设计师力荐的9种设计
- 玄关作为家庭的门面担当,越来越受到人们的重视,但是如何装修好玄关?我想这是很多业主不知道的,一个好的玄关不仅收纳功能强大,各种“长枪短炮”的鞋子都能放得下,而且便捷性和颜值兼具。今天我就给大家介绍...
- 汇设计汇装修
-
-
-
- 58㎡ 二室一厅,这样布局打造空间高利用率
- 这套 58㎡ 的公寓位于乌克兰基辅是一个方正的二室一厅户型由于面积的局限室内并没有设置玄关进门便能看见开敞的起居空间△平面图客厅布局简单暖灰色的沙发和地毯搭配再加上铁艺木茶几和一副抽象的挂画作为装饰和...
- 内小宅
-
-
-
- 80㎡住一人一猫,温润木作+清新抹茶绿,共享复古“慢”生活!
- 家的要素, 让城市里忙碌的年轻人住得更好。说在前面这套80㎡的两居室位于成都,屋主珍珍是一位喜欢宅家的妹子,同住的还有一只三年前带回家的猫咪漾漾。对于理想中的家,珍珍希望是一人一猫共享自在“慢”生活...
- 家的要素
-
-
-
- 日本人为啥有床不睡,非要睡“地板”?原因竟然是……
- 小时候看动画片时我一直有个疑问,为什么不管是小丸子还是大雄,家里都没有床?他们白天在房间里玩耍,晚上就在房间里席地而睡。不光只是二次元世界,日剧里很多角色也都是睡在地上(榻榻米)。难道日本人有特殊...
- 房子装修
-
