- 装修工长自己家,还真有点东西
- 来源:装修33天
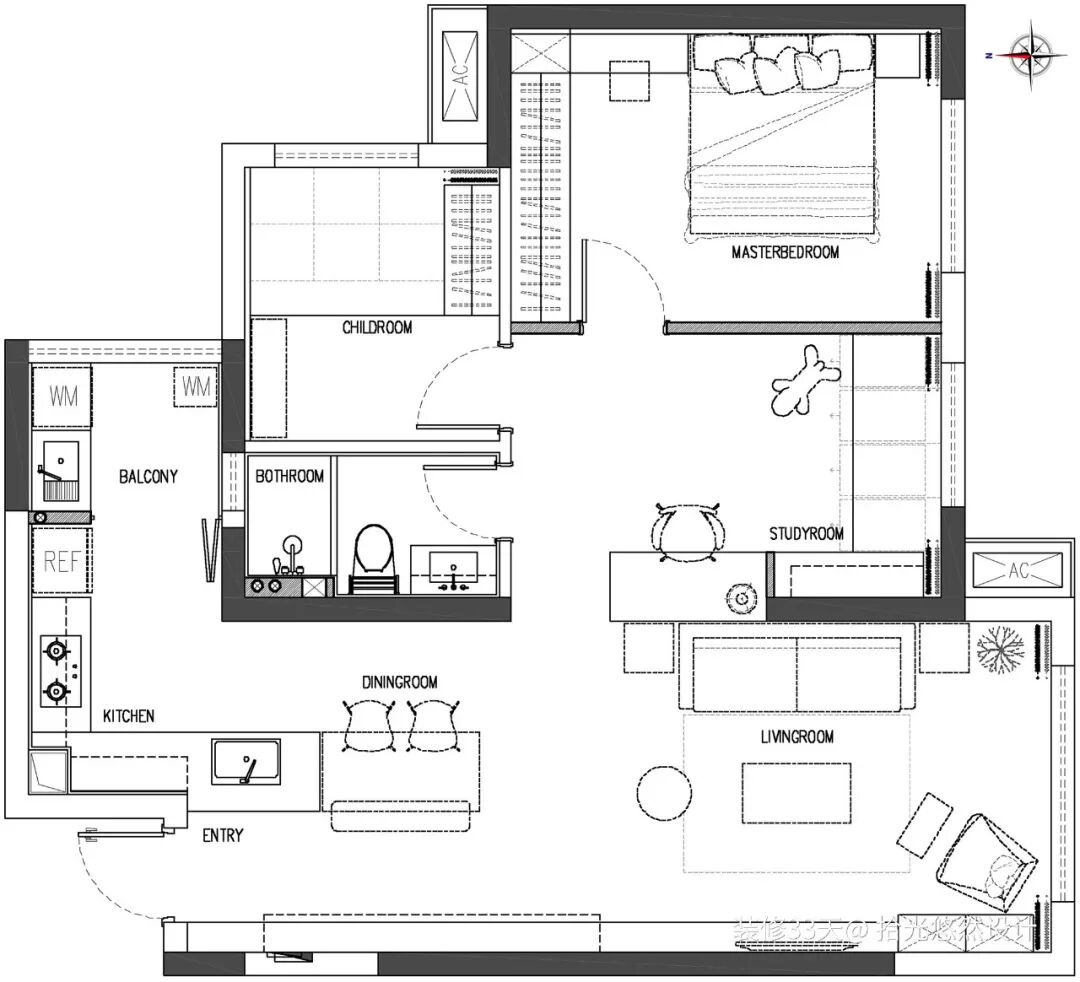
▲ 建筑面积87平,造价32万,项目坐标:四川成都,居住成员是一对年轻夫妻和他们不满1岁的小公主,男屋主是这栋房子的工长,也是拾光悠然的工长,这套房子仅作为他们的过渡房,所以不用考虑太多收纳和留宿等因素,根据夫妻俩的需求结合常住3口人的情况,只保留两个房间,拆除一个房间作为办公区和亲子空间
▲ 原始结构图
▲ 平面布置图
▲ 入户做了整排储物柜,容量巨大,既能收纳四季鞋子,也能收纳客餐厅杂物以及小朋友的玩具
▲ 储物柜中间做了留空处理,配备管线机方便喝水,留了插座,可以放一些小家电,打通餐厨之间的隔墙,设计成开放式厨房,扩大入户视觉效果
▲ 厨房L型布局,高低台设计符合人体工程学,吊柜下方增设灯带与厨房挂钩,提升台面操作舒适度,油烟机选的下潜式机型距离油烟更近
▲ 餐厨区与客厅相连,通过木地板和瓷砖的拼接过渡做自然区域划分
▲ 极简大平顶简约大气,一字型地柜从入户延伸至客厅,进门处做开放格用于收纳常用鞋,客厅部分地台采用上翻式处理作为电视柜使用
▲ 拆除沙发背后的次卧隔墙,改为开放式书房,业主在各个区域时,都可以关注到孩子的活动,让孩子随时在自己的视线范围内
▲ 运用不同灯光的组合来营造不同的生活场景,TOGO沙发和埃姆斯休闲单人椅都是选的同品类最舒适的款式
▲ 大面落地窗提供绝佳的采光与视野,窗外是西南交大犀浦校区
▲ 书桌在空间上达到了软隔断的效果
▲ 工作台的桌面利用公司废弃的木板重新抛光打磨后继续循环利用,经济又环保,竹吊顶成为整个空间亮点,也让空间多了一份禅意
▲ 靠窗设计飘窗地台,铺上软垫作为孩子的日常活动区,底下的抽屉也可以提供一定的收纳空间
▲ 儿童房不大,以榻榻米+定制柜的形式呈现,保证一定的收纳能力
▲ 床头一组套柜,需要时可以直接拉出变成一排可收纳的矮凳,不需要时收纳进床边也不占空间,一个巧妙的小点子
▲ 主卧延续客厅格调,浅咖色搭配灰白木,在暖光源修饰下,显得简约温馨而富有质感,侧面整排置顶柜容量充足
▲ 定制木饰面半高护墙结合浅咖色背景,一侧用书桌替代床头柜,床尾配备可移动全身镜
▲ 衣柜留出一列开放格作为书柜使用,配合书桌刚好
文字编辑 | 东东
设计 | 拾光悠然设计(成都)
微信:shiguang3277653
后台回复「拾光悠然」可以看更多作品
媒体转载请注明装修33天并保留设计师联系方式
欢迎业主、设计师、装修公司免费投稿照片
装修33天商务合作微信:king194316
松爷店铺掌柜微信:yejia1703
拾光悠然设计其他作品推荐
实用装修指南
装修33天 🏡 实用装修指南
你每次点赞和转朋友圈,都是对我们的支持
生活
-
-
- 75㎡舒适北欧2室2厅,卡座餐厅仪式感爆棚!
- 福利提示:文章末尾可免费领取4套设计+报价每天仅限5个名额设计理念 Idea 这是一套北欧风格的装修案例,设计师通过小清新的颜色搭配,来打造出这样一个精致而又优雅,让人感觉非常耐看的家。希望这套装修案例...
- 装修效果图
-
-
-
- 元禾大千新作| 自然派设计
- 我想有一所房子面朝大海,春暖花开我为你祝福愿你有一个灿烂的前程愿你有情人终成眷属愿你在尘世获得幸福我只愿面朝大海,春暖花开海子的诗为我们勾勒出世人对大海的向往以及美好生活的渴求,这也是北海融创海映...
- 火车头设计
-
-
-
- 处处是细节的北欧设计,可不止“性冷淡”那么简单
- Nordic Design北欧设计提起北欧风,总有人把它简单粗暴的归类为“性冷淡、极简”,北欧设计从来不该被这么简单的归类。北欧风最早流派的名称来自 100 年前——斯堪的纳维亚设计(Scandinavian design)。说北欧...
- 内小宅
-
-
-
- 在阴凉处适合养的几种植物,养花盆里和养树荫下有啥区别?
- 有很多朋友会有疑问,在阴凉的地方栽种植物需要有什么讲究呢?如果家里阳光不够,要挑选哪些耐阴植物呢?下面就分享一下栽种耐阴植物常见的问题。1、养半阴处和阴凉处的植物上图为树荫下的玉簪花这里所说的半阴...
- 养花交流
-
-
-
- 50平米loft,有中岛还有7平米豪华卫浴,舒服的不像话
- APP Store 排名第一的家居杂志每一件既存的器物 都能有一种更动人的方法诠释 本期案例的男女主人都是做平面设计相关的,对功能和审美都有要求,但他们并没有把他们专业的平行搬到室内设计,而是选择了专业的室内...
- PChouse家居APP
-
-
-
- 卫生间门不能对入户门,不能对床和餐厅,别纠结!
- ▲ 点击蓝字“装修百宝书”,你想知道的装修问题,答案全在这里啦!查看半包装修要花多少钱?查看全包装修要花多少钱?查看10万以下的装修方案寸土寸金的今天,买到百分之百称心如意的房子不容易,不好的户型各...
- 装修百宝书
-
-
-
- 深圳超级地标——大疆总部“天空之城”即将建成,全钢结构科技感十足
- 大疆作为无人机界的优秀代表可以说是家喻户晓了近期大疆深圳总部实景图曝出从照片可以看出两栋大楼科技感十足凹凸的立面、不规则的建筑结构设计如同科幻大片中的隐秘基地下面我们就来详细了解一下这栋建筑01.建...
- 软装学堂
-
-
-
- 打了鸡血的花,剪一茬开一茬,真怕它累死
- 春天要种花咯,要挑开花多、花期长的种,这样才不负大好春光呀,今天花花就来列举一下,总有你喜欢的:蓝雪开花不用肥,一晒太阳就开花蓝雪花全年都可以开,湖南以南可以地栽,冬天不会冻死,往北建议盆栽,8度...
- 养花大全
-
-
-
- 她家130平米,客厅餐厅工作台一体化,阳台布置超漂亮,太幸福
- 关注微信公众号:jiawyk,一起聊聊装修中的苦闷与快乐~这位屋主的房子有130平米,虽然空间不算大,但也不算小,整体的装修给人一种干净大气的感觉,能看得出屋主对生活自由的热爱,整体刷白墙搭配木质家具,还布...
- 小菜聊装修
-
-
-
- 装修工长自己家,还真有点东西
- ▲ 建筑面积87平,造价32万,项目坐标:四川成都,居住成员是一对年轻夫妻和他们不满1岁的小公主,男屋主是这栋房子的工长,也是拾光悠然的工长,这套房子仅作为他们的过渡房,所以不用考虑太多收纳和留宿等因素...
- 装修33天
-
-
-
- 9种厨房设计案例,美观又实用,不挑户型,家家都能装,值得参考
- 厨房作为每天做饭都会出入的地方,在整套房屋装修中所占的比重还是挺大的,试想一下,我们每天都要待在里面烹饪各种各样的美食,如果没有一个好的厨房环境和完善的功能布局,就很容易影响做饭的心情。所以关于厨...
- 汇设计汇装修
-
-
-
- 过来人的教训,买房万万不要买这种户型,入住了才知有多坑
- 如果说现在有一种类型的房子是没有阳台的,可能很多人都不会相信,毕竟阳台是房子其中一个典型的标志。但是,在香港这些地方很多公寓都没有阳台,这可是真实存在的事例。大家见到这种房子的时候可别认为它是一种...
- 装修家居风水
-
-
-
- 老气精装房变身浪漫甜美之家,细节之处皆精致~
- 家装室内设计 ,每日搜集分享国内外最前沿的家装设计、施工、建材等内容,成为您家装的好帮手!本案户型为杭州万科融信·西雅图的一套精装房改造案例,业主小两口希望可以让现有的精装空间大变样,期待未来生活...
- 家装室内设计
-
-
-
- 清华学霸夫妻住18㎡蜗居,床上做运动,没地晾衣服,生活令人窒息
- 设计 / 品质 / 生活Temperature of Love作者:LULU来源:LULU画报(ID:luluhuabao)01最近,本本看了一期《BTV暖暖的新家》,被一对小夫妻的故事感动了。 男孩叫舒然,女孩叫邓静芝,两个人都是毕业于清
- 设计本家居
-
