- 120㎡北欧风三居室,撞色系搭配美到邻居流连忘返!
- 来源:小尼宅配
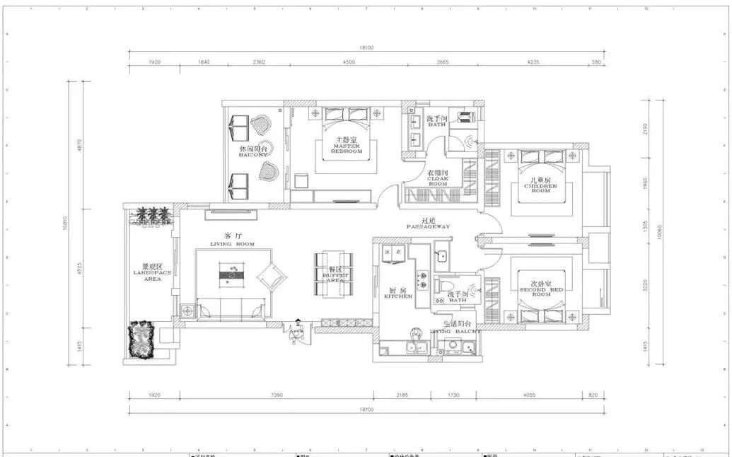
面积:120平米
户型:三室两厅一厨两卫
风格:北欧风
自然的木质家具
在活泼跳跃的色彩软装搭配下
营造出一个清新舒适的空间
平面布置图
客厅
▲客厅在淡蓝色的墙面基调下,缀以姜黄色,提亮整体色调,让空间拥有简约、高级的风范。
▲客厅软装陈列得宜,木质纹理椭圆小茶几,搭配莫兰迪色布艺沙发,打破拘谨之余,也为空间带来了独特的温馨感。
餐厅
▲厨房做成开放式布局,顶部三站撞色小吊灯,搭配筒灯,在木质餐桌椅的衬托下,更显惬意舒适。
厨房
▲厨房设计成一字型布局方案,整体色调以雅白为主,电器内嵌入定制橱柜里面,节省空间的同时方便使用。
▲合理科学的厨房动线,让烹饪工作变得便捷且有条理感。
主卧
▲主卧床头背景墙刷成裸粉色,搭配文艺网格床品,空间简约自然,素雅大方,足以缓解每天忙碌归来一身疲惫的状态。
▲窗帘沿用撞色风格,清水蓝、淡米粉和砂白色的搭配,凸显屋主典雅端庄的气质。
▲衣帽间,功能分区明确,错落有致并安装灯饰,方便寻找所需衣物,提高穿衣打扮的效率。
老人房
▲老人房房内陈设精简实用,顶天立地米白色衣柜,极大的增加了收纳功能。
卫生间
▲卫生间铺贴鱼肚白大理石瓷砖,搭配灰色调地砖,加入金属元素的圆镜,整体显得优雅精致而高级。
图文来自网络资料编辑,如有不妥,请联系删除
往期精彩入口:
后台回复下列关键字 家居品味秒升级
| 卧室 | 衣柜 | 梳妆台 | 衣帽间 |书房 |
| 办公区 | 榻榻米 | 飘窗 | 阳台 | 休闲区 |
| 橱柜 | 餐边柜 | 卡座 | 酒柜 | 背景墙 |
| 电视柜 | 茶几 | 沙发 | 儿童房 | 上下床 |
| 现代风格 | 简约风格 |中式风格 |简欧风 |
生活
-
-
- 请扔掉你家老土的鞋柜!!这才是2021年最流行的鞋柜设计!
- ☞关注后回复:“卧室、餐厅、客厅、卫生间、厨房、衣柜、阳台、玄关、背景墙、儿童房、装修风格...”等都会收到相关内容,已覆盖99%家居装修的内容。版权归原创者所有,如有侵权请联系删除
- 创意家居生活通
-
-
-
- 129平追求实用性家装,不要大横厅,隔出刚需通透书房,值得借鉴
- 关注微信公众号:jiasjmt,家装案例每天更新! 都说大横厅是豪宅的标配,他家只有129平却也能拥有~不过跟大多数人装修的不同,客厅他倒是希望越小越好,只需够用就行,就连沙发都选了最简单的一字型,最...
- 齐家一站式装修
-
-
-
- 165平米装修砸了58万,厨房太惊艳,每一寸空间都没浪费,太美了
- 关注微信公众号:jiawyk,一起聊聊装修中的苦闷与快乐~这位屋主的房子有165平米,房子不算大但也不小,花了半年时间,砸58万完成的房子,布置很温馨,而且收纳空间也是很强大的,一进门就给人很高级的感觉,住起...
- 小菜聊装修
-
-
-
- 年轻潮玩夫妇的171㎡极简舒适居
- APP Store 排名第一的家居杂志温润的木,清爽的白,跳跃的黑 藏在舒适下的灵动 自然与生活 美 共舞 本期案例屋主是一对年轻夫妇,从事设计相关行业,喜欢旅游、喜欢自然,收集潮玩。在这套依山伴水建筑面积为171...
- PChouse家居APP
-
-
-
- 卧室床头万万别朝向这里,最不讨财神喜欢,家再有钱都会住穷!
- 卧室床头万万别朝向这里,最不讨财神喜欢,家再有钱都会住穷!装修的时候都讲究布局,我们都会花很多时间考虑怎么样布局才合理,才能更大限度的节省空间,这并没有什么错,但是我们也不能忽略风水,就拿卧室来说...
- 装修家居风水
-
-
-
- 刘雯工作室大曝光,沙发茶几加起来几十万?果然贵的东西都很高级!
- 来源:InsDaily(ID:instachina)刘雯的第二个联名设计款,在社交媒体上掀起一波极大的热潮。发售不久,许多款式就一抢而空。大表姐作为国际超模的高级范毋庸置疑,但你知道大表姐的工作室有多么的高级范吗?今...
- 烩设计
-
-
-
- 让你大开眼界“水壶美学”
- 一杯白开水,因为认真对待,也会让人倍感幸福与满足。虽是再平常不过的小事,也会因为用心,而变得有意义。你会发现原来功能用具也能成为家的装饰品,治愈着每一个平淡的日常,今天家居君就从水壶的挑选为大家说...
- 时尚家居
-
-
-
- 城市中心+全能配套,主城芯低密洋房,这才是真稀缺!
- 随着城市化进程逐渐提速,城市可供开发的土地愈发稀缺,从而导致高层住宅鳞次栉比,居住的舒适度也随之降低。低密度的洋房由此可遇而不可得,这也就更加凸显洋房的可贵。城市中心 争藏序作洋房本就罕有,若再处...
- 河北日报
-
-
-
- 简约范儿的顶层复式,135㎡这样设计太高级了!
- 这所私人顶层公寓位于比利时夏勒罗伊由 golden vision studio 打造运用巧妙的设计手法通过光影关系的打造以及艺术材质的应用营造出清新靓丽的空间△材料板住宅由两层空间构成功能配套完善且相对独立具有较高的舒...
- 内小宅
-
-
-
- 100㎡规整的小三房户型,同一个家也可以住成两个世界
- APP Store 排名第一的家居杂志本期案例的女主人是具备“多重人格”的双子座高材生,平时主要是女主一人居住,有时候父母也会偶尔过来暂住一段时间。目前还在读博的她喜欢色彩更加丰富的空间,对家希望整体风格上...
- PChouse家居APP
-
-
-
- 树荫下种些耐阴的观赏花,这几种不可错过,观赏性都不错
- 在树荫下种什么花卉最适合呢?如果家里阳台光照不多,或者是院子里树荫比较多,想要栽种一些好看的观赏植物,下面这些比较耐阴的开花植物就不要错过,它们适合种在院子的北侧,光照不多也能生长开花。1、杜鹃花...
- 养花交流
-
-
-
- 极简,是另一种极奢!
- Empty and Space空与间当一件作品的内容被减至最低限度时所散发的完美感觉。当物体的所有组成部分、所有细节以及所有的连接都被减少压缩至精华时,它就会拥有这种特性,这就是去掉非本质元素的结果。——John Pa...
- 美美住
-
-
-
- 120㎡北欧风三居室,撞色系搭配美到邻居流连忘返!
- 面积:120平米户型:三室两厅一厨两卫风格:北欧风自然的木质家具在活泼跳跃的色彩软装搭配下营造出一个清新舒适的空间平面布置图客厅▲客厅在淡蓝色的墙面基调下,缀以姜黄色,提亮整体色调,让空间拥有简约、...
- 小尼宅配
-
