- 俄罗斯 44㎡木质单身公寓:客厅书房不分一体设计!
- 来源:空间设计
喜欢设计点击上方 “空间设计 ” → 点击右上角“...” → 点选“设为星标 ★ ”
空间设计出品┃转载请注明来源
来源:空间设计(ID:kongjiansheji88)
现代风设计
每天给你分享一个案例设计
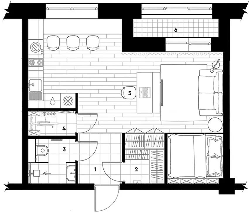
这套公寓位于俄罗斯
面积:44㎡
格局:1房 1+1 厅1卫
由 INK ARCHITECT 设计
开放式书房让人难以集中精神、容易降低工作效率?
本案以电视牆区隔餐厨与休憩区
同步活用电视墙另一侧做为书房
维持流动视野之馀
透过巧妙地裁分视线方向
推出五脏俱全的小宅规划。
屋主是一位年轻的科学家
长时间待在实验室裡工作
因此他渴望家能是一个适合邀访朋友聚会派对的开放空间
能够容纳自己对自行车、滑雪板兴趣
亦能兼具工作与休憩需求
于是设计师敞开室内格局
推出合宜储藏空间
采以开放式设计结合机能隐性划分
俐落勾勒年轻屋主的理想生活方式
内部采用桦木与砖材堆迭自然清爽层次
轻柔木色筑起室内大部分硬体与家具
白色砖墙则从灰系墙面中获得释放
利用轻量色彩放大空间感
更倚靠不同材质呈现点缀一抹个性质韵
近期热文
▽
-end-
转 载 须 知
喜欢就点一下“在看”
公众号转载需后台回复“转载”二字
(点击关注直接阅读)
资本圈的那些事
聚焦资本圈行业动态,聚拢资本、人脉方法,洞悉和深度解读技巧,修行成为投资高手。
公众号
(点击关注直接阅读)
空间设计
空间设计是中国设计微刊,专注「家居、时尚、艺术、创意」设计案例分享
公众号
生活
-
-
- Fran Silvestre新作|再探索当代纯白极简美学
- Fran Silvestre当代极简美学来自西班牙的Fran Silvestre,昨天晚上对外发布他的最新作品。位于瓦伦西亚的一个私宅:NIU 160。作品延续了他的一贯坚持的纯白极简风。△ 项目建筑模型Fran Silvestre于200
- 设计之旅
-
-
-
- 老宅改造 LOFT,木结构的楼梯太亮眼了!
- 每天给你分享一个设计灵感这所公寓位于美国洛杉矶由 OWIU studio 倾力打造设计师别出心裁将日系元素融入到空间中使原本工业风的空间呈现出质朴柔和感△平面图△剖切图入户玄关是一个超小的庭院与客厅之间选用落...
- 内小宅
-
-
-
- 俄罗斯 44㎡木质单身公寓:客厅书房不分一体设计!
- 中国设计微刊,专注「家居、时尚、创意」设计分享 设计空间 | 书画艺术 | 生活美学喜欢设计点击上方 “空间设计 ” → 点击右上角“...” → 点选“设为星标 ★ ”空间设计出品┃转载请注明来源来源:空间设计...
- 空间设计
-
-
-
- 开门见厅没玄关?鞋柜这样设计就对了
- ▲ 点击蓝字“装修百宝书”,你想知道的装修问题,答案全在这里啦!查看半包装修要花多少钱?查看全包装修要花多少钱?查看10万以下的装修方案1.进门就是客厅2.进门就是餐厅3.进门就是厨房一览无遗,那叫一个...
- 装修百宝书
-
-
-
- 杭州8大最新精品楼盘:新中式合院+平层+高层+洋房……
- 温馨提示:本次考察活动时间为4月24日、4月25两日,名额有限,满员即止,感兴趣的朋友请及时联系楚老师报名。精品楼盘考察活动 | 杭州+绍兴本次楼盘考察活动的时间为4月24日、4月25日两天(周六、周日) 共参观...
- 居住空间
-
-
-
- 85m清新雅致的北欧风小家,超有格调且充满艺术气息的宜居空间
- 家装室内设计 ,每日搜集分享国内外最前沿的家装设计、施工、建材等内容,成为您家装的好帮手!本案是一套使用面积为85平米的两居室,功能区规整明确。纵观整个方案,全屋格局只做了一处改造,就是拆除餐厅右侧...
- 家装室内设计
-
-
-
- 102㎡ 小公寓,有质感的精装更有腔调
- Colindia精装公寓「Colindia」是位于澳大利亚新南威尔士州的一个小型住宅楼项目,由 Fortis 开发,建筑与室内分别是 PBD Architects 和 Ewert Leaf 设计,整栋住宅楼共 4 层,占地面积为 867㎡
- 内小宅
-
-
-
- 适合养小空间的6种小盆栽,容易打理,易养活
- 部分花友都不太喜欢颜色特别太鲜艳的盆栽绿植了,包括吉利红、红掌、花叶万年青或红星凤梨等,而是喜欢一些比较小众,比较少人养的盆栽植物,颜值高,容易养护的文艺型小众植物,包括下面这6种。上面分别是红公...
- 养花交流
-
-
-
- 130㎡三层楼,和孩子父母各住一层,不要客厅,互不打扰住的宽敞
- 关注微信公众号:jiawyk,一起聊聊装修中的苦闷与快乐~今天齐家小菜分享的是一套面积不算太大的130㎡三层楼,下上三层动静划分,一楼活动区、二楼三楼孩子父母各占一层,平时互不打扰,彼此都有自己的空间,住的...
- 小菜聊装修
-
-
-
- 首发|微室设计·与曲线对话,携艺术为伴!
- 本案位于山清水秀的重庆,以雾都著称,又以山城扬名。本次设计灵感源于山城的地貌特点,层叠的山峰与宽缓的水面构成行云流水般的山水意象。将重庆的景色融入本案中,拉近城市与自然间的距离,回归生活的简单本质...
- 拓者设计吧
-
-
-
- 110平北欧三居室,全屋装修好漂亮~
- 导Lead语110㎡ | 3居室 | 北欧熬过最苦的日子,总算拥有了一套属于自己的房子,交房当天激动的一晚上没睡。新房使用面积110平的三房两厅,装修选择了舒适自然的北欧风,全屋装修漂亮极了,自然惬意舒适又轻松,...
- 潮流室内装修设计
-
-
-
- 这个19岁的中国姑娘,把农村破仓库改成花园豪宅,美翻了!
- 设计 / 品质 / 生活Temperature of Love你是不是也有过这样的田园梦?在乡间盖一间花园小屋每日种花遛狗静观庭前花开花谢闲看天上云卷云舒这位笑眼弯弯的姑娘名叫徐块块在19岁那年,她把田园梦变成了现实一间年...
- 设计本家居
-
-
-
- 多功能设计,打造四口之家的萌趣互动空间
- APP Store 排名第一的家居杂志有你的日子寂寞充满了温馨 有你的日子平淡也变得乐事无穷 本期案例屋主家里有2个女儿,一个乖巧,一个可爱,大女儿喜欢音乐,小女儿喜欢阅读,家里有很多书籍,可以看得出来,夫妻...
- PChouse家居APP
-
