- 爆改十年房龄二手房,走道厨房全部打通,变身通透大宅,太漂亮
 - 来源:齐家一站式装修
 
关注微信公众号:jiasjmt,家装案例每天更新!
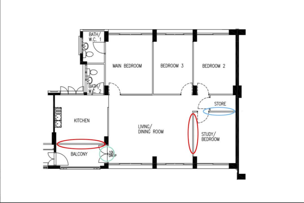
买房有必要一定买新房吗?说实在的确实没必要,像今天齐家云云要分享的这位四口之家,当初买下十多年房龄的二手房,决定改造一番再入住,现在看看他们的觉得完全是正确的。入户走廊和厨房打通,空间敞亮通透,进门就是一番美景,老房变身通透大宅,这次改造深入人心!下面就一起来看看吧~
整个家并没有大做改动,拆掉两堵墙,整个空间就发生了翻天覆地的变化,一起来看看效果吧:
改造之前入户有一条长走廊,考虑到空间闲置也是浪费,改造后将其和厨房的隔墙打通合并,入户走廊变入户花园,进门就是一道靓丽的风景线。另外打通后,厨房的空间也跟着亮堂了许多。
厨房装吧台也被当作一个小餐桌,也可以充当厨房的操作台面,一物多用。
另外厨房装的是一体式的橱柜,整体性强也更省空间,将一些家电都内嵌在里面,保持空间整洁有序。
(ps:现在添加微信:qijiavm, 即可根据您家户型,免费提供多套相似VR-3D效果图供作参考!)
厨房和客餐厅之间装的是玻璃推拉门,保证空间的通透性,视觉上放大空间。客厅无主灯的设计,拉伸层高,看起来简单大方。奶咖色的墙面搭配木质地板家具以及浅色系的软装,温馨感强。
另外家里还有一间小茶室,平时在这里接待客人也有面子,自家人享用也比较惬意。
主卧一切以清新大方为主,不堆砌不豪装,每天面对这样的环境,也能有个好心情。
两个孩子现在还小,所以暂时只规划了一间儿童房,摆两张床铺空间还是绰绰有余的。
儿童房总的来说装得比较空,一是觉得孩子现在还小,等慢慢长大了再根据孩子的需求添置家具也不迟,再一个就是空旷的空间,更适合孩子玩耍避免磕碰。
小家在改造后呈现的效果还是蛮温馨的,而且业主也比较会收拾,即使要带两个孩子,全屋也依旧打理得一尘不染,值得我们学习借鉴。
(我们致力于保护作者版权,部分作品来自互联网.无法核实真实出处,如涉及侵权,请直接联系小编删除.谢谢!)加微信:qijiavm,   或扫描下方二维码,即可根据您家户型,免费提供多套相似VR-3D效果图供作参考!!
像这样装修需要花多少钱?点击“阅读原文”马上就能算出!!
生活
- 
								
- 
																		
 - 极简线条、极致利落,让家美出新境界!
 - GHDA环球人居设计大奖第四轮(最后一轮)申报中,点击图片查看详情↑极简线条无论是谍战大片里,主角飞檐走壁的摩登大厦,还是柔情琼瑶剧里的温馨小宅,极具线条感的设计总能抓人眼球。简洁明快的线条极好地理顺...
 - 居住空间
 
 - 
																		
 - 
								
- 
																		
 - 60岁老两口的极简生活,全屋精简,客厅不收纳,155㎡看着就享受
 - 关注微信公众号:jiawyk,一起聊聊装修中的苦闷与快乐~有时候年轻人的生活还不如老人精致自律!就像本案这对60岁大学教授夫妻,自从儿子结婚成家以后,老两口便独自居住在这间155㎡房里,虽然不像年轻人一样把家...
 - 小菜聊装修
 
 - 
																		
 - 
								
- 
																		
 - “谷雨不种花,心头像蟹爬!”趁暮春,快种花~
 - 导语 俗话讲:“谷雨不种花,心头像蟹爬!”今日谷雨,雨生百谷春光最盛,也是春天的最后一个节气。此时的气候温暖湿润,无论是种瓜点豆还是养花栽草,几乎种啥活啥。现在,宠派养花大全小编就为大家介绍几种...
 - 宠派养花大全
 
 - 
																		
 - 
								
- 
																		
 - 三代同堂一家七口都称心满意的180㎡学区房大改造
 - APP Store 排名第一的家居杂志凌经理制的雾蓝色 与温暖热情的豆沙红 趣味明朗的品质生活 人到中年,身不由己,家有三宝,还有二老,为了方便孩子上学,本期案例的屋主在学校附近购置了一套180平的房子。房子本身...
 - PChouse家居APP
 
 - 
																		
 - 
								
- 
																		
 - 春光明媚,也在家里吹吹风。
 - 春光明媚的日子里,打开窗户,折射的第一道光,就叫醒了整个空间的灵活性。暖色调时尚大气的配色,几何简约感的灯饰。空间中沙发,窗帘,桌子都是以现代简约配色组成一个全新的氛围,优雅且浪漫。客餐厅主卧室内...
 - 缪斯设计
 
 - 
																		
 - 
								
- 
																		
 - 4月家里养铜钱草,多做这4件事,叶子又大又圆、绿油油的,越养越招财!
 - 铜钱草寓意财源滚滚、团团圆圆,一直是深受花友们喜爱的招财小盆栽,它株型紧凑丰满,枝叶繁茂,又大又圆的叶片浓绿光亮,酷似一枚枚铜钱币,常年郁郁葱葱、生机勃勃,极具观赏价值;并且它管理也比较粗放,好养...
 - 养花之家
 
 - 
																		
 - 
								
- 
																		
 - 深圳女孩买下91㎡独居,艺术水泥墙+大胆配色,工业风碰撞粉嫩“少女心”!
 - 家的要素, 让城市里忙碌的年轻人住得更好。说在前面屋主是位很个性、重视干净卫生的90后女生,喜欢简洁有品质的工业风。留学归来,她买下了这套91㎡的公寓一人独居,对于家里的装修,屋主希望能将自己对配色的...
 - 家的要素
 
 - 
																		
 - 
								
- 
																		
 - 113㎡超时髦现代风三居,这一届父母的审美吊打多少年轻人!
 - 家装室内设计 ,每日搜集分享国内外最前沿的家装设计、施工、建材等内容,成为您家装的好帮手!深情不如久伴,但一旦三代人同住一个屋檐下,时间久了难免产生矛盾。本案屋主俞阿姨和先生商量后在女儿家同小区买...
 - 家装室内设计
 
 - 
																		
 - 
								
- 
																		
 - TUESDAY/谷雨
 - 设计师投稿通道开启啦!无论你是自由设计师,还是设计工作室或机构,只要作品足够精彩,有看点,通通砸过来!投稿通道:Kiki_xl_(添加请注明来意)// 更多好物推荐 //让你大开眼界“水壶美学”新手露营,怎么能...
 - 时尚家居
 
 - 
																		
 - 
								
- 
																		
 - 爆改十年房龄二手房,走道厨房全部打通,变身通透大宅,太漂亮
 - 关注微信公众号:jiasjmt,家装案例每天更新! 买房有必要一定买新房吗?说实在的确实没必要,像今天齐家云云要分享的这位四口之家,当初买下十多年房龄的二手房,决定改造一番再入住,现在看看他们的觉得...
 - 齐家一站式装修
 
 - 
																		
 - 
								
- 
																		
 - 产品设计也可以激发汽车Sketch灵感?!
 - 今天的小呆猫分享的是来自MentalDesign导师LIN的Hot Sketch~灵感来自EVA插入栓的快速设计方案的完整版LIN:这几天不是EVA的终章上映了嘛,一直挺喜欢作者对驾驶舱插入栓这样一个设定的,所以突然想着用把座舱设...
 - 工业设计俱乐部
 
 - 
																		
 - 
								
- 
																		
 - 115㎡温润新中式3室2厅,纷繁都市中的诗意栖居
 - 福利提示:文章末尾可免费领取4套设计+报价每天仅限5个名额设计理念 Idea 这是一套新中式风格的装修案例,在高占比的原木色与天然材质的比例协调下,空间呈现一幅淡然、自在且闲适的质朴意境。希望这套装修案...
 - 装修效果图
 
 - 
																		
 - 
								
- 
																		
 - 儿童房不知道怎么设计?看这里吧!
 - 为人父母,不管什么总是想给孩子最好的,让孩子健康快乐的成长是所有父母的共同心愿~儿童房是孩子从家独立之前一直居住的地方,为孩子打造一个温馨的房间,也是很重要的呢~小编从性别角度,为男孩房和女孩房分别...
 - 房子装修
 
 - 
																		
 - 
								
- 
																		
 - 一人三猫,这个108㎡的家,温柔的像块奶油蛋糕
 - APP Store 排名第一的家居杂志比白色柔和,又比驼色更灵动 温柔的奶油色 治愈惬意的生活 本期案例将高级又显气质的奶油色融入到整个家中,使得整体空间更显大气和温柔,呈现出几分淡淡的恬静,给人温暖又时髦的...
 - PChouse家居APP
 
 - 
																		
 
