- 两房改三房,其实面积只有60㎡!就是在“螺蛳壳里做道场”
 - 来源:齐家一站式装修
 
关注微信公众号:jiasjmt,家装案例每天更新!
“螺蛳壳里做道场”,用于形容接下来齐家云云要分享的这套装修案例,再合适不过了。屋主家有两个小孩,而房子面积只有60㎡,原本两房格局显然无法满足正常需求。通过改造设计实现三房,以田园风格为主,精心的布置让小户型空间更温馨,同时也满足了两个孩子对于自己空间的审美和收纳需求,空间虽小住起来真顺心。下面就一起来看看吧,希望大家能得到一些装修灵感!
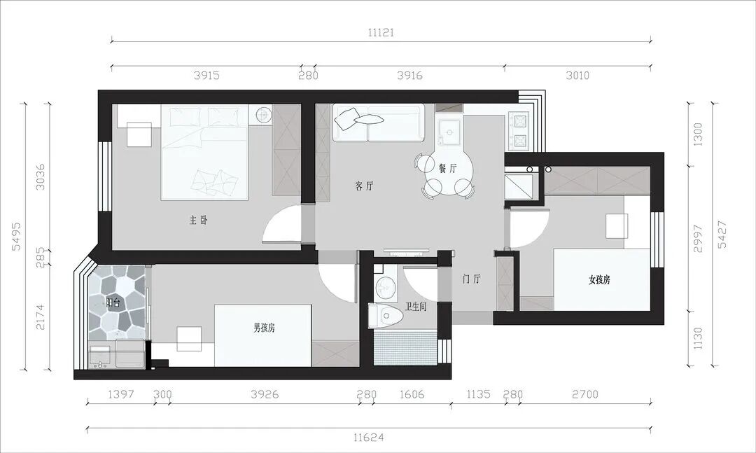
▼原始户型图
60㎡小户型两房,整体格局还不错,但两房格局无法满足日常生活,希望改出三房格局,让两个孩子都有属于自己的空间。
▼装修布置图
装修改动还是很明显的,由于下厨次数不高,将原有大厨房改造成了女孩房,同步在客厅设计小厨房,满足日常生活所需。其次,调整卫生间门洞的方向,避免对着客厅和厨房。
▼玄关设计
玄关紧凑实用,掏空部分墙体嵌入鞋柜,提高玄关收纳又保持整洁统一效果。上中下式设计,日常使用更加舒适。地面以田园风地砖铺叙,增添些许入户仪式感。卫生间门洞改制玄关一侧,避免了卫生间对着客厅。
▼客厅设计
客厅,蒂芙尼蓝与白色的结合,清爽有活力,让明媚的空间充满田园气息。柠檬黄的沙发,用来装饰客厅,一点不突兀。完美的色彩衔接,让空间更年轻更有活力。
客厅从左到右,依次布置书柜、沙发、中岛台、厨房,舍弃了茶几和电视柜,留出更多空间给孩子居家玩耍。岛台与餐桌结合,一体式设计实用美观。
(ps:现在添加微信:qijiavm, 即可根据您家户型,免费提供多套相似VR-3D效果图供作参考!)
原有卫生间门洞被填平,变成了电视墙。采用弧形设计,以田园风格壁画为背景。电视柜嵌入其中,实用节省空间。考虑到家里两个孩子,电视采用挂高设计,避免孩子玩耍磕碰。
中岛台与餐桌结合,半隔断设计划分功能区,又保持了空间通透与实用性。墙面采用洞洞板做收纳,还是非常实用的。餐桌边上布置了迷你椅子,合适的尺寸更适合小朋友使用。
 ▼男孩房设计
改造后实现三房格局,男孩房以硬朗的蓝色系为主,搭配定制动物元素壁画,简洁舒适又不失童趣。男孩房属于狭长格局,为了更好利用空间,除了衣柜收纳之外,还布置了抽屉式床铺,铁艺护栏增加了通透性。
靠近窗户设计成简单书房,小巧精致的桌椅满足日常学习所需,同时利用隔板设计吊柜,摆放书籍和玩偶,让整体看起来更整洁一些。
▼女孩房设计
女孩房由原来的厨房改造而来,整体配色甜而不腻,优雅浪漫又有些可爱,非常适合女孩。储物收纳以白色为主,搭配粉色桌面,满满少女心。田园风格的窗帘,采用卷帘形式设计,避免空间臃肿,一抹绿色和植物图案点缀,让空间更自然温馨。
以上就是这套60㎡小户型装修了,两房改三房空间丝毫不浪费,整体田园风格装修,让室内清新自然更有活力感。更难得的是,满足了男孩和女孩的对空间的审美需求,同时也有比较宽松的活动空间。
(我们致力于保护作者版权,部分作品来自互联网.无法核实真实出处,如涉及侵权,请直接联系小编删除.谢谢!)加微信:qijiavm,   或扫描下方二维码,即可根据您家户型,免费提供多套相似VR-3D效果图供作参考!!
像这样装修需要花多少钱?点击“阅读原文”马上就能算出!!
生活
- 
								
- 
																		
 - 100平现代公寓,清爽自然,简单又实用~
 - 导Lead语100㎡ | 3居室 | 现代在平面布局规划上拆除了入户堵挡的墙体,做了一个吧台,同时打通了餐厅与书房之间的墙体,做了一个卡座与透明隔断的门,增加空间的通透性。让原本不大的空间扩展了视野,不仅串联了...
 - 潮流室内装修设计
 
 - 
																		
 - 
								
- 
																		
 - 想有个院子,与你余生共度!
 - 往后余生风雪是你平淡是你清贫也是你.......人生不过短短数十年,有多少时间可以真正享受生活,感受自我?庭中四季,一方天地,免我流浪,掩我风雨,有自然消融生活的焦虑,再多的烦恼也有天高风清的静谧,余生...
 - 山东大江园林
 
 - 
																		
 - 
								
- 
																		
 - 做美缝是交智商税?90%的问题这一篇给你答案!
 - ☞关注后回复:“卧室、餐厅、客厅、卫生间、厨房、衣柜、阳台、玄关、背景墙、儿童房、装修风格...”等都会收到相关内容,已覆盖99%家居装修的内容。新房子装修,关于瓷砖填缝,还是比较关键的一步,填缝材料没...
 - 创意家居生活通
 
 - 
																		
 - 
								
- 
																		
 - 新品首发|Nin·O 米兰系列,幽幽其芳的意境之美
 - 今天展示的意式轻奢——米兰系列高级的气质灰度的格调幽幽的意境之美柔和的宁静之光让忙碌的脚步在这里驻足浪漫唯美 · 客厅各种浪漫典雅的装修元素来装饰空间让家居环境呈现出简约、低调时尚的氛围同时又不缺乏...
 - 小尼宅配
 
 - 
																		
 - 
								
- 
																		
 - 浪漫生活,温柔如画。
 - 温柔如画北欧风格一向以温润平和著称,风格富而不俗,在极具现代感的柔和色调中,使别墅内的每一处空间都弥漫着浪漫典雅的气息。△客餐厅轻快的空间基调,北欧风情元素的挂画,毛绒地毯搭配精致布艺的沙发技艺,...
 - 缪斯设计
 
 - 
																		
 - 
								
- 
																		
 - 新作|中国式别墅设计,“聚”才是核心
 - 在中国人的认知里,亲情总是永恒的主题,“人丁兴旺”是对一个家族最大的褒奖,而“团团圆圆”则是一个家庭最朴实的追求。现如今,社会的发展和居住方式的改变让“独居”变得容易,却不免失了些“圆满”的美意。...
 - 火车头设计
 
 - 
																		
 - 
								
- 
																		
 - 全屋墙面木格栅,不要大白墙,130㎡任性装,高级感进门扑面而来
 - 关注微信公众号:jiawyk,一起聊聊装修中的苦闷与快乐~全屋大白墙、极简风的家虽然清爽,但并不是所有人都喜欢,这家的业主就是一个特例。130㎡的房子,从进门处的墙面就满铺格栅板,整个家几乎是看不到大白墙的...
 - 小菜聊装修
 
 - 
																		
 - 
								
- 
																		
 - 两房改三房,其实面积只有60㎡!就是在“螺蛳壳里做道场”
 - 关注微信公众号:jiasjmt,家装案例每天更新! “螺蛳壳里做道场”,用于形容接下来齐家云云要分享的这套装修案例,再合适不过了。屋主家有两个小孩,而房子面积只有60㎡,原本两房格局显然无法满足正常需求...
 - 齐家一站式装修
 
 - 
																		
 - 
								
- 
																		
 - 元禾大千:经典色彩搭配,红与黑的灵魂对白!
 - 《摇滚红与黑》剧照图片来源于网络《摇滚红与黑》的舞台以视觉与故事情节取胜,在经典与现代的碰撞中与大众产生共鸣,这是舞台剧的魅力所在。对于元禾大千来说,空间故事与艺术的融合也是设计的魅力所在。空间的...
 - 拓者设计吧
 
 - 
																		
 - 
								
- 
																		
 - 100m的房子装修直降67000元,还要送¥100000家具!
 - △岚庭北欧风案例图听太多其他装修公司的套路触长已经免疫了直到遇见了岚庭家居TA家限时推出的一口价全包套餐真的太“香”了 100m²套三单卫全包装修原价245800元,现在直省67000元只要178800就能全搞定整屋装修...
 - 成都全接触
 
 - 
																		
 - 
								
- 
																		
 - 光影纪录下的美学空间|唐忠汉新作
 - GHDA环球人居设计大奖第四轮(最后一轮)申报中,点击图片查看详情↑光影纪录Light and shadow record-在建筑的大面积开口上引领了室外的直接光源进入室内,利用窗帘的软性来柔和了心灵感受,介而营造格栅拉门与...
 - 居住空间
 
 - 
																		
 - 
								
- 
																		
 - 丰富的色彩,无可挑剔的美!
 - 色彩家居 AR-1|architecure&design新作,该项目的灵感来自Zhostovo的画作,整个空间色彩丰富,其中90%的产品和建筑装饰元素都是根据设计师Alexey Golub和Yulia Shteivand的草图制作的,营造一
 - 米兰设计之旅
 
 - 
																		
 - 
								
- 
																		
 - 头一次见厨房吊柜这样装,科学、实用、再也不碰头!
 - 传统的厨房吊柜和整体橱柜一般都是直角的立式柜子,这样的柜子虽然存储空间足够大,但往往会遇到一个问题,就是当你正低头认真做饭时,一不留神猛地一抬头就会“碰”一下撞到头,尤其是家里层高不够或者有个子比...
 - 房子装修
 
 - 
																		
 - 
								
- 
																		
 - 145㎡三居室,简约而有格调!
 - 现代简约 Taras Belik为一个有两个孩子的家庭设计了这间公寓,面积145㎡,时尚的现代简约风格,重视舒适性和人体工程学,美观与功能性的平衡。平面图▽为了使屋主在这里感到舒适,设计师将厨房,餐厅和客厅合并...
 - 室内设计秀
 
 - 
																		
 - 
								
- 
																		
 - 不是设计师,也能玩转“裁缝式”的定制家具
 - 作为文艺复兴的发轫地,意大利总是笼罩着一层雾霭般的神秘感,我们似乎也习惯了将意式优雅作为家居设计的审美锚点,期待在这片热土上出现一个又一个奇迹来对抗时间的变化。意大利家具品牌Meridiani 深谙此理,从...
 - IDEAT理想家
 
 - 
																		
 
