- 140平北欧风的跃层三居室,顶层大露台真让人羡慕!
- 来源:小尼宅配
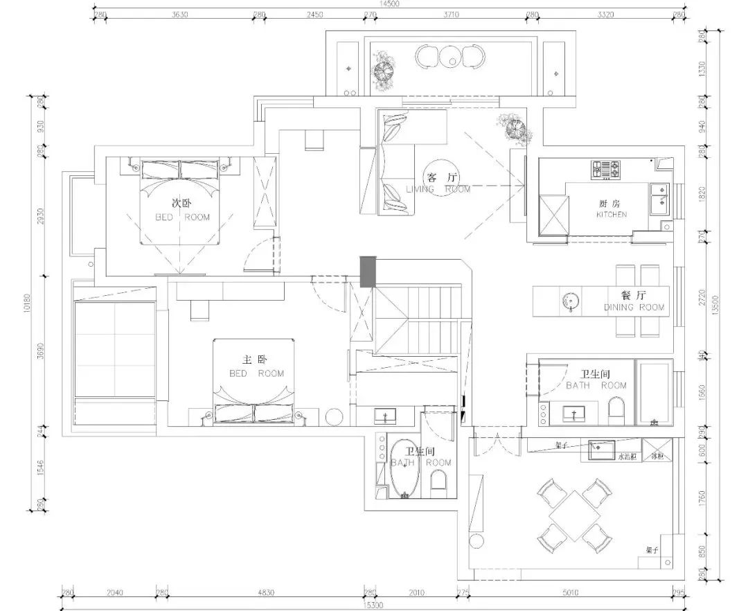
面积:140平米
户型:三室两厅一厨两卫
风格:北欧风
整个房子在硬装上非常简洁
通过精致的软装 壁纸
来打造温暖舒适的家
一层平面布置图
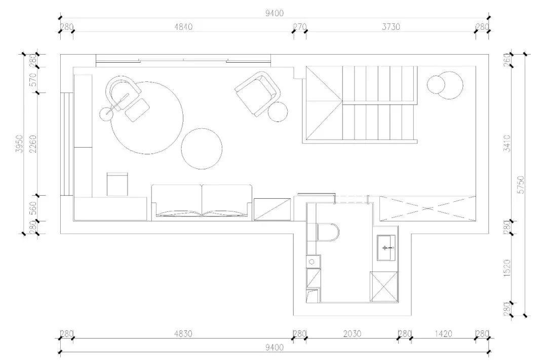
二层平面布置图
入户玄关一侧做整面的收纳柜,增加收纳空间,室内做了原木风的步梯,楼梯底部的空间做了嵌入式的柜子,木质扶手加上黑色护栏显得格外精致。
楼梯一侧做了开放式餐厅,中央岛台和餐桌椅结合起来,让餐厅更实用,也更有情调。
厨房空间做了较为实用的L型设计,蓝色的橱柜搭配鱼肚白大理石墙砖,凸显清新雅致。
开放式的客厅空间,电视背景墙留白,搭配高低不平的原木茶几,外观更贴近自然,而且结实耐用,绿色环保。
沙发背景墙的后方做成小书房空间,靠窗做了L型的转角书桌,搭配陶瓷盘的装饰画,让可利用面积得以提升。
主卧整体以粉色系为主的设计,床头背景墙上铺贴了浪漫的壁纸,搭配别致的灯具,让主卧显得精致而又优雅。
次卧的设计素雅大方,灰色系的床搭配蓝色系的床品,墙面刷成了浅灰色,整体简洁的设计让整个卧室变得更加的沉稳。
二楼设计一个开放式休闲区,沙发、茶几和书架组合的布局,营造轻松、愉悦的环境。
在休息区做了一个大露台设计,摆放简单的绿植和休闲椅,晒晒太阳、看看书,惬意十足。
本文来自网络资料编辑,如有不妥,请联系删除
往期精彩入口:
后台回复下列关键字 家居品味秒升级
| 卧室 | 衣柜 | 梳妆台 | 衣帽间 |书房 |
| 办公区 | 榻榻米 | 飘窗 | 阳台 | 休闲区 |
| 橱柜 | 餐边柜 | 卡座 | 酒柜 | 背景墙 |
| 电视柜 | 茶几 | 沙发 | 儿童房 | 上下床 |
| 现代风格 | 简约风格 |中式风格 |简欧风 |
生活
-
-
- 首发|创域设计:星河山海,筑影流光!
- △汕头龙光·天境海岸花园 海洋与星空的联系密不可分, 在人类眼中均神秘莫测, 而一者博大阔远 ,一者浩瀚深邃。△建筑外观汕头,一座因海洋蕴养而生的城市。一代代人的冒险和探索,铸就了灿烂、广博、兼容...
- 拓者设计吧
-
-
-
- 105㎡治愈系日式3室2厅,干净且温暖的舒适生活
- 福利提示:文章末尾可免费领取4套设计+报价每天仅限5个名额设计理念 Idea 这是一套日式风格的装修案例,好净又好静的屋主希望家是清爽干净且温暖的,于是选择了十分注重居住感受的日式风格,木质的温润和良好...
- 装修效果图
-
-
-
- 轻奢新中式为什么流行?看看这些专属的东方韵味
- 轻奢风目前已经风靡整个室内设计行业,对于最近当红的新中式风格来说也是越做越精致,越来越趋向于走“轻奢化”的路线。传统中式风格历经上千年的演变,可谓是传统工艺与匠心的体现,造型线条的运用较为复杂多变...
- 汇设计汇装修
-
-
-
- 89㎡百年古典露台公寓:柔静雾灰+古雅红砖!
- 中国设计微刊,专注「家居、时尚、创意」设计分享 设计空间 | 书画艺术 | 生活美学喜欢设计点击上方 “空间设计 ” → 点击右上角“...” → 点选“设为星标 ★ ”空间设计出品┃转载请注明来源来源:空间设计...
- 空间设计
-
-
-
- 匍匐在花盆边缘处的4种景观植物,能养成阳台吊盆绿植
- 今天给大家介绍几种匍匐在花盆、花坛边缘的景观植物,它们适合用来布置花境,也可以养成吊盆植物,它们的形态各异,养护方法各不相同,大家可以根据自己家里的环境来挑选合适的植物。上面分别是银瀑马蹄金和口红...
- 养花交流
-
-
-
- 新中式|设计之雅,生活之美。
- zhongshi中式禅意 一花一树电影《卧虎藏龙》中曾说:“你握紧拳头,手里什么都没有。你松开十指,却能拥有整个世界。”中式禅意的美学,更多在于意境,设计也是一样,在于意境在于想象,能够将所想之处,在空间...
- 缪斯设计
-
-
-
- 140平北欧风的跃层三居室,顶层大露台真让人羡慕!
- 面积:140平米户型:三室两厅一厨两卫风格:北欧风整个房子在硬装上非常简洁通过精致的软装 壁纸来打造温暖舒适的家一层平面布置图二层平面布置图入户玄关一侧做整面的收纳柜,增加收纳空间,室内做了原木风的步...
- 小尼宅配
-
-
-
- 厨房、卫生间,养这几种花,杀菌除异味儿
- 天暖和了,家里小角落的异味重,要多开窗通风哦,也可以养些植物,不仅让人眼前一亮,还有改善空气、吸异味杀菌的效果!厨房厨房的油烟大,味儿也最重,一般的植物可养不活,那个油腻子糊几天就要死翘翘了,可以...
- 养花大全
-
-
-
- 这届95后,打败了北上广的高房价
- - 这是 新世相 的第 1620 篇文章 -Sayings:我曾看到辩手颜如晶在网上晒自己的房间,她把家里布置成一个小卖部,从口罩到酱料冰柜各种零食,一应俱全。平时躺在沙发上随意吃喝,实在是太爽了。看完有点羡慕,这...
- 新世相
-
-
-
- 藏不住了!180w人围观的理想生活,竟然就在自己家?
- 看到文末get福利从小到大,你待过的最舒服的地方是哪里? 在Reddit的论坛里,有180万网友被这个问题吸引,并且给出了他们心中的答案。 有人觉得最舒服的地方,在旅行的路上:法罗群岛的静谧小村庄、干净澄澈的挪...
- 有品生活
-
-
-
- 适合在办公室养的五种小盆栽,增财运、旺事业,耐阴又好养,越养越吉祥!
- 现在很多人都喜欢在办公室养一些自己喜欢的花草,既可以增添绿意、美化办公环境,又能缓解视觉疲劳、舒缓工作压力,今天小编给大家推荐5种适合养护在办公室的五种小盆栽,颜值高、寓意好,办公室养上几盆,增财...
- 养花之家
-
-
-
- 懒人必备!在家养这几种花,一年四季天天开…
- 导语 在家养花,养几种能够全年开放的花,春夏秋冬都有花赏,养一盆赏四季,非常适合懒人养护。这个话题虽然是老生常谈,但依然时有更新。今天,宠派养花大全小编就为大家介绍几种堪称“开花机器”的花,几乎...
- 宠派养花大全
-
-
-
- 卧室切记不能出现这几种现象,影响健康,招小人,真懊悔才知道!
- 卧室切记不能出现这几种现象,影响健康,招小人,真懊悔才知道!在现代的家居生活中,人们越来越不注意家居风水了,但是风水作为流传几千年的说法,自有其有道理的地方,所以家中装修,以及装饰的摆放还是要遵循...
- 装修家居风水
-
-
-
- 图案专题|水墨晕染下的天地邈远,看多了就不想出来了
- 爱我你就按住我这是Jane私人微信,长按可以加我为好友万一通过了呢中国的山水,从大处落眼,是烟波浩渺,广袤无垠,美得大气磅礴;从小处落眼,是山如黛眉,水如秋波,脉脉无语却含情无限。水墨晕染之下,天地皆...
- 艺栢图案设计
-
