- 108㎡黑白灰调简约风两居,微暗中处处弥漫着质朴原生的高级感
- 来源:家装室内设计
家装室内设计 ,每日搜集分享国内外最前沿的家装设计、施工、建材等内容,成为您家装的好帮手!
本案是一套面积为108平米的两居室,屋主是一位在国外生活过的洋派时髦女性,追求完美,与自己的宠物bobo一起居住。在这个家的设计上遵循“Less is more”的原则,去掉线条、颜色以及之前装修过程中多余的装饰,回归空间结构与材质本身的质感,从细节中打造出一个可以任时间静静流淌的空间。
图赏
▲原始结构图
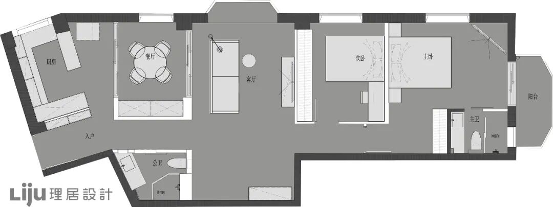
▲改造后的布局图
| 玄关 |
| 客厅 |
走廊尽头的主卧衣柜是女主人常用衣物的放置地。
| 卧室 |
主卫使用可滑动的谷仓门,使用动线上更加顺畅,视线上也更加通透。
卫生间墙面地面统一使用灰色调的水磨石瓷砖,与整体格调保持统一,又赋予空间一些视觉上变化 ,恰到好处。
以上图文来自:理居设计(厦门)
咨询微信:15750775711
投稿邮箱:2977804771@qq.com
商务合作,请联系微信bmhardware01
生活
-
-
- 旧房改造的误区,不看又要装错了
- 越老的房子,拆改需要注意的细节就越多,特别容易处处踩雷。尤其是暗藏于内的老旧水电管路,一不小心可是会危及生命,得定期更新才能确保居住安全。以下整理8个老旧房改造的装修误区窗框漏水家里下小雨,窗框漏...
- 汇设计汇装修
-
-
-
- 70平北欧二居室,储物空间可不少!
- 导Lead语70㎡ | 2居室 | 北欧今天想要分享给大家的这套北欧风的小户型,巧妙地利用了次卧和飘窗的空间,让收纳的空间得以提升,虽然套内只有70个平方,但储物空间就有20个平方,还没有影响到每个空间的颜值,到...
- 潮流室内装修设计
-
-
-
- 140㎡ 简约高级灰,空间化零为整利用率翻3倍!
- 该项目位于北京市朝阳区,位于整栋建筑的第一层,面积约 140㎡,是为一家三口设计的居所,屋主爱好阅读与美食。设计理念在合理安置细化各种生活需求的同时,将一些封闭空间敞开,将更多自然光线引入居室内,维持...
- 内小宅
-
-
-
- 首批90后的客厅长这样,看完我酸了
- ▲ 点击蓝字“装修百宝书”,你想知道的装修问题,答案全在这里啦!查看半包装修要花多少钱?查看全包装修要花多少钱?查看10万以下的装修方案马上到2021年了,首批90后即将步入而立之年,很多90后同学都已步入...
- 装修百宝书
-
-
-
- 护墙板有什么优缺点,有什么用?那么贵的东西,没搞清楚别乱装!
- 护墙板是一种在普通家装中的一种装修材料,对于“护墙板”这个概念,相信很多人都比较陌生,其实它就是类似木饰面的一种墙面保护装饰材料,主要材料也是木质的为主,木质在经过特殊工艺处理后的一种墙面装饰材料...
- 室内设计姐
-
-
-
- 这个85㎡的小家,既简约又有温度和诗意,有茶室还有一个小花房,让人向往!
- 家装室内设计 ,每日搜集分享国内外最前沿的家装设计、施工、建材等内容,成为您家装的好帮手! 本案是一套面积为85平米两居室,屋主夫妻俩都喜欢日式的冷静淡雅,偏爱黑白灰、原木色,喜欢听音乐、看电影和睡觉...
- 家装室内设计
-
-
-
- 台北夫妇的朴拙生活,172㎡从不断舍离,家中满是收藏品
- 关注微信公众号:jiawyk,一起聊聊装修中的苦闷与快乐~断舍离的生活方式,逐渐出现在我们的视野中,简洁利落的空间虽然很受欢迎,但不是每个人都喜欢。比如接下来齐家小菜分享的案例,就给予了不同的居家体验感...
- 小菜聊装修
-
-
-
- 146㎡纳维亚风,自然木作+中古家具,Get富于“人情味”的家!
- 家的要素, 让城市里忙碌的年轻人住得更好。说在前面这是一个年轻的三口之家,改善现有的居所环境是他们的目的,女屋主刚生了小宝宝,这里也是计划孩子长大一些后上幼儿园的居所。设计师用纳维亚风格来表达这个...
- 家的要素
-
-
-
- 永威·上和琚别墅,定义豪宅新美学|李玮珉新作
- 申报倒计时 | GHDA环球人居设计大奖,点击图片查看详情↑看的见的风景See the scenery-世界级的豪宅,会满足人们对圈层与身份的需求,亦提供一种艺术的滋养以及内在精神追求与归属感。郑州,一座城市的历史底蕴...
- 居住空间
-
-
-
- 153㎡新中式三室,山水墨画沙发墙,打造出别具一格的江南风情
- 关注微信公众号:jiawyk,一起聊聊装修中的苦闷与快乐~这是一套153平米的户型,整体以独特优雅的江南水乡风情的格调,以诗意朦胧的山水与墨色的装饰元素,营造出一个别具一格的新中式风格,带来的是一种焕然一新...
- 小菜聊装修
-
-
-
- 为了摆脱“抄袭”标签,日本设计用了多少年?
- 前段时间某呼上的一个话题火了为什么大家都喜欢昭和设计?无论是又纯又欲的古早美女杂志还是平面海报、服装、产品再到建筑等各方面的昭和设计一眼便难忘,令人万分着迷今天,象君就来和大家一起揭秘昭和设计到底...
- 普象工业设计小站
-
-
-
- 108㎡黑白灰调简约风两居,微暗中处处弥漫着质朴原生的高级感
- 家装室内设计 ,每日搜集分享国内外最前沿的家装设计、施工、建材等内容,成为您家装的好帮手!本案是一套面积为108平米的两居室,屋主是一位在国外生活过的洋派时髦女性,追求完美,与自己的宠物bobo一起居住。...
- 家装室内设计
-
-
-
- 89㎡学区房改造,一体式LDK+吧台,为女儿打造“世外桃源”!
- 家的要素, 让城市里忙碌的年轻人住得更好。说在前面日光漫进室内,舒服得让人想随光跳舞。妈妈和小朋友在屋内一起做饭、阅读和玩耍,感受家的质感和温柔。女主人对家的描述很清晰,一进去就处处能感受到温暖,...
- 家的要素
-
-
-
- 65m小户型,绿色的自然优雅
- △记得把我设为星标哦,不然就看不到我了Bodes Studio现代轻奢小宅本案来自Bodes Studio的项目空间,位于俄罗斯首都莫斯科,总面积为65.5m²。空间以复古知性的绿色与醒目愉悦的橙色勾勒一个自然优雅的色彩空间...
- 设计之旅
-
-
-
- 双面采光,94㎡舒适慵懒的一人豆蔻青居
- APP Store 排名第一的家居杂志杏灰、豆蔻青 温润橡木色 也无需多余修饰 卸下压力后,放空发呆的 日常生活美景 本期案例房子是双面采光,屋主一个人居住不需要太多房间。因此,以开放式的构架设计房屋的公共区域...
- PChouse家居APP
-
