- 首发|SHD山禾设计:新年轻主义,纯粹而精致!
- 来源:拓者设计吧
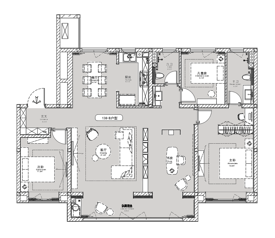
01
138户型
爱上一座城,没有前因,无关风月。奢华本身,不仅仅是物质,更多的是一种生活的态度,品味格调的体现。
回归家庭的都市精英,低调而精致,品味独特而优雅,在瞬息万变的时代中,成就了另一种艺术生活。点到为止的奢、纯粹而精致的雅。
客厅
Living room
客厅与书房的视觉感受,让整个空间更加有层次感。皮质与木质的结合,温文尔雅,金属隔断宛如纱,朦胧又带着神秘感,轻奢而不张扬,艺术摆件与花艺呼应,更能感受回归家的温暖。
书房
Study
空间所表达的质感则更显轻松和生活化的艺术,开放式书房与客厅空间共享,线条感与艺术结合,色彩渐变的亚克力隔断给予空间不同的灵魂,灵动的雕塑诉说着主人的故事与情怀,如一壶老酒般悠长,文艺,散落在时光沉淀的细节里...
餐厅
Dining Room
餐厅中富有肌理感的大理石与金属吊灯的点点光影中回溯交错,橙色的皮质餐椅更加夺目耀眼。
自然花艺的运用,使空间更加宁静,这一切赋予了生活最灵动温馨的样子。设计是艺术,美食与生活亦是如此。
主卧室
Master Bedroom
长辈房
Elder Room
空间里特定的材质及颜色不停重复出现,但又都以不同方式呈现,串联着整个空间,稳重而不失灵动,向往有一个安静的角落,可以静下心用自己的节奏感受生活的意境。
男孩房
The boy room
男孩房中,兴趣拥有了绝对的话语权。这是一个从小萌芽的赛车梦,动感赛车主题呼应床品及艺术摆件,让整个空间酷炫不失趣味性,橙色积极向上的色彩,象征着青春激昂少年的人生,从此刻变得耀眼。
138户型平面图
85户型
年轻人永远是社会的希望和文化的风向标,新时代之下,他们的思想独立,个性鲜明,锐意创新,在空间形态中尽诉着自己的审美。
客厅
Living room
柔软干净的艺术趣味的元素,在空间中相互交替和渗透。
餐厅
Dining Room
餐厅独特的金属吊灯和鲜明的陈设配色,统筹尺寸及舒适度的考量,层次感与趣味性随即而出,温馨的用餐故事于此展现。
人间烟火气,最扶凡人心。
阳台
balcony
阳台是悠闲与享受的代名词,淡化内外的边界,加强与客厅的关联,猫宠与植物的动静结合,赋予生命新的感受。
主卧室
Master Bedroom
丝绒、皮革、布艺、艺术摆件共同形成丰富的空间肌理,辅以大面积的色彩对比与夺人眼球的复古红色装置画精准地调和着空间的节奏,使得整个空间在视觉上,脱颖而出,充满了理性之美。
客房
Guest Room
红色亚克力装置与金属吊灯结合的相得益彰,精致的金属摆件互应整个空间,恰到好处的红,恰到温暖的幸福。
一抹出挑的红色,赋予空间勃勃的生气,青春火热,以简练的手法和元素创造丰富的空间体验,唤起人们潜意识中的热度,年轻,永远热切的投入,永远在探索创造的可能。
85户型平面图
项目名称:石家庄长安金茂悦
委托业主:中国金茂
业主团队:张欣 张志彬 张瀛
项目地址:河北省石家庄市
竣工时间:2021-04
设计公司:北京山禾金缘艺术设计股份有限公司
软装团队:郭红梅 彭礼 林霄霄 史慧
硬装团队:刘吉 刘芳芳 顾晗
空间摄影:李胜阳
郭红梅(左) 刘 吉(右)
设计合伙人
近期作品
泰康之家海棠101
泰康之家海棠101
泰康之家海棠101
拓者设计吧
▽
生活
-
-
- 从厨房进入客厅,100㎡学区二手房的大胆蜕变
- APP Store 排名第一的家居杂志保持一种平常的心态 淡然而简单的生活 快乐着,幸福着 本期这个房子紧邻黎明湖公园,隐匿在喧闹的都市当中,周边环境不错,是比较典型的福州老二手房户型,三房朝南,进门就是餐厅...
- PChouse家居APP
-
-
-
- 128平紧凑小四房,现代美式装修,简单时尚又雅致~
- 导Lead语128㎡ | 4居室 | 美式这套128平米的紧凑小四房,在简单整洁的现代美式硬装空间基础下,搭配上温馨优雅的软装,加入情趣温馨的色调,装扮出一个舒适轻松的家,简简单单的美感,显得格外的舒适实在。图赏...
- 潮流室内装修设计
-
-
-
- 180㎡朴雅亲子宅,光合作用的疗愈家景
- 关注微信公众号:jiasjmt,家装案例每天更新! 当从层层屏蔽的垂直透天,转至宽阔无阻的水平大楼,不只松绑视野宽幅,也虚化不合时宜的隔阂,正是今天齐家云云要分享的本案屋主毅然搬迁的初心,深知不愿被...
- 齐家一站式装修
-
-
-
- 神仙得房率!90平老房竟改出3室3卫
- ▲ 建筑面积90平,项目地址:北京,完工时间,本案是城区市中心购置的学区老房,原本通透的采光优势通过设计师的巧妙改造满足一家四口的高颜值高效率的居家生活▲ 平面布置图▲ 玄关,利用壁灯和顶面线性灯增强...
- 装修33天
-
-
-
- 乡建文旅+高端民宿|探访桐庐10家高端民宿
- 注:本次桐庐游学考察活动限定35人,满员即止,感兴趣的朋友请尽快联系刘老师报名交费。乡建文旅与高端民宿游学考察【杭州-桐庐站】2013年桐庐县率先在杭州市乃至浙江省部署和推进文旅民宿经济发展短短几年间桐...
- 居住空间
-
-
-
- 小卧室不要再买床了!头次看到这种设计,多功能又省空间,太实用了!
- ☞关注后回复:“卧室、餐厅、客厅、卫生间、厨房、衣柜、阳台、玄关、背景墙、儿童房、装修风格...”等都会收到相关内容,已覆盖99%家居装修的内容。在房屋装修中,对于一些小卧室的装修设计,我们一般会做一组...
- 创意家居生活通
-
-
-
- 则灵艺术新作|焕然新生,献礼武汉
- 新城·天悦观澜作为新城全新著作,项目坐落于武汉汉南区,新城集团心怀对武汉人民的倾心贡献精神,期待以”未来人居洞察,以前瞻时代居住文化“,以及“让幸福变得简单”的企业使命,为武汉这座城市重新注入活力...
- 火车头设计
-
-
-
- 440㎡两层公寓,隐于市的“都市绿洲”
- Dezest Design隐于市的都市绿洲每个人,对自己所在城市的认知印象,大概都是这样的:嘈杂、匆忙、充满压力......但是每个人对于从大城市喧嚣中放松身心,并获得新能量的地方,又有着自己的想法。这个项目叫“The...
- 设计之旅
-
-
-
- 用气味“装修”家,这才是生活的味道
- 熟悉的味道总能让人第一时间体会到独有的归属感。虽看不见摸不着,但却能触动内心最真实的地方,一段记忆一个地方一个人:它可能是熟悉的香薰、香喷喷的家常菜、清新的植物…带给人的治愈感不容小觑,那关于气味...
- 时尚家居
-
-
-
- 96㎡ 复式公寓,红配绿轻松打造高级复古感!
- 这套两室一厅的小复式面积共 96㎡,位于利沃夫由 Nazarius Shore 主持设计设计师大胆的使用了高饱和度的色彩搭配出了一个充满复古意味的高级空间△平面图室内一层是开放空间客厅、餐厅和厨房之间没有隔墙通过楼...
- 内小宅
-
-
-
- 首发|SHD山禾设计:新年轻主义,纯粹而精致!
- 01 138户型 爱上一座城,没有前因,无关风月。奢华本身,不仅仅是物质,更多的是一种生活的态度,品味格调的体现。回归家庭的都市精英,低调而精致,品味独特而优雅,在瞬息万变的时代中,成就了另一种艺术生活...
- 拓者设计吧
-
-
-
- 三口之家的164㎡,当简约遇上新中式,这房子可以打满分
- 关注微信公众号:jiawyk,一起聊聊装修中的苦闷与快乐~当下简约风格已经成为主流,很多家庭都放弃繁杂装修,转而追求简单得体舒适的居家空间,不仅空间更宽敞,还有利于提高居家生活质量。接下来齐家小菜分享一...
- 小菜聊装修
-
-
-
- 一间茶室,两个厨房,原来人间有味是清欢!
- APP Store 排名第一的家居杂志知足常乐,平淡是福 正所谓人间有味是清欢 清淡的欢乐才最具有滋味 屋主的愿望:一、女主人希望能开开心心整理,妥妥当当规整,对强大储物的渴望。二、想要有个能放空的地方,愿意...
- PChouse家居APP
-
