- 小夫妻花34万买下28㎡两室一厅“小别墅”,还自带一个花园露台!
- 来源:腔调软装

这个28平的移动“小别墅”, 两室一厅一卫, 随地摊开变成一个家。
- 生活美学 -

结婚生孩子,最大的问题就是:买房子! 比买房子更大的问题就是:买不起房子! 
可谁说房子就一定得是城市里死板的高楼公寓? 热爱旅行和大自然的Greg和Lara做了一个大胆的决定:拿出所有的积蓄——5万美金(合人民币30多万),买了一个可拆可装、分分钟打包带走的“小别墅”! 
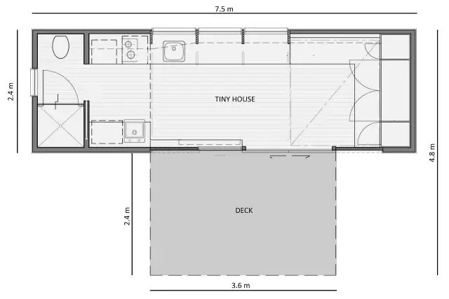
请注意,他们买的不是房车,而是一座货真价实的“小别墅”! 这个28平的“小别墅”,可是两室一厅一卫,还自带一个花园露台,可以随地摊开延展,变成一个家。 
也可以随时收起来,拉在车后就能上路,开往任何一个诗和远方。

这样超出常规的“房子”,让很多人好奇。只有28平米,这么小的房子真的能两室一厅一卫,还带小花园?居住起来又会是怎么样呢? 麻雀虽小,五脏俱全,看完这个“小别墅”的内部结构,你的疑问就会有答案了。 
“小别墅”有两个卧室,两头各一个 中间是厨房和客厅 正对着客厅的那面墙可以拆掉 变出一个美丽的小花园 内部功能十分齐全
完全满足两人生活需要 
房子的空间吊顶很高,足足有有2.6米 所以上层空间的利用率可以大大提高 比如第一个卧室,用了一个可以升降的床 白天不使用的时候,就上升到屋顶 晚上降下来,就可以睡觉了 
床的下方是一排L型的沙发 白天,这里就当做客厅 有客人来了就可以坐上去聊天嬉戏 没客人的时候,也可以躺下来休闲放松 看书翻杂志,慵懒且舒适

沙发的尺寸也是经过精确测量设计的 和床的大小刚好契合 当床降下来的时候 正好撑在沙发之上 
为了充分利用空间 里侧的墙面也巧妙地做成了嵌入式的衣柜 衣柜的旁边是鞋柜 旁边的其他格子也都可以储存物品

整体风格简约却不简单 充满了夫妻二人的生活情趣 热爱大自然的他们 也把小小的客厅变成了绿植的家 一整面墙,摆放着各式各样的绿植 感觉在这里呼吸都是绿色的

养了绿植,自然也需要时常通风换气 所以,两侧墙壁四处开窗
而这些窗户,就像一个个天然取景框 窗外的风景随时入画,屋内的装饰也随时变成风景 
绿植墙的下面,是一排桌子 桌子的一头设立了简易的厨台 窗明几净,灯火飘摇 可以随时边看风景边做饭 
两个人的生活,厨房不需要太大 一个洗菜池,两个炉火灶台 灶台下方是存放餐具的柜子 还有一个嵌入式的小冰箱 灶台上还有充足的空间 可以放水果和鲜花 简直完美地利用了每一处空间

过道另一侧,是个休闲的窗台 平时可以充当吧台用 无论屋里屋外都可以坐下来喝一杯
窗台里还藏了一个可抽拉的隔板
如果Lara需要工作的话 拉开固定,立刻变身工作间啦 
沿着过道往里走 就是卫生间和浴室 
洗手台在卫生间的外面,保证干湿分离 台面下放了洗衣机,上面还放了咖啡机 插花和画,角落虽小,浪漫的情调一点都不能少

卫生间的上方是个小阁楼 沿着小梯子就可以上去 这里被安排成了另一个小卧室

一盏小暖灯,开扇小窗户 床头有温馨的照片和抱枕
一侧还放了小书架和CD机 白天,阳光可以从小窗射进来 读书或者听一段音乐
暖洋洋的很美好

晚上的时候 伴着月色和虫鸣入眠
定是一夜好梦 
接下来,要见证奇迹了 “小别墅”的阳台可以随时延展出来 只要能找到一片空地,然后搭好支架

把黑箱子的其中一面拆下 作为延伸的平台 再摆上一个沙发和一些花草 一个花园洋房就出来了 
白天阳光入户、花草袭门 在这里喝茶晒太阳 晚上星空辽阔、虫鸣鸟叫 躺在沙发上聊天数星星
日子过得惬意至极 
更幸福的是,两口之家很快变成了三口 Greg 和 Lara的小宝宝出生了 这麻雀一样小的房子里 从此要多一个人住了 虽然并不宽敞,但却显得更加亲密美好 
于是,一家三口的流浪生活开始了 想去的地方,拉上自己的“别墅”说走就走 
遇到风景美好的地方就停下来 在风景里住上几天 看够了风景就继续上路 

也有人说:这样四处漂泊流浪,没有安全感 但Greg 和 Lara却不这么认为 生活中有太多的物质需要追求 而真正重要的却少之又少 他们心目中最重要的是家人和爱 虽然生活在流浪 但家和爱人都在路上,梦和现实都握在手里
夫复何求呢? 


精品素材 墙裂推荐,真的超值 ▽ 80套 国外精品 · 艺术公寓 · 住宅家装 
70套 现代风格·样板间住宅·实景案例
100套 北欧木质·简约风格·潮流ins风
60套 住宅别墅·室内设计·建筑外观 
生活
-
-
- 这就是90后青年的“不正经家装”,换成你敢把家里楼梯变成滑梯吗?
- 关注微信公众号:jiasjmt,家装案例每天更新! 当最后一批90后都已经上了大学,90后也成为了家装行业的主力消费者,他们努力工作也热爱生活,他们遵守规则也喜欢打破规则,让这样一群人和家装相遇,你就会...
- 齐家一站式装修
-
-
-
- 101㎡撞色顶流设计,脏粉搭配藏青更显色彩跳跃感,文艺范十足!
- APP Store 排名第一的家居杂志设计 远不止简单的堆砌协调 更是一种精致生活的生动呈现 本次案例的业主对材质的接受度和色彩的开放度都很高,不喜欢太过传统的设计,要创新、个性、有特色的。喜欢脏粉色和复古元...
- PChouse家居APP
-
-
-
- 夏天必入手的五种花,个个都是高颜值,耐热又好养,家里养几盆,花美色丽人人夸!
- 明天就是五一小长假了,想想还是有点小激动,五月一到,意味着春天已经画上了圆满的句号,热情如火的夏天到了,今天小编给大家推荐5种适合夏天入手的花花,个个都是颜值担当,不怕热又不怕晒,家里养上几盆,花...
- 养花之家
-
-
-
- “挺”进万亿家装市场的新国美
- 作者:冯超监制:迟宇宙来源:商业人物(ID:biz-leaders)那个以销售家电而知名的国美,似乎正在发生着剧烈的变化。围绕着它的诸多或平淡、或引起众人好奇的故事,也都在一个很短的时间内以不一样的方式发生,...
- 商业人物
-
-
-
- 一家三口310m的理想家:可以住的“艺术馆”
- APP Store 排名第一的家居杂志七彩群鱼奔赴大海如鱼得水艺术便随之诞生本期案例以‘艺术馆’为主题,屋主夫妻是一对潮玩的生活家,喜欢旅行,喜欢各种新奇的事物,对艺术充满极强的包容性。他们尊重并热爱艺术,...
- PChouse家居APP
-
-
-
- 五一小长假:出游人从众VS宅家欢乐多~我选后者!
- 全文约:1500字,阅读时长约:5分钟心心念念的五一小长假就要到了,小照已经迫不及待要跟大家说五一快乐了!但是,在广大网友的计算下,五一实际只放一天假!早在一周以前#五一调休#就冲上了热搜,这个五一小长...
- 一统国际家居
-
-
-
- 45㎡ 小公寓,高级黑灰色下的优雅设计!
- 黑砖,原木,麻质地毯,深蓝色沙发这个 45 ㎡ 的幽暗空间由设计师 Olga Fradina 为女歌手 BAKHIRKA 打造的家从客厅到卧室黑色的砖墙压暗了空间的整体色调一切仿佛都置于阴翳之中而在这样的暗黑空间里可以让人完...
- 内小宅
-
-
-
- 老来有个小院,不胜欢欣!
- ☞关注后回复:“卧室、餐厅、客厅、卫生间、厨房、衣柜、阳台、玄关、背景墙、儿童房、装修风格...”等都会收到相关内容,已覆盖99%家居装修的内容。有人说最理想的生活是,在大城市奋斗,在小城市生活。走过红...
- 创意家居生活通
-
-
-
- 这家建材企业 又一次革了行业的命?
- 未来已经到来,只是尚未流行!——凯文凯利《失控》01家装领域的“变革者”时代的河流,每一刻都在调转方向。在中国敢革自己命引领行业发展的企业不多,但海尔算一个:从最初的生产制造到张瑞敏砸冰箱,由大规模...
- 头版财经
-
-
-
- 128㎡现代轻奢风,精致华丽,时尚感太强!
- 在128平米的空间内,整体现代风的硬装,在造型与吊顶边框里加入金属质感的点缀,使得空间充满华丽精致的轻奢档次感;同时布置现代优雅而舒适的软装与小饰品,也让空间显得更加灵活有趣。客厅▲客厅在现代风的空...
- 室内设计秀
-
-
-
- 小夫妻花34万买下28㎡两室一厅“小别墅”,还自带一个花园露台!
- 这个28平的移动“小别墅”,两室一厅一卫,随地摊开变成一个家。- 生活美学 -结婚生孩子,最大的问题就是:买房子!比买房子更大的问题就是:买不起房子!可谁说房子就一定得是城市里死板的高楼公寓?热爱旅行和...
- 腔调软装
-
-
-
- 首日盛况丨北京建博会“高端新品”惊艳出圈,小尼宅配引爆全场!
- 2021年4月30日第31届中国(北京)建筑材料与装饰展览会正式拉开了序幕北京建博会首日报道“高端新品”惊艳出圈小尼宅配引爆全场1展馆现场精彩亮相 大放异彩北京一年一度的建材展览会开展首日来自全国各地的知名...
- 小尼宅配
-
-
-
- 房子有院子,再小也迷人!
- ▲ 建筑面积36平,造价25万,位于上海静安区,房子虽小,但地段好,位置赞,就连房子外部都人见人爱▲ 原始结构图&平面布置图▲ 入户设计木色收纳柜与衣帽架机能,加上简框画背景与绿植的点缀,一进门给人轻松愉...
- 装修33天
-
