- 藏不住的高级感!172㎡现代简约装修,一个客厅就把我迷住了
- 来源:小菜聊装修
关注微信公众号:jiawyk,一起聊聊装修中的苦闷与快乐~
面积较大的房子,在装修风格上多以现代简约为主,不仅突显高级还能延续空间的简洁宽敞。这期分享的案例是一套四居室装修,套内面积172㎡,根据屋主的起居习惯与需求,轻巧捏塑出公、私空间的弹性界限,同时揉合木质元素,提升柔软的视觉温度,打造一个极富高级质感的居家空间。
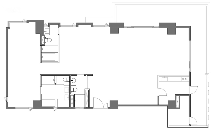
▼原始户型图
套内172㎡的使用面积,隔断墙少空间开阔,装修可塑性较高。
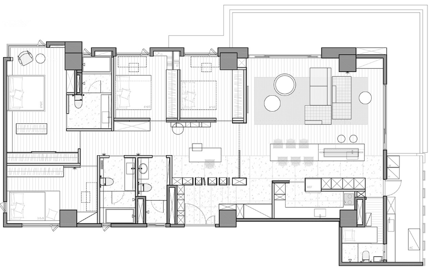
▼装修布置图
由于屋主一家五口,将房屋空间合理分配,打造成四房两厅四卫格局,提高日常生活舒适性。同时开辟书房,以开放格局展现,便于随时照看孩子。同时保留了客厅开阔无阻的窗景。
▼玄关设计
进门大面积灰板岩地砖铺展,浅灰色系带出优雅质感,搭配纯白色调鞋柜,减轻玄关视觉厚重感,变得简洁明亮。
玄关转角,以粗犷石材砌出浓厚的原始粗犷,透过凹凸起伏的块状线条,烘托视觉与触觉的双重张力。一道实木层板、一盏柔润吊灯,营造自在写意的端景。
▼客厅设计
运用材质的交叠与串接,无形中拉伸空间柔软度。润雅卡拉拉白大理石做为电视主墙,滑顺平整的光感面,在自然采光效果下,犹如深邃景深的一面明镜。电视墙下方以虚实手法配置设备柜,靠近阳台设计展示柜,强化客厅收纳。
客厅保留了开阔无阻的窗景,双面阳台采光极佳,落地窗设计极大的增加自然采光效果,当澄澈日光悠缓漫入轻柔窗帘,撑开绵延无际的纵深视角,将落地窗化为相伴一家人的舒适背景,效果相当的迷人。
▼餐厨设计
为了取得中岛台、阻隔油烟二者需求平衡,以内外厨房布局做化解。以雾黑烤漆餐边柜筑起封闭厨房,并隐藏暗门达到整洁美观的效果。一体成型的原木餐桌与赛丽石中岛,透过错层嵌入设计,牵起餐叙重心。
大型家电布置于内厨房,外厨壁柜以储物收纳为主,维系简洁无阻的连续餐叙画面。过道设计玻璃推拉门,轻巧捏塑出公、私空间的弹性界限。
▼书房设计
用重叠手法串接公、私领域,让汇集动静的过道交界,兼具办公书房功能。雾透玻璃滑门一开一阖缩放明朗景深,方便照看孩子动态之余,夜间又能筑起明亮安全的堡垒。局部灰泥马来漆,为书房增添了一股温润内敛气质。
▼卧室设计
温婉含蓄的马来漆面,随着线条跳跃逐步延展床头背景墙。背景墙分上下两层,下层以混搭人造石与皮革绷布,刚柔质地凸显冲突美感,相映一笔流畅的光晕灯带,带出舒适无拘的睡眠氛围。
为了回应屋主对更衣间的期望,跳脱刻板框架结构,以一面木质悬吊柜做为划分,再辅搭吊杆与纯白层柜接连至底,创造出双向收纳。
连续面衣柜以平条玻璃稍加遮掩,一式到位的拉柜+穿衣镜从中拉开,任何饰品物件尽收眼底,从另一侧相望,宛如层层交叠的轻盈量体,展现出别样的动线结构。
▼主卧卫生间
主卫纯粹明亮,全面贴覆大理石薄板瓷砖,任由润雅石纹脉络蔓延,为了化解黑色框镜的生冷感,以温润柚木浴柜调和水气与视温。浴缸天花也采用实木企口板,散发自然气息。
▼儿童房设计
考虑到孩子的成长变化,以活动式家具为主轴,量身订造软垫床架,从墙侧加强厚度包裹,提高睡眠安全系数。一抹樱花粉墙面,带出童真气息,同时虚化笨重梁柱负担感。
运用轻暖木质包覆顶梁,下层贴齐柱体延伸设计层架,强化收纳空间。背景贴覆灰镜,不仅理顺零碎的壁面轮廓,也解放压梁局促视感。
▼卫生间设计
另外两间卫浴,接续铺展质朴灰阶石材,洗漱台分别以薄板瓷砖、水磨石增加差异变化,使原始不造作的纹理,酝酿协调不杂乱的厚实层次。
以上就是这套使用面积172㎡四居室装修了,以分散式进行全体布局,使生活器具皆有归属,以获得宽敞纯净的空间氛围,并从结构墙体发展出多面向功能,并透过材质的混搭,创造不同的视觉感官效果。
(我们致力于保护作者版权,部分作品来自互联网.无法核实真实出处,如涉及侵权,请直接联系小编删除.谢谢!)
加微信:qijiavf,或扫描下方二维码,即可根据您家户型,免费提供多套相似VR-3D效果图供作参考!!
像这样装修需要花多少钱?点击“阅读原文”马上就能算出来!
生活
-
-
- 53㎡ 小户型,巧用多功能家具,一居变两居
- 这套 53㎡ 的公寓布局为一室一厅设计师用黑白色为主调搭配色彩鲜艳的软装打造出一个时尚前卫的空间玄关是纯黑色的空间从地面到天花都被刷成黑色唯一的色彩是造型简单的木质小方凳起居室与玄关的地面从黑色变成白...
- 内小宅
-
-
-
- 厨房装修的注意细节,装修前留个心眼,避免多走弯路!
- 辛辛苦苦买了房子,就想把它打扮成自己心中最美的样子。开始装修时,内心已经描绘了无数的蓝图。可是,想象是一回事,实操又是一回事。对技术工作一窍不通,一切托付给装修队,装完才发现被坑了。没有坚持自己最...
- 房子装修
-
-
-
- 996互联网人的家,牺牲独立厨房,换来主卧大套间,办公区成“C位”!
- 家的要素, 让城市里忙碌的年轻人住得更好。说在前面屋主李先生,就职于互联网宇宙大厂,经常出差加班,但他也从未怠慢过生活,热爱旅行也热爱家居,经常关注前沿家居设计,钟爱哑光和极简。屋主平时都是自己居...
- 家的要素
-
-
-
- 藏不住的高级感!172㎡现代简约装修,一个客厅就把我迷住了
- 关注微信公众号:jiawyk,一起聊聊装修中的苦闷与快乐~面积较大的房子,在装修风格上多以现代简约为主,不仅突显高级还能延续空间的简洁宽敞。这期分享的案例是一套四居室装修,套内面积172㎡,根据屋主的起居习...
- 小菜聊装修
-
-
-
- 优雅细节,打造78m现代北欧人居
- Behrer Partner现代北欧人居本案来自Behrer Partner的作品,总面积为78m²。空间以米色、黑色、灰色作为主题配色,通过平衡三者之间的比例与面积,打造现代经典的生活空间。米色与灰色大笔触勾勒淡雅简约的氛围...
- 设计之旅
-
-
-
- 小空间怎么做吊顶?走廊过道这样做,看起来很大气!
- ☞关注后回复:“卧室、餐厅、客厅、卫生间、厨房、衣柜、阳台、玄关、背景墙、儿童房、装修风格...”等都会收到相关内容,已覆盖99%家居装修的内容。玄关走廊和卧室过道是很多户型都有的一个空间,这个空间的采...
- 创意家居生活通
-
-
-
- 150㎡轻奢风,打造精致时尚的居所!
- 亲切、舒适、温暖、阳光……每个人心中都有关于理想住所的构想。150㎡,Loft,家装总花费180万,室内设计刘阳用近半年时间,为他的业主实现了其对理想住所的美好想象,交出了最满意的作品——《恋日花都》。客厅...
- 室内设计秀
-
-
-
- 吴文粒新作| 邂逅浪漫色彩主义!
- 色彩不仅是空间的点缀,更是空间一种气度的内在传达。轻吟一首纯白歌谣,行如从容的海水一样自由包容。01 C4户型 云玺C4户型以鲜亮的橙黄为主色调缓缓铺陈开来,明媚张扬,灵动活泼,泼洒别具一格的空间体验。辅...
- 火车头设计
-
-
-
- 五一不出门,也要精致的快乐!
- 五一劳动节假期来临,不出门就在家享受极致的快乐。现代精致的居家生活,一点一滴从空间的感染力来形成一种对于美好生活品质的仪式感。【客餐厅】【卧室】本套设计空间通透,保持了空间逻辑同时也平衡材料与结构...
- 缪斯设计
-
-
-
- 法式空间,高级优雅!
- 法式空间 ATELIER DAAA新作,如何赋予经典的室内个性,增加空间亮度和现代感?这个巴黎公寓的设计师选择了简约和深色的内饰和家具。讲求心灵的自然回归感,给人一种扑面而来的优雅气息。面积185平方米的空间,高...
- 米兰设计之旅
-
-
-
- 绿萝可以扔了,这花更好养,颜值高还有格调
- 养花最麻烦的就是配土上盆,以后浇水还要看土壤情况,动不动就闷根烂根,土里还容易生虫···今天给大家推荐纯水培、空气培的花,简直就是懒人福音!花叶万年青花叶万年青和绿萝一样好养,不过它是直立型的,不...
- 养花大全
-
-
-
- 宁波120㎡设计师的自宅设计|0.5m Studio
- 中国设计微刊,专注「家居、时尚、创意」设计分享 设计空间 | 书画艺术 | 生活美学喜欢设计点击上方 “空间设计 ” → 点击右上角“...” → 点选“设为星标 ★ ”项目名称:更多坐下来空间的家设计方:离宅半...
- 空间设计
-
-
-
- 致敬!每一个平凡的伟大!
- 岁月并不是天生静好,生活的来路上,总有那样一群人,靠着汗水和拼搏,靠着坚毅和信仰,撑起万千人的春光艳阳。这是怎样的一群人,是什么让看似平凡的他们,总能在深邃的时空里迸发出绚烂的光彩,这光彩持续耀眼...
- 辽沈晚报
-
-
-
- 阳台除了晒衣服,竟然还能这么利用210501
- 阳台作为一个特殊的空间是室内和室外的连接点,你既可以把它完全打理成一个对外的休闲花园,也可以把它“收回”到屋中封闭起来,改为另一种功能性空间,它可能是洗衣间、衣帽间,也可能是书房......先上几张,开...
- 旧物利用家
-
