- 懂得留白的设计,更显格调!
- 来源:内小宅
Kantastin Remez
想要做好简约设计就要懂得留白,留白更能凸显空间主体,传达出特定的艺术氛围和塑造非同一般的居室美感。
△康斯坦丁·雷梅兹(Kantastin Remez)
居住在明斯克的建筑师和室内设计师康斯坦丁·雷梅兹(Kantastin Remez),他就喜欢用简单的方式,构想出独特的设计灵感,打造一个又一个简洁、干净又不失温度的居住空间。
01
Ratomska
面积丨90㎡
地点丨白俄罗斯明斯克
年份丨2021
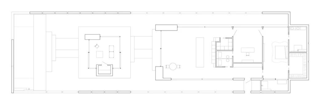
这个名为 Ratomska 的住宅,呈 L 型户型一室一厅的布局,入口处设有小型衣帽间,再往里分别是卫生间、客餐厅、厨房和卧室,室内大量运用了天然木头,石材做主材料,创造出轻松且充满自然感的空间。
△平面图
客厅墙面使用木饰面和水磨石砖铺贴,浅色的石材与原木色相接,视觉呈现更显高级统一。家具上选用了白色、紫色、金属色来填补了材料上的单一,两者形成淡淡的互补,让空间看起来更加和谐。
顶上的天花板犹如地板般铺贴出花样,再加上木制的顶角线和木饰面橱柜门,使整体空间看起来简约而不简单。
厨房设计同样如此,水磨石砖打造的厨房岛台,高低有序的造型,不仅方便了使用也增加了空间结构的层次和体块感。
卧室中间砌一堵半墙,中间摆放一张双人床,不要床架的设计正好与两边的床头柜等高,整个空间看起来充满了现代和优雅的高级感。
推荐阅读
95后小哥做的效果图,同色系更适合极简风
有些设计,看上去就是很「寂寞」
直线变曲线,极简设计的另一种手法
样板房也能设计的如此极简!
8组住宅效果图,原来大户型更适合极简风!
极简豪宅概念设计,愈宁静愈高级
最实在的小宅灵感
▼一起设计生活馆
点点赞
点在看
生活
-
-
- 147㎡现代简约,时尚个性的装饰,高级舒适的空间!
- 在这套147平米的房子中,整体以现代简约风格的基调,融入年轻人的生活方式设计,通过实用与舒适的空间设计与布置,营造出一种时尚轻松的居住氛围感。客厅▲现代风的客厅,整体天花吊平顶+无主灯的设计,布置上现...
- 室内设计秀
-
-
-
- 高雅气质,设计的魅力!
- 现代简约 ArtPartner Architects乌克兰基辅室内设计机构,每个项目非常注重艺术和家具的融合应用,无论是风格、材质、颜色、图案还是比例,丰富的元素让空间有着标志性的个性气质。△ArtPartner Architects
- 米兰设计之旅
-
-
-
- 懂得留白的设计,更显格调!
- Kantastin Remez简约设计想要做好简约设计就要懂得留白,留白更能凸显空间主体,传达出特定的艺术氛围和塑造非同一般的居室美感。△康斯坦丁·雷梅兹(Kantastin Remez)居住在明斯克的建筑师和室内设计师康斯坦...
- 内小宅
-
-
-
- 太宠女儿,75㎡的3室1厅憋屈中式,变身清新自然风
- 回归精致,慢慢生活。想必,这就是简单又高级的生活状态吧。本期屋主是位热爱生活的年轻妈妈,年龄还小的女儿喜欢清新的色彩。于是,屋主便把75㎡的房子进行了改造,白色+粉色+灰色的主色调,打造出了个轻快明朗...
- 九福家居装修
-
-
-
- [金维奖官宣]上海国际设计周联合烩设计主办,国内第1个权威软装大奖!
- 金维奖,是由上海国际设计周联合烩设计发起的中国软装设计大奖,奖项以“出圈”为主题,打破软装设计统一化,旨在通过挖掘软装陈设设计行业优秀力量,让好的软装设计真正走向大众,提升中国软装行业的市场竞争力...
- 软装学堂
-
-
-
- 祝贺上海缪斯设计&中国工商银行上海徐汇支行银企合作签约仪式圆满成功!
- 01/ 2021年5月27日上午,在上海缪斯建筑装饰设计有限公司总部,中国工商银行上海分行银行卡中心副总经理 徐斌先生携工商银行徐汇支行副行长 虞雯蓉女士等与缪斯设计总经理 李华先生、缪斯设计副总经理 许友荣先...
- 缪斯设计
-
-
-
- 矩阵纵横新作|荟萃东方人文与现代艺术
- 沈阳郡源·紫金桃源合院位于新市府、莫子山旁,历来沈阳豪宅争锋之地,于此矜贵之处,遵循最自然的形态和境界,为业主匠心缔造城市低密墅境,让生活重回雅逸。在别墅类产品日渐稀缺的当下,同类产品沈阳不曾有,...
- 火车头设计
-
-
-
- 一个人住,养两只猫!66㎡的小家温馨四溢,日子过得简单又踏实
- 一个人的生活,到底可以有多精致?相信很多人都憧憬过,大致应该是买一套小房子,装成自己喜欢的样子,再养几只宠物,种植一些绿植,精致温馨的小窝就大功告成。每天下班回到小家,享受属于自己的生活节奏。这期...
- 潮流室内装修设计
-
-
-
- 独居115m:28岁,我的安全感,从买房开始
- 面积:115平米户型:三室两厅一厨一卫风格:简约风搭配精致的软装带来独特的感受让人感觉优雅而又大方平面布置图入户没有玄关走廊,一侧是开放式餐厅,墙面设计黑板,搭配蓝色布艺餐椅,给空间一种文艺干净的氛...
- 小尼宅配
-
-
-
- 凡尔纳科幻小说的空间形式
- 凡尔纳科幻小说中故事发生地多是当时人类在日常生活中很少接触到的空间,例如荒岛、极地、海底、地下、低空、太空等。凡尔纳在小说中对各类空间的描写同18、19世纪地理大发现人类探索外在空间的行为十分相近。在...
- 科幻
-
-
-
- 首发|必扬设计:中式苏派合院,宁静致远!
- 在南通,桃李春风择址鱼米之乡如东。田园肌理阡陌交织,水系资源丰富多姿,更有远山、近水、良田、小镇和谐相伴,这是蓝城礼献南通的一首田园牧歌。飞檐翘角、高门大院,蓝城南通桃李春风以苏派园林建筑彰显古典...
- 拓者设计吧
-
-
-
- 198㎡侘寂风的家,开放式布局+艺术化表达,演绎沉浸美学!
- 家的要素, 让城市里忙碌的年轻人住得更好。说在前面屋主是一位90后独居女孩,有气质,有独立审美,喜欢侘寂风,追求完美主义,无论是在设计上还是施工细节上都是精益求精。侘寂风,也是一种心境的外在表露,淡...
- 家的要素
-
-
-
- 白醋和花露水放一起,作用太棒了,家家户户实用,一年省下好几百
- 白醋和花露水我们家里一般都有,下面这个小妙招能解决我们生活中的一些麻烦事,下面一起来看看。首先我们把白醋和花露水倒在一个小喷壶里面,比例按2比1就可以,现在来看看它的用途。妙用1:除鞋臭,穿上一天的...
- 居家日用小窍门
-
-
-
- 上海夫妻花25万把家装成“毛坯房”,无客厅+无中厨+无主灯,太太太太酷了!
- 设计 / 品质 / 生活Temperature of Love“设计这套房子的初衷是想要做一个工作室,展现一个比较偏向个性化的空间。”业主夫妻二人观念比较前卫,思想偏年轻化,对不同风格元素差异接受程度高,留给设计师发挥的...
- 设计本家居
-
