- 龙湖、万科、金茂的大平层豪宅,居然都这么创新了!
- 来源:居住空间
点击上方图片,查看民宿考察详情↑↑
最近几年,大平层产品越来越火了!
克而瑞数据显示,去年,大平层产品成交就有明显提升。
一线城市中,160平方米以上大户型成交占比较2019年净增长0.95个百分点。而二三线城市中,180平以上的大户型,成交占比提升了2~3个百分点。
从成交数据来看,高净值客群对大平层豪宅产品的需求度确实越来越高了。有人统计过,豪宅客户购买大平层产品更看重户型,决策占比达到50%,因为能做豪宅的项目,地段、资源都不会差,同等条件下,拼的就是产品功力了。
从这两年房企推出的大平层豪宅产品来看,颠覆性创新比较少见,但微创新设计一直都有。今天,明源君带大家一起来扒一扒。
营造私家花园的居住体验
别墅最令人向往的无非就是有天有地,前庭后院。
为了营造别墅的居住体验,很多大平层产品可谓下了狠功夫。最突出的是将别墅立体空间的平面化,将别墅的院落、地下室、空中花园等元素在平面空间内实现。
龙湖
2020年,各房企研发的大平层新户型,景观跑道阳台几乎已经是标配。
重庆龙湖舜山府大平层阳台实景
苏州融创·运河铂湾澜庭200平米户型的边厅连接东南两个朝向长约8.4米、宽约5.7米的L型阳台,面积近50平米,可以打造成健身房、工作区、休闲运动、空中花园等等。
融创·运河铂湾澜庭200平米户型示意图
北京云翔设计去年新发布的平墅产品,可以通过室外露台、阳台,营造出了别墅的私家庭院的意境。
▲图源:云翔设计
阳光城佛山某项目,打造了环绕着客厅的U型阳台,营造一种空中花园的别墅居住体验感。
阳光城某项目293㎡四房两厅三卫
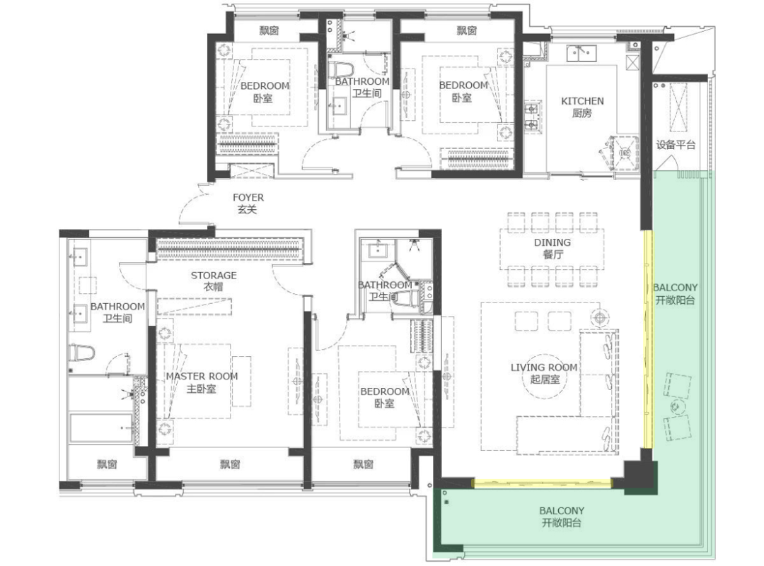
重庆龙湖·九里晴川套内177平户型,景观阳台做得就像一个真正的后花园。它是三面围合起来的空中庭院,面积达到三四十平,该设计将景观与建筑很好地能融合在一起,同样可以打造各种功能空间。
▲龙湖晴川揽境套内约177平米
但现在来看,只有一个景观阳台,竞争力已经不够了。现在大平层hao z 的设计趋势是配置多个阳台,客厅景观阳光、厨房的生活阳台,还有主卧、次卧的休闲阳台
等等。比如重庆麓悦江城260平大平层,总共设计了5个阳台。
除了客厅景观阳台和生活阳台,每个卧室也设有阳台,总面积达到70㎡左右!除了家人共享的景观阳台,每个人还有一个独享的花园,不管家里多少人,每个人都会找到自己的独享空间。
除此以外,在客厅、阳台旁设置自定义空间,也是2020年不少房企户型设计的一大亮点。
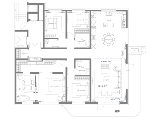
一般别墅产品都会通过赠送地下室空间,为客户预留多功能空间,客户可以将地下室打造成影音室、收藏式、娱乐室等等。现在很多大平层项目会设有X空间,其实也就是多功能空间,可以灵活使用,安放爱好的趣味空间。
比如华润悦玺的338㎡4房,专门设置了一个多功能室,可以在家里打造一个工作室,器乐房。也可以作为客房,使用灵活。
康桥这个项目235平的户型,除了双露台设计,还设有一个功能房,加上两个露台,家人活动的空间大大增加了。
动区尺度惊人
强调社交化
户型的更新迭代往往是从“厅”空间开始的。对于大平层豪宅尤其如此。
这几年,随着客户生活方式的变化,客户对于客厅功能的需求越来越多,客厅不再是看电视的地方,也不仅仅是面积足够大就够了。
相比改善和刚需项目,豪宅对动区的需求其实会更多元化,因为他们不需要上班,白天会有很长时间呆在家里。但很多项目为客户营造的仍然是白天上班,晚上回家吃饭、洗澡、睡觉的生活模式。
对于豪宅客户,他们白天在家会做什么?除了吃饭、睡觉,还有处理工作、聊天、聚会、商务会谈或者喝下午茶等等。
从大平层的客厅设计上来看,明源君发现有几个特点,一是客厅面积进一步增大,功能更加多元化,可以根据业主不同需求打造不同场景。二是客厅面宽更大,追求极致景观效果。
一、客厅面积占比提升,场景更多元
当然,要满足客户白天在家的需求,前提是动区需要有足够大的空间。所以现在有个比较明显的趋势,大平层户型动区占比面积越来越大,很多项目不再盲目追求房间数量,而更注重客户动区的活动体验。
比如沈阳金地峯汇220平的四房户型,他们的户型布局就非常强调动区的打造:
①整个社交餐厅的占比非常大,强调社交和家人情感交流。
②除了超大客厅,还增设了一个多功能厅,一家人除了吃饭,工作、娱乐、交流都转移到这里。
客厅+多功能厅活面积占比最高,有利于打造各种场景。比如聚会模式、观影模式、PARTY模式等,统统都能实现。
北京中海有个项目200平四房户型,动静区面积比高达1:1。
除了面积占比更多,还有不少项目增设了家庭厅。很多项目设了超大的会客厅,如果主人在客厅接待商务客户时,家人一般只好回卧室,有了家庭厅后,家人可以在家庭厅活动,不需要为了回避客户要回到房间。
二、超大面宽,追求极致景观
基本上,对于大户型产品来说,大面宽客厅和全落地门窗系统,现在已经是标配了。超高层的顶级豪宅,更是做到了极致。
北京大平层豪宅壹·亮马做了边厅设计,通过东侧开窗设计,让客厅两侧巨大窗体带来无敌视野。
样板间实景图
北京中海某项目四房户型,厅的面积高达100平,将客厅放在户型右侧,加上L型转角阳台设计,不管是采光还是景观视野,都得到大幅提升。
北京中海某项目200㎡户型示意图
动静分明,主卧分离
大平层经常被用来跟别墅PK,相比同价位的别墅,大平层在户型功能和私密性上,确实会略逊一筹,因为没那么多楼层,没那么多赠送空间。但现在市场上的大平层项目,通过设计创新,也大大提升了大平层产品的吸引力。
一、破除传统空间限制,客户可以自由分割空间
绿城在今年的生活开发者大会提出来,未来外立面要采用悬挂结构,而不是粘贴结构,这种结构的好处是尽量减少承重墙。
一方面,能破除室内「有梁有柱」的限制,内部结构不再被一房、两房所固化,业主可以根据家庭不同阶段和人口多少的需求改变空间结构,跟以前的全生命周期户型有点类似。
另一方面,视野也可以打破传统格局的限制向外延伸,景观视野更佳。
其实,这种设计在不少大平层豪宅已经实践过。比如首开龙光天奕就采用室内无廊柱设计,业主可根据自身风格改造空间。
前两年深圳非常火的顶豪项目深业上城,也把400㎡以上的大豪宅做了无分割的处理,内部无梁无柱,交给客户的就是一个360°景观的大通间,具体要设计成几个房间,每个功能空间多大尺度,都由业主说了算。
对于大平层豪宅,这种设计大概率会成为一种趋势,毕竟统一的户型设计很难满足豪宅客户的个性化需求。
二、双入户设计,动线分离是标配
其实,双入户设计、动线分离基本都是大平层的常规设计了。因为高端客户非常注重隐私,并追求生活的仪式感。
比如龙湖舜山府设计了三个入户大门,打造三条归家动线,且每个入户门配置独立入户玄关,仪式感和私密感更强。
①访客动线:从玄关直接进入动区,路线与家人静区不交叉。
②主卧动线:主人私家电梯入户主卧;
③后勤动线:其他家人或佣人可以通过后勤电梯直接回到自己卧室。
重庆龙湖舜山府套内约354㎡观山大平层户型图
三、功能布局动静分区,主次卧分离
很多大平层豪宅设计时都会强调动静分区,尤其这两年边厅开始流行后,动静分区特点进一步强化了。
济南奥体金茂府232㎡户型示意图
所以面积更大的大平层豪宅,会考虑将主次卧分离,进一步保护主人的私密性。
比如龙湖舜山府大平层户型,很好地实现了大平层里别墅级的各层分区式布局,起居区、客卧区、主人区,做到分而不离,互不打扰。
向星级酒店靠拢
▲南通万科方圆230平米户型布置参考图
从样板房实景图来看,主卧飘窗位置还可以改为阳台。平常夫妻两人关上门可以独享闲暇时光,晚上一个人在阳台上喝茶、静思也很惬意。
再比如首开龙湖天奕,设计一个13平的超级衣帽间,收纳空间超过12000升!相比大部分几平米的衣帽间,可以说很打动女主人了。
龙湖舜山府主卧套房拥有超过10米的开间(卧房+主卫),面积接近100㎡,超越普通三房的面积。主卧入口处过渡的换衣玄关区、男女独立衣帽间、主卫四件套,卧室书房一体化,做足了仪式感,更大程度满足主人的奢华享受。
重庆龙湖舜山府套内约354㎡观山大平层户型图
成都中铁建西派国樾230㎡户型,主卧面积超过30㎡,配有双衣帽间,主卫双台盆设计,书房外的门关上,可以将书房完全放进主卧,形成超级套房。增强卧室功能性的同时提升居住空间整体舒适度和私密性。
▲图片:成都中铁建西派国樾230㎡户型
▲图源:北京葛洲坝
小结
总的来看,大平层产品的设计创新,其实就是在满足客户基本需求之余,尽量做加法。一方面让大平层产品优势放到最大,另一方面,设计上也逐渐向别墅产品靠拢,进一步提升产品竞争力。
当然,除了户型设计,大平层在建筑设计、景观园林以及物业服务层面都有不少提升,篇幅有限,下一期明源君再跟大家详细来聊。
[好书推荐]
新微设计10本“大美系列”设计丛书
《乡村私宅》
回到乡下,建一栋漂亮的房子
点击下方图片查看详情
▼
[民宿考察推荐] 高端民宿运营、设计、建造考察学习 [桐庐站] [5月23日-5月26日] 点击下方图片查看考察详情 温馨提示:本次民宿游学限40人,满员即止,有意参加者请及时联系常老师报名(电话&微信131 2062 8228 )
[好书推荐]
新微设计10本“大美系列”设计丛书
室内+建筑+景观+民宿+酒店+庭院
[一套不错的全领域设计丛书]
点击下方图片查看详情
▼
每一本图书各具特色,围绕着“创造更美好的人居环境”逐层展开,从建筑、景观、室内等不同的设计角度,阐述着我们一直所探寻的居住理想,是一套不错的全领域设计丛书。欢迎大家参与支持,您的支持是我们不断前行的动力。
大家推荐一个超棒的室内设计号
居住空间 | 新锐室内设计平台
长按下方二维码并识别,即可添加关注
生活
-
-
- 深圳夫妻买下47㎡小宅,一体式LDK、大中岛、玻璃隔断..复古又迷人!
- 家的要素, 让城市里忙碌的年轻人住得更好。说在前面这套47㎡的公寓位于深圳,屋主是一对新婚小夫妻,对居住要求极高,房子虽小,但生活是自己的,他们希望能通过设计改造达成个性化的居住体验。设计师打破常规...
- 家的要素
-
-
-
- [旧物改造]废弃酒桶变身大花架
- 往期内容精选老干妈瓶子居然能做成这个,好后悔扔了那么多...旧牛仔裤改造 自制收纳挂袋的做法图解牛仔裤改造成好用的靠垫教程200403破旧不穿的牛仔裤巧变家居布鞋子教程把家里的鞋架扔了吧!!一根管子就能装下...
- 旧物利用家
-
-
-
- 龙湖、万科、金茂的大平层豪宅,居然都这么创新了!
- 最近几年,大平层产品越来越火了!克而瑞数据显示,去年,大平层产品成交就有明显提升。一线城市中,160平方米以上大户型成交占比较2019年净增长0.95个百分点。而二三线城市中,180平以上的大户型,成交占比提升...
- 居住空间
-
-
-
- 180㎡四房大宅,全屋原木风太漂亮了,这是我见过最舒服的装修!
- 平面布置图入户玄关门厅处摆放了一个棕色的换鞋凳,自带纹理的大白墙设计搭配木色踢脚线和木地板,虽然简单却也有着精致的感觉。玄关门厅和客厅之间用隔断墙分开,也做了到顶鞋柜的设计。两者之间的走道吊顶处延...
- 小菜聊装修
-
-
-
- 顶级的民宿设计,才是最奢华的风景!
- 1.长沙风吟谷民宿设计:尺镀美学设计风吟谷为了呈现纯粹的山野美景,提供一个远离喧嚣、休憩心灵的平和之地,设计师把建筑立面充分释放出来,远近景致尽收眼底。2.厦门Almeta fairyland 设计师:季振宇该酒店被...
- 火车头设计
-
-
-
- 原木色+简约,自然通透的清新感
- Soba+ Studio原木色系的诗意本案来自Soba+的项目作品,位于瑞典的斯德哥尔摩市。空间温暖的浅木板铺设地板与部分墙面,质朴自然的气息浸润着每一个角落,浅色素净的色调配合简约现代主义的家具,透气干净的气息...
- 设计之旅
-
-
-
- 这届年轻人的孤独美学
- 又是一年五四青年节,曾经的90后、95后们正纷纷闯进世界舞台的中心。尽管他们充满自信,并不盲目随波逐流,也在拒绝各种社会所给他们贴上的标签。但实际上,在他们个性鲜明的身上,我们还是可以看到一些新的时代...
- 时尚家居
-
-
-
- 朱家桂:“重运营”,一个时代的红利
- 作 者:歆堃来 源:正和岛(ID:zhenghedao) 2020年,当中国城镇化率站在60%线上,向“十四五”规划和2035年远景目标纲要提出的65%,乃至70%攀爬时,家居行业的板块轮动大洗牌,正在上演。如果说,资本推动的家...
- 正和岛
-
-
-
- 125m三居室,设计简洁,现代风的装修典范!
- 面积:125平米户型:三室两厅一厨两卫风格:现代风加入优雅、精致的软装构造出一个轻奢风的居住空间平面布置图入户两侧做成到顶的储物柜,中间留空,既可以摆放装饰又方便收纳日常用品。右侧的餐边柜把冰箱也内...
- 小尼宅配
-
-
-
- 120㎡日式家居风,光影交融打造温暖的家
- APP Store 排名第一的家居杂志慢慢雕琢一份静养之心 忘却一切得失 只留一份恬淡的心境 享受生活中每一处尽可能的美好 本案屋主是一位nice的小哥哥,房子作为自住,屋主心思细腻,沟通了简单的生活需求和个人愿景...
- PChouse家居APP
-
-
-
- 装修不推荐这个,贵且不实用
- 本文也姑且算是装修日记的一部分吧,至少算居住日记吧,要介绍的主角是我家客厅茶几下面的这块羊毛地毯。先说结论:我不推荐普通人家买羊毛地毯。1、我推荐买地毯,但不推荐羊毛地毯;2、它贵,它难清洁;3、地...
- 装修33天
-
-
-
- TUESDAY/青年节
- 设计师投稿通道开启啦!无论你是自由设计师,还是设计工作室或机构,只要作品足够精彩,有看点,通通砸过来!投稿通道:Kiki_xl_(添加请注明来意)// 更多好物推荐 //全屋省力换季攻略!堪比重装修新手露营,怎...
- 时尚家居
-
-
-
- 72㎡中古风两居,仿佛把家安在1950年的北欧,虽不出挑,却耐人寻味~
- 家装室内设计 ,每日搜集分享国内外最前沿的家装设计、施工、建材等内容,成为您家装的好帮手!本案是一套面积为72平米的两居室,屋主C女士是位绘本画家,对空间的艺术有着自己独到的想法,打造一个属于空间的氛...
- 家装室内设计
-
-
-
- 奢华在于细节,优雅在于简单|932 Designs
- 简约奢华 奢华在于细节,优雅在于通过简单的方式呈现。932 Designs将设计用一种富有艺术感的形式表达出来,看起来简简单单,实则对精致复杂的工艺有着极致追求。他们相信,有简约形式的奢华。L home家,首先应该...
- 室内设计秀
-
