- 杭州89㎡“古典北欧风情”,重组破碎空间,他家开放又通透!
- 来源:家的要素
家的要素,
让城市里忙碌的年轻人住得更好。
这套89㎡的两居室位于杭州,也许是屋主职业使然,对于家的态度开放又自我,小资、古典、绅士、北欧都可见其踪影。
坐 标:浙江 杭州
户 型:两室两厅
面 积:89㎡
设 计:菲拉设计
费 用:38w
摄 影:瀚默视觉-张家宁
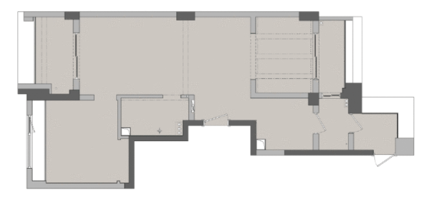
▲ 原始结构图
▲ 平面布局图
设计策略:
户型本身很有局限性,空间琐碎、狭小。设计的重点在于将破碎的空间优化整合,处理好采光问题,让89㎡的两居室呈现通透、舒适的状态。
客厅
▲ 通过地面材质划分不同功能区
考虑到起居区域只能靠餐厅旁窗户引入自然光,因此公共空间尽量不设阻隔,让采光通风通透无阻。
黑色皮质+木质扶手的沙发、胡桃色小边柜、开放展架......无一不传达着绅士、复古、浪漫又自由的调性。
▲ 落日灯+抽象画
沙发一侧营造的小景,一柜、一椅、一灯,态度十足。
花、镜、吊灯,营造多层次的诗意。
餐厅
▲ 局部镂空,兼顾开放展示的功能
餐厅利用富余的空间做了一组排柜,可做餐边柜或者其他收纳。
弧形线条 + 金属把手,不失精致浪漫。
北美黑胡桃家具,几何线条元素的融入,分子与分子之间的碰撞产生独有的化学反应。
厨房
受限于户型,以开放式厨房共享空间光线,弥补客厅采光薄弱的不足。
▲ 橱柜:步川
长虹玻璃收纳柜,陈列展示屋主收藏的酒和器具等。
卧室
卧室以舒适慵懒为基调,淡漠色系的搭配,加上藤编的自然气息,一走进来就能感受放松纾压的氛围。
▲ 复古插座,设计精于细节
百叶衣柜 + 藤编床头靠背,镂空设计更有呼吸感。
卫生间
考虑到家里只有一个卫生间,将干区洗手台外移,避免早晚高峰抢位置,提升日常居住的舒适性。
图源:菲拉设计
联系方式:13456976319
ID:houzz_design
生活
-
-
- 杭州89㎡“古典北欧风情”,重组破碎空间,他家开放又通透!
- 家的要素, 让城市里忙碌的年轻人住得更好。说在前面这套89㎡的两居室位于杭州,也许是屋主职业使然,对于家的态度开放又自我,小资、古典、绅士、北欧都可见其踪影。房屋信息坐 标:浙江 杭州户 型:...
- 家的要素
-
-
-
- 94m极简私宅,留白的艺术
- Inga Kharisova现代北欧人居本案来自Inga Kharisova的项目作品,总面积为94平方,位于俄罗斯红波利亚纳。墙上一幅Anette Hallback的杰作,雕塑和立体的视觉,极简微妙的岩石纹理独特了空间。厨房极简形式的厨具
- 设计之旅
-
-
-
- 整理师:冰箱里放了五年的冻肉,你还记得吗?
- ▲ 因为职业特殊,时尚博主“西门大嫂”有300多双鞋。木木和团队会先把它们都摆出来,然后根据款式、颜色和常用度重新码放并收纳到衣帽间图、文/本刊记者 梁辰编辑/方迎忠 郑洁 rwzkphotos@vip.163.com整理师木...
- 南方人物周刊
-
-
-
- 新手必读!夏季养花有3个误区和3个注意事项…
- 导语 众所周知,夏季气温高,烈日暴晒、闷热、过旱或过湿等等,都可能给花卉造成伤害。尤其是新手花友养花,还经常会踏进不少误区。今天,宠派养花大全小编结合媒体报道,带大家重温夏季养花的3个误区和3个注...
- 宠派养花大全
-
-
-
- [两室一厅]原木色深浅糅合,让空间与隐藏设计无缝对接!
- 全文约:1300字,阅读时长约:4分钟立夏已去,小满未满。蔷薇将尽,樱桃已红。一切都恰到好处。天时地利人和更少不了小乖的设计案例今天就来给大家推荐一个“独树一帜”的设计案例。对于活在繁忙都市中的我们而...
- 一统国际家居
-
-
-
- 2021魔都设计之旅,大咖领衔,优惠报名啦!
- 1843年上海开埠后,逐渐成为中外贸易中心。在发展的积淀中,形成了现代设计、中西合璧的独特风格。远的说20世纪初,世界经济的繁荣在外滩留下了浓重的印迹,Artdeco装饰艺术风靡一时。近的说21世纪初,作为外资...
- 烩设计
-
-
-
- 73㎡雅緻北欧风格宅,2 人温馨浪漫日常!
- 中国设计微刊,专注「家居、时尚、创意」设计分享 设计空间 | 书画艺术 | 生活美学喜欢设计点击上方 “空间设计 ” → 点击右上角“...” → 点选“设为星标 ★ ”空间设计出品┃转载请注明来源来源:空间设计...
- 空间设计
-
-
-
- 重庆7000w豪宅火了!泳池大过篮球场,128w网友惊叹:性价比真高
- 本文由最有爱的公众号 Pinterest 原创出品 (ID:pintchina)前段时间,UP主@小艾大叔一个参观重庆豪宅的视频,火上了B站热榜。小IN在留言区看到不少网友的高赞评论这样说:“这期重庆豪宅真的太有设计感了!不是...
- Pinterest优选
-
-
-
- 家庭装修,这五个地方的返工率最高,施工时业主最好到现场监工!
- 返工,是业主和装修公司都不愿意听到的词——它意味着即将被消耗大量的人力、物力和财力。可偏偏完全不需要返工的装修几乎不存在,我们在装修时,多多少少都进行了返工。总结这些返工的项目,发现多发生在以下五...
- 汇设计汇装修
-
-
-
- 132㎡浪漫美式3室2厅,造就撩人心底的优雅生活
- 福利提示:文章末尾可免费领取4套设计+报价每天仅限5个名额设计理念 Idea 这是一套美式风格的装修案例,在设计上,墙面选择淡淡的灰绿色来营造整体浪漫轻松的氛围,而在硬装比如吊顶的处理上,借鉴现代手法尽...
- 装修效果图
-
-
-
- 女明星的家被节目曝光:张柏芝上海新家清新淡雅,黄龄家摆满玩偶
- 生活观察类综艺《让生活好看》开播了,顾名思义就是观察明星生活的一档节目,主持人是沈梦辰,被观察的嘉宾有四位:张柏芝、吴宣仪、杨笠和黄龄。张柏芝的状态是真的好,并没有输给场上比她年轻的女明星。既然是...
- 八卦先生
-
-
-
- 在五缘湾畔,旭辉为城市生活重新提案!
- 今年以来,铂悦·五缘湾上的名字出现在厦门大街小巷,同行表达过它示范区的迷人、购房群里常常更新它的动态、挑剔的业内专家也透露出对它的认同,铂悦·五缘湾上可以说是岛内高品质住宅置业者的必看清单之一。厦...
- 厦门日报
-
-
-
- 180平四房大宅,全屋原木风太漂亮了,这是我见过最舒服的装修!
- 平面布置图入户玄关门厅处摆放了一个棕色的换鞋凳,自带纹理的大白墙设计搭配木色踢脚线和木地板,虽然简单却也有着精致的感觉。玄关门厅和客厅之间用隔断墙分开,也做了到顶鞋柜的设计。两者之间的走道吊顶处延...
- 小菜聊装修
-
-
-
- 农村自建房大门不要朝这些地方开,师傅看了直摇头,有钱人也住穷
- 农村自建房大门不要朝这些地方开,师傅看了直摇头,有钱人也住穷相比在城里买套几百万的房子,现在很多在城里做生意的朋友,更喜欢回农村老家盖房子,几十万就能盖个大别墅了,住着舒服,又能显得自己很有面子,...
- 装修家居风水
-
-
-
- [旧物改造]旧毛巾手工改造之--变身拼布披巾/浴巾
- 往期内容精选老干妈瓶子居然能做成这个,好后悔扔了那么多...旧牛仔裤改造 自制收纳挂袋的做法图解牛仔裤改造成好用的靠垫教程200403破旧不穿的牛仔裤巧变家居布鞋子教程把家里的鞋架扔了吧!!一根管子就能装下...
- 旧物利用家
-
