- 139㎡现代轻奢,打造华丽高级的档次空间!
- 来源:室内设计秀
在这套139平米的房子装修中,整体空间以现代风的空间基础,在角落、踢脚线、吊顶与家具细节上,加入大量的金属质感,再以艺术感满满的家具与造型设计,打造出一种华丽高级的档次空间氛围。
客厅
▲电视墙两侧木饰面+中间硬包,加入金属线条与踢脚线的收口,装上一个悬空的木色电视柜,整体简洁对称的设计,显得更加现代高级。
▲沙发墙上金属材质的立体装饰品,在硬包背景墙的基础下,烘托出一种华丽精致的高级与档次感。
▲米白色布艺沙发,布置蓝橙灰白色的抱枕装饰,也是显得更加优雅情趣。
▲客厅四周吊顶留灯槽设计,并在吊顶造型加入金属边框,中间装上一张双环形的吊灯,多材质组合的多边形茶几,布置优雅精致的小饰品与杂质,地面铺着素灰色的地毯,整个空间都充满现代端庄的高级感。
餐厅
▲餐厅与客厅连贯打通,整体空间的风格上保持一致的格调,布置一套石材台面的长餐桌,而蓝色的布艺餐椅与餐厅的抱枕相呼应,整体空间风格更加统一。
▲天花边框、门框还有踢脚线处的金属,餐桌上的花瓶装饰、餐桌上方的吊灯也是金属材质的,整体统一的金属质感,提升了空间的档次与轻奢气质。
▲细腻的金属、玻璃器皿与餐具等布置,也带来了一个现代精致的空间感,使得用餐氛围更加有仪式感。
卧室
▲卧室床头墙以浅灰色的硬包为背景,墙脚区域加入深灰色的软包,充当着床头靠背功能,布置卡其色的皮艺床,床尾位置还有一张皮质的床尾凳,地面垫上黑白配条纹的地毯,床单也是加入了棕色的组合,也提升了空间的成熟与端庄氛围。
▲床尾斗柜上,摆上花瓶、装饰画,还挂了一幅简洁的装饰画吊顶风格则是与客厅区域一致,整体空间感格外的精致高级。
▲细腻精致的小饰品与角落布置,处处都充满了华丽的气息。
衣帽间
▲衣帽间采取玻璃质感的柜门隔断,结合开放的挂衣设计,结合暗藏光源设计,也是显得更加温馨舒适而大气。
▲角落布置帽子架,结合墨镜与皮手套,也是显得更加优雅而个性。
书房
▲书房在褐色的墙面基础,布置上华丽精致的书桌椅,边上还有一张黑色休闲沙发椅,整体空间布置华丽端庄而舒适,提供了一个工作与休闲兼具的多功能区域。
▲角落的带玻璃的柜门书架,书架内部也是暗藏灯带设计,整体空间显得更加高级华丽而有趣。
▲造型独特优雅的书桌,黑色金色华丽的椅子,背景墙上的金属横幅装饰,整个书房空间都充斥着高级与华丽气息。
▲金属质感与稳重的配色,让空间充满了档次与华丽感。
次卧
▲次卧空间也是以灰色的硬包床头墙,布置卡其色的皮艺床,整体素色的软装与小饰品布置,也带来一个安静舒适的睡眠空间体验。
▲床头墙侧边挂一幅大尺寸的几何图案装饰画,另一侧挂一幅方形带圆形图案的小装饰画,大小与方圆之间,在几何图案的组合下,带来一种设计独特的美感。
▲素灰色的床单与抱枕,显得更加安静舒适而大气。
儿童房
▲儿童房在灰白配的墙面空间下,地面垫上黑白条纹的点,布置一张优雅造型的床铺,还有创意的挂画、穿透去的“baby”壁灯,结合蓝色窗帘与细节,让空间显得安静而活泼童趣。
▲床头旁边一张梳妆台,结合银色台灯,也增添了空间的档次质感。
▲床尾角落一盏长条形的落地灯,还有一张造型优雅的艺术凳,墙上简约的数字装饰画,整体空间显得简洁而华丽优雅。
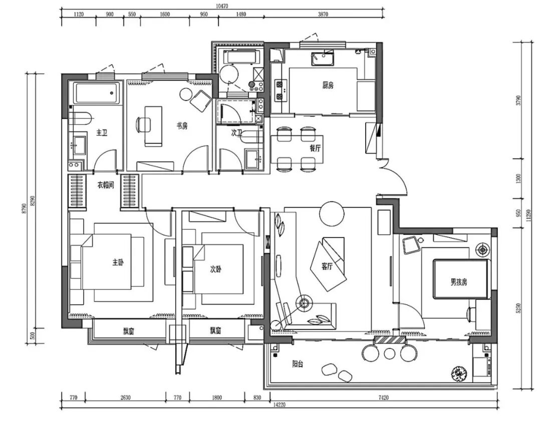
平面布置图
-END-
173㎡现代轻奢风,端庄优雅,时尚大方!
215㎡简约大平层,自然又有气质!
原木+白色,擦出不一样的小清新火花
生活
-
-
- 139㎡现代轻奢,打造华丽高级的档次空间!
- 在这套139平米的房子装修中,整体空间以现代风的空间基础,在角落、踢脚线、吊顶与家具细节上,加入大量的金属质感,再以艺术感满满的家具与造型设计,打造出一种华丽高级的档次空间氛围。客厅▲电视墙两侧木饰...
- 室内设计秀
-
-
-
- 现代设计|400㎡ 高颜值C位的轻奢别墅。
- ◆设计带来极致浪漫家,至死不渝的情怀◆项目坐标:浦开世纪珑墅项目面积:400㎡设计公司:缪斯设计设计师:马勤|陆雯婷◆01注重光与自然以留白点缀更有质感的空间本案别墅以轻奢色调构成主要氛围感多层次与线条...
- 缪斯设计
-
-
-
- 杜邦造了一本“工具书”,内藏6款硬家伙,家装维修全无忧!!
- “ 有了这本“工具书”,居家得心应手,家装维修无忧!作为一个居家好男人除了要上得厅堂下得厨房家中出现修修补补的情况也要随时“鲁班在线”。。。因此,家中常备一套工具箱是十分有必要的~今天就给大家...
- 硅谷汽车
-
-
-
- 96㎡小家+50㎡庭院,这次90后小夫妻把寻常日子过得质朴又诗意,向往~
- 家装室内设计 ,每日搜集分享国内外最前沿的家装设计、施工、建材等内容,成为您家装的好帮手!本案是一套96㎡+50㎡庭院的一层住宅,屋主一对90后夫妻,家里的常住人口就是他们两人,还有一些动物成员。他们能接...
- 家装室内设计
-
-
-
- 210平简法风格,令人羡慕的三代同堂“五口”之家
- APP Store 排名第一的家居杂志冷与暖,柔软与坚硬 在这里相互映衬和谐共存 一半理性一半感性,优雅从容的生活 本期案例这是一个幸福的四口之家。当然,加上图中名叫“当当”的小可爱,那就是令人艳羡的五口之家...
- PChouse家居APP
-
-
-
- 报名倒计时|苏州+无锡8大精品楼盘:平层+叠拼+合院+高层+洋房..
- 温馨提示:本次考察活动时间为5月29日、5月30日两日,名额有限,满员即止,感兴趣的朋友请及时联系张老师报名。精品楼盘考察活动 | 苏州+无锡本次楼盘考察活动的时间为5月29日、5月30日两天(周六、周日) 共参...
- 居住空间
-
-
-
- 海归4口之家,中性极简,强收纳,阳台吧桌,门外世界,门内生活。
- APP Store 排名第一的家居杂志本期案例屋主从事建筑类工作,对于房屋的设计有自己独特的想法,并且有着很好的规划,男主人是一位天文学教授,夫妻俩从海外归来,对房子有很多自己的想法。原户型承重墙较多,在结...
- PChouse家居APP
-
-
-
- 134㎡新中式,走进沉淀千年的东方古典之美,梦回明清!
- 全文约:1000字,阅读时长约:3分钟红日升在东方其大道满霞光我何其幸 生于你怀承一脉血流淌难同当 福共享挺立起了脊梁吾国万疆 以仁爱千年不灭的信仰……这曲《万疆》只听一遍便成为小照歌单的单曲循环,歌曲婉...
- 一统国际家居
-
-
-
- 京房字家装团购5周年啦!送礼、抽奖…感恩粉丝6月等你来!
- 各位粉丝:不知不觉,京房字家装团购已经走过了5年了。2016年5月8日,【京房字】发起了首次团购,团的是那会儿还在品牌初创的352空气净化器。而后,方太、科勒、曲美、穗宝、松下……这些大家耳熟能详的品牌也都...
- 京房字
-
-
-
- 86㎡北欧混搭中国风,清新典雅的中西碰撞!
- 中国设计微刊,专注「家居、时尚、创意」设计分享 设计空间 | 书画艺术 | 生活美学喜欢设计点击上方 “空间设计 ” → 点击右上角“...” → 点选“设为星标 ★ ”空间设计出品┃转载请注明来源来源:空间设计...
- 空间设计
-
-
-
- 卫生间切记不要出现这些情况,财神爷最讨厌的,有钱人一看就明白
- 卫生间切记不要出现这些情况,财神爷最讨厌的,有钱人一看就明白生活中,都是要用到卫生间的,不管是早上醒来的刷牙洗脸,还是平时的如厕,或者是晚上的淋浴,都会用到卫生间,卫生间在装修的时候除了要看重美观...
- 装修家居风水
-
-
-
- 侘寂艺术,高级感翻倍!
- 艺术美感 一种充满岁月感的美Protopopov Roman设计师独特的审美,秒杀所有奢华风格,巧妙地使用了软装搭配,营造出温暖自然的空间氛围,在精致与粗糙的搭配间,展现一种充满岁月感和现代的美,带来质感宁静...
- 米兰设计之旅
-
-
-
- 85㎡小宅设计,融合中西方美学,自带静谧禅意!
- 家的要素, 让城市里忙碌的年轻人住得更好。说在前面这套85㎡的小宅位于基辅,由设计工作室Yevheniia Dubrovska接手改造。全屋以温润莫兰迪色为主轴,搭配自然材质并融合中西方古典元素,演绎优雅复古的家居美学...
- 家的要素
-
-
-
- 世界上超小的庭院!超美超意境!
- ☞关注后回复:“卧室、餐厅、客厅、卫生间、厨房、衣柜、阳台、玄关、背景墙、儿童房、装修风格...”等都会收到相关内容,已覆盖99%家居装修的内容。 在日本京都,
- 创意家居生活通
-
-
-
- 为了33平米露台,她买下200平米老房子,2年时间,花园、阳光房,全都有了。
- 面积:总共33平方,13平阳光房,20平露台园岭:2年作者:大姚·籽彣“人们在花园里看见的,不应该只有花开,而是藏在草木四季枯荣之间,生命的力量和巨大的感动。——Piet Oudolf现在住的房子是一个顶层复式,一...
- 环球花艺报
-
