- 坚持简约生活不乱买,他家126㎡,全屋空旷让人极度舒适
- 来源:潮流室内装修设计
不同的生活方式,决定着家的装修方向,所有的装修案例只能是参考,不代表可以照搬。在新房装修时,要围绕自己的生活方式展开,明确需求才能装出满意的效果。比如这期分享的案例,屋主坚持简约生活不乱买,126㎡的新房以简约开阔空间,让无拘漫谈环绕木质元素,带出家的温馨。简洁均匀线条和质朴色彩,全屋空旷让人极度舒适!
▼房屋基础信息
项目面积:套内126㎡
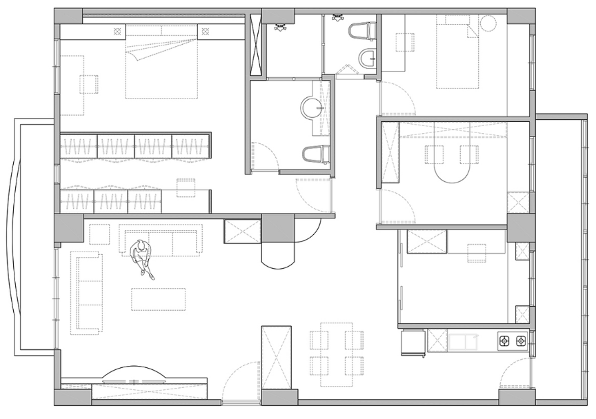
▼原始平面图
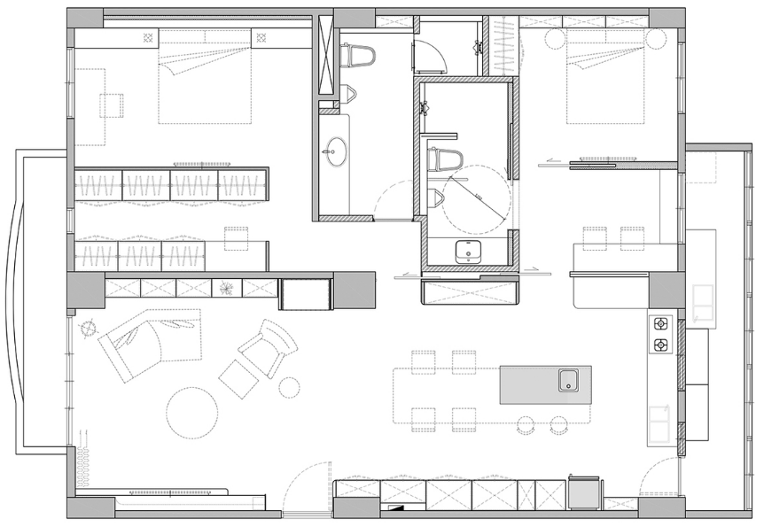
▼装修平面图
▼客厅设计
从玄关转身而入,简洁线条和质朴色彩敞开空间,伴随着澄澈日光,空间干净明亮、轻盈舒适。沙发墙设计内凹白色吊柜,搭配莱姆石特殊墙面漆及石材置物平台,带出空间层次感。同时预留一隅空白的角落,布置装饰绿植,赋予进门简约端景。
电视墙以奶茶色烤漆格栅铺叙,细腻的线条感,温润的色泽占据心头。巧妙地建立收纳空间,透过格栅线条缝隙,将开口完美隐藏,保持平面的整洁统一。
电视墙不完整包覆墙面,争取了朗净的空间感。靠近立柱结构导入圆弧设计,优雅地消弭不和谐结构体。同步向外推出齐长基准线,设计圆角收边木质电视柜,强化客厅收纳。
▼餐厨设计
改造后实现开阔餐厨空间,让无拘漫谈环绕着宽敞原木餐桌发散。与电视墙同侧,定制大面积储物柜,舍弃明装门把手设计,整体立面简洁干净,没有丝毫的拖沓和赘余,无形中提升了柜子的颜值与品格。
全长2米的香杉实木餐桌,与中岛台完美衔接,宽敞无阻视野,流露大气质感。储物柜对立面,以置顶落地柜收拢生态缸,垂直面自然造景,成为餐厅视觉焦点。
厨房看向客厅,简洁宽敞无阻的视觉感受,既方便了居家互动,又提高了空间采光与通透。
▼书房设计
书房开放式设计,与厨房以一面半腰清玻璃,搭配细纹铝百叶将视觉空间衔接在一起。深色橡木定制一体成型家具,L型书桌与收纳柜,满足日常在家办公需求。
书房与卧室之间,以一道隐藏滑门弹性阻隔空间,使用灵活也让空间变得更加整洁与美观。
▼次卧设计
利用储物柜和衣柜推平畸零空间,并局部铺陈深橡木色,简约定调床头背墙,再搭配两盏黑色床头灯,简约沉稳又不单调。
▼主卫浴设计
轻柔暖色调,搭配石纹与木纹,让自然元素贯穿整体装修。考虑到没有对外窗配置,因此架设电热毛巾杆,促进排湿效能。
以上就是这套使用面积126㎡新房装修了,简洁的设计充足的收纳维持空间整洁。带灰阶色彩的白橡木与银河灰大理石更是重点元素,以柔和自然线条的白墙为配比贯穿其中,局部添佐温煦木质软件,渲染温馨生活风貌。
今天的分享就先到这里啦,喜欢别忘了关注我呀~有想看的风格或者更多想要了解的可以多多在评论区留言哦!
(来源网络,如涉及版权,请联系我删除)
生活
-
-
- 三口之家的空中花园,把自然引进室内每天都是生机盎然
- APP Store 排名第一的家居杂志窗外花草丛生 室内绿意流淌 处处生机 对家的憧憬和美好生活的向往 本期案例是套带有空中花园的住宅,是一家三口新的旅程开始的地方,窗外花草丛生,室内绿意流淌,处处生机都带着屋...
- PChouse家居APP
-
-
-
- “跟随这些设计大师”——读懂北欧设计史
- 文章来源:艺术与设计ID:artdesign_org_cn“北欧在地域上包括欧洲北部的挪威、瑞典、芬兰、丹麦和冰岛5个国家北欧设计师们将传统手工艺理念与现代设计实践结合强调以自然形态为模本重视自然环境的传承此外,他...
- 工业设计俱乐部
-
-
-
- 太羡慕闺蜜家了!房子装修这漂亮,半包才花了18万!
- 做成的半高隔墙与原承重梁用木饰面包裹起来,在空间上得到了视觉上的延伸,两个空间的光源相互通融交汇。半高的隔墙并不是很生硬的将每个空间划分开来,而是隔中有连接,断中有连续,形成了清爽简洁干净的居住空...
- 齐家一站式装修
-
-
-
- 94㎡北欧风格,三代同堂人口众多,看紧凑型家居如何改出宽敞空间
- APP Store 排名第一的家居杂志这是一套建面94㎡的紧凑型三室,即将入住的是一家四口三代人。男女业主都是90后,同在IT行业,工作忙碌;小儿子还在幼龄时期,正是活泼好动的年纪;父母不在家时候都由奶奶看管照顾...
- PChouse家居APP
-
-
-
- 充满线条感的木饰面墙,耐看率 100%!
- 我发现室内设计是一个真正具有创造性的环境。通过室内设计,我提供的就是我的创造力。这是一个更加开放的创作过程。——Tim Godbold△蒂姆·戈德博尔德(Tim Godbold)蒂姆·戈德博尔德(Tim Godbold)是从时装...
- 内小宅
-
-
-
- 坚持简约生活不乱买,他家126㎡,全屋空旷让人极度舒适
- 不同的生活方式,决定着家的装修方向,所有的装修案例只能是参考,不代表可以照搬。在新房装修时,要围绕自己的生活方式展开,明确需求才能装出满意的效果。比如这期分享的案例,屋主坚持简约生活不乱买,126㎡...
- 潮流室内装修设计
-
-
-
- 90后婚房新选择:115㎡打造多彩缤纷的潮酷玩家
- 中国设计微刊,专注「家居、时尚、创意」设计分享 设计空间 | 书画艺术 | 生活美学喜欢设计点击上方 “空间设计 ” → 点击右上角“...” → 点选“设为星标 ★ ”空间设计出品┃转载请注明来源来源:空间设计...
- 空间设计
-
-
-
- 107m北欧风三居室,粉色的卧室,被宠成了小公主
- 面积:107平米户型:三室两厅一厨一卫风格:北欧风小清新的软装点缀在简洁大方的空间当中让人感觉舒适而又自然平面布置图入户玄关通铺文艺六边砖 ,一侧设计嵌入式鞋柜,搭配简约换鞋凳、穿衣镜,视觉上更为简洁...
- 小尼宅配
-
-
-
- 现代轻奢|城市也能享受花园别墅的浪漫!
- ◆设计享受生活轻奢缔造内涵◆项目坐标:尚海格调项目面积:400㎡设计公司:缪斯设计设计师:胡露◆01平衡空间以装饰空间打造全新舒适区现代轻奢注重居室空间的布局相对平衡的空间打造舒缓的气氛线条感打造居室...
- 缪斯设计
-
-
-
- 前两年花上万买的人估计要后悔了
- 图片来自:深白设计热水器可以说是大家装修的必需品。市面上,它的种类非常多,对于大部分普通商品房,有条件安装的,我们都是优先推荐燃气热水器。因为不论从安装空间、使用体验,还是综合使用成本来看,它都是...
- 装修33天
-
-
-
- 手残党也能拥有室内小森林!高颜值、超简单,看一眼就会!
- 连续的阴雨之后,杭州正式进入夏天了~ 芍药家里养的花花们,也开启了夏日模式,喝水量巨大。每天早晚浇水、打扫,都要忙碌很久,出一身汗~ 拥有花草的生活,快乐和忙碌是相当的,但专注于眼前的植物时,烦恼都可...
- 芍药美学笔记
-
-
-
- 颜值在线、服务一流,来看这些最美公厕→
- 近日,临港新片区的宜浩佳园小区北侧,悄然出现了一幢崭新的建筑。“要不是看上面写着公共卫生间,当真还不敢进去,太漂亮了。”路过的市民忍不住赞叹。这个移动公厕以彩钢板和钢材为原材料,外型结构轻巧,颜色...
- 浦东发布
-
-
-
- 房子到手别瞎装!这6个问题不弄明白,入住后有你后悔的!
- ☞关注后回复:“卧室、餐厅、客厅、卫生间、厨房、衣柜、阳台、玄关、背景墙、儿童房、装修风格...”等都会收到相关内容,已覆盖99%家居装修的内容。装修是一个不断选择的过程,每个人都会碰上几个难以抉择的问...
- 创意家居生活通
-
-
-
- 西雅图元素融合,超然诗意生活/Susan Marinello
- 元素融合超然诗意生活ELEMENT FUSION GREATING POETIC LIFE&阳光谷 × 印第安维尔斯 × 惠德贝岛×西雅图小筑×琪拉雅居×麦肯锡小筑SUN VALLEY ×INDIAN WELLS × WHIDBEY ISL
- 设计之旅
-
-
-
- [旧物改造]巧手改造旧百叶窗 40个妙招快快收藏起来
- 巧手改造旧百叶窗 40个妙招快快收藏起来!推荐阅读:【神技能】用纸盒报纸创造出自家的阳台的一片菜地75个生活小妙招,不收藏亏大了!家里的旧家具怎么处理 旧家具改造花盆花架看看人家的卫生间 全是用旧物改造...
- 旧物利用家
-
