- 三口之家的空中花园,把自然引进室内每天都是生机盎然
- 来源:PChouse家居APP
APP Store 排名第一的家居杂志
窗外花草丛生
室内绿意流淌
处处生机
对家的憧憬和美好生活的向往
本期案例是套带有空中花园的住宅,是一家三口新的旅程开始的地方,窗外花草丛生,室内绿意流淌,处处生机都带着屋主对家的憧憬和对美好生活的向往。
屋主需求:
1.相比层次多、功能分布独立分明的空间相比,屋主更希望得到一个视野开阔、功能融合的客餐厅。
2.屋主家和父母家相距不远,通常一家三口晚餐都在老人家里解决,所以家里只需要一个干净开放的西厨即可。
3.除公共区域外的三个房间分别用作主卧、儿童房和书房;
4.女屋主喜欢清新明朗的海藻绿,希望在不失简约大气的前提下融入一些绿色元素。
5.希望能够融合简约和美式两种氛围,让两种喜好融合共生。
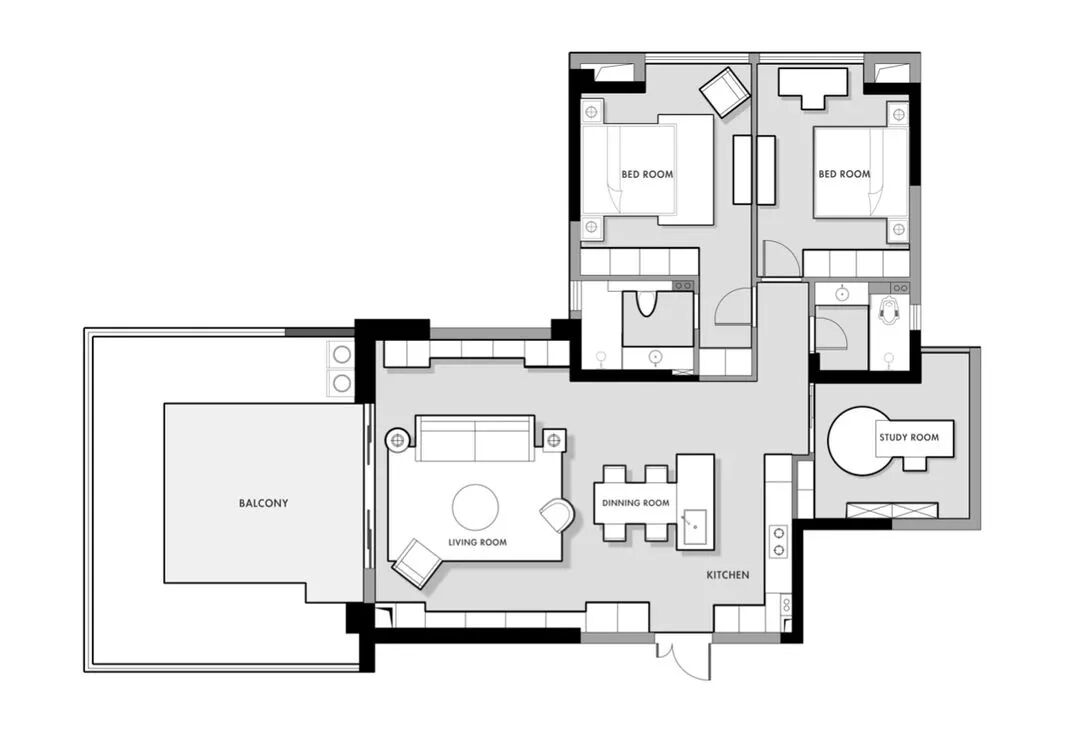
■原始户型解析:
1.此案例是一套三室两厅三卫一厨,并带一个空中花园的高层住宅;
2.原户型进门右侧便是一个卫生间,位置尴尬,且没有窗户采光极差;
3.玄关与客餐厅连为一体,没有独立的换鞋区域;
4.厨房门很小,在厨房忙碌的人几乎与公区活动的人隔绝开来,很难形成互动。
■改造要点:
1.拆除入户门两侧厨房和卫生间的隔墙,把厨房往右移动,打造开放式厨房,扩大客厅区域,形成一个开阔的LDK格局;
2.让次卧房间门内退,把次卧里的卫生间改到室外,作为公卫使用。
3.敲掉主卧和次卧的“假”飘窗,在原来的飘窗位置分别设置了休闲区和书桌椅,增大了空间的有效面积。
拆掉了公共区域的所有隔墙,打造LDK一体化格局,视野开阔,动线流畅。公共空间以深灰和白为主色调,奠定了空间简约大气的氛围。
在沙发、挂画和窗帘上融入了屋主喜欢的海藻绿,目之所及皆是一派清新,与窗外露台上的植物遥相呼应。
在客厅中融入了石材、黄铜、丝绒等多种材质,不同质感之间相互碰撞,相映成趣。
沙发背后的储物柜有开有合,兼并收纳与展示功能,石材茶几为空间融入了更多的自然纹理。
客厅外的露台上放置了餐桌椅,被一圈花池围绕,被四季变化的风景簇拥。
厨房、餐厅、客厅呈一字型分布,视线开阔。餐厨区域以岛台为中心,形成洄游动线。
餐桌上、灶台上的盛器,把层次丰富的绿色一路从露台延续到了厨房,与木色餐桌椅交织,更增添了几分自然的意味。
书房用木饰面装饰,打造一个温润安静的办公空间,木饰面板高低错落,增添了层次感。
圆形地毯搭配丝绒质感的休闲椅,打造出一个温馨休闲的读书角。
主卧以灰和白为主色调,融入温暖的金棕色,整体空间散发出稳重、内敛、安静的氛围。
床头背景墙用PU线条装饰,采用乳胶漆上下分色处理。床头两侧的黄铜壁灯与床头色彩呼应,在冷静的空间中融入了一抹热情。
窗帘同样做了拼色处理,与床、墙面色彩呼应,整体空间用色统一。
床尾处放置了斗柜,增加收纳空间的同时,同时丰富了空间元素。地板采用鱼骨拼,增加了复古的质感。
儿童房以粉色为主色调,营造温暖甜美的氛围。敲掉了“假”飘窗,在原来飘窗的位置放置了书桌椅,有限的空间得到了极致的利用。
床头背景墙用PU线条装饰,用粉色和白色乳胶漆饰面,右侧衣柜定制了与墙面颜色一致的门板,加以线条作为装饰。
与公共区域冷调的地砖不同,卧室采用温暖的胡桃木鱼骨拼色花纹地板,奠定了卧室温馨舒适自然的氛围。
床头背景采用了灰色云朵墙纸饰面,搭配马赛克斗柜,为儿童房融入了更多丰富有趣的纹理。窗帘顺应房间主色调做了灰粉拼色处理。
卫生间以鱼肚白瓷砖和深灰色浴室柜打造一个干净简练方便的卫浴空间。
生活
-
-
- 三口之家的空中花园,把自然引进室内每天都是生机盎然
- APP Store 排名第一的家居杂志窗外花草丛生 室内绿意流淌 处处生机 对家的憧憬和美好生活的向往 本期案例是套带有空中花园的住宅,是一家三口新的旅程开始的地方,窗外花草丛生,室内绿意流淌,处处生机都带着屋...
- PChouse家居APP
-
-
-
- “跟随这些设计大师”——读懂北欧设计史
- 文章来源:艺术与设计ID:artdesign_org_cn“北欧在地域上包括欧洲北部的挪威、瑞典、芬兰、丹麦和冰岛5个国家北欧设计师们将传统手工艺理念与现代设计实践结合强调以自然形态为模本重视自然环境的传承此外,他...
- 工业设计俱乐部
-
-
-
- 太羡慕闺蜜家了!房子装修这漂亮,半包才花了18万!
- 做成的半高隔墙与原承重梁用木饰面包裹起来,在空间上得到了视觉上的延伸,两个空间的光源相互通融交汇。半高的隔墙并不是很生硬的将每个空间划分开来,而是隔中有连接,断中有连续,形成了清爽简洁干净的居住空...
- 齐家一站式装修
-
-
-
- 94㎡北欧风格,三代同堂人口众多,看紧凑型家居如何改出宽敞空间
- APP Store 排名第一的家居杂志这是一套建面94㎡的紧凑型三室,即将入住的是一家四口三代人。男女业主都是90后,同在IT行业,工作忙碌;小儿子还在幼龄时期,正是活泼好动的年纪;父母不在家时候都由奶奶看管照顾...
- PChouse家居APP
-
-
-
- 充满线条感的木饰面墙,耐看率 100%!
- 我发现室内设计是一个真正具有创造性的环境。通过室内设计,我提供的就是我的创造力。这是一个更加开放的创作过程。——Tim Godbold△蒂姆·戈德博尔德(Tim Godbold)蒂姆·戈德博尔德(Tim Godbold)是从时装...
- 内小宅
-
-
-
- 坚持简约生活不乱买,他家126㎡,全屋空旷让人极度舒适
- 不同的生活方式,决定着家的装修方向,所有的装修案例只能是参考,不代表可以照搬。在新房装修时,要围绕自己的生活方式展开,明确需求才能装出满意的效果。比如这期分享的案例,屋主坚持简约生活不乱买,126㎡...
- 潮流室内装修设计
-
-
-
- 90后婚房新选择:115㎡打造多彩缤纷的潮酷玩家
- 中国设计微刊,专注「家居、时尚、创意」设计分享 设计空间 | 书画艺术 | 生活美学喜欢设计点击上方 “空间设计 ” → 点击右上角“...” → 点选“设为星标 ★ ”空间设计出品┃转载请注明来源来源:空间设计...
- 空间设计
-
-
-
- 107m北欧风三居室,粉色的卧室,被宠成了小公主
- 面积:107平米户型:三室两厅一厨一卫风格:北欧风小清新的软装点缀在简洁大方的空间当中让人感觉舒适而又自然平面布置图入户玄关通铺文艺六边砖 ,一侧设计嵌入式鞋柜,搭配简约换鞋凳、穿衣镜,视觉上更为简洁...
- 小尼宅配
-
-
-
- 现代轻奢|城市也能享受花园别墅的浪漫!
- ◆设计享受生活轻奢缔造内涵◆项目坐标:尚海格调项目面积:400㎡设计公司:缪斯设计设计师:胡露◆01平衡空间以装饰空间打造全新舒适区现代轻奢注重居室空间的布局相对平衡的空间打造舒缓的气氛线条感打造居室...
- 缪斯设计
-
-
-
- 前两年花上万买的人估计要后悔了
- 图片来自:深白设计热水器可以说是大家装修的必需品。市面上,它的种类非常多,对于大部分普通商品房,有条件安装的,我们都是优先推荐燃气热水器。因为不论从安装空间、使用体验,还是综合使用成本来看,它都是...
- 装修33天
-
-
-
- 手残党也能拥有室内小森林!高颜值、超简单,看一眼就会!
- 连续的阴雨之后,杭州正式进入夏天了~ 芍药家里养的花花们,也开启了夏日模式,喝水量巨大。每天早晚浇水、打扫,都要忙碌很久,出一身汗~ 拥有花草的生活,快乐和忙碌是相当的,但专注于眼前的植物时,烦恼都可...
- 芍药美学笔记
-
-
-
- 颜值在线、服务一流,来看这些最美公厕→
- 近日,临港新片区的宜浩佳园小区北侧,悄然出现了一幢崭新的建筑。“要不是看上面写着公共卫生间,当真还不敢进去,太漂亮了。”路过的市民忍不住赞叹。这个移动公厕以彩钢板和钢材为原材料,外型结构轻巧,颜色...
- 浦东发布
-
-
-
- 房子到手别瞎装!这6个问题不弄明白,入住后有你后悔的!
- ☞关注后回复:“卧室、餐厅、客厅、卫生间、厨房、衣柜、阳台、玄关、背景墙、儿童房、装修风格...”等都会收到相关内容,已覆盖99%家居装修的内容。装修是一个不断选择的过程,每个人都会碰上几个难以抉择的问...
- 创意家居生活通
-
-
-
- 西雅图元素融合,超然诗意生活/Susan Marinello
- 元素融合超然诗意生活ELEMENT FUSION GREATING POETIC LIFE&阳光谷 × 印第安维尔斯 × 惠德贝岛×西雅图小筑×琪拉雅居×麦肯锡小筑SUN VALLEY ×INDIAN WELLS × WHIDBEY ISL
- 设计之旅
-
-
-
- [旧物改造]巧手改造旧百叶窗 40个妙招快快收藏起来
- 巧手改造旧百叶窗 40个妙招快快收藏起来!推荐阅读:【神技能】用纸盒报纸创造出自家的阳台的一片菜地75个生活小妙招,不收藏亏大了!家里的旧家具怎么处理 旧家具改造花盆花架看看人家的卫生间 全是用旧物改造...
- 旧物利用家
-
