- 首发|185㎡ 极简私宅,诧寂风·寻味生活本真!
- 来源:拓者设计吧
客厅
家对于本案居住者来说,非单薄的百十来方的居所而已,它是有灵魂的,不是片面为舒适、为美学,更偏向于一个灵魂辩证的表达,不受限,是包容的,开放的,又是极其自我的,带有极强的居住者属性。
在房顶做梁,楼梯做柱,建筑艺术穿插结构的形式将老木头放置其间,满足居住者家居空间里要有老木头运用的要求。
因为是雕塑系老师,做手工是常态且会在家办公,在空间富足的客厅放置超长手工桌,身后做墙体为置物架作为展览区。
餐厨区
由线呈面,结构交错优化空间层次。
木质的天然质感,本身便带有人文属性。呈现的家居氛围——安静、古朴。
走廊楼梯
楼梯是贯穿整个居室、层间的必然要素,破仅仅是垂直交通构件的传统印象,不拘泥于楼梯本身的通道价值,或者可以说是一个艺术走廊的概念形式,我们希望漫步者不是匆匆往返,而是在家的每一处都可以是停下、静默欣赏的地方。
主卧
次卧
卫生间
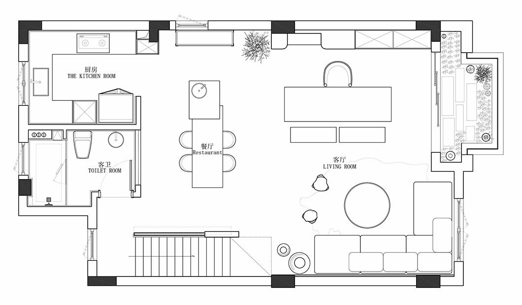
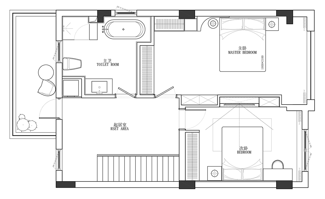
平面图
△一层平面图
△二层平面图
△阁楼平面图
设计机构:菲拉设计
项目地址:九龙仓雍景山
项目类型:硬装设计,软装宅配
项目面积:185㎡
项目户型:三室两厅两卫
空间摄影:瀚默视觉-张家宁
关于设计团队
近期作品
△和光同尘
拓者设计吧
▽
生活
-
-
- 首发|185㎡ 极简私宅,诧寂风·寻味生活本真!
- 本案居住者是美学造诣颇深的中国美院雕塑系教授;希望家呈现的是古朴调性的诧寂风,事物与时间的关系在这个空间里与居住者对话;灵魂自由,不受拘束,打造一个更趋于民宿式的美学空间。 客厅 家对于本案居住者来...
- 拓者设计吧
-
-
-
- 温暖自然的平安果之家-210㎡叠拼别墅+超大庭院
- APP Store 排名第一的家居杂志Ⅰ. 屋主对家的需求和期待有哪些呢?① 平时工作加班较多,希望回到家能感到放松、温馨② 喜欢一个干干净净的家,储物空间充足③ 所有材质安全环保④ 需要考虑未来小孩的生长过程变...
- PChouse家居APP
-
-
-
- 220平一家四口的治愈系复式宅
- APP Store 排名第一的家居杂志家,是零次和无数次的回望 从第一次憧憬 到家人长久定居于此 对家的概念 越来越清晰 家,是零次和无数次的回望。从第一次憧憬,到家人长久定居于此,对家的概念,越来越清晰。本期...
- PChouse家居APP
-
-
-
- 入户第一眼>>“千姿百态”的玄关柜,给你回家的仪式感~
- 全文约:1600字,阅读时长约:5分钟身为剁手党的小乖签收包裹已成为日常活动之一看着在玄关处堆成山的包裹小乖陷入了沉思:到底是剁手的放肆,还是玄关柜的不给劲,为什么才几个包裹就让玄关变成了杂乱的过道?...
- 一统国际家居
-
-
-
- 好养又耐阴的7种盆栽绿植,适合养室内,没太多阳光仍旧生长健壮
- 耐阴又耐养的室内植物有很多,下面这些观赏绿植都很常见,很适合摆放在桌面上养,甚至只需要保持有明亮的灯光,它们就能保持良好的生长状态,并不用每天都要有较多的阳光才能长好。 一起来欣赏7种好养又耐阴的...
- 养花交流
-
-
-
- 扔掉你家老土的大衣柜,都2021年了,这才是卧室的绝配!
- ▲ 点击蓝字“装修百宝书”,你想知道的装修问题,答案全在这里啦!查看半包装修要花多少钱?查看全包装修要花多少钱?查看10万以下的装修方案说到卧室布置,很多人的第一反应就是床+衣柜+床头柜的选搭,好像这...
- 装修百宝书
-
-
-
- 现代设计|设计与实用并存。
- ◆【客厅】◆现代居家,给予广阔自由的想象空间,不被材料局限。充满时尚设计感的斑马色地砖与简约大气的配色,打造一个现代感极强的通透客厅。【餐厅】◆空间感与层次感在家居造型上通过组合变化,来进行实现。...
- 缪斯设计
-
-
-
- 30㎡的房子住出60㎡的感觉,都使了什么招数?
- 现如今,高密度的城市,小空间的住宅。在大部分情况下,我们被迫要去适应这些并不舒适的小空间环境。作为建筑师,这样的现实为我们的创意设计提供了机会,提醒着我们要为客户设计更精致的方案,让小住宅变身成大...
- 房子装修
-
-
-
- 虽只有75平米,我看出了豪宅的样子
- ▲ 建筑面积75平,使用面积64平,项目地址:杭州,完工时间:2021年4月,本案是三口之家,旧房改造的项目满足两个卧室外希望增加一个书房区,整体的风格喜欢简洁中保留一些活泼的元素▲ 原始结构图▲ 平面布置图...
- 装修33天
-
-
-
- 被子、枕头用久了容易发黄,一招搞定!
- 床品用久了,不管是枕套还是被芯,上面吸收的汗渍特别多。准备洗时发现一个问题:被子、枕头上面一块块黄印,根本无法用常规方法清洗干净,怎么办?这几个方面有用! 被子、枕头上的黄印其原因就是我们每晚睡觉...
- 床品研究院
-
-
-
- 旧物改造让你分分钟变设计师!独一无二的文艺范儿!
- 旧物改造系列,文艺范儿十足的创意家居,都是用旧物创造出的新物品。一个旧的钢琴被变成书架旧梯子变成书架拐杖变成书架叠起来的桌子变成书架旧书变成咖啡桌红酒木塞安装磁铁,变成冰箱上可爱的装饰盆栽把旧的地...
- 旧物利用家
-
-
-
- 70㎡一居室,书房衣帽间兼备,空间的极致应用!
- 一室一厅一厨一卫面积:70m²风格:现代简约高级有格调客厅采用原木色木地板橘色调双人沙发搭配黑色原木立柜空间整体呈现自然高级的视觉效果电视墙的白色格栅与木饰面板拼接大理石色的电视柜错落悬挂的三把贝斯...
- 小尼宅配
-
-
-
- 专题丨在家也能感受影院震撼的魅力 客厅影院扬声器导购推荐(上)
- 在自己的家里打造一个影院,可以在闲暇的时候,随意地观赏自己喜欢的节目、电影、歌剧等等,在家也能够感受到影院播放的魅力,这种做法对于年轻人来说,想必是一个很不错的想法。影院首选当然是独立的房间组建专...
- FiPlay影音平台
-
-
-
- 一家三口85㎡幸福蓝:女主人的2卧设计,每一平米看起来都很美!
- 作家刘亮程说:“一个人心中的家,并不仅仅是一间属于自己的房子,而是长年累月在这间房子里度过的生活。”的确,家不但是容身之所,其实也是生活层次的折射。我们今天要分享的三口之家,是由女主人精心打造的。...
- 软装学堂
-
-
-
- 我家卫生间,小到做不了干湿分离怎么办?
- 生间地面找坡度没有干湿分离的卫生间,如果因为地面坡度不够再出现积水情况,那真是非常难过的一件事了。♔为什么要找坡度:地漏(或蹲坑)是卫生间的最低点,无论在卫生间里哪个地方倒水,水都要能没有障碍地流...
- 汇设计汇装修
-
