- 首发|210㎡简洁高级灰,设计适度·生活有度!
- 来源:拓者设计吧
适度,
是世界万物的艺术,
也是幸福生活的哲学。
树木有其形态,阳光有其轨迹,就连风,也有它的音色...世界上的一切,都有意无意地遵循着适度原则,酝酿成自身最美好的模样。
——太谷形上
适度的美好
本就是心之所向
适度,是指事物保持其质和量的限度,是质和量的统一。幸福也应如是,适度地思考,适度地行动,适度地平衡,当我们不再执着地想拥有一切,当我们试着摒弃过多的物化堆砌,空间和想象就来了:光会照耀进来,气氛不受阻碍,美好也有处可依,我们称之为“适度的幸福观”。
所有的繁简
都将归于适度
设计从适度的幸福观出发,探寻如何安排我们的生活。既不一味地铺满,也不强调刻意的留白,而是在线条与色彩之中,寻觅到和谐适度的美感,在慵懒与华丽之中,找寻完美的平衡点。
室内以适当悬空的结构设计和不设重限的空间规划,重新定义对家的理解。潘多拉星云岩板、金属及布艺等元素和色彩碰撞,形成不同而合的视触觉体验,种种尺度考量,整个空间呈现一种适度的舒适感。
这里没有多余的装饰,没有多余的功能,也没有多余形式,一切都刚刚好,也赋予了家更多的故事氛围。
在开阔的叙事空间里,物品也有着自己的适度表达。灰白主色调与蓝、橙色块相应点缀,为淡雅的空间加入几抹跳色;电视柜采用潘多拉星云岩板,由上至下大气铺开而不落地,茶几、沙发和天花墙的悬空与留白也在传递着适度的考量,每一帧都如艺术画般精心着笔。
除了还生活以故事空间外,设计以“减法”为结构释负,并在兼具功能性的基础上,尝试更为创新的设定。梯台处以方块层层堆积扭转的形式向二层延伸,镂空金属屏风悬空设置,自然与客餐厅稍作区隔。
天然的岩板,简洁的体块,清晰的几何轮廓,既有积木式的游戏乐趣蕴含其中,又比寻常楼梯多了雕塑艺术的美感,远望见美,俯首拾欢。
我们理解的适度的幸福,在于能够及时调整自己的心态——一人独处时欣喜,一家团圆欢聚时热烈。
而比起客厅的温和淡雅,餐厅区的色彩与材质运用则更加清新活力。顶部的大面积镜面设计又延续出第三空间视角,更将幸福的时刻一一记录,美食、快乐都是双倍的了!所谓生活,就是生动地活着。
你会看到,在这里,适度的色彩、比例或形状搭配组合,金属、皮革与橙色随光影变换展现着自身微妙的转化,正如美食的异彩纷呈,在不同的时刻,不同的地方,都能散发出不一样的魅力。
幸福的生活
在于有度的坦然
世界万物自有分寸,人生有度才能坦然。凡事有度才有衡量和制约的标准,我们常常需要面对生活的许多面,家人、朋友、工作、孩子,只有知进退、懂分寸,才不至于让自己陷入两难的境地,才能收获幸福的人生。
适度的幸福观也在告诉我们:人生是由生活的每个刹那组成,只有将聚光灯对准此时此刻,专注过好当下,才不会过分纠结于过往或焦虑于未来。
面对世界的混乱和无序,孩童也擅长创造自己的适度法则。
怪诞迷奇,又可可爱爱,他们在现实与想象的天平上自如切换,找到自己的适度表达。
看似不讲章法,却总能以天真无畏、积极探索的精神惊艳于世界。
适度设计,有度生活。当我们拥有了一个家,我们不是要以拥有多少来衡量幸福,而是要在物化的世界里,给自己一点适度的把控,凡事讲分寸,生活才能有度有序,从容不迫。这是设计的任务,也是幸福的哲学。
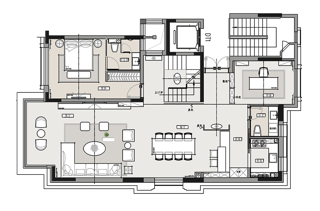
一层平面图
二层平面图
关于太谷形上
△郑州荥阳永丰乐境会所
△正商智慧城临时接待中心
△郑州永威南樾售楼处
△郑州豫发白鹭源春晓售楼处
△中粮天悦壹号办公展示空间
拓者设计吧
▽
生活
-
-
- 大面积浓郁红装进110m的家,居然能清新
- 复古?摩登?清新?再带一点孩子气?你无法用精准的词汇去定义这个家,但这就是最独一无二的居所。身为时尚造型师的Evan平时一个人居住,房子除了是他的家,也更像是他的私人博物馆,摆放着他喜欢的一切。在他看...
- 时尚家居
-
-
-
- 2021新式厨房设计,你要的都在这..
- ☞关注后回复:“卧室、餐厅、客厅、卫生间、厨房、衣柜、阳台、玄关、背景墙、儿童房、装修风格...”等都会收到相关内容,已覆盖99%家居装修的内容。随着生活方式的变化,厨房早已摆脱了“只做饭”的身份限制,...
- 创意家居生活通
-
-
-
- 78m的现代风二居室,新婚夫妻首选的温馨小家!
- 面积:78平米户型:两室两厅一厨一卫风格:现代风用清新、活力的颜色搭配素雅、舒适的软装营造一种格调满满的氛围平面布置图入户既开放式餐厅,在厨房的一侧做了内嵌的鞋柜,磨砂黑的简易餐桌椅,结合顶部线条感...
- 小尼宅配
-
-
-
- 法国的凡尔赛宫里,开了全球唯一的宫殿酒店
- 尊贵热线:400-639-9973最好的生活,只为遇到最懂的你!Le Grand Contrôle酒店宫廷风格,繁而不乱。尊贵典雅,视觉震撼!巴黎凡尔赛宫内唯一酒店Le Grand Contrôle将在6月开业,成为全球唯一的宫殿酒店。今天
- 得心设计
-
-
-
- 首发|210㎡简洁高级灰,设计适度·生活有度!
- 适度, 是世界万物的艺术, 也是幸福生活的哲学。树木有其形态,阳光有其轨迹,就连风,也有它的音色...世界上的一切,都有意无意地遵循着适度原则,酝酿成自身最美好的模样。——太谷形上适度的美好本就是心之...
- 拓者设计吧
-
-
-
- 封面人物|赵益平:解构东方美学,雕琢当代品质生活
- APP Store 排名第一的家居杂志阿兰·德·波顿在《幸福的建筑》中说:“我们感觉到的居住之美,也即意味着我们邂逅了一种对美好生活所持观念的物化和体现。”随着时代的变化、经济的发展,如今大部分人从狭小拥挤...
- PChouse家居APP
-
-
-
- 119㎡简约木质亲子宅,老房改造四口之家,这样设计恰到好处
- 中国设计微刊,专注「家居、时尚、创意」设计分享 设计空间 | 书画艺术 | 生活美学喜欢设计点击上方 “空间设计 ” → 点击右上角“...” → 点选“设为星标 ★ ”空间设计出品┃转载请注明来源来源:空间设计...
- 空间设计
-
-
-
- 175+30㎡美式轻奢风大宅,一个散发热情似火又处处透露着高级感的家
- 家装室内设计 ,每日搜集分享国内外最前沿的家装设计、施工、建材等内容,成为您家装的好帮手!本案是一套面积为175平米的大平层,有一个30平米的入户花园,小编很喜欢入户花园的改造,顶面设计了电动天窗,入户...
- 家装室内设计
-
-
-
- 豪宅的 15 种奢华配置
- GHDA环球人居设计大奖第四轮(最后一轮)申报中,点击图片查看详情↑本文来源:一起设计ID:together-designLuxury house豪宅设计豪宅之所以叫豪宅不仅要占地大、配置豪,在房间数量、个性化设计、规模和售价等...
- 居住空间
-
-
-
- THURSDAY/积累
- 设计师投稿通道开启啦!无论你是自由设计师,还是设计工作室或机构,只要作品足够精彩,有看点,通通砸过来!投稿通道:Kiki_xl_(添加请注明来意)// 更多好物推荐 //新手露营,怎么能不知道这11个干货!轻松换...
- 时尚家居
-
-
-
- 玄关怎么设计最实用?换鞋凳+收纳台+挂钩,设计师力荐的9种设计
- 玄关作为家庭的门面担当,越来越受到人们的重视,但是如何装修好玄关?我想这是很多业主不知道的,一个好的玄关不仅收纳功能强大,各种“长枪短炮”的鞋子都能放得下,而且便捷性和颜值兼具。今天我就给大家介绍...
- 汇设计汇装修
-
-
-
- 58㎡ 二室一厅,这样布局打造空间高利用率
- 这套 58㎡ 的公寓位于乌克兰基辅是一个方正的二室一厅户型由于面积的局限室内并没有设置玄关进门便能看见开敞的起居空间△平面图客厅布局简单暖灰色的沙发和地毯搭配再加上铁艺木茶几和一副抽象的挂画作为装饰和...
- 内小宅
-
-
-
- 80㎡住一人一猫,温润木作+清新抹茶绿,共享复古“慢”生活!
- 家的要素, 让城市里忙碌的年轻人住得更好。说在前面这套80㎡的两居室位于成都,屋主珍珍是一位喜欢宅家的妹子,同住的还有一只三年前带回家的猫咪漾漾。对于理想中的家,珍珍希望是一人一猫共享自在“慢”生活...
- 家的要素
-
-
-
- 日本人为啥有床不睡,非要睡“地板”?原因竟然是……
- 小时候看动画片时我一直有个疑问,为什么不管是小丸子还是大雄,家里都没有床?他们白天在房间里玩耍,晚上就在房间里席地而睡。不光只是二次元世界,日剧里很多角色也都是睡在地上(榻榻米)。难道日本人有特殊...
- 房子装修
-
