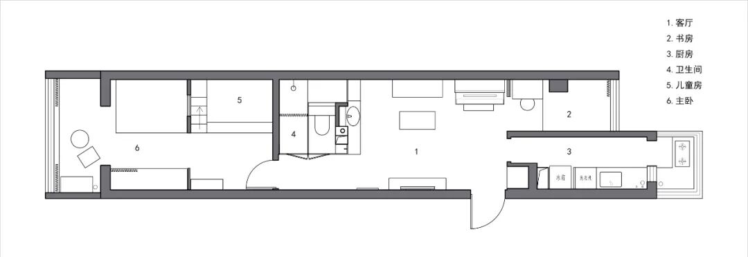
- 一家4口、3代同堂、3分离浴室,如何挤进50㎡?
 - 来源:时尚家居
 
北京七巧天工室内设计创始人&首席设计师。擅长亲子空间和趣味性空间的设计,在她看来,设计是“天马行空感性思维和求真务实理性思维的完美结合。”
无论你是自由设计师,还是设计工作室或机构,只要作品足够精彩,有看点,通通砸过来!
投稿通道:Kiki_xl_(添加请注明来意)
生活
- 
								
- 
																		
 - 茶几选得好,让你的客厅瞬间提升几个格调!
 - 全文约:1400字,阅读时长约:4分钟我国的茶文化源远流长,自古便成为文人墨客笔下所钟爱的素材,它是雅俗共赏、和谐人生的趣物,既可被王侯将相所品鉴,亦能消解平民百姓的干渴。在茶的全国流行下,茶几应运而...
 - 一统国际家居
 
 - 
																		
 - 
								
- 
																		
 - [旧物利用]让旧物变个身,家居旧物改造创意手工210421
 - 家居旧物改造创意手工大全让旧物变个身,闲置物品同样能制作出典雅的物什,让人忍不住想问你讨要。不要紧,这样环保的旧物新用,有的是取之不尽的原材料。软木塞锅垫葡萄酒的软木瓶塞是很典雅的手工材料,很能出...
 - 旧物利用家
 
 - 
																		
 - 
								
- 
																		
 - 这个北京周末,我们体会到了串门的乐趣
 - 我是一名土生土长的北京土著,去年年底从爸妈家搬出来,成功避免了临近 30 岁还和父母同居的尴尬局势。破天荒地,去宜家购物,拥有了第一个海绵拖把和滚毛轴,似乎标志了独立的第一步。必需品有了,但姘头的生活...
 - BIE别的
 
 - 
																		
 - 
								
- 
																		
 - 127㎡现代轻奢风,时尚感太强!YODEZEEN Architects新作
 - 现代轻奢 127m²的私人住宅项目,由Artem Zverev(联合创始人兼首席建筑师)、Arthur Sharf(联合创始人兼首席建筑师)、Artem Voskoboynik(首席建筑师)、Anna Tarabanova(首席设计师)、O
 - 室内设计秀
 
 - 
																		
 - 
								
- 
																		
 - 卫生间不用时,门是打开还是关着好?大多数人做错了……
 - 设计 / 品质 / 生活Temperature of Love来源:有品生活ID:pinpinlife之前一直有朋友问本本家里卫生间不用的时候,到底应该打开门还是关着门?有人说卫生间除了在使用时需要将它关上平时则是要保持开启的状态才...
 - 设计本家居
 
 - 
																		
 - 
								
- 
																		
 - 首发|矩阵纵横:潮流与文化的邂逅!
 - 建筑早已不是一个简单的遮蔽物,而是组成这个世界的巨大空间中各色各样的风景。借助对环境、自然尺度的领悟,将建筑转变为全新的风景,从而发现全新的世界。旭辉贵阳都会新雲位于山水之城,贵阳白云区,这里有着...
 - 拓者设计吧
 
 - 
																		
 - 
								
- 
																		
 - 一家4口、3代同堂、3分离浴室,如何挤进50㎡?
 - 大房子换50㎡学区房,既要住下一家四口满足父母偶尔小住,又要容纳钢琴、男主人独立办公区和大浴缸,并保证互不干扰保留隐私,应该如何设计,才能将这个小空间利用最大化?一起来看看设计师的创意与规划!认识设...
 - 时尚家居
 
 - 
																		
 - 
								
- 
																		
 - 昆山大型家装节玩大了,大奖华为手机、液晶电视、戴森吸尘器..
 - 生活是一道计算题做好加减乘除,方能收获一份精致的美好美好生活从装扮自己的小家开始 春风十里,又一轮家装旺季来袭选装修、看方案、选建材、比价格...各种打折促销眼花缭乱一个不小心还要被套路夺笋呐!那么问...
 - 昆山论坛
 
 - 
																		
 - 
								
- 
																		
 - 墙面装修用什么材料好?想要装修档次高,这些材料你可知道?!
 - 在常规的家庭装修中,墙面是占据面积最大的一个部位,一套100平的房子,墙面面积可能有250平以上,当然在除去被各类柜体挡住的部分,外露的墙面也是不少的,而且露出的大部分都会是在背景墙上,而背景墙的装修,...
 - 汇设计汇装修
 
 - 
																		
 - 
								
- 
																		
 - 93平现代二居室公寓,主卧包含衣帽间,十分宽敞
 - 今天分享的是一套建筑面积93平米的现代风二居室案例,房子原本的格局是三室,但屋主选择了把书房作为衣帽间,整合进了主卧室里面,让卧室变得更加的宽敞。设计师以灰色调为主,打造出了这样一个轻松、大方的现代...
 - 潮流室内装修设计
 
 - 
																		
 - 
								
- 
																		
 - 他把客厅抬高了一点,60㎡的房子就多出了储物间、餐厅、和工作区
 - ☞关注后回复:“卧室、餐厅、客厅、卫生间、厨房、衣柜、阳台、玄关、背景墙、儿童房、装修风格...”等都会收到相关内容,已覆盖99%家居装修的内容。60㎡的房子,多为一室一厅或者小两房,如果想让房间的功能分...
 - 创意家居生活通
 
 - 
																		
 - 
								
- 
																		
 - 五一前一站式省钱搞定装修!京房字家装团购会报名就剩5天啦!
 - 各位粉丝:每年春夏之交,都是装修的黄金季节,众多粉丝价都要开工装修了。而且,“五一”长假即将来临,很多人都希望能在“五一”之前把装修的准备工作做好,假期踏踏实实出去玩。所以,赶在“五一”前,【京房...
 - 京房字
 
 - 
																		
 - 
								
- 
																		
 - 世界上最舒服的沙发长什么样?
 - 无论是每天繁忙的都市人或是悠闲享受自然风光的田园派,“家”是完结一天的最终归宿也是最自然惬意的场所。劳累一天后,以安心的姿态将自己全然“投放”到沙发上,既是慰藉也是提示:Hey,你在沙发上,这里是“...
 - IDEAT理想家
 
 - 
																		
 - 
								
- 
																		
 - 新品首发|Nin·O 简影系列,诗意栖息的现代极简
 - 今天展示的现代极简——简影系列通过极简主义手法整体以黑白灰为基调 绘就一室写意设计从简 舍弃冗杂无关和幸福不期而遇 任凭世间纷扰惟愿偏安一隅 诗意栖息美,即理性厨房开放收纳格使用黑色金属围栏以及灯光结...
 - 小尼宅配
 
 - 
																		
 
