- 338㎡顶层私宅,风险投资者的“天使帝国”
 - 来源:设计之旅
 
YoDezeen Architects,由Artem Zverev和Artur Sharf,于2010年在乌克兰创立。目前已经分别在基辅、莫斯科、伦敦、迈阿密和洛杉矶设有办事处,是当代设计领域的一颗冉冉升起的新星。
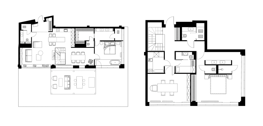
△ 本案平面图(1楼&2楼)
YoDezeen Architects专注于豪宅与餐厅设计,风格突出且具有强烈的时尚感。在他们的作品中,几乎没有“色彩”,取而代之的以黑灰,来营造空间独特的优雅之处。
推荐阅读
127㎡顶层单身公寓,一个人也要活得精致
一个女人,住150㎡ 的房子,家值得你任性!
70㎡女生单身公寓,白色至上,前卫时尚
生活
- 
								
- 
																		
 - 这花最怕乱浇水,越浇死得越快,赶紧住手
 - 春天万物生长,有些花友想让花长快点,就三天两头给花浇水。殊不知有些不喜水的花,会越浇越死。相反你不管它,一个月甚至两三个月不浇水,它反倒长势更旺,今天我们就来说说这些耐旱怕水花!球兰,一个月不浇水...
 - 养花大全
 
 - 
																		
 - 
								
- 
																		
 - 展馆内部环境、展品、版面以及道具等都有颜色
 - 发 现 生 活 中 最 美 好 的 设 计打开音乐聆听设计伽的声音在展馆设计的过程中,要遵循色彩的基本原则来设计整个展馆。我们应该更加关注人的感受,倡导“以人为本,为人民服务”的理念。整体色彩要有...
 - 设计伽
 
 - 
																		
 - 
								
- 
																		
 - 北京星河湾300㎡一人居,一个人的豪宅就该有这样的尺度
 - 北京·星河湾高级灰公寓一个单身男子居住环境应该是怎样的?干净、清爽、简约是最基本需求,通过清晰的布局分区,精心挑选的材料色彩,让一个冰冷的空间,一步步变成惬意生活的家。这套 300㎡ 公寓位于北京东四...
 - 内小宅
 
 - 
																		
 - 
								
- 
																		
 - 北京有房一族注意啦!这个消息对你很重要!尤其是今年要装修的!
 - 再上7天班,就要喜提5天假啦不过,对于已经或即将拿房的业主朋友来说这个黄金周,势必是不同寻常的!五月装修旺季,各种装修的问题在等着找装修公司,买材料,辗转各大建材市场比价怕被坑,怕买贵,怕不小心遇到...
 - 北京本地宝
 
 - 
																		
 - 
								
- 
																		
 - 女医生晒100㎡无风格的家惊艳全网!坐拥9大功能区,却把洗衣房塞玄关、梳妆台藏阳
 - 设计 / 品质 / 生活Temperature of Love本文授权转自:装个好房子ID:ihaofangzi本本曾经看过这样一个调查数据:仅有20%受访者可以接受与父母同住在一个房子里。不过有超过的一半受访者认为,与父母同住在一个小...
 - 设计本家居
 
 - 
																		
 - 
								
- 
																		
 - 114㎡简约日式三居,客厅+书房,阳台变身休闲咖啡书屋,这才是四口之家的正确打开
 - 家装室内设计 ,每日搜集分享国内外最前沿的家装设计、施工、建材等内容,成为您家装的好帮手!本案是一套使用面积为114平米的四口之家,每次确定效果方案,都是一家四口全部出动,从他们身上,可以体会到家人之...
 - 家装室内设计
 
 - 
																		
 - 
								
- 
																		
 - 338㎡顶层私宅,风险投资者的“天使帝国”
 - △记得把我设为星标哦,不然就看不到我了YoDezeen Architects时尚 · 黑白灰YoDezeen Architects,由Artem Zverev和Artur Sharf,于2010年在乌克兰创立。目前已经分别在基辅、莫斯科、伦
 - 设计之旅
 
 - 
																		
 - 
								
- 
																		
 - 羽绒被收纳必须分三步走!
 - 夏天马上就到了,是时候把用了大几个月的羽绒被收纳起来了。但是收纳羽绒被的小伙伴可能没有注意,收纳羽绒被有几个注意事项。否则羽绒被收纳不当,可能会造成变黄、气味、影响蓬松等问题。 第一步:提前通风干...
 - 床品研究院
 
 - 
																		
 - 
								
- 
																		
 - 美缝剂选什么颜色,何时做美缝?关于美缝的问题,答案全在这里!
 - 所谓美缝,就是地砖墙面砖完工后,在砖缝里面填入美缝剂的一个装修施工项目。在以往的传统施工中,瓷砖的缝隙都是用填缝剂(也叫勾缝剂,主要成分是白水泥)来填充的,由于填缝剂做的填充,存在一些弊端。最近几...
 - 室内设计姐
 
 - 
																		
 - 
								
- 
																		
 - 农夫山泉“金牛瓶”好评如潮,连续六年的生肖瓶玩法为何如此成功?
 - ▣ 编辑 老罗 | 品牌营销报(ID:PPYX007)▣ 来源 七爷 | 广告营销界(ID:iyxcom)社会化媒体时代,万物皆媒介、产品即营销,连产品包装也获得了从未有过的价值,它除了保持最初的外包装功能价值,还承载了...
 - 品牌营销报
 
 - 
																		
 - 
								
- 
																		
 - 朴悦新作|天空之城 时空幻梦
 - 建筑是一种抵抗重力,指向天空的存在 南充蓝光逸城·天空之城销售中心,以其独特的轻盈感:极简的建筑体块相互叠摞,二层出挑如宇航船悬浮在天上,承载着未来生活的居住体验。 在平静的水面上,庭树迎风而立,...
 - 火车头设计
 
 - 
																		
 - 
								
- 
																		
 - 空前力度!4大质保,6大特惠!瓷砖、开关…统统1元,品质家装节惊现昆山
 - 还在为新房装修苦恼吗?还在纠结风格与主材挑选吗?还在货比三家,斤斤计较吗?别担心!kb君立马为你支招省时省心又省钱一切尽在昆山首届春季品质家装节本次活动面向全城招募新居业主更有九鼎装饰高额补贴神秘礼...
 - 昆山论坛
 
 - 
																		
 - 
								
- 
																		
 - 扩展阳台,回归自然本性,打造178㎡木质温馨的四口之家
 - APP Store 排名第一的家居杂志真正的平静,不是避开车马喧器 而是在心中修篱种菊 还原自然本性 让家回归到最美好的样子 本案位于北碚区,面积178m²,是一个四口之家,屋主不喜欢繁杂的元素,渴望打造一个干净、...
 - PChouse家居APP
 
 - 
																		
 - 
								
- 
																		
 - 100平的日式风二居室,在极简的基础上,加入温馨质感
 - 平面布置图入户没有玄关走廊的户型,在入户门的一侧设计了一个休闲区,摆放沙发和置物架,也留出了一个换鞋凳和挂衣钩的区域。在入户门的另一侧就是餐厅空间,原木风的餐桌椅靠着墙摆放,墙上一个木制边框的挂画...
 - 齐家一站式装修
 
 - 
																		
 - 
								
- 
																		
 - 人生第一套房,97㎡一个人住,预算做到最大,从头到尾都透着精致
 - 关注微信公众号:jiawyk,一起聊聊装修中的苦闷与快乐~搬新家住新房,历时大半年,心里的大石头总算是落地了。这套97㎡的小家,是业主人生第一套房子,把预算做到最大,势必要打造出来一个精致舒服的家。客、餐...
 - 小菜聊装修
 
 - 
																		
 
