- 54㎡紧凑两居室,也能承载起一家三口的梦
- 来源:PChouse家居APP
APP Store 排名第一的家居杂志
种桃种李种春风
开尽梨花春又来
那是我心里一亩田一亩田
那是我心里一个不醒梦
本期案例是一户三口之家,买这套小房子是为了给小朋友更好的就学环境,但是大朋友的自我舒适度也需要考量并存。
屋主倩姐在网络上看过我们的案例,了解到我们,跟我们微信沟通再到见面,确定合作,从头到尾对自己的功能需求都十分清晰,规格与品类罗列的十分细致。
不管是小朋友的成长空间设置,还是全屋储物5个+的考量,以家庭为单位,房子面积不大的情况下却要满足所有这些功能,都需要深挖这个户型的可能性,然后在实际情况下淋漓尽致的将业主诉求满足。
项目信息
地址:成都 锦江区
面积:54㎡
户型:两居室
预算:约30W
户型分析:
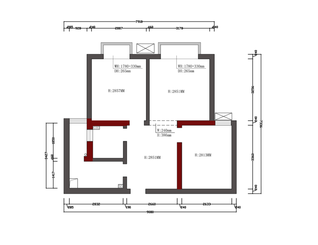
1、原户型的采光面比较小而且很分散,没有很好的共享。
2、空间区域分布较独立,让原本不大的空间显得更加窄小。
3、全屋53㎡,作为三口之家使用,储物空间尤其重要。
4、项目本身承重墙所分布在每个房间的重要位置,(红色填充部分为承重墙)保留两房,户型的墙体可变性很小。
平面要点:
厨房利用高柜包住外凸墙体改为开放式厨房,卫生间改变开门方向,原墙体内收一些,将洗手池和美妆柜、茶水柜做在一个面更整体。
小卫生间满足淋浴与泡浴,主卧原开门处做成内嵌式冰箱位,进出改为从客厅投影幕布方向,客厅与卧室共墙往卧室方向内退32cm,保证卧室1.9m榻榻米床与3.2m大衣柜的使用情况下,拉长了客厅的观影视距。
儿童房在保证空间开阔度的同时,储物、学习、玩耍都兼顾在平面动线内,整个空间几乎利用大量的定制柜进行功能及区域划分,将5个+的储物需求分类设计装进了这套居室。
BEFORE▲
入户▲
入户空间是一个大的集合地,需要满足的功能很多,在划分与穿插上我们从使用动线、尺度、空间关系、通透度等几个方面进行了综合考虑。
鞋柜需容纳一家三口的鞋子同时,左边通门兼具收纳储物(戴森吸尘器、部分打扫用品及弱电箱隐藏)
全身穿衣镜考虑在入户门靠厨房高柜的侧面,不占空间又很实用,厨房改为开放式,让原本很暗的空间能有自然光的互借与流通。
餐厅
公共空间的基调属于沉稳又深邃,就像这个家庭的小朋友一样,像个小绅士。
考虑日常上班、上学、早晨洗手间拥挤的情况,因此将洗手区独立放置在外,进出门洗手、消毒、打理一下也很方便。
客厅
BEFORE▲
美妆储物与茶水功能结合洗手池做成一个整体,统一材质更美观,不同方向的开放面使用,功能性也互不影响,因为每个区域需要满足的功能很多,所以餐厅与客厅分隔处我们整体抬高,将层次进行一个梳理。
客厅直接选择投影,将主卧推拉门设置在幕布背后,取消掉电视柜之类的大件柜体,将区域以地台层次高低进行划分。
客厅书柜考虑放置小米净化机及打印机等家用电器,所以下部分的柜体会比常规的高10cm左右,非常用物品,因此沙发日常挡住也不会很影响。
客厅进行抬高后,原飘窗高度和客厅的高低差就形成一个小休闲位,小朋友平时在这里看书学习,大人也可以在这喝咖啡休憩,进卧室的地台高度与飘窗高度齐平,让空间的层次能有呼应。
梳妆是一件自在的美事,所以我们也给倩姐考虑了一个专属于她的梳妆空间,小巧而精致,亦如她人带给我们的感观。
幕布旁边的储物柜,更多是用来储存家中常备药品及一些小零件的东西,狗窝的小地盘也在此。
我们将主卧与客厅之间的墙体拆除,用长虹玻璃代替实体墙,将整个空间采光共享的同时也保证了主卧一定的私密性,在保证主卧实用率及舒适度的前提下,合理将客厅空间扩大,增加客厅视距与舒适度。
主卧▲
BEFORE▲
衣柜拉通做整面,榻榻米床体也考虑为储物形式,利用抬高空间与原地面的高度差关系,将原本400mm高的榻榻米,从视觉上减到200mm左右,空间不大的情况下,让层次感更轻巧一些。
吊挂杆可以满足家居服和不用立马放进衣柜的衣物,很多时候,讲究的生活确实意味着更琐碎,无论空间大小,我们都竭尽全力去完成每一个托付给我们关于家的理想。
长虹玻璃与木纹的碰撞,牛皮与亚麻质感结合的主沙发,华丽与质朴,硬朗与柔软,这些对立,都是美丽。
为满足小朋友的小心愿,同时又能将家中他的物品尽量储存在这一空间内,我们特意设计了这套定制的梯步床,上面玩耍,下面睡眠,左边墙面整体做成了黑板漆,给小朋友一个自由描绘美好的空间。
根据高低床的上下部分,衣柜也分为了当季衣物存放及换季衣物上下两个柜体,梯步下方也融入了储物功能,放一些小朋友方便拿取的东西。
厨房的高柜内包含了房屋的结构柱,所以深度尺寸并不大,所以用来存放杂粮干货以及小电器、杯子之类的物品。
底板灯在这个空间是十分有必要的,提升了使用感官。
BEFORE▲
只有2米的橱柜台面,却收纳完进去所有倩姐列出的用品。
卫生间将洗手池移到外面后,内部空间兼顾了泡浴和淋浴。
每个人心里一亩一亩田
每个人心里一个一个梦
一颗啊一颗种子
是我心里的一亩田
用它来种什么
用它来种什么
种桃种李种春风
开尽梨花春又来
那是我心里一亩田一亩田
那是我心里一个不醒梦
——三毛《梦田》
案例图文来自 初懿设计
长按二维码
了解更多设计师作品
生活
-
-
- 戳爷首次公开2000w豪宅,内部“又旧又破”引网友围观:好寒酸,但我好喜欢!
- 本文由最有爱的公众号 Pinterest 原创出品 (ID:pintchina)25岁男孩的家,会是什么样的?我想,戳爷Troye Sivan已经交出了满分答卷。前阵子,他首次公开自己刚装修完的新家,一下子吸引了千万网友围观:“这老...
- Pinterest优选
-
-
-
- 刚买或刚扦插成活的盆栽苗,掌握服盆和换盆技巧,养花变得容易了
- 前两天给大家介绍了扦插植物的小妙招,可以保证较高的生根和发芽率,那植物扦插成功后,要怎么处理才能保证移栽成功,快速养成能开花的观赏花卉呢?天竺葵扦插苗1.扦插苗换盆时机选择就包括常见的月季花、三角梅...
- 养花交流
-
-
-
- 轻奢衣帽间,现代美学设计!
- 衣帽间 衣帽间是品质生活的一个重要指标,也包含着生活的千姿百态。简约轻奢衣帽间,小编收集多款设计案例,设计师通过材质、色彩的运用和软装的搭配将轻奢风打造得淋漓尽致。同时巧妙运用玻璃、瓷砖、金属...
- 米兰设计之旅
-
-
-
- W酒店在迪拜造豪宅|360°全景住宅,轻奢高级!
- 尊贵热线:400-639-9973最好的生活,只为遇到最懂的你! W Residences Duba 最近万豪酒店集团旗下的W酒店与Al SharqInvestment合作打造了一个私人豪华住宅项目W Residences Duba。项目
- 得心设计
-
-
-
- 2021探秘魔都设计之旅,开始报名啦!
- 1843年上海开埠后,逐渐成为中外贸易中心。在发展的积淀中,形成了现代设计、中西合璧的独特风格。远的说20世纪初,世界经济的繁荣在外滩留下了浓重的印迹,Artdeco装饰艺术风靡一时。近的说21世纪初,作为外资...
- 软装学堂
-
-
-
- 点击这里>>解锁你的书籍设定
- 人们都说,阅读改变人生性格影响着我们的阅读阅读又塑造着未来的我们假如你是一本书那是一本怎样的书别人要如何将你阅读点击下方动图或识别二维码快来解锁你的书籍设定吧↓↓一起享受阅读的快乐在阅读中一起成长...
- 人民日报
-
-
-
- 180㎡独栋“乡村”别墅,一半原木,一半阳光
- Nteam Design乌克兰 · 基辅本案来自N.team Design的项目,总面积为180m²。虽然地处乌克兰基辅市中心,但项目名称却叫“Villaggo House”,意思为乡村住宅。△ 本案平面图项目的建筑本身决定了它的条件,6米
- 设计之旅
-
-
-
- 5.21成都房车展:6座6卧 巨威双拓展旗舰版房车 美式奢华享受 家庭出行之星
- 之前的文章里,我们介绍过巨威的无拓展车型,今天双拓展旗舰版房车它来了!不仅延续了之前的高颜值,而且空间更大一步,给您带来更舒适的旅居生活,一起来详细了解这款车吧。外观·大气稳重,真有范儿外观采用白...
- 房车时代网
-
-
-
- 你家的电视背景墙太丑了!现在流行这样装
- 设计 / 品质 / 生活Temperature of Love知乎上曾有过一个很火的话题:你见过最丑的家装是怎样的? 排名第一的是电视背景墙排名第二的是电视背景墙排名第N的还是电视背景墙扎心了,所以许多人都表示:背景墙我宁...
- 设计本家居
-
-
-
- 这些花适合地栽,一养就是一辈子,壮观又好看!~
- 导语 众所周知,养花是一件有益于身心健康的雅事。调查显示,大多数长寿老人都有知足常乐的心态,而且家家户户都喜欢养花。很多老年花友家里的花有的都养了几十年,尤其是地栽的花木不仅高大得非凡,开花时节...
- 宠派养花大全
-
-
-
- 新品首发|Nin·O 塞纳系列,去繁就简的自然之感
- 今天展示的极简轻奢——塞纳系列极简的灰白色调,远离纷扰的色彩只为感受最为舒适的生活状态以木点睛,以光照心将自然与时尚融为一体Part 1入户空间该空间是门厅+洗衣机房组合的设计香草黄烤漆门与深色木纹柜身...
- 小尼宅配
-
-
-
- 123㎡工业风,拆成“毛坯”却高级到出圈儿?
- 传统的家居装饰总想着掩饰、把墙体刷白,把复杂的线管全部藏起来。但,本次房屋的设计选择了反其道而行之。通过巧妙的安排将管线外露,让这些管线也成为室内设计元素之一。让真实的纹理和结构相结合,利用翻新的...
- 时尚家居
-
-
-
- 54㎡紧凑两居室,也能承载起一家三口的梦
- APP Store 排名第一的家居杂志种桃种李种春风 开尽梨花春又来 那是我心里一亩田一亩田 那是我心里一个不醒梦 本期案例是一户三口之家,买这套小房子是为了给小朋友更好的就学环境,但是大朋友的自我舒适度也需要...
- PChouse家居APP
-
-
-
- 98㎡现代主义3室2厅,玻璃隔断让视觉感翻倍!
- 福利提示:文章末尾可免费领取4套设计+报价每天仅限5个名额设计理念 Idea 这是一套现代风格的装修案例,本案屋主钟情极简主义,色彩上选择理性的黑白灰,追求实用性与舒适感,整体营造出一个高级而有质感的空...
- 装修效果图
-
