- 120㎡现代三居室,以简胜繁的设计让人眼前一亮!
- 来源:潮流室内装修设计
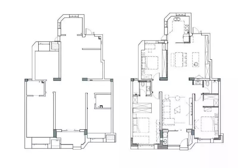
120㎡ | 3居室 | 现代
简约风格的特色是将设计的元素、色彩、照明、原材料简化到最少的程度,但对色彩、材料的质感要求很高。因此,简约的空间设计都非常含蓄,往往能达到以少胜多、以简胜繁的效果. 以简洁的表现形式来满足人们对空间环境的需求。
图赏
平面布置图
客 厅
简约中性的色调搭配,干净利落的背景墙及家具,暖白色调的灯光,让现代的居家温馨时尚感浮然而生。
电视直接挂在墙上,长方形的悬空电视柜,用来放置装饰品简洁优雅。
角落里摆放的绿植,沙发上随手放置的的书,还有自然洒入的阳光,充斥着主人对生活的热情,满满的温馨气息。
宽大的沙发,即可做待客的区域,也能在朋友多时作为简易的大床,简直不要太赞。黄色的抱枕点缀着空间,显得活泼轻快。
随性自在的挂画和抱枕,桌面再摆上一株喜爱的植物,洒脱中也不失知性!
整个空间纯净又富有生活本真的独特韵味,弥补了不少现代简约风格“不食人间烟火的”虚无感。没有分毫的多余装饰,体现出纯粹的空间美感。
阳光从窗户照射进客厅,为客厅带来了一抹暖意的同时,也让这个空间显得更温馨淡雅。
过 道
浅灰复古调的地面,在这个清新雅致的空间里,显得更加有格调。
餐 厅
餐厅角落里绿植让简约的空间多了一些轻松与随意,暖色灯光营造了富有层次的光线变化。
亲朋好友在此小聚,再也不用愁座椅太小不够用了。
举办简单的家宴,邀请朋友做客轻松有趣,尤其是和好朋友一起,把酒言欢,把生活过成诗歌。
厨 房
开放式的厨房,很符合业主骨子里的浪漫情怀,你在客厅玩闹,我在厨房准备着一家人的美味晚餐,看不见的爱意在整个空间飘荡。
干净清新的厨房,让做饭都变成了一种享受。
主 卧
米色的床头背景墙上挂上衣服白边的装饰画,充满随性的挂画、尽显年轻时尚的艺术气息。清晨,阳光透过大大的落地窗照进来,美好的心情能持续一整天。
实木的床头柜上的玻璃小瓶子里装着有助睡眠的干花,柜面上还摆着昨晚入睡前看的书,趁着睡意未袭来,捧在手上静静地再翻阅一遍。
次 卧
次卧设计以温柔的灰色为主调,做旧的床头柜与棉麻舒适床品的柔软相搭,让空间的质感构成平衡。
金属台灯的置入,让空间更显得清透明净,内敛中透着时尚。床上的画册为睡前时光增加了休闲感。
休 闲 区
黑色小巧的儿童钢琴,绿色的地毯,白色的落地风扇,可爱的玩偶,都为这小小的休闲区增添了一丝趣味性,使得娱乐性十足。为孩子打造一个充满童趣的小天地!
卫 生 间
卫生间灰白搭配简洁美观。墙上的皮带原木挂镜,增添了精致感。
今天的分享就先到这里啦,喜欢别忘了关注我呀~有想看的风格或者更多想要了解的可以多多在评论区留言哦!
(来源网络,如涉及版权,请联系我删除)
生活
-
-
- 这哪儿是开店,分明是艺术馆!
- 你会因为空间设计而打卡一家店铺吗?越来越多的店铺,不仅仅用来售卖商品。更多时候主理人会选择将时尚、设计、商品、餐饮聚集在同一屋檐下。在购买商品的同时,慢慢享受小店带来的丰富体验。你可以在店中享受审...
- 时尚家居
-
-
-
- 洗手台装镜子90%的人会后悔
- ▲ 点击蓝字“装修百宝书”,你想知道的装修问题,答案全在这里啦!查看半包装修要花多少钱?查看全包装修要花多少钱?查看10万以下的装修方案图片来自:吴恒镜柜优点:01藏露搭配▲ 至于需要有多少开放式的格子...
- 装修百宝书
-
-
-
- 导致室内盆栽植物叶子发黄的两大原因,你家里的植物中招了吗?
- 养在室内的植物出现黄叶的情况是很常见的,如果你不知道要如何处理,那植物就会越来越脆弱,甚至会导致叶子不断掉落,如果没有及时处理,后期就很难挽救回来了。室内植物黄叶的原因无非就是那几个,分别就是浇水...
- 养花交流
-
-
-
- 床尾凳||领略中世纪浪漫,任性开启多功能床尾区!
- 全文约:1200字,阅读时长约:4分钟富丽堂皇的水晶灯、典雅繁复的大花纹、质感丝滑的绒布窗帘、随风摇曳的流苏,这是典型欧式家装风格的特点,浪漫复古、优雅高贵,从中世纪至今它从不缺少人们的喜爱。杂志上、...
- 一统国际家居
-
-
-
- 钱花了效果出不来,不如“穷装”极简,少买家具省下一部分软装费
- 关注微信公众号:jiasjmt,家装案例每天更新! 从买房到装修,可以说是将自己攒了大半辈子的积蓄都掏了进去,可以说是尽心尽力。但很多家庭完全是“过度装修”,钱花了效果没出来。相比之下,韩国这户150㎡...
- 齐家一站式装修
-
-
-
- 榻榻米已经落伍啦!“地台卧室”正在悄悄流行
- ☞关注后回复:“卧室、餐厅、客厅、卫生间、厨房、衣柜、阳台、玄关、背景墙、儿童房、装修风格...”等都会收到相关内容,已覆盖99%家居装修的内容。近几年来,榻榻米设计已成为一种流行趋势,它不仅拥有很强的...
- 创意家居生活通
-
-
-
- 她在租来的8平米阳台上培育了一个能养活自己的花园,同时也养活了灵魂
- 我租住的公寓只有一个8平方米的小阳台,夏天来临时,阳台通常空无一人,酷热难耐。2020年初,我踏上了把阳台变成绿色天堂的旅程。这必须改变,几个月后,我意识到培育一个花园不仅仅是为了养活自己,也为了养活...
- 环球花艺报
-
-
-
- 中式设计|典雅设计释放全新活力。
- 01/ 项目信息项目坐标 / 城开云外项目面积 / 300㎡设计公司 / 上海缪斯建筑装饰设计有限公司设 计 师 / 蔡丰金02/ 本案介绍本套别墅空间设计为中式风格,整体而言偏向中式简约,既有传统大气的空间感,亦有现...
- 缪斯设计
-
-
-
- 住在这样的43㎡房子里,是一种怎样的体验?
- 中国设计微刊,专注「家居、时尚、创意」设计分享 设计空间 | 书画艺术 | 生活美学喜欢设计点击上方 “空间设计 ” → 点击右上角“...” → 点选“设为星标 ★ ”空间设计出品┃转载请注明来源来源:空间设计...
- 空间设计
-
-
-
- 金冠宾歌CX500小额头房车 软硬兼施,动力升级,开启颜值与品质共存的房车生活
- 如果说硬装是房车的筋骨,那么软装就是房车的皮囊和灵魂。要说到颜值与品质并存的品牌,金冠房车可以说是在国内同级别的产品中很有表现力的,格林卡诺系列想必已经是深入人心,今天我们就来看看金冠宾歌系列的CX...
- 房车时代网
-
-
-
- 120㎡现代三居室,以简胜繁的设计让人眼前一亮!
- 120㎡ | 3居室 | 现代简约风格的特色是将设计的元素、色彩、照明、原材料简化到最少的程度,但对色彩、材料的质感要求很高。因此,简约的空间设计都非常含蓄,往往能达到以少胜多、以简胜繁的效果. 以简洁的表现...
- 潮流室内装修设计
-
-
-
- 卫生间一定不可朝此方向,再有钱也会“穷三代”,神仙也救不了你
- 有句风水俗语叫做:“厨厕同宫,必有一凶”。厨房是进食之地,而厕所属于污秽之所,两者在八方中的同一个方位或者相邻,厕所的污秽之气就会进入厨房,影响厨房的清洁,从而不利于家人的健康。梳妆台是古代女性存...
- 装修家居风水
-
-
-
- 首发|王五平:330㎡简洁别墅,优雅白·沉静的空间艺术!
- 沉静艺术 沉静是一种内涵,一份采菊东篱下的淡泊释然;沉静是一种力量,一种潜藏心灵深处的感染力。空间中大面积的白色,优雅而高级,糅合着材质的肌理质感,将现代沉静的艺术空间呈现的淋漓尽致。01 客厅 客厅运...
- 拓者设计吧
-
-
-
- 119m刚需三居室,这届95后太会装修了!
- 面积:108平米户型:三室两厅一厨一卫风格:现代美式风以蓝白色为基调搭配同样简洁的现代美式风家具让人感觉轻松而又舒适平面布置图弧形设计的入户玄关,一侧设计通顶的鞋柜,中间留空做换鞋凳,满足日常需求,...
- 小尼宅配
-
-
-
- 87㎡小户型简约装修,有一个漂亮的儿童房,带娃不愁了!
- 户型:三室 面积:87㎡造价:40万元相比风格,业主更在乎居住在这个空间里是一种什么状态。家是由居住者的个人生活习惯和性格来形成的。想要一个理想的家应该怎么做呢?原来的家里客厅中央没有茶几好多年了,...
- 房子装修
-
