这套26㎡的小公寓已有20年房龄,现任屋主是一对新婚夫妻。设计师采用开放式布局串联各个功能场景,最大限度引入自然光,再辅以清新森林绿点缀,为屋主开启简单而美好的新生活。

坐 标:台湾 台北
户 型:一室
面 积:26.4㎡
设 计:心墨设计
居住人数:夫妻2人


▲ 原始结构图

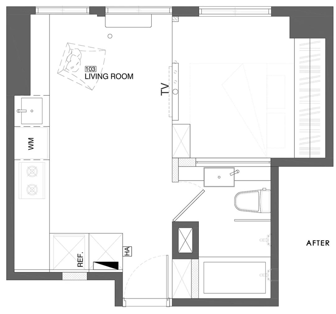
▲ 平面布局图

移动卫生间的入口,原空缺处设计悬吊鞋柜,解决入户门和厕门的碰撞干扰,梳整出合理的动线路径。

▲ 以鞋柜取代原卫生间入口
通高鞋柜储物能力强大,内部隐藏电箱,悬空设计方便收纳常穿的鞋。

▲ 以柔白+清新森林绿为基调
一脉相承的柔白色泽,循序串起空间连贯性,也拉出了公、私领域的分际线。

一排陈列柜,柔性划分卧室和客餐厅,可旋转电视架,无论身在何处皆能轻松观看,解放视角束缚。
隐形门通往卫生间,按柜格比例划分门板,保持整体一致感。

开阔明亮是屋主的主要诉求,以高包容性的纯粹白定调空间,减少视线负担也能加深澄净氛围,一抹清新森林绿呼应窗外景色,为小空间引入自然气息。

考虑到屋主日常以简餐轻食烹饪为主,设计开放式厨房,立面置入多种功能,集餐桌、备餐、洗衣、卡座于一体,留出充足的活动空间。

▲ 多种功能重叠
可折叠餐桌+一对量身定制的椅凳,不用时凳子可塞进卡座下方,灵活适配不同的使用场景,一点不占地方~

▲ 电视墙采用双面柜设计
全屋采用隔而不断的流通布局,电视墙可旋转180°,方便睡前休闲观影。通透柜格引入光线,让立面更有呼吸感,同时增加日常互动的趣味性。

另一面按照空间尺度裁划衣柜,以吊挂、折叠掺半的配置,收纳各种衣饰配件。

▲ 床头细分收纳

▲ 推拿床置于榻榻米床架
男主人是推拿师,经常在家中替至亲好友按摩舒缓,因此需要有放置推拿床的空间,地台床底部增加储物功能,妥善放置各种大型物件,使视线所及依旧简洁清爽。

▲ 隐形门背后是卫生间

▲ 四件式卫浴配置
屋主夫妻格外看重自然采光,于是将室内格局尽可能平铺,无线框玻璃窗+卷帘,兼顾光感和私密性。
同时辅以4000K色温的嵌灯,以趋近自然光的柔和光源,维持恰好舒适度。

▲ 可旋转梳妆镜,延伸视觉空间感

浅色大理石纹砖,提升质感和明亮度,端头根据空间尺寸量身设计浴缸,满足屋主想要浴缸的心愿,结束一天的忙碌,可以回家好好地泡澡缓解疲惫。
本文图片|心墨设计
原文链接:https://decomyplace.com
/n.php?id=9432
建材选择:
超耐磨木地板、大理石砖、木纹砖、铁件、木作
久经岁月的房子,原是作为租赁使用,残存诸多昔日生活痕迹,空间上也被硬生生分割成多块,致使光线无法穿透流通、视线也被大幅挤压缩,于是我们敞开格局、统一动线,将高耸柜体向二侧推移。
从而大幅提升采光效果,维持宽敞舒适的起居范围,亦透过界而未界的手法平衡私隐,同步采用定制家具蕴藏高度机能性,空间虽小,却能拴紧一切生活日常。
无须太过制式的格局分布,将场域属性机能重叠,单纯化动线也能轻透视线,依序搭配高明度色彩即能放大空间感,针对收纳方面,通常以地板作为机能延展,如同透过床台补足藏放需求;天花板则顾及载重性能与拾取方便性,较不建议。
一组对比图~

▲ 客厅
经授权由「家的要素」编辑整理
交易担保 家的要素+ 报名改造,给自己一个怦然心动的家~ 小程序