- 杭州IT夫妻买下90㎡小宅,步入式衣帽间、吧台、浴缸..复古又精致!
- 来源:家的要素
家的要素,
让城市里忙碌的年轻人住得更好。
男女屋主都是IT上班族,有两只可爱的猫咪,平时回家比较晚,只有周六周日全天在家。女屋主兴趣广泛,会画画,男主会弹吉他。
设计师选择用灰白为主调,加棕色点缀,营造一种现代和微复古的融合感,屋主全程参与设计,最终呈现出好看且实用的居家环境。
房屋信息
坐 标:杭州 萧山
户 型:三室
面 积:90㎡
设 计:Bocean波形设计
费 用:40w
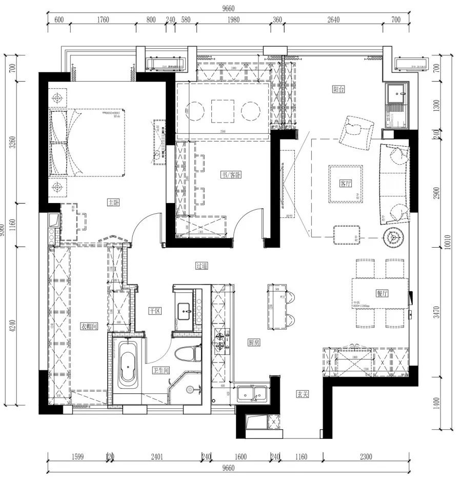
▲ 原始户型图
▲ 平面布局图
客厅
客厅在安装地暖后通铺仿木纹砖,同时采用鱼骨拼的方式,增加复古元素。阳台选择超窄联动三折玻璃门,偶尔隔离喵星人,不影响采光,颜值也高。
▲ 厨房望向客厅
无主灯的设计显得空间更加整洁干净,顶面的滑轨射灯营造空间氛围,全屋大部分采用智能开关,可以用App或语音控制开关灯。
灰色绒面沙发(弱化沙发被抓的问题)配浅灰色背景墙,美式的线条与装饰画丰富背景。
轻便的茶几通透且可随时移动,棕色单人沙发为空间注入复古色彩。
客厅大部分家具都选择了悬空的设计,方便屋主打扫卫生。
▲ 弧形垭口
电视墙大面积留白,搭配灰色悬空电视柜,抽象简框画与走廊的弧线垭口增加艺术气息。
软软的沙发也是小猫咪经常光顾的地方。
餐厅
深灰色的置顶柜,满足餐边的一切收纳需求,还预留出了多门冰箱的位置,解放厨房空间。
餐厅延续客厅背景,同样以装饰画点缀墙面,定制大理石台面搭配罗马柱桌腿的圆形餐桌,圆形线条从餐桌蔓延到吊灯和餐边柜,串联空间。
▲ 阳台望向餐厅
客餐厅之间并没有明显的界限,通过背景墙的延续,让两个空间紧密相连。
厨房
▲ 由于屋主平时做饭较少,厨房油烟不大
为了改善中间套的采光问题,打掉两面墙做开放式厨房+岛台的设计,厨房空间以岛台为中心形成洄游动线。
厨房采用鱼骨拼木纹砖搭配白色石纹墙砖,灰色的橱柜门采用触感门板,简洁显气质。
两盏简约的吊灯,装点吧台空间。
主卧
主卧的配色简单低调,灰白木搭配些许弧形线条,有了灯光的加持也显得很有味道。
衣帽间
▲ 布帘后是衣帽间
重新规划了原来的书房和主卫,为主卧增加一个女屋主梦寐以求的衣帽间。
通长的衣帽间选择鱼骨拼木纹地板砖搭配两侧灰色置顶收纳柜,在靠窗光线更好的位置还特意留出梳妆台和开放式置物柜。
书房
书房空间采用乌云墙纸,视觉冲击力更强,一侧设计榻榻米,可以作为临时休息场所。
卫生间
卫生间纳入了一部分书房空间,实现干湿分离。大理石纹六角砖从地面铺贴至镜面背景墙,白色台面+台上盆配黑色龙头,镜柜实用又好看。
一道黑框长虹玻璃门分隔了干湿区,湿区地面铺贴大理石瓷砖。
▲ 独立浴缸
浴缸背景选择波纹艺术砖+顶面隐形光源洗墙,制造大气美观的卫浴环境,金色的墙排五金件更是锦上添花,成为点睛之笔。
设计师微信号:zhb130
生活
-
-
- 一个女生住,44㎡小宅,舒适!
- 质感空间 简约的设计风格是众多人群所喜爱的,生活在繁杂多变的世界里已是烦扰不休,而简单、自然的生活空间却能让人身心舒畅,感到宁静和安逸;乌克兰设计师Andriushchenko Alina新作,44.2平方米的小户型公寓...
- 空间设计
-
-
-
- 杭州IT夫妻买下90㎡小宅,步入式衣帽间、吧台、浴缸..复古又精致!
- 家的要素, 让城市里忙碌的年轻人住得更好。说在前面男女屋主都是IT上班族,有两只可爱的猫咪,平时回家比较晚,只有周六周日全天在家。女屋主兴趣广泛,会画画,男主会弹吉他。设计师选择用灰白为主调,加棕色...
- 家的要素
-
-
-
- 卧房这样装,谁还嫌弃你家是小户型!
- 现如今,随着小户型设计越来越向集约化发展,在家办公也成为了一种新的“流行”。为了给自己营造一个温馨、舒适的办公环境,不少人都会在有限的卧室空间里,隔出一个小型的办公区域,将办公、休息融为一体,生活...
- 房子装修
-
-
-
- 线条感与空间感的双向奔赴。
- ●客厅灰色背景墙与浅灰色瓷砖打造极简冷静的气质,顶灯以艺术线条的灯具做一个造型,沙发构建了一个L型的空间,拉近人与人交流的距离也十分具有美感。轻奢而又舒缓的客厅环境,明朗的线条与窗外的绿植环境相互...
- 缪斯设计
-
-
-
- 怒甩宜家几条街!某宝上几十块就能买到绝美家居好物,赶快码住~
- 姐妹们,家居好物种草鸡上线啦!小白一直很喜欢逛各种淘宝家居店,风格齐全、品类众多、价格实惠,时不时就能找到颜值高又好用的好东西,可以说是很香了!逛了这么多下来,也总结了几件平时觉得很好用的家居好物...
- 小白酱的种草鸡
-
-
-
- [旧物改造]不用的奶粉罐大变身
- 不用的奶粉罐大变身如果您喜欢本文,请点击右上角发送给朋友或分享到朋友圈哦!搜索微信号“旧物利用家”或扫描以下二维码关注我们:
- 旧物利用家
-
-
-
- 动静分区、动线流畅、三式分离……禁欲又高级的精致一人居
- APP Store 排名第一的家居杂志优雅、精致、有力量感的黑 搭配极具视觉冲击力的红 一冷一热相互中和交融 沉稳冷静中一份喜悦开朗 暗黑系的现代简约禁欲又高级,红色打破沉闷给空间增添活跃感,出乎意料的惊艳既保...
- PChouse家居APP
-
-
-
- 为什么中国能「制造宜家」,却不能「创造宜家」?
- 你有没有想过为什么中国几千家家居品牌却让外来的宜家抢占了四分之一份额?在宜家2019财年367亿欧零售额中单中国就创收157.7亿面对如此大利润又为何迟迟不见“国产版”宜家呢?▲图1来源于 Pixabay到底是难以学...
- 普象工业设计小站
-
-
-
- 养花需牢记:三种土不能用、五种水不能浇、八种肥不能施!
- 养花越久,越能发现养花不只是简简单单的给花浇浇水、施施肥就行了,里面的学问大着呢,需要我们不断学习和总结经验。花儿要想长得好,浇水、施肥不可少,土壤的选择也很重要,那么什么土不能养花?哪些水不能浇...
- 养花之家
-
-
-
- 卫生间马桶万万不要装在这个位置,后悔没留意,有钱人都会住穷
- 卫生间马桶万万不要装在这个位置,后悔没留意,有钱人都会住穷房子在装修之时,相信大家对于卫生间的装修都是很在意的,毕竟卫生间的环境很特殊,我们在买东西的时候就要注意,装修卫生时要用适当有创意的设计方...
- 装修家居风水
-
-
-
- “重新设计小合集”——小产品
- “设计总会带给我们全新的感觉即使是一件看似习以为常的小产品也可以通过设计带来感官或者使用上的创新··今天汇总往期文章中的一些重新设计的小产品案例来看看这些重新设计的案例能给你什么启发?··文底投票...
- 工业设计俱乐部
-
-
-
- 第一家有温泉的丽思卡尔顿酒店超惊艳!
- 尊贵热线:400-639-9973最好的生活,只为遇到最懂的你!日本日光酒店 丽思卡尔顿酒店 丽思卡尔顿全球第一家温泉酒店位于日本日光,一改往日的奢华路线,走起了简约禅意的日式亲民路线,去年一开业,便惊艳世人,...
- 得心设计
-
-
-
- 不到 50㎡ 的公寓,把床和收纳变成吊顶,这设计绝了!
- The Smile智能住宅设计这栋名为「The Smile」的住宅楼相信已有不少人熟知了,知名建筑事务所 BIG(Bjarke Ingels Group)赋予了其标志性的弯曲外立面,让人印象深刻。这个多功能混合型住宅项目共有 11 层,占地
- 内小宅
-
-
-
- 现代轻奢风,打造高级感十足的居住空间!
- 高级轻奢 HERZLYIA顶层住宅,Aviram Kushmirski全新的设计作品,设计师通过开放式的布局,曲线的造型,加之尽可能的用天然材料,以及不规则的纹理,多种元素的完美融合,才有了这样一个高级感十足的居住空间。从...
- 室内设计秀
-
