- 520m顶级豪宅,行到水穷处,坐看云起时
- 来源:设计之旅
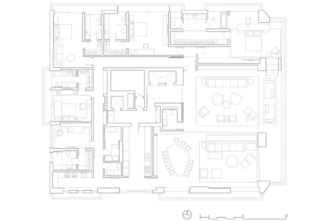
面朝大海·极简豪宅
本案名为“RS Apartment”,总面积520平方米。由Studio Arthur Casas操刀完成。这是一个可观赏到季节性变化的空间,坐落于热情的国度巴西里约热内卢州,美丽的伊帕内玛海滩景观360°环绕建筑空间。
正是这些令人心旷神怡的景色塑造了空间的布局,一个开放式的客厅与用餐厅占据中心重要位置,让壮阔的海景直奔眼前,给予奢华的视觉。而大部分的卧室空间则沿着窗边布置,让每一个空间都能充分欣赏到海天景色。
520平方米的室内被赋予了干净和极简主义的美学,辅以舒适和活力的气氛,营造出一个惬意友好的气息接待朋友客人。
放置于窗前的沙发,简单干净的线条不会过度分散了海景的视线。沉重的树干咖啡桌稳稳地立在客厅的中央。花瓶的叶子形成了郁郁葱葱的绿色,使整个客厅焕然一新。
人坐于客厅“行到水穷处,坐看云起时”的感觉油然而生。伊帕内玛海滩的壮观景色似乎激发了室内深蓝和浅褐色的色彩灵感,焦点视线从平坦的白色墙壁缓缓的从上而下落入到全景窗户。
两个钴蓝色装饰花瓶为一个浅木色的悬浮边柜增添了活力。
开放式空间中,现代简约的沙发与扶手椅围绕着浅米色区域地毯的外缘,划定了豪华客厅的边界,充满活力的家具在现代极简主义氛围中唤起了一个舒适亲和的气氛。
Carlito Carvalhosa的一幅画又增添了一抹明亮的蓝色,在这幅画的下面,是由PP Møbler的Hans Wegner所设计的现代北欧风格躺椅。
柜上透明玻璃大花瓶与一张黑白摄影作品形成了清新明丽的装饰。
推荐阅读
1200m²复式豪宅,有气质,更有颜值
1347㎡顶层豪宅,奢华与荣耀的典范
这4位女明星的家,堪称豪宅中的一股清流
点击下图,了解详情
▼
生活
-
-
- 不要户型小就做榻榻米,这些卧室设计实用又好看!
- 寸土寸金的城市好不容易买个房,其中以小户型居多,都想最大化的利用空间。大多数小户型装修都会选择榻榻米设计,满足多功能需求。也有人吐槽榻榻米难用,甚至说榻榻米的设计早过时了。其实,小编想说户型小卧室...
- 房子装修
-
-
-
- 首发|吴文粒:邂逅浪漫色彩主义!
- 色彩不仅是空间的点缀,更是空间一种气度的内在传达。轻吟一首纯白歌谣,行如从容的海水一样自由包容。01 C4户型 云玺C4户型以鲜亮的橙黄为主色调缓缓铺陈开来,明媚张扬,灵动活泼,泼洒别具一格的空间体验。辅...
- 拓者设计吧
-
-
-
- 下沉式“庭院景观房”爆红,传统电梯房OUT啦!
- ▲ 点击蓝字“装修百宝书”,你想知道的装修问题,答案全在这里啦!查看半包装修要花多少钱?查看全包装修要花多少钱?查看10万以下的装修方案在中国电梯房是大多数人所能见到的最多的房型看到外面的景观也寥寥...
- 装修百宝书
-
-
-
- TOMO 東木筑造|食冶日料餐厅—海洋情境的沉浸式体验设计
- 太阳与海的碰撞光与水的邂逅一场关于海洋的沉浸式感官体验/Where the sun rises upon the oceanlight touches water unwittinglythere is an immersing senso
- 火车头设计
-
-
-
- 庭院景观就是一种奢侈品 怕自己用不起
- 庭院设计的目的是为了提高空间品质。功能布局合理,有足够的停留活动空间,各区域划分过渡自然,使景观互补,从而扩大视觉空间。 注:本文转自网络,版权归原作者所有。大江园林欢迎您随时随地查看的园林资料馆1...
- 山东大江园林
-
-
-
- 《小舍得》焦虑背后,藏了一部有娃之家的装修大戏
- 如果你曾经被什么剧折磨得看一集哭一集,但却还是忍不住要一直往下看,那要么就是这部剧太过狗血,让人忍不住边看边骂;要么就是这部剧太过真实,唤起我们每个人的焦虑和同情令人感同身受。而最近讨论度最高、每...
- 时尚家居
-
-
-
- 搁置10年老房换新颜,令人惊叹的大改造
- APP Store 排名第一的家居杂志生活,总会有不期而遇的温暖 和生生不息的希望 懂得给生活留白 揽一份诗意, 留一份淡定 此案为搁置了10年的老宅毛坯屋装修,整体设计概念以灰色、木皮色为主轴,以求机能合并却依...
- PChouse家居APP
-
-
-
- 520m顶级豪宅,行到水穷处,坐看云起时
- Studio Arthur Casas面朝大海·极简豪宅 “从物体到景观,由内到外,Arthur Casas工作室的创作过程与水平尺度紧密相连,其中主要关注的是项目概念的对话,可以像椅子或整个社区一样多样化,受到现代主义和当代精...
- 设计之旅
-
-
-
- 设计独特的展馆空间,各个展区各有特色方法:常规、圆弧以及其他
- 发 现 生 活 中 最 美 好 的 设 计打开音乐聆听设计伽的声音展馆设计应该是多个维度的,按照美的法则合理组织点、线、面、块,并添加适当的色彩、灯光和纹理,就能让各个展区各有特色,设计出一个独特...
- 设计伽
-
-
-
- 不拘一格的清水混凝土,简单中的精细考究!
- 申报倒计时 | GHDA环球人居设计大奖,点击图片查看详情↑清水混凝土美学生活在繁忙都市中,你可曾向往宁静致远的生活?极简风,闲适写意、悠然自得,温润又克制,令人闻之心动。今天,为大家分享几个日式住宅设...
- 居住空间
-
-
-
- @在郑州奋斗的你!工作再忙,别忘了好好生活。
- 这些是大多数生活在郑州的年轻人,迈入人生新阶段时都会遇到的问题,他们往往会受到各种家居生活问题的困扰。但他们都有一颗热爱生活的心,和对理想生活的美好向往…而最近,宜家在刚刚进行完的新一期家居改造项...
- 我和郑州
-
-
-
- 广东人结婚,烧钱的居然不是彩礼,而是……
- 毫无疑问结婚是需要一定的经济基础的然而印象君最近发现结婚原来最烧钱的不是彩礼而是……布置新房?很多新人们好不容易敲定了彩礼/嫁妆安置好了爱的小窝最后发现要购置质量好、颜值高的家具也是一笔开销真是让...
- 广州印象
-
-
-
- 70平的二手小户型老房,花9万块将两间房改成三间房,值得借鉴!
- 关注微信公众号:jiasjmt,家装案例每天更新! 今天齐家云云和大家分享的这套70平小户型房子是个二手房,房型非常不错,屋主在装修的时候,也没有把墙体和内部的水电管道弄坏,所以买回来后,只需要粉刷一...
- 齐家一站式装修
-
-
-
- 极简空灵的样板房设计!
- 尊贵热线:400-639-9973最好的生活,只为遇到最懂的你!极简样板房设计大道至简,遗世独立!提到样板房,它留给人的刻板印象是轻奢繁华,今天得心君为大家分享国外极简空灵样板房设计,真是样板房中的一股清流!...
- 得心设计
-
-
-
- @室内设计师:你不一定要做灯光,但一定要懂灯光
- 近几年,消费的升级,装饰风格的升级,人们越来越知道灯光的重要性,设计师更需要掌握灯光对空间的表现;合理科学的设计灯光,以人为本,让业主住得舒服,更能体现设计的价值。设计师用造型,色彩,材质的组合来...
- 米兰设计之旅
-
