- 房子有院子,再小也迷人!
- 来源:装修33天
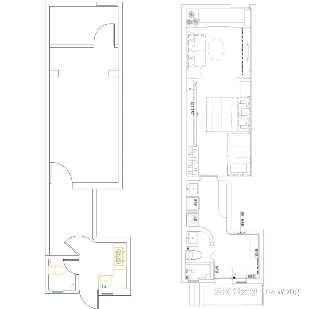
▲ 建筑面积36平,造价25万,位于上海静安区,房子虽小,但地段好,位置赞,就连房子外部都人见人爱
▲ 原始结构图&平面布置图
▲ 入户设计木色收纳柜与衣帽架机能,加上简框画背景与绿植的点缀,一进门给人轻松愉悦的心情
▲ 利用原先尴尬的过道打造功能齐全的小厨房,不锈钢台面木色柜门,整洁有序
▲ 厨房对面的一段空墙布置出一个小吧台,既作厨房辅助,又可兼休闲阅读区
▲ 采用圆弧玻璃作隔墙,扩大卫生间使用空间的同时也保证了走道的通过性
▲ 卫生间灰砖地面与工字铺小白砖,搭配木色元素浴室家具,材质与风格与厨房呼应
▲ 扩大后的卫生间不仅增加浴室柜,还增设出宽敞舒适的淋浴区
▲ 卧室木色地板搭配暖色背景墙,一张高低床,一张双人床,结合整墙书柜与衣柜组打造功能起居室
▲ 设计升降式投影取代传统电视机,在卧室中可以躺着看电影
▲ 木质大床搭配老式箱体作床头柜,金色吊灯渲染温馨氛围,一边的收纳竖柜功能实用
▲ 高低床下方为写字台,可以学习与办公
▲ 借用部分天井位置,进一步扩大使用空间
▲ 在靠近天井的位置增加活动区,灰绿色背景搭配轻巧的家具,创造清新的休闲厅
▲ 木作收纳机能的电视柜作背景,休闲厅与卧室可以通过布帘,随时切换出两个独立的空间
▲ 玻璃门外是半开放式天井小院,鹅卵石地坪与墙上布满的绿植,让自然景色进入惬意生活
独立设计师 | Tina_wong(上海)
微信:Tina_wong_design
后台回复「Tina」可以看更多作品
媒体转载请注明装修33天并保留设计师联系方式
欢迎业主、设计师、装修公司免费投稿照片
装修33天商务合作微信:king194316
松爷店铺掌柜微信:yejia1703
实用装修指南
装修33天 🏡 实用装修指南
你每次点赞和转朋友圈,都是对我们的支持
生活
-
-
- 这就是90后青年的“不正经家装”,换成你敢把家里楼梯变成滑梯吗?
- 关注微信公众号:jiasjmt,家装案例每天更新! 当最后一批90后都已经上了大学,90后也成为了家装行业的主力消费者,他们努力工作也热爱生活,他们遵守规则也喜欢打破规则,让这样一群人和家装相遇,你就会...
- 齐家一站式装修
-
-
-
- 101㎡撞色顶流设计,脏粉搭配藏青更显色彩跳跃感,文艺范十足!
- APP Store 排名第一的家居杂志设计 远不止简单的堆砌协调 更是一种精致生活的生动呈现 本次案例的业主对材质的接受度和色彩的开放度都很高,不喜欢太过传统的设计,要创新、个性、有特色的。喜欢脏粉色和复古元...
- PChouse家居APP
-
-
-
- 夏天必入手的五种花,个个都是高颜值,耐热又好养,家里养几盆,花美色丽人人夸!
- 明天就是五一小长假了,想想还是有点小激动,五月一到,意味着春天已经画上了圆满的句号,热情如火的夏天到了,今天小编给大家推荐5种适合夏天入手的花花,个个都是颜值担当,不怕热又不怕晒,家里养上几盆,花...
- 养花之家
-
-
-
- “挺”进万亿家装市场的新国美
- 作者:冯超监制:迟宇宙来源:商业人物(ID:biz-leaders)那个以销售家电而知名的国美,似乎正在发生着剧烈的变化。围绕着它的诸多或平淡、或引起众人好奇的故事,也都在一个很短的时间内以不一样的方式发生,...
- 商业人物
-
-
-
- 一家三口310m的理想家:可以住的“艺术馆”
- APP Store 排名第一的家居杂志七彩群鱼奔赴大海如鱼得水艺术便随之诞生本期案例以‘艺术馆’为主题,屋主夫妻是一对潮玩的生活家,喜欢旅行,喜欢各种新奇的事物,对艺术充满极强的包容性。他们尊重并热爱艺术,...
- PChouse家居APP
-
-
-
- 五一小长假:出游人从众VS宅家欢乐多~我选后者!
- 全文约:1500字,阅读时长约:5分钟心心念念的五一小长假就要到了,小照已经迫不及待要跟大家说五一快乐了!但是,在广大网友的计算下,五一实际只放一天假!早在一周以前#五一调休#就冲上了热搜,这个五一小长...
- 一统国际家居
-
-
-
- 45㎡ 小公寓,高级黑灰色下的优雅设计!
- 黑砖,原木,麻质地毯,深蓝色沙发这个 45 ㎡ 的幽暗空间由设计师 Olga Fradina 为女歌手 BAKHIRKA 打造的家从客厅到卧室黑色的砖墙压暗了空间的整体色调一切仿佛都置于阴翳之中而在这样的暗黑空间里可以让人完...
- 内小宅
-
-
-
- 老来有个小院,不胜欢欣!
- ☞关注后回复:“卧室、餐厅、客厅、卫生间、厨房、衣柜、阳台、玄关、背景墙、儿童房、装修风格...”等都会收到相关内容,已覆盖99%家居装修的内容。有人说最理想的生活是,在大城市奋斗,在小城市生活。走过红...
- 创意家居生活通
-
-
-
- 这家建材企业 又一次革了行业的命?
- 未来已经到来,只是尚未流行!——凯文凯利《失控》01家装领域的“变革者”时代的河流,每一刻都在调转方向。在中国敢革自己命引领行业发展的企业不多,但海尔算一个:从最初的生产制造到张瑞敏砸冰箱,由大规模...
- 头版财经
-
-
-
- 128㎡现代轻奢风,精致华丽,时尚感太强!
- 在128平米的空间内,整体现代风的硬装,在造型与吊顶边框里加入金属质感的点缀,使得空间充满华丽精致的轻奢档次感;同时布置现代优雅而舒适的软装与小饰品,也让空间显得更加灵活有趣。客厅▲客厅在现代风的空...
- 室内设计秀
-
-
-
- 小夫妻花34万买下28㎡两室一厅“小别墅”,还自带一个花园露台!
- 这个28平的移动“小别墅”,两室一厅一卫,随地摊开变成一个家。- 生活美学 -结婚生孩子,最大的问题就是:买房子!比买房子更大的问题就是:买不起房子!可谁说房子就一定得是城市里死板的高楼公寓?热爱旅行和...
- 腔调软装
-
-
-
- 首日盛况丨北京建博会“高端新品”惊艳出圈,小尼宅配引爆全场!
- 2021年4月30日第31届中国(北京)建筑材料与装饰展览会正式拉开了序幕北京建博会首日报道“高端新品”惊艳出圈小尼宅配引爆全场1展馆现场精彩亮相 大放异彩北京一年一度的建材展览会开展首日来自全国各地的知名...
- 小尼宅配
-
-
-
- 房子有院子,再小也迷人!
- ▲ 建筑面积36平,造价25万,位于上海静安区,房子虽小,但地段好,位置赞,就连房子外部都人见人爱▲ 原始结构图&平面布置图▲ 入户设计木色收纳柜与衣帽架机能,加上简框画背景与绿植的点缀,一进门给人轻松愉...
- 装修33天
-
