- 台式高级灰设计,不一样的时尚空间!
- 来源:室内设计秀
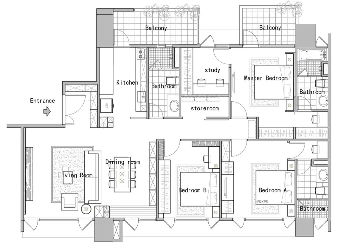
台式空间
台湾省钜程设计Chu-Cheng interior design,室内设计的价值在于打造量身订做的幸福,透过赋予住宅生命力,凝聚家庭成员的归属感。
92㎡的一家三口的居宅,钜程空间以黑白灰极简手法,运用材质特性,揉合为一份毫不喧嚣的纯粹美感,使心灵可以回归自在本能,追逐自然与时间的漫流,专注感受无声胜有声的沉静画面。
ۥۛۛ۟ۙۙۚۥۚۙۙۙۚۥۛۛۚۚۛ۟ۡۥۛ۟ۡۗۡۥۛۛ۟ۙۙۚۥۚۙۙۙۚۥۛۛۚۚۛ۟ۡۥۛ۟ۡۗۡۥۛۛ۟ۙۙۚۥۚۙۙۙۚۥۛۛۚۚۛ۟ۡۥۛ۟ۡۗۡۥۛۛ۟ۙۙۚۥۚۙۙۙۚۥۛۛۚۚۛ۟ۡۥۛ۟ۡۗۡۥۛۛ۟ۙۙۚۥۚۙۙۙۚۥۛۛۚۚۛ۟ۡۥۛ۟ۡۗۡۥۛۛ۟ۙۙۚۥۚۙۙۙۚۥۛۛۚۚۛ۟ۡۥۛ۟ۡۗۡۥۛۛ۟ۙۙۚۥۚۙۙۙۚۥۛۛۚۚۛ۟ۡۥۛ۟ۡۗۡۥۛۛ۟ۙۙۚۥۚۙۙۙۚۥۛۛۚۚۛ۟ۡۥۛ۟ۡۗۡۦ۫ۡۜۛ۟ۚۛ۫ۦۜۜۚۡۜۛۜۥۛۛ۟ۙۙۚۥۚۙۙۙۚۥۛۛۚۚۛ۟ۡۥۛ۟ۡۗۡۥۛۛ۟ۙۙۚۥۚۙۙۙۚۥۛۛۚۚۛ۟ۡۥۛ۟ۡۗۡۥۛۛ۟ۙۙۚۥۚۙۙۙۚۥۛۛۚۚۛ۟ۡۥۛ۟ۡۗۡۥۛۛ۟ۙۙۚۥۚۙۙۙۚۥۛۛۚۚۛ۟ۡۥۛ۟ۡۗۡۥۛۛ۟ۙۙۚۥۚۙۙۙۚۥۛۛۚۚۛ۟ۡۥۛ۟ۡۗۡۥۛۛ۟ۙۙۚۥۚۙۙۙۚۥۛۛۚۚۛ۟ۡۥۛ۟ۡۗۡۥۛۛ۟ۙۙۚۥۚۙۙۙۚۥۛۛۚۚۛ۟ۡۥۛ۟ۡۗۡۥۛۛ۟ۙۙۚۥۚۙۙۙۚۥۛۛۚۚۛ۟ۡۥۛ۟ۡۗۡۥۛۛ۟ۙۙۚۥۚۙۙۙۚۥۛۛۚۚۛ۟ۡۥۛ۟ۡۗۡۥۛۛ۟ۙۙۚۥۛۛ۟ۙۙ
-END-
173㎡现代轻奢风,端庄优雅,时尚大方!
215㎡简约大平层,自然又有气质!
原木+白色,擦出不一样的小清新火花
生活
-
-
- 得心设计五一放假通知
- 尊贵热线:400-639-9973最好的生活,只为遇到最懂的你!五一放假通知得心设计全体同仁祝大家五一假期快乐!欢迎关注得心设计抖音视频号,了解最新设计资讯MORE | 了解更多品质生活资讯欢迎点击下方图片或文字 ...
- 得心设计
-
-
-
- 153㎡轻奢美式4室2厅,高级有品味的质感生活
- 福利提示:文章末尾可免费领取4套设计+报价每天仅限5个名额设计理念 Idea 这是一套美式风格的装修案例,真正的优雅不是陈词滥调的刻意展现,而是嵌在骨子里的细节流动。希望这套装修案例能给大家带来一些灵感...
- 装修效果图
-
-
-
- SATURDAY/劳动节快乐
- 设计师投稿通道开启啦!无论你是自由设计师,还是设计工作室或机构,只要作品足够精彩,有看点,通通砸过来!投稿通道:Kiki_xl_(添加请注明来意)// 更多好物推荐 //新手露营,怎么能不知道这11个干货!轻松换...
- 时尚家居
-
-
-
- 出去玩之前,家里的植物都照顾好了吗?
- 伟大庭院:Hilton Carter朋友们大家好,小长假又到了,不管你是正在无所事事,还是一边劳动一边过劳动节,这个用两个双休换来的假期都是走出去看看的机会。E·B·怀特说,“如果人必须迷上点什么,一艘船不逊于任...
- NOWNESS现在
-
-
-
- 全屋省力换季攻略!堪比重装修
- 五一调休,快乐吗?对于这个调休2天,周末2天,实际假期只有1天的五一假,大家都有些兴致索然,但事实如此,不妨换个角度看待,回个家,周边游,聚会,或是用来咸鱼几天,给家居环境换个季,都是不错的选择。其...
- 时尚家居
-
-
-
- 186平的现代简约风大房子,宽敞明亮而又惬意舒适
- 平面布置图入户没有玄关走廊的户型,设计师在入户门和客厅之间加上了一堵墙,让玄关成了一个独立空间,也避免了一些风水问题。客厅的电视选择了嵌入墙内的设计,让人感觉更加简洁。底部用大理石做上一个长隔板来...
- 小菜聊装修
-
-
-
- 五一劳动节,这几种花草界的“劳模”值得表扬…
- 导语 “劳动是世界上一切欢乐和一切美好事情的源泉。”今天是2021年五一劳动节,是属于劳动者的节日,各行各业的“劳模”们也广受赞誉。那么,你知道花草界的“劳模”吗?现在,宠派养花大全小编就为大家分享...
- 宠派养花大全
-
-
-
- 6种耐晒耐高温的盆栽观花植物,夏秋季节花开不断
- 平常如果注意仔细观察,就会发现我们身边有很多耐暴晒的观赏植物,它们在毒辣的太阳花仍旧开花灿烂,反而在遮阴处是长不好的,如果你家有高温和暴晒的环境,这些植物就不要错过。上面是松叶牡丹(太阳花)耐晒耐...
- 养花交流
-
-
-
- 最没用的7件卧室家具,赶紧丢了吧..
- ▲ 点击蓝字“装修百宝书”,你想知道的装修问题,答案全在这里啦!查看半包装修要花多少钱?查看全包装修要花多少钱?查看10万以下的装修方案对于咱们的卧室,我的建议就是:睡觉。别加什么乱七八糟的功能,断...
- 装修百宝书
-
-
-
- 设计“内幕”大起底!教你打造约等于“零死角”的家(上篇)
- APP Store 排名第一的家居杂志尽管每个家庭所处的地域、环境、户型,以及家庭成员结构、需要收纳物品的多少都有所不同,但几乎所有的户型都多多少少存在着死角。 死角的存在,意味着被琐碎家务支配的恐惧!水槽...
- PChouse家居APP
-
-
-
- 成都96㎡二人居,温柔中性色+充足收纳,回归生活本真
- 家的要素, 让城市里忙碌的年轻人住得更好。说在前面这套96㎡的公寓位于成都,屋主对于新家最主要的需求是舒适宜居,偏好自然大气一点的简约风。设计师以实际需求切入,将空间基调定为温馨柔和的米色,整体风格...
- 家的要素
-
-
-
- 开放式布局的平层公寓,简约而不简单的材质细节
- Fellowship Kew 是墨尔本新近上市的住宅项目,建筑设计由 CHT Architects 操刀,室内是 SORA 事务所负责,共同打造了一处细节与功能并重、优雅精致的居住空间。项目坐落在维多利亚州 Fellows Street 僻
- 内小宅
-
-
-
- 上海一居民连开5年震楼器!
- 今天在网上看到一个新闻,说上海有一居民连开5年震楼器。太震惊了,我首先想到的是这栋楼的居民太惨了,然后想到的是如何装修才能避免或者减小邻居产生的噪音。相关新闻截图我也很好奇到底是什么仇什么怨造成这...
- 装修33天
-
-
-
- 台式高级灰设计,不一样的时尚空间!
- 台式空间 台湾省钜程设计Chu-Cheng interior design,室内设计的价值在于打造量身订做的幸福,透过赋予住宅生命力,凝聚家庭成员的归属感。01.细格栅的高级质感Cement ash fine grid92㎡的一家三口的居宅
- 室内设计秀
-
