- 两套紧邻的65㎡小户型打通的婚房,公共区域与睡眠空间动静分离,兼顾闹与静
- 来源:家装室内设计
家装室内设计 ,每日搜集分享国内外最前沿的家装设计、施工、建材等内容,成为您家装的好帮手!
图赏
▲原始结构图
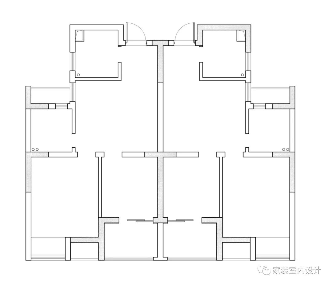
▲平面布置图
| 客厅 |
更多会筑空间设计作品,请回复“会筑”查看!
设计:会筑空间设计(南京)
电话:13914784029(微信同号)
著作权归作者所有,转载请联系作者获得授权~~
投稿邮箱:2977804771@qq.com
商务合作,请联系微信bmhardware01
生活
-
-
- 人物|天津33岁小伙兼职做整理师走红!月入过万!
- 米开朗基罗说:“美,就是净化过剩的过程。” 生活似乎也应是如此,删繁就简。而这不仅是一套生活哲学,还在演变成一种新兴的职业和生意——整理师,又称收纳师。今年年初,国家人社部公示了一批新增的职业工种...
- 天津广播
-
-
-
- 有设计感的家,简单却很高级!
- 这所公寓位于俄罗斯由 Inga Kharisova 设计团队打造客厅无论是硬装造型还是软装搭配都极其富有艺术特质天花和墙壁交接处的倒圆角处理给空间带来新奇与趣致并呈现出十足的优雅气质家具的选配也颇为考究艺术性和高...
- 内小宅
-
-
-
- 轻奢新中式,2021年流行这样装了!
- ☞关注后回复:“卧室、餐厅、客厅、卫生间、厨房、衣柜、阳台、玄关、背景墙、儿童房、装修风格...”等都会收到相关内容,已覆盖99%家居装修的内容。 素雅新中式 传统中式风格沉淀千年,经过无数岁月沧桑与历史...
- 创意家居生活通
-
-
-
- 社交厨房,该如何设计?
- 由于中式的烹饪方式决定了中式厨房的布局和形式中式烹饪习惯以爆炒为主的烹饪方式产生的油烟以及味道非常大因此会采用封闭式的布局设计随着人们生活观念改变和生活品质提高人们对厨房的功能和需求不再仅仅满足于...
- 居住空间
-
-
-
- 《2021魔都新开商场指南》,点击get!还有五五购物节信息..
- LaLaport——浦东新区新金桥路738号风靡日本40年的国宝级购物中心--LaLaport啦啦宝都海外首店即将空降上海啦!总建面近15万㎡的啦啦宝都是以“折纸鹤”为设计灵感,色彩丰富,时尚感max。该商场将约有200家品牌...
- 上海全接触
-
-
-
- 52㎡小公寓,下沉式玄关的妙用,竟让空间质感倍显!
- APP Store 排名第一的家居杂志不同质感相辉交映 在相互交融中 让空间质感 更上一层 这是业主买的第二套房子,因为房屋限购的原因,只能买了这套运河边的小公寓,虽说房屋面积不是很大,但由于原始户型三米四的挑...
- PChouse家居APP
-
-
-
- 141㎡舒适北欧3室2厅,享受慵懒随性慢生活
- 福利提示:文章末尾可免费领取4套设计+报价每天仅限5个名额设计理念 Idea 这是一套北欧风格的装修案例,整体以简约自然的原木风格为主调,加以静谧舒适的灰色调,营造出慵懒自在的惬意氛围。希望这套装修案例...
- 装修效果图
-
-
-
- 逐梦前行 未来可期|2021小尼宅配北京建博会圆满收官!
- 2021年5月3日,为期4天中国家居行业发展风向标第31届北京建博会顺利落下帷幕小尼宅配作为行业标杆体验馆一经展出大放异彩,广受赞誉图小尼宅配展会现场合影留念直击现场展厅内外人潮涌动此次参展,小尼宅配蓄势...
- 小尼宅配
-
-
-
- 小夫妻买下57㎡二手房,改头换面变成北欧风小婚房,太清新舒适了
- 关注微信公众号:jiasjmt,家装案例每天更新! 很多年轻情侣都希望着自己结婚时能拥有一套舒适豪华的大婚房,享受甜蜜浪漫的二人世界。可是在高房价的当下,很多家庭都事与愿违,不仅买不起大房子当婚房...
- 齐家一站式装修
-
-
-
- 5月装修有哪些好处?第6条扎心了!
- ☞关注后回复:“卧室、餐厅、客厅、卫生间、厨房、衣柜、阳台、玄关、背景墙、儿童房、装修风格...”等都会收到相关内容,已覆盖99%家居装修的内容。步入五月春暖花开也是装修的重要时节很多人选择在5月装修因...
- 创意家居生活通
-
-
-
- [旧物改造]麻绳和胶水改造成个性实用的收纳篮210503
- 往期内容精选老干妈瓶子居然能做成这个,好后悔扔了那么多...旧牛仔裤改造 自制收纳挂袋的做法图解牛仔裤改造成好用的靠垫教程200403破旧不穿的牛仔裤巧变家居布鞋子教程把家里的鞋架扔了吧!!一根管子就能装下...
- 旧物利用家
-
-
-
- 60㎡ 一室户,这样设计真显大!
- 这间 60㎡ 的小公寓是一对年前夫妇的家由 Alina Tsaunya 设计室内选用极简白搭配自然木饰面在巧用主次照明让家里看起来更显格调空间布局上公共区与卧室区均衡分布共同营造简约而精致的居住环境▲平面图玄关空间...
- 内小宅
-
-
-
- 动人的曲线,以最好的方式诠释灵动的本意!
- 建筑是一种抵抗重力,指向天空的存在 南充蓝光逸城·天空之城销售中心,以其独特的轻盈感:极简的建筑体块相互叠摞,二层出挑如宇航船悬浮在天上,承载着未来生活的居住体验。在平静的水面上,庭树迎风而立,...
- 室内设计秀
-
-
-
- 两套紧邻的65㎡小户型打通的婚房,公共区域与睡眠空间动静分离,兼顾闹与静
- 家装室内设计 ,每日搜集分享国内外最前沿的家装设计、施工、建材等内容,成为您家装的好帮手!这是两套紧邻的65㎡小户型打通的婚房设计,封堵一个入户门将厨房空间扩大,其中一套作为公共区域属于动区,包含客...
- 家装室内设计
-
