- 夫妻买下80㎡小两居,榻榻米、中岛轻食区+整墙书柜..极简又温馨!
- 来源:齐家一站式装修
关注微信公众号:jiasjmt,家装案例每天更新!
齐家云云今天分享的这套80㎡(使用面积)的公寓位于成都,女主人是甜品店店长,性格开朗却很喜欢宅家、热爱看书,夫妻俩工作都比较忙,希望家里极简又温馨,尽量避免冗余,保持空间通透、清新。
设计师契合屋主的生活理念,引入自然光线,精减界面材质与结构线条,功能和动线上完全按照居住者的实际需求实现,化繁为简,构建丰富生命力的家。下面就一起来看看吧~
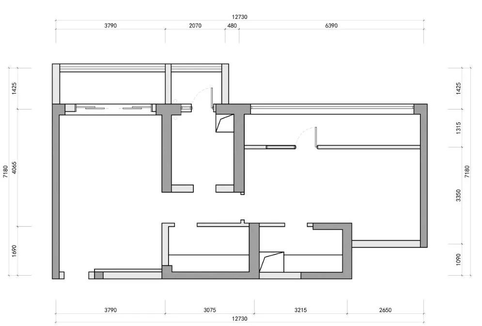
▲ 原始户型图
▲ 平面布局图
餐厅
▲ 玄关望向餐厅
岛台、餐桌和西厨餐边柜相连,形成餐厅+轻食区的布局,平时在这里吃饭、看书、办公...充分利用空间,让家回归更真实的居住意涵。
▲ 科定板6333
空间以石材与木材为主,引入自然光线,温和展现空间的秩序感。主材推荐科定板6333,质感纹理细腻,灰度适中,搭配很多颜色都特别纯净。
(ps:现在添加微信:qijiavm, 即可根据您家户型,免费提供多套相似VR-3D效果图供作参考!)
单一材质的层次变化,增加设计的细腻度。木材延伸至天花,在开放尺度空间围合出充实的包裹感。
餐边柜和岛台同高850mm,搭配置物搁板,收纳常用的餐具和收藏的酒等,兼顾实用和美观。岛台采用岩板材质,手感质感俱佳,也方便打理。
▲ 从厨房看向轻食区
墙面在欧松板表面贴水泥哑光质感的美颜板,提前预留好承重部件,层板嵌入隐藏灯带,线条、材质呈现完美,转角空间自成端景。(后期加灯加层板很难达到这样干净利落的效果)
客厅
客厅用可开合书柜取代传统背景墙,收纳屋主的各种藏书,保留电视+灵活的吊轨移门设计,朋友和老人过来玩也能满足观影需求。
开放式的空间布局,各类小家具可以随意搬动,客厅也能变身瑜伽室、健身房、阅读角...布局随实际需求改动,保持日常新鲜感。
▲ 抬高阳台地面纳入客厅,增加采光
地台嵌入暖色灯带,营造轻盈悬浮的视觉效果。一切化繁为简,摒弃过多的堆砌与装饰,纯粹清雅的界面,对应屋主极简自在的心理感受。
厨房
餐厅到厨房的天花交汇处,衔接了三个空间的层高、梁脊,保证所有水电、设备管道的合理布局,才最终实现极简的大平顶。
为了延续统一的风格,设计师在前期选材时多次比对,保证科定木饰面和威法橱柜的颜色完美融合,细节上体现极简质感。
卧室
▲ 榻榻米床
主卧设计成榻榻米的形式,床头以及床边利用高度、进深差嵌入灯带,用间接光线勾勒出卧榻界面层次。
用木质的温润与简约,还原纯粹空间表情,注入情感与生活内容,构建出居宅丰富的生命力。
卫生间
▲ 黑白深浅对比,强化空间张力
瓷砖是1.2*0.6米整铺,拼接方式也是提前设计好的,放大空间效果。吊顶边缘留空,嵌入灯带和小角度射灯,照亮马桶,高级感十足。
(我们致力于保护作者版权,部分作品来自互联网.无法核实真实出处,如涉及侵权,请直接联系小编删除.谢谢!)加微信:qijiavm, 或扫描下方二维码,即可根据您家户型,免费提供多套相似VR-3D效果图供作参考!!
像这样装修需要花多少钱?点击“阅读原文”马上就能算出!!
生活
-
-
- WEDNESDAY/立夏
- 设计师投稿通道开启啦!无论你是自由设计师,还是设计工作室或机构,只要作品足够精彩,有看点,通通砸过来!投稿通道:Kiki_xl_(添加请注明来意)// 更多好物推荐 //新手露营,怎么能不知道这11个干货!轻松换...
- 时尚家居
-
-
-
- 怎样开一家赚钱的蛋糕店?这3家案例店有全套的前厅与后厨规划可参考!
- 一说到日本甜品店,我们首先会想到精致美味的产品、各具特色的装修和精巧雅致的包装。然而想要维持正常出品贩卖以及提高购买率,恰恰是容易被我们忽略,却在前期拥有至关重要作用的门店布局。根据是否有堂食来划...
- 伊莎莉卡烘焙网
-
-
-
- 小户型+旋转电视墙,面积不变,实用加倍!
- 创意小户型 Creative small family小户型的设计由于受到面积的限制,所以在布局上都需要非常惊喜并富有创意。每一个小空间的精致实用都是用细节堆砌而来,正所谓“麻雀虽小,五脏俱全”,面积可以不大,但是该有...
- 居住空间
-
-
-
- 35岁女主坚持“减法”装修,住130㎡不多打柜子,5年如一日的整洁
- 关注微信公众号:jiasjmt,家装案例每天更新! 再大的房子,也可以做“减法装修”!就像齐家云云今天要分享的这位35岁女业主的家,买下130㎡房按照自己的喜好装修,功能区齐全一个东西都不少,却能保证干...
- 齐家一站式装修
-
-
-
- 比别墅还美的乡下房子!
- 乡下的房子,总是给人一种清新淡雅的感觉。脱离了奢华和富丽,让简单和纯净在这里慢慢发酵,带给你无比清新的田园风。远离都市的浮华与喧嚣,放慢生活的脚步,让人与自然融为一体。砖石墁地,树木花草,都是生活...
- 收藏新视界
-
-
-
- 152m极简住宅,简单、舒适、自然,才是我们真正需要且喜爱的家的样子
- 家装室内设计 ,每日搜集分享国内外最前沿的家装设计、施工、建材等内容,成为您家装的好帮手!本案是一套面积为152平米的洋房结构户型,屋主是一对80后夫妻,也即将迎来他们的宝宝,对新家新生活充满了期待。设...
- 家装室内设计
-
-
-
- 留白,至高至美新中式!
- 身是菩提,行坐皆禅入莲境,心如莲华,匠心有道归清平。东方文化内敛,以追求精神层面价值达到内圣的境界,禅作为中华民族骨子里的智慧,运用在社会各个方面。修行如此,设计本源亦如此。设计不强调形式,而重于...
- 室内设计秀
-
-
-
- 112平现代美式公寓,最后的实景深得我心~
- 导Lead语112㎡ | 3居室 | 现代美式图赏户型图平面布局图最爱客厅,因为这是家人友人可以聚在一起的地方~餐厅,矮靠背椅很舒适,也不会挡了视线。当时没有一丝犹豫选择的款式,如今看来果然是最爱!软装还是得花...
- 潮流室内装修设计
-
-
-
- 30年老房改造:73㎡纯白北欧风住宅
- 中国设计微刊,专注「家居、时尚、创意」设计分享 设计空间 | 书画艺术 | 生活美学喜欢设计点击上方 “空间设计 ” → 点击右上角“...” → 点选“设为星标 ★ ”空间设计出品┃转载请注明来源来源:空间设计...
- 空间设计
-
-
-
- 有钱人都把门垫放这个地方,老师傅看了点头夸好,真的很聪明
- 有钱人都把门垫放这个地方,老师傅看了点头夸好,真的很聪明家里的门口正常来说,都是会放有门垫的,这样家里人或是客人来的时候,那鞋子上都是有灰尘跟泥土的,有一块门垫放门口的话,那进来前可以摩擦一下,把...
- 装修家居风水
-
-
-
- 30岁辞职上山,花3500元用“废物”造了个房,过上最自由的生活!
- JING,今年33岁一名服装设计师3年前,她一直在深圳一家服装公司当设计经理原本以为生活是充满活力的但现实却是每天光对着电脑就十几个小时让身体和心灵都变得麻木她不甘心30岁那天,JING辞职了因为她清楚的知道...
- 环球花艺报
-
-
-
- 113平北欧三居室,独特又个性,且情调满满~
- 导Lead语113㎡ | 3居室 | 北欧这是一套北欧风格的装修案例,原休闲阳台较大,但对于屋主两人来说利用率不高,希望有一个好的设计既可以充分利用增加储物,又能实现女主人的植物乐园梦。图赏平面设计图餐 厅帕莎...
- 潮流室内装修设计
-
-
-
- 夫妻买下80㎡小两居,榻榻米、中岛轻食区+整墙书柜..极简又温馨!
- 设计师契合屋主的生活理念,引入自然光线,精减界面材质与结构线条,功能和动线上完全按照居住者的实际需求实现,化繁为简,构建丰富生命力的家。下面就一起来看看吧~▲ 原始户型图屋主需求:1. 每一个地方都适...
- 齐家一站式装修
-
-
-
- 5种小众的观赏花卉,花朵精致迷人,但不一定适合你
- 下面分别介绍不同种类的观赏花卉,包括爬藤植物、多肉植物和草本花卉等,大家可以根据自己家里的环境选择合适的品种栽种。我看到很多花友看到某种植物长得好看,就将它们买回家,那就徒增养花难度了。上面分别是...
- 养花交流
-
