- 30年老房改造:73㎡纯白北欧风住宅
- 来源:空间设计
喜欢设计点击上方 “空间设计 ” → 点击右上角“...” → 点选“设为星标 ★ ”
空间设计出品┃转载请注明来源
来源:空间设计(ID:kongjiansheji88)
北欧风设计
每天给你分享一个案例设计
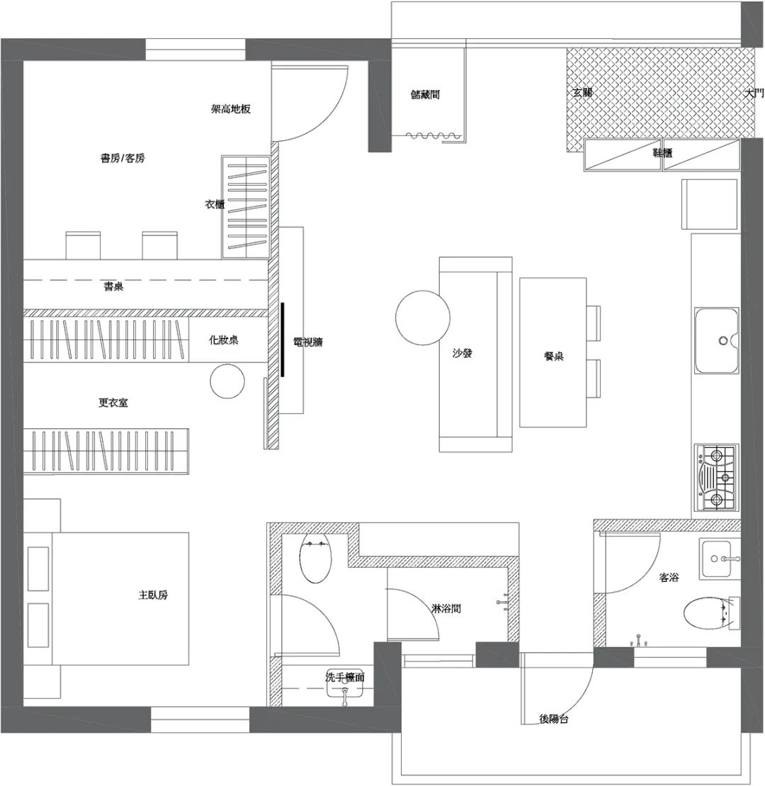
这套公寓位于台湾新庄
面积:73㎡
格局:2室 2厅 2卫
居住人数:2大1猫
由 艾伦室内设计 设计
1. 玄关设计:
昔日蒙上尘灰的黯淡空间
如今被温煦日光轻轻罩覆
少了阴暗幽长的甬道、多了明亮开阔的视角
正是团队在检视格局后,以开放佈局盛装自然暖阳
依序根据全室比例裁定玄关尺度
2.阳台
3. 客厅设计:
「北欧风,不是只有单一形式。」
设计师认为,无须千篇一律的木地板
于是将材质掺揉本土情怀
以朴实磨石子砖提取出原粹台湾味
也凝缩著房子本身的古早气息
透过中性色调配出在地北欧风情
依序将电视墙裹覆一道柔白木纹理
堆抹 L 型水泥纹理柔性接轨门片
牵引视线导向私领域的水泥立面
使画面连续而不被突兀断开
同步沿著卫厕壁面挹注转折设计
分别揉入布织纹与水泥板材共筑壁柜
4. 厨房 / 餐厅设计:
一道亮白铁道砖、宛若围篱般定义出料理范围
悉心权衡天花的柔性弧线与视感后
以未砌满方式裁分立面比例
减负视觉重量,也成为餐厨的隐性分线
透过平滑质地维持良好清洁性
依序取消吊柜配置,使视线所及轻透无负担
知悉女主人习惯调制轻食
于是搭配一字型厨具符合日常情景
同时布局出流畅走线,当光线从玄关间隙穿透映落
属于烹饪的纯淨氛围油然生成
5. 主卧 / 衣物间设计:
一席掺揉灰调的超耐磨木地板
轻摊开宁静无扰的睡眠境地
深知有一间独立衣物间是女主人的梦想
于是悉心分配场域幅宽,不以实墙瓜分空间
落下一道系统衣柜当作分际线,确保面积最大值
轻步转向衣物间
如云雾般的石纹理倾刻绽放
别于常见化妆台形制
沿著立面分别揉植二道滑门与格柜
使各种瓶罐身形有序归放
向前一看,将柜身採取未置顶高度
使光线有了探访路径
依序采用开放配置扩阔藏放空间、分散量体沉厚感受
佐配雾灰森林绿与橙黄色泽
经由跳色技法替简淨基调注入一股生机活力
6. 多功能室设计:
既是书房、客房,也可当作孩童房使用
团队采以通铺设计化解空间侷限
全方位包容未来各种情况
同时进一步探究身在其中的细腻感受
将柜体降缓高度与调配分割
在一退一进间削弱压迫感
搭配水泥素材承接一致空间
7. 卫浴设计:
如饭店般的高雅沐浴情境
是男女主人对于卫浴的念想
简洁舒适的关键,是拥有明确机能性
团队经过深度考究后,缜密定位各卫浴设备
近期热文
▽
-end-
转 载 须 知
喜欢就点一下“在看”
公众号转载需后台回复“转载”二字
(点击关注直接阅读)
(点击关注直接阅读)
生活
-
-
- WEDNESDAY/立夏
- 设计师投稿通道开启啦!无论你是自由设计师,还是设计工作室或机构,只要作品足够精彩,有看点,通通砸过来!投稿通道:Kiki_xl_(添加请注明来意)// 更多好物推荐 //新手露营,怎么能不知道这11个干货!轻松换...
- 时尚家居
-
-
-
- 怎样开一家赚钱的蛋糕店?这3家案例店有全套的前厅与后厨规划可参考!
- 一说到日本甜品店,我们首先会想到精致美味的产品、各具特色的装修和精巧雅致的包装。然而想要维持正常出品贩卖以及提高购买率,恰恰是容易被我们忽略,却在前期拥有至关重要作用的门店布局。根据是否有堂食来划...
- 伊莎莉卡烘焙网
-
-
-
- 小户型+旋转电视墙,面积不变,实用加倍!
- 创意小户型 Creative small family小户型的设计由于受到面积的限制,所以在布局上都需要非常惊喜并富有创意。每一个小空间的精致实用都是用细节堆砌而来,正所谓“麻雀虽小,五脏俱全”,面积可以不大,但是该有...
- 居住空间
-
-
-
- 35岁女主坚持“减法”装修,住130㎡不多打柜子,5年如一日的整洁
- 关注微信公众号:jiasjmt,家装案例每天更新! 再大的房子,也可以做“减法装修”!就像齐家云云今天要分享的这位35岁女业主的家,买下130㎡房按照自己的喜好装修,功能区齐全一个东西都不少,却能保证干...
- 齐家一站式装修
-
-
-
- 比别墅还美的乡下房子!
- 乡下的房子,总是给人一种清新淡雅的感觉。脱离了奢华和富丽,让简单和纯净在这里慢慢发酵,带给你无比清新的田园风。远离都市的浮华与喧嚣,放慢生活的脚步,让人与自然融为一体。砖石墁地,树木花草,都是生活...
- 收藏新视界
-
-
-
- 152m极简住宅,简单、舒适、自然,才是我们真正需要且喜爱的家的样子
- 家装室内设计 ,每日搜集分享国内外最前沿的家装设计、施工、建材等内容,成为您家装的好帮手!本案是一套面积为152平米的洋房结构户型,屋主是一对80后夫妻,也即将迎来他们的宝宝,对新家新生活充满了期待。设...
- 家装室内设计
-
-
-
- 留白,至高至美新中式!
- 身是菩提,行坐皆禅入莲境,心如莲华,匠心有道归清平。东方文化内敛,以追求精神层面价值达到内圣的境界,禅作为中华民族骨子里的智慧,运用在社会各个方面。修行如此,设计本源亦如此。设计不强调形式,而重于...
- 室内设计秀
-
-
-
- 112平现代美式公寓,最后的实景深得我心~
- 导Lead语112㎡ | 3居室 | 现代美式图赏户型图平面布局图最爱客厅,因为这是家人友人可以聚在一起的地方~餐厅,矮靠背椅很舒适,也不会挡了视线。当时没有一丝犹豫选择的款式,如今看来果然是最爱!软装还是得花...
- 潮流室内装修设计
-
-
-
- 30年老房改造:73㎡纯白北欧风住宅
- 中国设计微刊,专注「家居、时尚、创意」设计分享 设计空间 | 书画艺术 | 生活美学喜欢设计点击上方 “空间设计 ” → 点击右上角“...” → 点选“设为星标 ★ ”空间设计出品┃转载请注明来源来源:空间设计...
- 空间设计
-
-
-
- 有钱人都把门垫放这个地方,老师傅看了点头夸好,真的很聪明
- 有钱人都把门垫放这个地方,老师傅看了点头夸好,真的很聪明家里的门口正常来说,都是会放有门垫的,这样家里人或是客人来的时候,那鞋子上都是有灰尘跟泥土的,有一块门垫放门口的话,那进来前可以摩擦一下,把...
- 装修家居风水
-
-
-
- 30岁辞职上山,花3500元用“废物”造了个房,过上最自由的生活!
- JING,今年33岁一名服装设计师3年前,她一直在深圳一家服装公司当设计经理原本以为生活是充满活力的但现实却是每天光对着电脑就十几个小时让身体和心灵都变得麻木她不甘心30岁那天,JING辞职了因为她清楚的知道...
- 环球花艺报
-
-
-
- 113平北欧三居室,独特又个性,且情调满满~
- 导Lead语113㎡ | 3居室 | 北欧这是一套北欧风格的装修案例,原休闲阳台较大,但对于屋主两人来说利用率不高,希望有一个好的设计既可以充分利用增加储物,又能实现女主人的植物乐园梦。图赏平面设计图餐 厅帕莎...
- 潮流室内装修设计
-
-
-
- 夫妻买下80㎡小两居,榻榻米、中岛轻食区+整墙书柜..极简又温馨!
- 设计师契合屋主的生活理念,引入自然光线,精减界面材质与结构线条,功能和动线上完全按照居住者的实际需求实现,化繁为简,构建丰富生命力的家。下面就一起来看看吧~▲ 原始户型图屋主需求:1. 每一个地方都适...
- 齐家一站式装修
-
-
-
- 5种小众的观赏花卉,花朵精致迷人,但不一定适合你
- 下面分别介绍不同种类的观赏花卉,包括爬藤植物、多肉植物和草本花卉等,大家可以根据自己家里的环境选择合适的品种栽种。我看到很多花友看到某种植物长得好看,就将它们买回家,那就徒增养花难度了。上面分别是...
- 养花交流
-
