- 私宅设计:简约纯粹,让家回归最初的质朴!
- 来源:拓者设计吧
纯粹的空间让人内心平和又放松,去除浮躁,回归生活本质。
客厅没有繁复的装饰,也没有华丽的造型,但却呈现了一种别具一格的美感,让生活回归最初的质朴。
纯灰色系的布艺沙发,原木系的木制沙发,让生活更有自然气与生活气。
客厅没有电视,反而可以享受一个更为安静纯粹的空间。
餐厅的设计采用天然材料,用最柔和的颜色,最真实的纹理,表达最淳朴的生活。造型别致的线型吊灯,打造了一个舒适优雅的就餐环境。
温润质朴的天然橡木饰面,与自带清冷气息的哑光漆相得益彰,辅以隐形灯带烘托氛围,勾勒轮廓,瞬间提升了空间的层次性。
为了更好的增加空间的互动感,厨房使用了长虹玻璃推拉门。让两个不同的空间之间有了对话与互动。
入户左手为玄关换鞋区,一镜到底的空间通透感,让空间倍感舒爽与透亮。
卧室的设计秉承了统一调性,没有多余的装饰堆砌,一张大床、一面木墙,以及斑驳梦幻的光影交织,便将恬静的氛围装点得甚是迷人。
宽大的落地窗可以将室外的美景一览无余。
书桌与主卧床体相隔而望,似透非透的朦胧感增加了空间的美感。
家,不仅仅是栖居之所,更是灵魂的港湾。业主女儿在北京读书学习,在房子方案沟通时,最在意的莫过于女儿的房间。
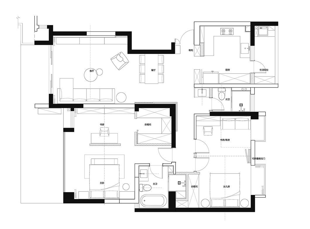
项目类型:平层旧房改造
项目面积:158㎡
项目地址:成都市武侯区
设计团队:成都初一美学设计有限公司
主创设计:张月
设计参与:李海龙
项目摄影:那个普尤
02
壹石设计
用极简线条
解构纯粹空间
材料上利用玻璃、钢板、木材、亚克力材质的不同厚度体量和不同材质的质地对比反差,给空间层次一种“干净”“细腻”的节奏感。
在整体色彩上应用了石材的黑、顶部的白、微水泥的灰为基调,再通过木色做为媒介使整体色调情绪安静下来,让空间与屋主产生感性的而又放松的氛围。
引入建筑设计手法,将餐桌与墙体穿插组合,极简美观。
书房对墙体改造,打通客厅与书房的视野,让空间之间既独立又是关联的。
作品名称:解构
设计单位:壹石设计
建筑面积:123m²
工程地址:南京
03
璞珥空间设计
本案的屋主是两人和一只猫:作为商务精英的他有着缜密的逻辑思维,对一切加以审视消化,希望家里整体风格硬朗冷峻;而作为老师的TA随遇而安,希望家的氛围更为舒适温暖。
设计师以空间为容器,开放接纳两人的理想生活场景,让理性和感性共生共存,给予两人自由和谐的居家体验。
在与屋主的接触中,可以发现两人乐于一起养生、一起研究美食料理、一起研究洗衣机的使用、一起拼图玩游戏……于是充分考量两人生活的情境,多视角打造互动交流的场域。
客厅区域利用灵动组合的家具模式,组成三区合一的互动空间,营造界而未界的情感体验。
两人可以窝在阳台角落的懒人沙发上阅读,也可在客厅享受影音娱乐;可拆分沙发让两人可以背靠背自得其乐,也可共同在沙发后活动区域健身、跳街舞;在飘窗上阅读、逗猫。
轻食区让两人在料理的时候可以相互陪伴,书房定制长桌给予两人共同办公的空间……整屋以两人为“点”,于细节处设置多重对角线,将两人的互动交流密切联系起来。
家是卸下重壳放逐自我的地方,全室利用不同元素组合营造开放的场域,又以断舍离赋予空间变化的可能性和包容性,给予居者慵懒自由的生活体验。
因为家中不会有过多社交待客的时候,整个空间力求慵懒而随性。公区的百叶窗柔和自然光线,又通过多处暖光的辅助灯照亮局部,营造轻松散漫的氛围;
生活空间以四大主轴贯穿,即玄关-餐厨-客厅到卧室,辅以走廊纵向直线串联,通过各种暗门移门藏纳洗衣房、客卫、更衣室等功能空间,让生活动线自然流畅,赋予居者自由的行走体验。
充足的收纳和灵动空间,强调美学的同时,让居家生活有更多开放式的场景随意使用和改变。
用干净的线条勾勒利落的量块造型,渲染整体风格的硬朗与质感,冷调和暗调作为永恒的主色,共同营造高知男性沉稳理性的空间表情;
同时以原木饰面作装饰,配合柔软的沙发家具,辅以柔和的灯光烘托,围合出两人一猫的互动场域,营造平静且温馨的氛围感。
两人在家的生活随着时间运行,逐渐沉淀为对空间的经验与记忆,比如一起完成的月亮拼图、去漫展购回的灌篮高手装饰画、创意摆件,都为家增添感性的情绪和温度。
心动和细小的甜都是强大的生活支撑,以开放的设计语言赋予空间生命力和包容性,让两人在家获得自由和谐的精神享受,在日复一日使用中,留下两人的记忆、习惯,至此,人与空间得以共生共荣。
项目名称:曦和
空间面积:114㎡
设计单位:璞珥空间设计
施工团队:璞珥&呈憬装饰施工
空间摄影:李恒
拓者设计吧
▽
生活
-
-
- 57㎡复古女子公寓,巧用4米层高+柔和缤纷配色,感受“怀旧”氛围!
- 家的要素, 让城市里忙碌的年轻人住得更好。说在前面这套57㎡的小公寓位于历史悠久的乌克兰城市中心,屋主是一位年轻的平面设计师,她希望无需走出家门,即可感受城市的古老文化氛围,同时Get一个都市里寄托心灵...
- 家的要素
-
-
-
- 现在长寿花不修剪,秋冬难开花!
- 长寿花小巧玲珑,枝叶翠绿,常开不败。寓意也极好,象征着长命百岁。如今已经是五月了,长寿花最后一波花已开尽,接下来在炎热的漫漫夏季,长寿花会进入半休眠期。所以我们要在夏季高温前对长寿花进行一次修剪,...
- 养花之家
-
-
-
- 阳台门别瞎装,2021流行这样设计!
- ☞关注后回复:“卧室、餐厅、客厅、卫生间、厨房、衣柜、阳台、玄关、背景墙、儿童房、装修风格...”等都会收到相关内容,已覆盖99%家居装修的内容。现在每家每户都有阳台阳台的装修也变得越来越被关注了不管是...
- 创意家居生活通
-
-
-
- 2个50㎡小户型极简主义精致生活+新古典主义的完美演绎,你值得拥有!
- 中国设计微刊,专注「家居、时尚、创意」设计分享 设计空间 | 书画艺术 | 生活美学喜欢设计点击上方 “空间设计 ” → 点击右上角“...” → 点选“设为星标 ★ ”空间设计出品┃转载请注明来源来源:空间设计...
- 空间设计
-
-
-
- 180㎡大三房,黑白灰+木饰面打造三代同堂的温馨居所,高级却不高冷!
- APP Store 排名第一的家居杂志结束忙碌了一天的工作 惬意地享受家带来的自由温暖 家 便是赖以休憩的港湾 本期案例是五口之家,屋主人是一对工程师夫妻,夫妻俩平时工作比较忙,经常出差,长期是父母和孩子在家居...
- PChouse家居APP
-
-
-
- 清新自然的原木风,打造温暖舒适的居家空间
- 这个房子位于墨尔本由 Foomann Architects 设计现住着一家四口人进入室内木地板从玄关延伸到客厅及楼梯隔断和门也选用原木材质给人亲近自然的感觉客厅直接通向庭院大面积的落地玻璃窗既能保证室内采光又能把室外...
- 内小宅
-
-
-
- 欧式凡尔赛,浪漫之光。
- 欧式浪漫,足够奢华,足够瑰丽华丽精巧的各种甜腻温柔能够营造奇妙的家居体验(首图源自网络)客厅|从玄关走进客厅,软装搭配以宝蓝色家具,金色墙壁,水晶几何感的吊灯组合,层次感十足的同时也极富有欧式唯美风...
- 缪斯设计
-
-
-
- 上海市中心第一爱巢:煤炭大王送老婆的4000㎡豪宅
- 设计 / 品质 / 生活Temperature of Love文章已获“一条”(id:yitiaotv)授权转载请联系原作者上海市中心的巨鹿路675号,作家协会所在的漂亮房子,是民国时期“煤炭大王”、“火柴大王”——刘吉生夫妇的...
- 设计本家居
-
-
-
- 经常养不好花,是家里的环境不适合它,还是你对植物不够了解?
- 将植物花卉养活并不是什么难事,但想要让植物快速生长,保证定期开花,那就有一点难度了。有些花友觉得某种植物难养,还经常养死,可能是家里的环境不适合它,或者是你对它不够了解。一起来了解一下养花常见的四...
- 养花交流
-
-
-
- 顶级办公总部大楼设计,帅炸了!
- 尊贵热线:400-639-9973最好的生活,只为遇到最懂的你!彭博欧洲新总部大楼今天得心君为大家分享超震撼的办公总部大楼设计,集艺术、功能、环保于一身的完美设计。Bloomberg(博格)是全球领先的金融资讯公司,...
- 得心设计
-
-
-
- 极简入户鞋柜,太喜欢这样的设计了!
- 入户鞋柜 收纳设计是一个家装修的重点,入户鞋柜是收纳的重要组成部分,还是进门的第一个柜子,给客人的第一印象,因此无论是功能上还是颜值上都算是一个家的门面。入户鞋柜,顾名思义,是方便进出玄关时换...
- 米兰设计之旅
-
-
-
- 立夏后,这花赶紧扦插,沾水就生根
- 立夏啦,温度上升,这几种花要赶紧扦插,成活率相当高,可以说是沾水、沾土就生根,大家不要错过时机,方法都在下面:菊花菊花是宿根,每年春天冒芽,现在应该长挺高了,可以打顶让它发侧枝,注意:这里多是指秋...
- 养花大全
-
-
-
- 1㎡玄关也要仪式感,处女座级巨量收纳
- ▲ 使用面积120平,项目坐标:浙江杭州,本案是二手房改造,业主爱猫、爱摄影、爱收集手办,希望家里有超多柜子,设计师结合业主需求和爱好,打造出简洁、耐看、经典的家居空间▲ 平面布置图▲ 玄关非常小,只有...
- 装修33天
-
-
-
- 今日立夏!分享8个夏季养花小姿势,收藏啦~
- 导语 古人云:“立夏,万物至此皆长大。”五一小长假的余韵尚在,春暖花开的气息犹存,初夏就已经来到了我们的身边。《历书》云:“斗指东南,维为立夏,万物至此皆长大,故名立夏也。”初夏时光,日头微辣,...
- 宠派养花大全
-
-
-
- 私宅设计:简约纯粹,让家回归最初的质朴!
- 01 成都初一设计 本案位于成都市武侯区,初次与我们沟通的是男屋主,是一个温暖中充满坚定的人。目前常住屋主一人,女儿与妻子在外地,偶尔回家小住。虽然家人目前都不在身边,屋主还是坚定的要重新装修一下。...
- 拓者设计吧
-
