- 人好看,家好看
- 来源:装修33天
▲ 使用面积103平,造价29万,业主是一对年轻夫妻,他们二人都是军人,由于工作内容不同导致男主只能定期回一趟家,他们希望可以做到轻装修重装饰,且有身在城市住在森林的感觉
▲ 原始结构图
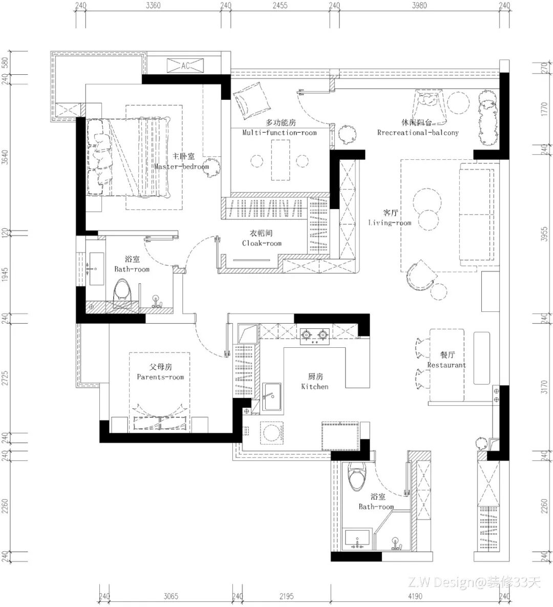
▲ 平面布置图
▲ 玄关,进门处的地面做了一个落尘区,两侧打造大面积收纳柜,靠近门处局部留空兼具换鞋凳与置物功能
▲ 设置长虹玻璃隔断,避免入户大门正对餐厅和阳台,缓冲视线又不影响采光
▲ 利用错落墙面设计黑板墙与隔板,美观文艺又实用
▲ 餐厅,一套简约的餐桌椅搭配长条餐凳,一旁的成品餐边柜满足基本收纳
▲ 将原始生活阳台与厨房合为一体后设计为开放式厨房,在角落预留了洗衣机与烘干机的位置
▲ 根据屋主的身高定制高低错落的台面
▲ 客厅纳入阳台,整体以白+木为主,搭配简约风的家具,干净清爽
▲ 美好自然流露着对对方的爱意,恰好融入到房屋的每一寸每一角
▲ 取消电视改为投影,收纳型电视墙延伸至过道设计置物装饰格,下方留空部分嵌入灯带更显轻盈
▲ 客卫,钻石型淋浴间合理利用空间,磨砂推拉门外是生活阳台
▲ 将原始书房一部分空间与休闲阳台重组成为了集会客、书房、休息于一体的独立空间
▲ 客卧,利用移动后的厨房墙体,增加了嵌入式衣柜的空间
▲ 床头的扎染装饰画是整个房间的点睛之笔
▲ 主卧干净且温馨,雾霾蓝墙面营造舒适的睡眠空间
▲ L型飘窗成为休闲一角
▲ 衣帽间,设计悬挂式挂衣杆,简洁便利,可用于收纳换穿衣物
▲ 主卫,灰色系瓷砖墙地一体,采用玻璃隔断与错落地面规划淋浴区
文字编辑 | 东东
设计 | Z.W Design(成都)
微信:WalkmanofSaturnRing
后台回复「ZW」可以看更多作品
媒体转载请注明装修33天并保留设计师联系方式
欢迎业主、设计师、装修公司免费投稿照片
装修33天商务合作微信:king194316
松爷店铺掌柜微信:yejia1703
Z.W Design其他作品推荐
实用装修指南
装修33天 🏡 实用装修指南
你每次点赞和转朋友圈,都是对我们的支持
生活
- 
								- 
																		
- 阳台一定要认真装,邻居看完排队跟着学!
- 买房之后大家对家里的阳台装修也很是重视,要解决日常晒衣服,要能种种花草,满足个人生活小情趣;要能喝喝茶聊聊天,丰富日常生活等等。阳台有百用,装修的时候你是不是也纠结过以下问题:阳台砖贴的好,颜值也...
- 汇设计汇装修
 
- 
																		
- 
								- 
																		
- 2年前的精装房,拆了猪肝色地板,凿墙全改造,145㎡完工判若两房
- 关注微信公众号:jiawyk,一起聊聊装修中的苦闷与快乐~2年前买下145㎡精装房,如今拿到手下决心要做个全改造。拆了猪肝色地板又凿墙,夫妻俩大胆改造,变身舒适明亮的三人居,这完工效果判若两房,真的服了!猪...
- 小菜聊装修
 
- 
																		
- 
								- 
																		
- 70㎡老屋改造,竟住下一家6口人+中西2个厨房,空间利用太绝了!
- 户型图客厅将沙发改为靠墙卧榻,墙面与玄关屏风都隐藏着收纳空间。撤掉餐桌、茶几等家具作为小孩的游戏空间。晚上将客厅收纳柜下方的遥控床拉出,就是奶奶的寝居空间。厨房(ps:现在添加微信:qijiavm, 即可根...
- 齐家一站式装修
 
- 
																		
- 
								- 
																		
- 零壹城市新作|100天急速建造“头鹭奋飞”生活美学馆
- 近日,由零壹城市建筑、室内、软装一体化设计的绍兴金昌·烟波飞鹭“头鹭奋飞”生活美学馆,历经约100天急速建造,已正式落成开放。01 烟波飞鹭,头鹭奋飞金昌烟波飞鹭项目灵感取自萧绍运河上翩跹的白鹭,采用流...
- 火车头设计
 
- 
																		
- 
								- 
																		
- 装修是个坑,谁装谁知道?
- 五一五天乐,你过得开心吗?有些朋友,顾不上浪浪浪,他们趁着难得的小长假,挥汗如雨,跑装修公司、看效果图,有些对自己能力相(过)当(分)自(高)信(估)的朋友甚至亲自下场与包工头斗智斗勇。你每逢佳节...
- 新周刊
 
- 
																		
- 
								- 
																		
- 自然素雅的96㎡三口之家,被日光温柔眷顾
- APP Store 排名第一的家居杂志生活之道,在于取舍。空间本质,为人所用。也许,不过不宽敞的房屋几间,也许,不过简陋平凡的一扇灯火。但,远远望见,却总是心生暖意。我希望我的家被日光温柔的漫进室内,舒服的...
- PChouse家居APP
 
- 
																		
- 
								- 
																		
- “按这个效果,我3万就能装修好”,便宜装修差在哪?教训来啦!
- 五一放假回家,推开房门的一瞬间,我被吓到了——天花脱落了一大片。▲天花脱落,掉了一大片下来。幸亏平时比较少时间住在老家,也幸亏天花脱落时我们不在家,否则人在家时砸下来的话,想想都怕!!!于是,我都...
- 室内设计姐
 
- 
																		
- 
								- 
																		
- THURSDAY/阅历
- 设计师投稿通道开启啦!无论你是自由设计师,还是设计工作室或机构,只要作品足够精彩,有看点,通通砸过来!投稿通道:Kiki_xl_(添加请注明来意)// 更多好物推荐 //新手露营,怎么能不知道这11个干货!轻松换...
- 时尚家居
 
- 
																		
- 
								- 
																		
- 90后女孩零垃圾生活曝光,一个玻璃罐装完4年废品:真一股清流
- 越是厉害的人,越懂朴素的力量。 - 生活 美学 -NO.1 | 壹你有算过,一天里自己会制造多少生活垃圾吗?或许有人觉得,吃一顿外卖、喝一杯下午茶、上厕所多抽几张纸巾,都是无关痛痒的小事,可每人光是扔个饮料瓶...
- 环球花艺报
 
- 
																		
- 
								- 
																		
- 现代别墅设计|理想国的美学空间
- ◆项目坐标:尚海格调项目面积:150㎡设计公司:缪斯设计设计师:陆雯婷◇生活是创意的来源,创意源于文化,创意源于自己。◆01全景联动客餐厅创建人文氛围简约质感的灰白色让人得到沉静的空间氛围线条感将空间层...
- 缪斯设计
 
- 
																		
- 
								- 
																		
- 138㎡北欧风三居室,享受慵懒文艺的慢生活
- 面积:138平米户型:三室两厅一厨一卫风格:北欧风在简洁的硬装基础上搭配自然舒适的软装来打造出慵懒情调的空间入户无玄关,在一侧放置了嵌入式通顶鞋柜,底部和中间留空,方便摆放鞋子和零碎杂物、装饰品等。...
- 小尼宅配
 
- 
																		
- 
								- 
																		
- 157㎡四口之家,无一处不打柜子,走哪儿都是收纳,入住却很宽敞
- 关注微信公众号:jiawyk,一起聊聊装修中的苦闷与快乐~这是一个很典型的四口之家,小夫妻带着两个孩子生活,为了收纳空间自由,决定将157㎡的家改造一番。如今已经完工入住,一起来看看改造逆袭后的效果:从玄关...
- 小菜聊装修
 
- 
																		
- 
								- 
																		
- 182㎡ 极简设计,美的如此纯粹!
- 这套公寓位于乌克兰基辅由 SHOVK STUDIO 设计走进室内,玄关选用黑白色调看起来简约而自然大幅艺术画的更是增添了不少艺术色彩门厅旁边的鞋帽柜选用黑色木饰面打造与周围的浅色调形成强烈对比不锈钢柜门拉手又...
- 内小宅
 
- 
																		
